
THE SITE
서울을 가로질러 김포와 일산의 경계를 따라 굽이 흐르는 한강과 운양동 주택지구 사이에는 드넓은 김포한강 야생조류 생태공원이 펼쳐진다. 대지는 북서 측으로 2개의 8m 도로와 면하는 동시에 남측으로 사이 공원과 닿으며 생태 마을의 중심에 자리한다. 비교적 좋은 환경적 여건을 확보하고 있다.
BEGINNING
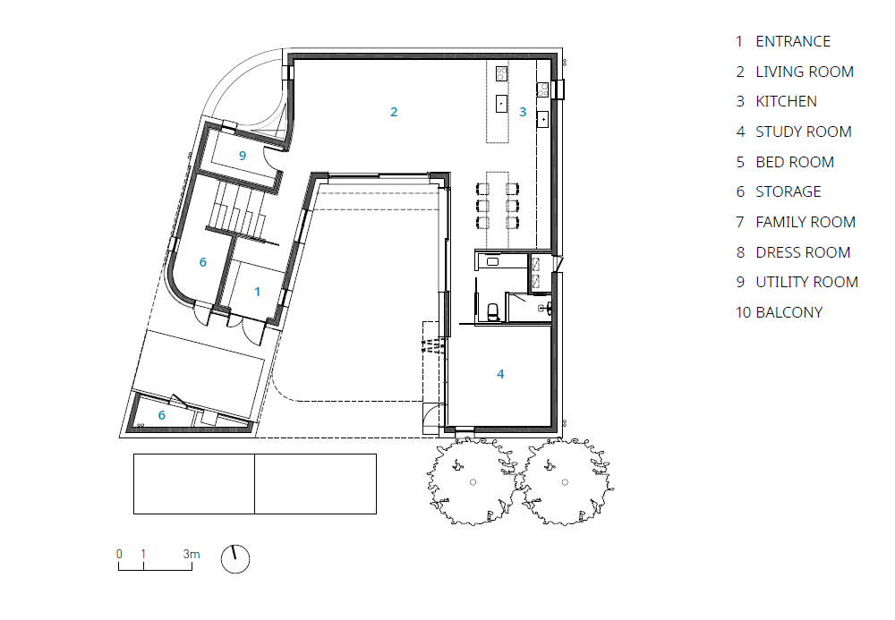
사이 공원을 따라 마을을 걷다 보면 종종 50% 건폐율의 건축면적을 제외한 나머지 사적 마당공간이 공적 공간인 사이 공원과 경계 없이 맞닿으며 사적 공간의 영역성이 모호해지는 상황을 보게 된다. 당연히 마당에서의 외부 활동은 행인의 시선에 의해 어색하게 잠식될 수밖에 없어 보인다. 택지지구 지구단위계획의 담장 설치금지 조항은 주택의 사적 프라이버시를 보호하기 위한 공간의 재구조화를 요구한다.
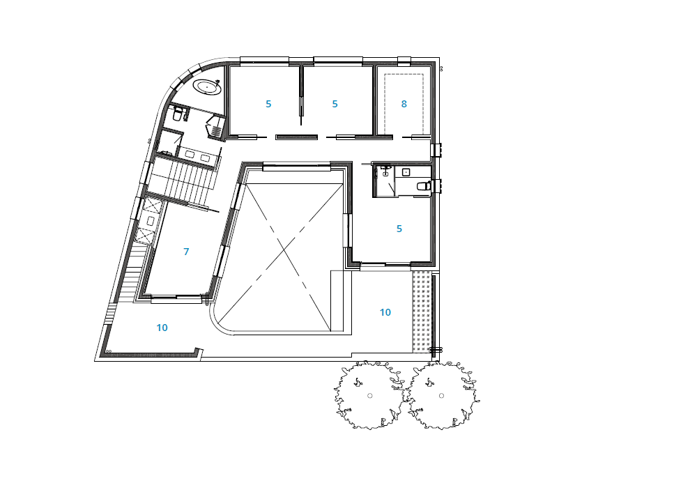
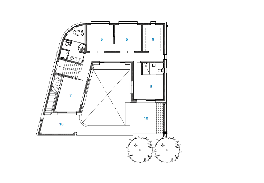
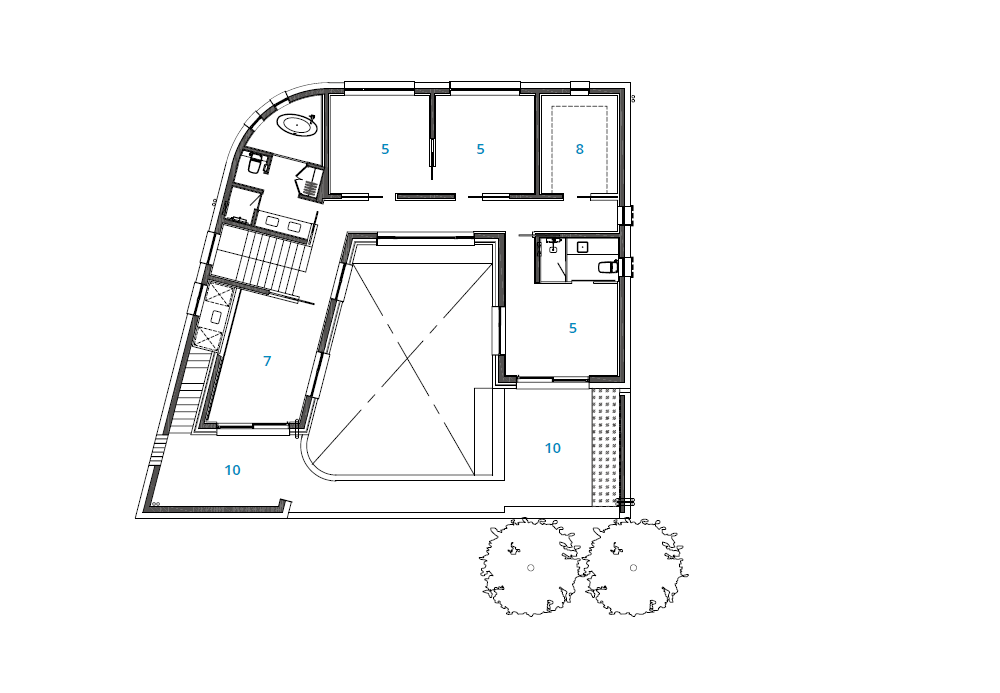
건축가는 배치 아이디어로서 ‘깊은 중정(Deep Courtyard)’을 제안했다. 대지를 두른 건물의 매스는 내부를 구획하는 경계로서의 담장의 역할과 내부화된 마당은 외부로 열려 있되 조용하고 사적인 풍경이 된다. 2층의 동남 측 매스를 비워냄으로써 빛이 지속해서 거실과 방의 깊숙한 지점까지 시곗바늘처럼 회전하며 비춘다.
PROTECTION WALL & INTRUSION LOOP
외부로 닫히고 내부로 열린 건축물의 향은 사생활이 외부로 노출되는 것을 최소화한다. 중정에 면한 중심공간의 1층은 거실, 2층은 두 아이를 위한 방이며, 현관에서 계단을 통해 아이들의 방을 지나 안방으로 이어진다. 서재는 거실과 다이닝을 지나 깊숙히 자리하지만, 한옥에서의 사랑방처럼 현관에서 주택의 내부공간을 스치지 않고 바로 접근할 수 있다. 2층의 외부 발코니는 서측의 가족실과 동측의 안방을 브릿지 형태로 연결하며 아래층에는 현관과 서재를 연결하는 캐노피가 된다. 연결된 발코니는 주택 내 개별 공간의 프라이버시 경계를 허무는 무한 반복 루프(loop)가 된다. 루프가 개인별로 사유화되어 나눠질 수 있는 공간을 유연화하는 고리로 가족 사이의 친밀한 관계에 기여할 것이다.











건축가 더사이트건축사사무소
위치 경기도 김포시 운양동
용도 단독주택
대지면적 359.60㎡
건축면적 179.50㎡
연면적 272.69㎡
규모 지상 2층
건폐율 49.92%
용적률 75.83%
설계기간 2021. 2. - 9.
시공기간 2022. 4. - 2023. 1.
준공 2023. 1.
대표건축가 전병헌
프로젝트건축가 전미숙
디자인팀 김운주
구조엔지니어 은구조기술사사무소
기계엔지니어 (주)피씨엠글로벌
전기엔지니어 (주)건창기술단
시공 (주)떼오하우스종합건설+본집
발주자 홍소영
사진작가 배지훈, 전병헌
해당 프로젝트는 건축문화 2023년 6월호(Vol. 505)에 게재되었습니다.
The project was published in the June, 2023 recent projects of the magazine(Vol. 505).
June 2023 : vol. 505
Contents : Records ‘Design Competition’, Seoul’s Dreams to Have a Global Urbanscape 서울시, ‘디자인 공모’ 첫 도입, 세계적인 도시경관을 꿈꾸다 <SKY PROJECT> Pavilion, Open to the Seoul <하늘소所>, 서울을 향
anc.masilwide.com
'Architecture Project > Single Family' 카테고리의 다른 글
| HOUSE IN ABENO (0) | 2023.09.11 |
|---|---|
| H-house (0) | 2023.09.07 |
| INNER GARDEN HOUSE (0) | 2023.09.06 |
| CAMPout (0) | 2023.09.05 |
| HOUSE OS (0) | 2023.09.05 |
마실와이드 | 등록번호 : 서울, 아03630 | 등록일자 : 2015년 03월 11일 | 마실와이드 | 발행ㆍ편집인 : 김명규 | 청소년보호책임자 : 최지희 | 발행소 : 서울시 마포구 월드컵로8길 45-8 1층 | 발행일자 : 매일



