
Three strings
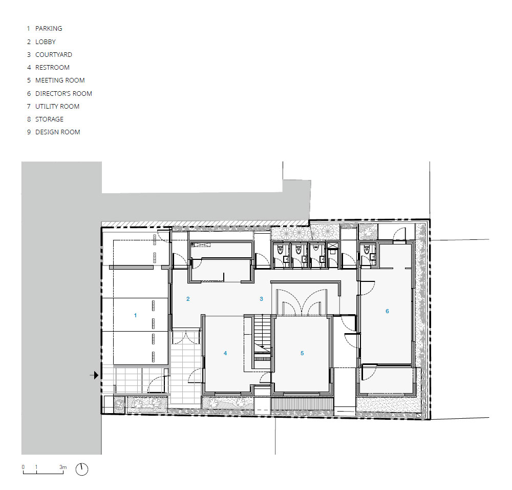
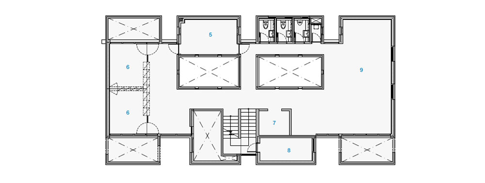
The given task was to design a project named "Samhyeon," which means three strings, connecting the three elements: mass, space, and light. Three gaps were created within a rectangular mass placed on a rectangular site. These gaps allowed various-sized spaces within the box to overlap and intersect, connected by light. As a place of life, the workplace, provides a space where momentary time, seasons, and weather can be experienced directly and indirectly. The plan's goal was to express the light flowing into this space of life both vertically and horizontally.
Behind the plot in Gwangandaegyo is Geumnyeon Mountain, shaped like a lotus flower, with an elevation of 415 meters. In front lies the expansive Gwangalli Beach. The plot is located at an intermediate point on a gentle slope that offers a view of the sea. This place is a tranquil residential area where one can experience the warm sunshine and gentle breeze all year round. The nearby environment, characterized by minimal noise and a lush landscape, naturally creates an atmosphere conducive to focused work.
The shape of the site is a long square plot adjacent to a 6-meter road, and considering the surrounding residential area, it was designed as a low-rise workspace with two stories. The meaning of the architect's company name, "Samhyeon," was developed through an abstract approach, the segmentation of mass and the inflow of light, with an intention to avoid direct communication as much as possible. The form of the mass is a square, segmented, and penetrated, while the interior and exterior finishes are limited to monotonous exposed concrete, choosing a restrained approach that allows the senses to focus on the size and spatial qualities that the space offers. Three elements were used for segmentation and penetration: the empty exterior space remaining from the site to the building, variously sized internal square spaces, and the fillng light in between. These three elements choreograph various sequences along the entire interior and exterior circulation of the building, enabling changes in light over time and seasonal variations to enhance the changes in the sequences. Various attempts were proposed for the permeation methods inside and outside to facilitate this.
This office design project allowed the architects to personally design their own workspace, enabling them to contemplate the space in which they work. It is hoped that the design of this space will provide the architects who use it with an experience that stimulates a multitude of thoughts.

세 개의 현(絃)
세 개의 현(絃)을 의미하는 ‘삼현’이라는 이름을 매스, 공간과 연결지어 디자인하는 것이 주어진 과제였다. 직방형 형태의 대지에 놓인 직방형의 매스를 두고, 그곳에 3개의 틈을 만들어 box 공간의 다양한 사이즈의 공간이 중첩하고 겹치는 틈을 빛으로 연결했다. 건축인으로서 삶의 공간인 일터는 순간적인 시간과 계절, 그리고 날씨를 직간접적으로 경험할 수 있는
장소로 제공된다. 이러한 삶의 공간에 수직, 수평으로 새어 들어오는 빛을 표현하는 것이 계획 목표였다.
광안동에 있는 대지의 뒤로는 해발고도 415m의 연꽃 형상의 금련산이, 앞으로는 탁 트인 광안리 해수욕장이 있다. 해당 대지는 바다를 조망할 수 있는 완만한 경사지의 중간 지점에 있다. 이곳은 사계절 따뜻한 햇살과 부드러운 바람을 경험 할 수 있는 조용한 주거지역으로, 소음이 거의 없는 인근 환경과 녹음이 우거진 동네의 풍경은 작업에 몰두할 수 있는 분위기를
자연스럽게 조성한다.
대지의 형상은 6m 도로에 접한 긴 정방형 대지이며 주변이 주거지역인 점을 감안해 2층 이내의 저층형 업무공간으로 구성했다. 건축가의 회사 이름인 ‘삼현’의 의미는 매스의 분절과 빛의 유입과 같은 추상적인 접근방식으로 부여하되, 직접적인 전달은 가급적 피하고자 하였다. 매스의 형태는 정방형을 분절과 관통으로 제한하고, 내·외부의 마감재는 노출콘크리트의 모노톤으로 제한하여 공간이 주는 크기와 공간감에 감각이 집중할 수 있는 절제된 방식을 선택하였다. 분절과 관통에 사용한 요소로는 대지에서 건물로 인해 남아있는 빈 외부 공간, 다양한 크기의 정방형 내부 공간, 그 사이의 틈에 채워진 빛의 세 가지의 요소로 정리할 수 있다. 이 세 가지 요소는 건축물의 입구부터 전체의 내외부 동선을 따라 다양한 시퀀스를 연출하고, 시간의 흐름에 따른 빛의 변화와 계절의 변화가 시퀀스의 변화를 촉진할 수 있도록 내외부의 침투방식에 대해 다양한
시도를 제안했다.
이번 사옥설계 작업은 건축가가 본인의 작업 공간을 직접 설계하며 건축가가 일하는 공간에 대해 고민해 볼 수 있었다. 이 공간을 사용하는 건축가들에게 공간을 통해 많은 생각이 일어나는 경험을 제공할 수 있기를 기대한다.

















건축가 (주)삼현도시종합건축사사무소
위치 부산광역시 수영구 장대골로52번길 6
용도 근린생활시설
대지면적 357.2㎡
건축면적 214.16㎡
연면적 390.87㎡
규모 지상 2층
건폐율 59.96%
용적률 100.93%
설계기간 2020. 3. - 11.
시공기간 2021. 1. - 8.
준공 2021. 7.
대표건축가 김용남
프로젝트건축가 김용남
구조엔지니어 SJ엔지니어링
기계엔지니어 (주)세종기술단
전기엔지니어 (주)세종기술단
시공 (주)도우건설
발주자 (주)에스케이에스스페이스
사진작가 윤준환
해당 프로젝트는 건축문화 2023년 4월호(Vol. 503)에 게재되었습니다.
The project was published in the April, 2023 recent projects of the magazine(Vol. 503).
April 2023 : vol. 503
Contents : Records 데이비드 치퍼필드, 2023년 프리츠커상 수상 테크놀로지와 디지털로 설계된 강소도시를 만나다 : NEWS / COMPETITION / BOOKS : SKETCH How to Capture the Moment of LIFE / Damon Kowarsky 삶의 순간을 포
anc.masilwide.com
'Architecture Project > Office' 카테고리의 다른 글
| vip.com Headquarter (0) | 2023.06.16 |
|---|---|
| Innovation Center for High-Performance Medical Devices (0) | 2023.06.15 |
| Klouboucká lesní Headquarters (0) | 2023.06.13 |
| UNNO HOUSE (0) | 2023.06.12 |
| TOKYO MIDORI LABO. (0) | 2023.06.09 |
마실와이드 | 등록번호 : 서울, 아03630 | 등록일자 : 2015년 03월 11일 | 마실와이드 | 발행ㆍ편집인 : 김명규 | 청소년보호책임자 : 최지희 | 발행소 : 서울시 마포구 월드컵로8길 45-8 1층 | 발행일자 : 매일



