

VIP닷컴의 본사는 온라인 기업의 새 주소를 보여주는 건축물이다. VIP닷컴은 중국 3대 인터넷 쇼핑몰로 계속해서 성장하는 회사 규모에 따라 광저우 파저우 지역의 인터넷혁신지구에 새로운 본사를 지었다. VIP닷컴은 활발하면서도 평행한 조직 구조를 가지고 있다. 건축가는 이런 조직 구조의 특징을 본사 건축물에 반영했다. 또한, 시대 흐름에 발 빠르게 반응해야
하는 인터넷 쇼핑몰의 성격상, 다양한 활동들이 일어날 수 있는 공간이 사용 가능하도록 크고 유연한 공간이 필요했다.
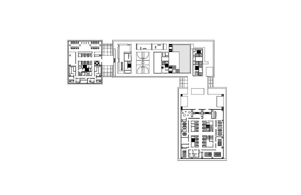
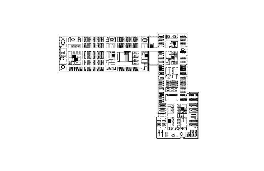
건축가는 각각의 층마다 강과 도시를 가로지르는 매력적인 전망을 볼 수 있는 업무 공간들을 만들었다. 대지는 도로로 분리된 3개의 필지를 합친 모양이다. VIP닷컴 본사는 10층 높이의 빌딩이 도로에 걸쳐서 연결된 모습이다. 건축물은 사용 용도에 맞게 몇 개의 층에서 절개 부분을 가지고 있다. 첫 번째 절개 부분은 4층에서 나타난다. 넓게 트인 야외 공간은 외부와 내부 공간이 혼합되어, 손님과 직원들을 위한 회의실과 전시 공간, 조리 공간 등을 포함한다. 주장강과 마주하고 있는 공간은 공용 플랫폼으로 구성됐다. 넓은 스탠드식 계단이 강변, 동쪽의 공원과 시각적으로 연결된다. 입주 회사들을 위한 업무 공간은 다양한 공간적 변화에 적응할 수 있도록 넓고 개폐 가능한 문이 설치되어 있다. 각 층의 로비와 이어지는 대형 계단은 업무 공간 사이의 수직적 연결을 만들고, 강연을 하거나 다수의 팀이 함께 협업할 수 있는 공간으로 쓰일 수 있다.
외벽 부분은 천장부터 바닥까지 내려오는 유리 커튼월로 마감됐다. 내부가 각각의 다른 업무 공간으로 사용되더라도 바깥에서 봤을 때 중간 절개 부분 외에 통일된 것 같은 모습으로 보이도록 의도한 것이다. 건물의 파사드에는 가로 층마다 조명을 설치하여 건물을 밝혀준다.













건축가 gmp Architects
위치 Guangzhou, China
용도 오피스, 복합건물
연면적 165,355㎡
시공기간 2016 - 2020
준공 2020
대표설계 Meinhard von Gerkan and Stephan Schutz with Nicolas Pomranke
공모전 책임자 Clemens Kampermann
프로젝트 책임자 Clemens Kampermann
프로젝트 부책임자 Tobias Keyl
설계팀 (공모참여) Jan Peter Deml, Thomas Muncke, Dimitri Philippe, Burkhard Pick, Anastasiya Vitusevych, Thilo Zehme, Yin Zhang, Katarzyna Zaczek / (실시설계) Andreas Gotze, He Duoshu, Astrid Jahncke, Karolina Korona, Xuda Liu, Giuseppe Malfona, Simone Matthey de L’Endroit, Andreas Maue, Pan Xin, Dimitri Philippe, Andrea Pisanu, Kristin Schoyerer, Tang Zihong, Alberto Vallejo, Zeng Yahan, Zhang Qiyi, Yin Zhang, Wei Zhilin
사업관리팀(중국) Xu Ji, Qin Wei
협업사 Guangzhou Design Institute
조경설계 Rehwaldt Landschaftsarchitekten; Shenzhen LYF Landscape Scenery Design CO.
조명설계 Design Schlotfeldt Licht; GD-Lightingdesign
파사드디자인 SuP Ingenieure GmbH
발주자 vip.com
사진작가 CreatAR Images
해당 프로젝트는 건축문화 2023년 4월호(Vol. 503)에 게재되었습니다.
The project was published in the April, 2023 recent projects of the magazine(Vol. 503).
April 2023 : vol. 503
Contents : Records 데이비드 치퍼필드, 2023년 프리츠커상 수상 테크놀로지와 디지털로 설계된 강소도시를 만나다 : NEWS / COMPETITION / BOOKS : SKETCH How to Capture the Moment of LIFE / Damon Kowarsky 삶의 순간을 포
anc.masilwide.com
'Architecture Project > Office' 카테고리의 다른 글
| LEGO Campus (0) | 2023.06.20 |
|---|---|
| DJI Sky City (0) | 2023.06.19 |
| Innovation Center for High-Performance Medical Devices (0) | 2023.06.15 |
| Samhyun HQ (0) | 2023.06.14 |
| Klouboucká lesní Headquarters (0) | 2023.06.13 |
마실와이드 | 등록번호 : 서울, 아03630 | 등록일자 : 2015년 03월 11일 | 마실와이드 | 발행ㆍ편집인 : 김명규 | 청소년보호책임자 : 최지희 | 발행소 : 서울시 마포구 월드컵로8길 45-8 1층 | 발행일자 : 매일



