
this, Kloboucká lesní, a sustainable forestry company, sought a headquarters building that would not only draw inspiration from traditional forestry practices but also explore the possibilities of new technologies, allowing them to adapt flexibly to future developments and changes. Their mission is to demonstrate a holistic approach to the environment and sustainable construction using cutting-edge technology through various activities. The newly constructed headquarters building is designed to embody these values and serve as a space for creative work, innovation, and forward-thinking.
The overall design of the building reflects an environmentally friendly and minimalist character, combined with state-of-the-art technology. It is situated amidst natural surroundings of lush vegetation and water, with the beautiful Pláňavský Ridge as a backdrop, facing north towards the nearby village. The building has been strategically placed in a prominent location within the industrial complex, making its overall volume stand out compared to the other industrial factories in the complex.
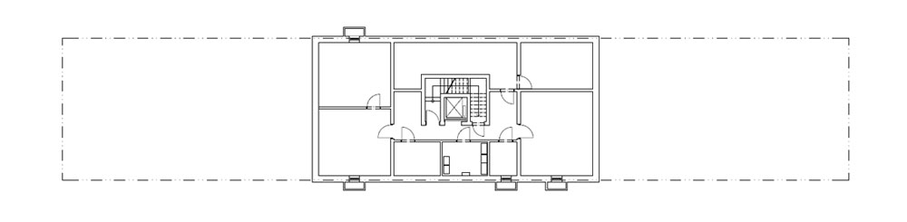
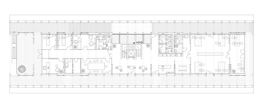
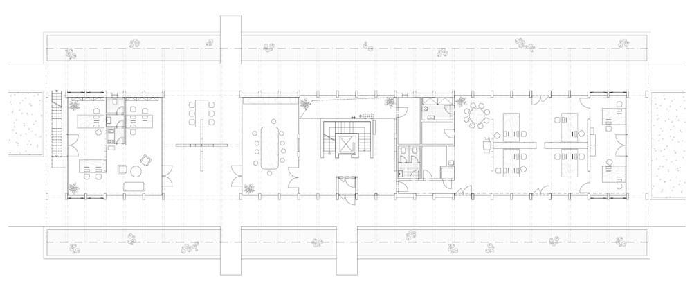
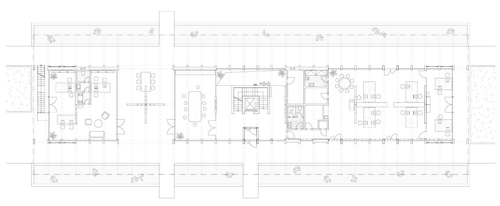
The primary internal load-bearing structure of the building forms the modular envelope of the building, allowing for flexibility in the use of interior spaces, even as the headquarters experiences rapid growth. The load-bearing structure of the building is constructed entirely from timber produced in the nearby Kloboucká lesní factory. Timber, despite being one of the oldest and simplest materials, undergoes a highly modern production process. The company's flagship product, adhesive laminated timber, is used for the building frame, and the repeated traditional frame shapes visible on the exterior create a long and elegant volume.

현대의 목재 산업은 기후변화로 인해 급격한 변화를 겪고 있다. 이에 따라 클로우보우츠카 레스니(Kloboucká lesní) 사는 지속가능한 임업을 위해 전통적인 임업에서 영감을 찾는 것과 동시에 새로운 기술의 가능성을 탐구하며, 미래의 발전 가능성과 변화에 유연하게 대비하기 위한 본사 건물을 요구했다. 이들의 사명은 다양한 활동을 통해 환경에 대한 전체론적인
접근방식과 최첨단 기술을 사용한 지속가능한 건설의 잠재력을 입증하는 것으로, 새롭게 지은 본사 건물은 이러한 가치를 담아 창의적인 작업과 업무,혁신을 위한 공간으로 설계되었다.
전체적인 건물의 디자인은 환경친화적이고 간결한 특징과 최첨단의 기술을 반영하였다. 아름다운 플라냐브스 (Pláňavský) 능선을 배경으로 한 초목과 물로 둘러싸인 자연환경에 배치되었으며, 인근의 마을을 향해 북향의 파사드를 지니고 있다. 해당 건축물은 공장 단지 내에서 눈에 잘 띄는 위치를 채택하여 건물의 전체적인 볼륨이 단지의 다른 산업 홀에 비해 돋보인다.
건물의 주요 내하중 구조는 건물의 모듈식 외피를 형성하고 있어, 본사가 급격히 성장하더라도 내부 공간을 자유롭게 조정하여 유연하게 공간을 사용할수 있게 한다. 건물의 하중 지지 구조는 인근의 클로우보우츠카 레스니 생산 홀에서 생산되는 목재로만 만들어졌다. 목재는 가장 오래되고 가장 단순한 재료이지만 생산 공정은 매우 현대적이다. 회사 포트폴리오의 주력 제품인 접착 적층 목재가 건물 프레임에 사용되었고, 외관에서 드러나는 반복되는 전통적인 모양의 프레임은 길고 우아한 볼륨을 형성한다.












건축가 Mjölk architekti
위치 체코, 브루모프-빌니체
대지면적 9,118㎡
건축면적 476㎡
연면적 1,100㎡
규모 지하 1층, 지상 2층
준공 2022
협력 (Chief engineer) Pavel Srba / (Structural engineering) Lostade CZ / (Construction supervision) Petr Vlč ek / (Concrete contractor) Michal Drga / (Wooden construction contractor) Pukýš DŘ EVOSTAVBY / (Electric engineering) Elseremo / (Mechanical engineer) Ladislav Struž ka / (Heating, plumbing) Mont SA / (Steel construction) KL TECHSTAGE / (Interior partitions and claddings) Woodyglass / (Lighting solutions) Konvič ný – Lampárna Lighting / (Landscape architecture) Atelier Partero / (Garden contractor) GISarch studio / (Flat roof solutions) Izolplast Zlí / (Pavement contractor) STRABAG / (Wooden terraces contactor) Pavel Fojtík / (Sheetmetal products) Petr Zimáč ek / (Graphic design) Lenka Mič olová
발주자 Kloboucká lesní
사진작가 BoysPlayNice
해당 프로젝트는 건축문화 2023년 4월호(Vol. 503)에 게재되었습니다.
The project was published in the April, 2023 recent projects of the magazine(Vol. 503).
April 2023 : vol. 503
Contents : Records 데이비드 치퍼필드, 2023년 프리츠커상 수상 테크놀로지와 디지털로 설계된 강소도시를 만나다 : NEWS / COMPETITION / BOOKS : SKETCH How to Capture the Moment of LIFE / Damon Kowarsky 삶의 순간을 포
anc.masilwide.com
'Architecture Project > Office' 카테고리의 다른 글
| Innovation Center for High-Performance Medical Devices (0) | 2023.06.15 |
|---|---|
| Samhyun HQ (0) | 2023.06.14 |
| UNNO HOUSE (0) | 2023.06.12 |
| TOKYO MIDORI LABO. (0) | 2023.06.09 |
| Enhako Building (0) | 2023.06.07 |
마실와이드 | 등록번호 : 서울, 아03630 | 등록일자 : 2015년 03월 11일 | 마실와이드 | 발행ㆍ편집인 : 김명규 | 청소년보호책임자 : 최지희 | 발행소 : 서울시 마포구 월드컵로8길 45-8 1층 | 발행일자 : 매일



