
Casa Rosa is a house where an architecture enthusiast and family, embarked on a second phase of life, inspired by Hermann Hesse's ideals. The house is situated in "Hesse's Garden." Over the course of a decade, the owner has cultivated "Hesse's Garden," which has become a popular spot on social media. Set against the majestic backdrop of Bukhansan Mountain, this garden seamlessly combines large protective trees with expansive lawns, drawing numerous visitors. Therefore, Casa Rosa was designed to preserve the family's privacy amidst the crowds of visitors while capturing the beauty of the landscape of Bukhansan Mountain within the home.
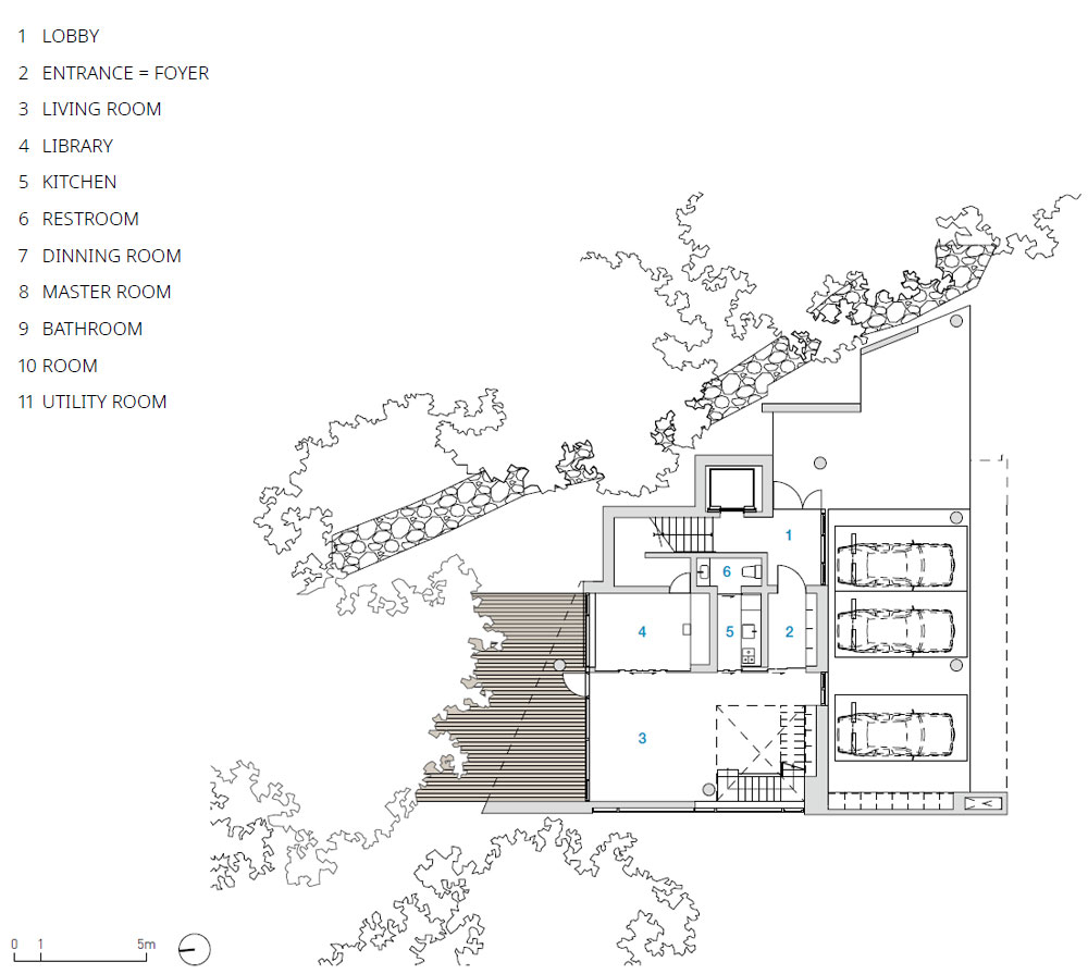
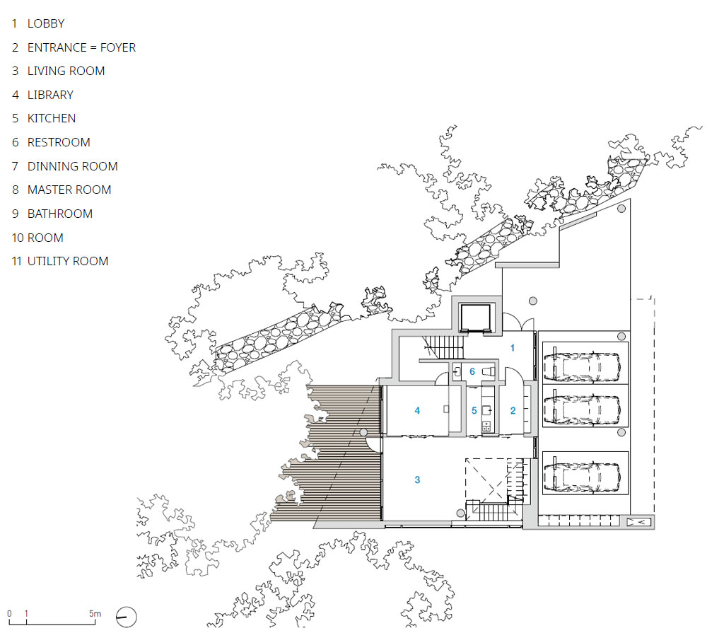
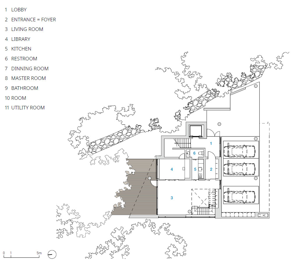
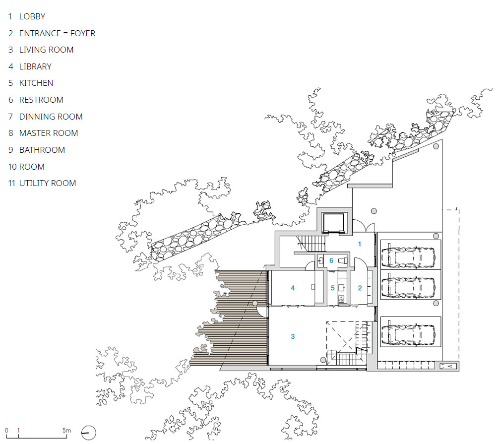
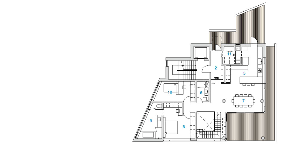
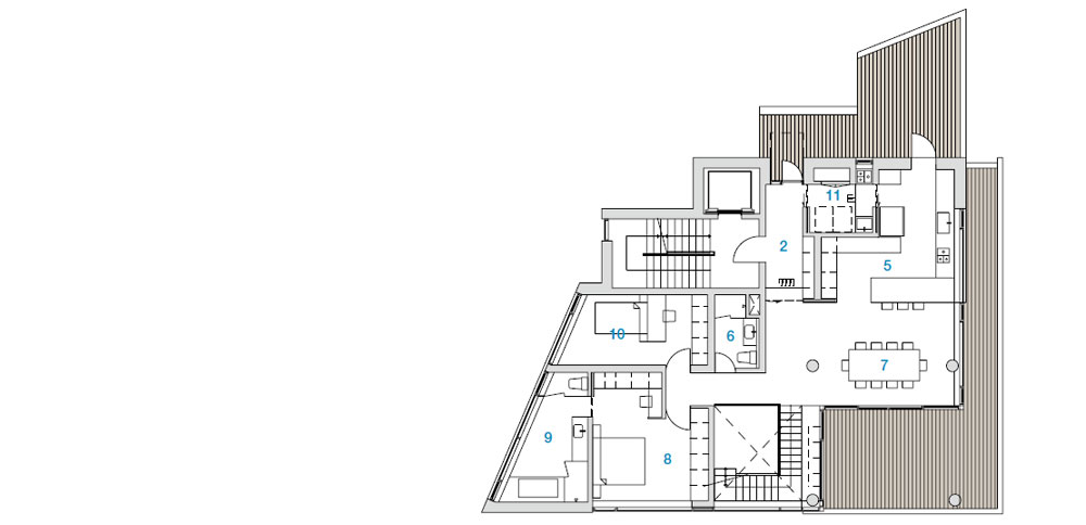
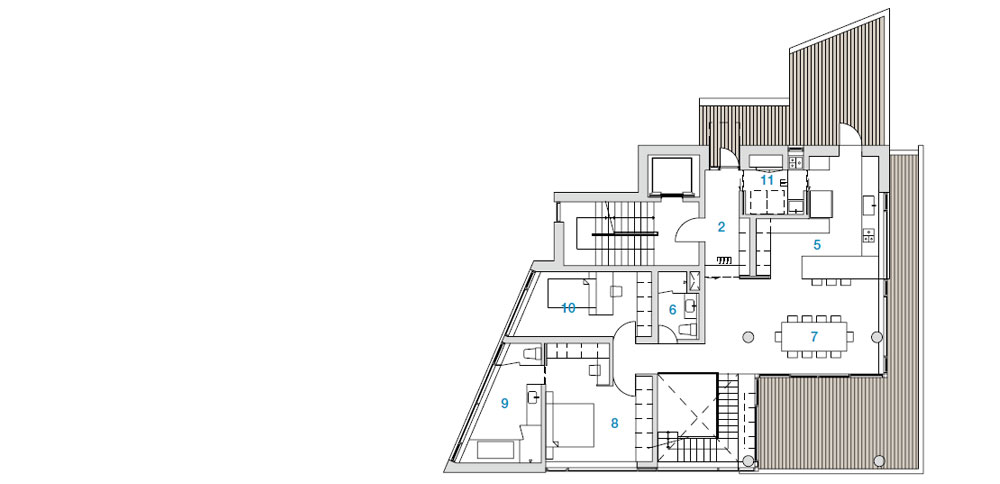
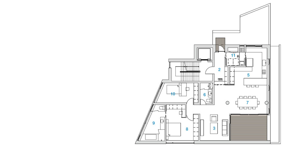
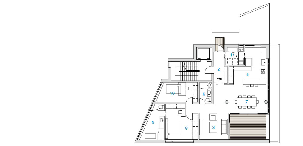
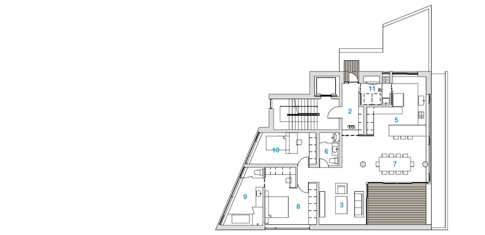
Casa Rosa is a house that offers panoramic views of the grand ridge of Bukhansan Mountain, with open vistas to the east, west, and south. To make the most of the changes in lighting from sunrise to sunset, the design incorporates various terraces on different floors. Given these terrace features, addressing privacy is essential. The terrace on the first floor, where morning sunlight pours in from the east, ensures complete privacy by using the building's structural wall on one side to block the view. The terrace on the east side of the second floor establishes a suitable boundary with the neighboring house, providing a space for small family gatherings as well as supporting kitchen functions. The west-facing terrace captures the expansive Bukhansan Mountain landscape while effectively blocking views from the outside. The terrace on the third floor features a tall outer wall to both shield external views and capture abundant southern sunlight by forming a void in the building. While the building's floor plan may appear similar between the second and third floors, the distinctively designed terraces create differences in both the interior and exterior appearances. The interior of the house has been designed with white walls and minimal wood elements, considering the introduction of various furniture and household appliances. For the exterior, white stucco serves as the primary finish material, emphasizing the building's form and dimensionality. The walls of the parking area are left in rough concrete to ensure that the white building blends with its natural surroundings as a harmonious backdrop.
This building employed an architectural strategy that translates the distinctive features of the place, experienced and felt directly by the individuals who will live here, into reality. It took the place-based memories preserved by the owner and, through six months of dialogue, transformed them into an actual building within the project budget. This resulted in a structure that is simple yet imbued with the power of an inherent narrative. Instead of merely pursuing a form or a particular style, this space was discovered through a collaborative exploration of strategies that connect with nature through dialogue. It holds a deeper significance than any other architectural work, surpassing the achievements of many architects.

카사 로사는 헤르만 헤세를 동경하는 건축주가 가족들과 함께 제2의 인생을 시작하기 위한 집으로, ‘헤세의 정원’에 자리 잡고 있다. 10여 년 동안 건축주가 가꿔온 ‘헤세의 정원’은 SNS 명소가 되었다. 웅장하게 펼쳐진 북한산을 배경으로 거대한 보호수와 넓은 잔디밭이 절묘하게 어우러져 많은 방문객이 찾는다. 따라서 카사 로사는 많은 방문객 속에서 가족들의 프라이버시를 충분히 지키며, 북한산의 풍경을 집안으로 담아내기 위해 자연을 향해 열리게끔 설계되었다.
카사 로사는 동서 남측 3면으로 열려 북한산의 장대한 능선을 파노라믹 뷰로 조망할 수 있는 집이다. 동트는 시간부터 해질녘까지 동서남북에서 서로 다른 분위기의 햇빛이 고루 비추기 때문에 층별로 서로 다른 테라스를 가질 수 있도록 설계됐다. 이러한 다양한 테라스를 지닌 특징에 따라 프라이버시 문제를 해결하는 것이 중요하다. 1층 테라스는 아침이 되면 동측 햇빛이 풍부하게 스며들며, 한쪽 면에 자리한 건물 구조 벽을 통해 사람들의 시선을 완벽히 차단하여 프라이버시를 온전하게 확보했다. 2층의 동측 테라스는 이웃집과 적절한 경계를 형성하면서 주방 보조기능과 함께 가족만의 작은 모임이 가능한 테라스다. 또한 서쪽 테라스는 서향 빛을 적절히 방어하면서 넓게 펼쳐진 북한산 풍경을 넓게 담아내고, 외부로부터 오는 시선은 차단한다. 3층 테라스는 서쪽으로 높다란 외벽을 가지고 있다. 이는 외부의 시선을 차단하면서 남측의 햇빛을 풍부히 받아낼 수 있도록 건물의 보이드를 형성한다. 건물의 평면에서는 2층과 3층은 동일해 보일 수 있으나, 각각 특색있게 연출된 테라스를 통해 내·외관에서 차이를 만든다. 집 내부는 다양한 가구와 생활가전이 들어올 것을 고려하여 백색의 벽면과 부분적인 목재만 남겨두었다. 건물의 외부는 백색 스터코를 주 마감재로 적용하여 건물의 조형성과 입체성을 강조하였으며, 주차장의 벽면은 거친 콘크리트로 남겨두어 백색의 건물이 자연 속 하나의 배경으로 남기고자 했다.
이 건물은 살아갈 개인이 이 장소에서 직접 경험하고 체감하였던 장소적 특징을 현실로 번역하여 적용하는 건축적 전략을 활용했다. 건축주의 기억에 담겨있는 장소성을 6개월간의 대화를 통해 사업 예산에 맞추어 실제적인 건축물로 구축했고, 이는 간결하지만 스토리를 내재한 힘을 가지게 됐다. 단순히 형태적으로, 아니면 어떠한 스타일을 취하기보다는 대화를 통해 자연과 접하는 전략을 함께 탐구하며 찾아낸 이 공간은 그 어떤 대가들의 건축보다도 의미가 깊다.











건축가 ㈜그룹씰
위치 경기도 양주시 장흥면 울대리 419번지
용도 근린생활시설
대지면적 8,116㎡
건축면적 229.21㎡
연면적 459.43㎡
규모 지상 3층
건폐율 11.10%
용적률 13.09%
설계기간 2020. 5. – 2021. 8.
시공기간 2021. 9. – 2022. 9.
준공 2022.9.
대표건축가 이상학
프로젝트건축가 이상학
디자인팀 박서준, 윤호성, 김은지, 강유나
구조엔지니어 SDM구조기술사사무소
기계엔지니어 성신엔지니어링
전기엔지니어 ㈜극동전기기술단
시공 라우종합건설㈜
발주자 유한회사 헤세의 정원
사진작가 남궁선
해당 프로젝트는 건축문화 2023년 4월호(Vol. 503)에 게재되었습니다.
The project was published in the April, 2023 recent projects of the magazine(Vol. 503).
April 2023 : vol. 503
Contents : Records 데이비드 치퍼필드, 2023년 프리츠커상 수상 테크놀로지와 디지털로 설계된 강소도시를 만나다 : NEWS / COMPETITION / BOOKS : SKETCH How to Capture the Moment of LIFE / Damon Kowarsky 삶의 순간을 포
anc.masilwide.com
'Architecture Project > Single Family' 카테고리의 다른 글
| Port House (0) | 2023.06.21 |
|---|---|
| House in Gein (0) | 2023.06.20 |
| Weekend Residence of Muirhead Fields (0) | 2023.06.12 |
| Villa DOORI (0) | 2023.06.09 |
| House in Chikusei (0) | 2023.06.09 |
마실와이드 | 등록번호 : 서울, 아03630 | 등록일자 : 2015년 03월 11일 | 마실와이드 | 발행ㆍ편집인 : 김명규 | 청소년보호책임자 : 최지희 | 발행소 : 서울시 마포구 월드컵로8길 45-8 1층 | 발행일자 : 매일



