
Villa Doori is a retreat located in Doori Village near the seaside, overlooking Jukdo Beach 300 meters to the east, separated by National Route 7. Jukdo Beach in Yangyang is a famous surfing destination on the east coast of Gangwon Province. The retreat is located in a small forested valley but open toward the eastern sea. The southern forest lies outside the site boundary, but can be integrated into the landscape, creating a configuration where the boundaries of space become ambiguous. The southern forest and the eastern sea become the yard of this house, transforming into scenery.
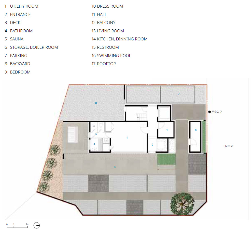
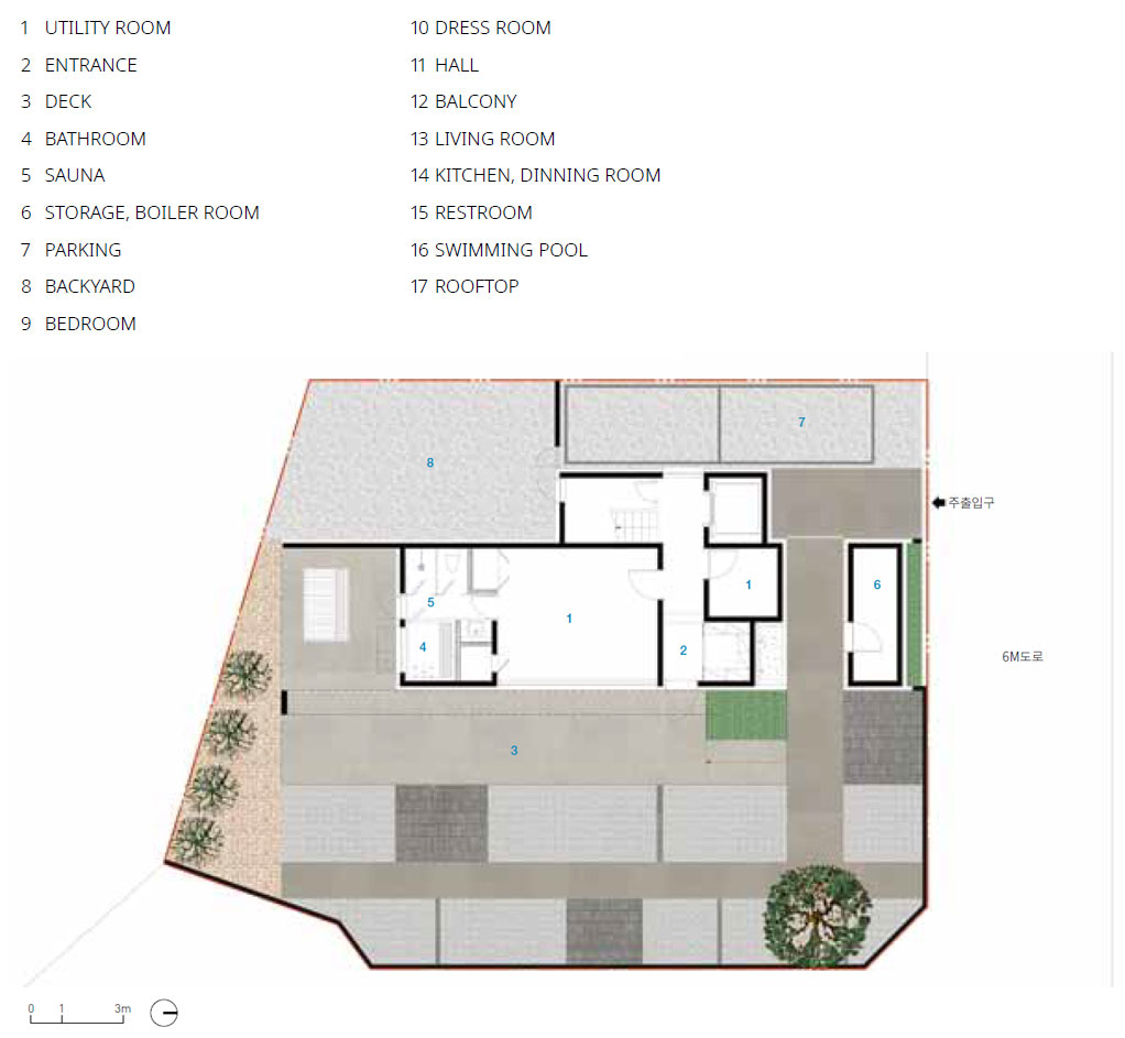
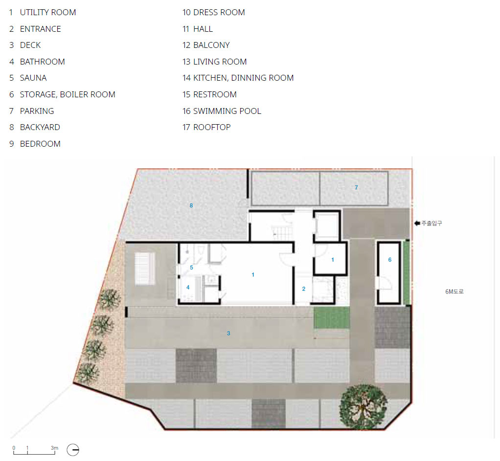
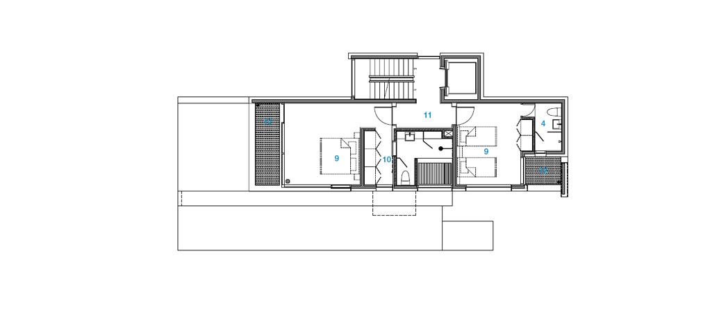
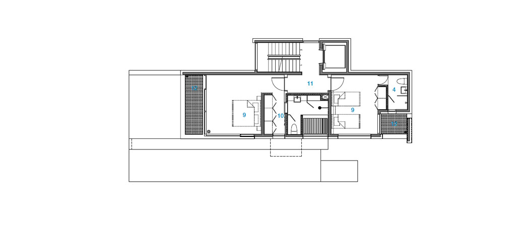
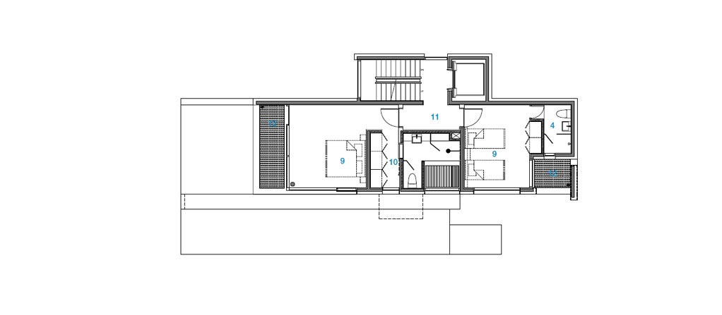
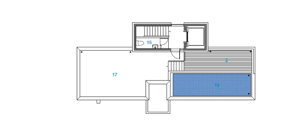
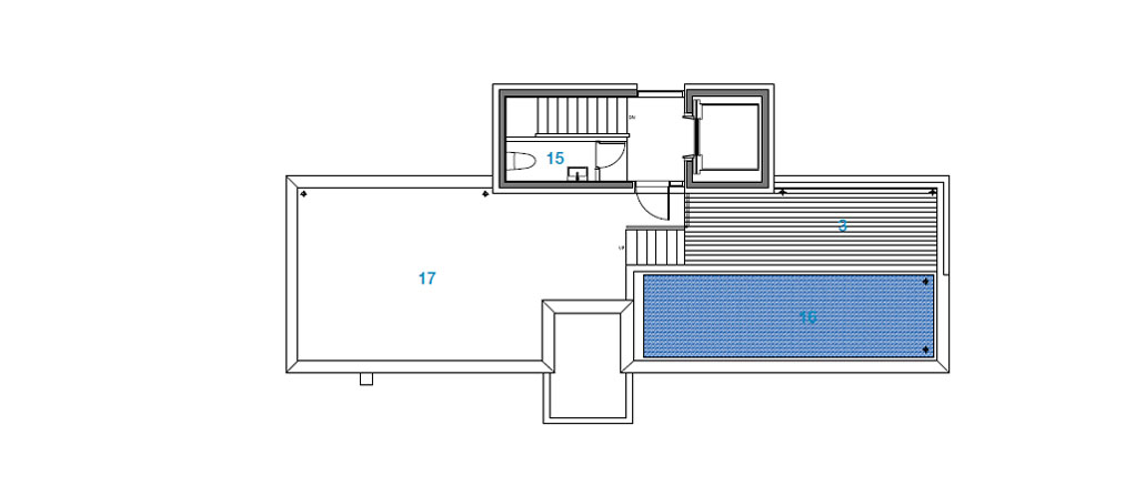
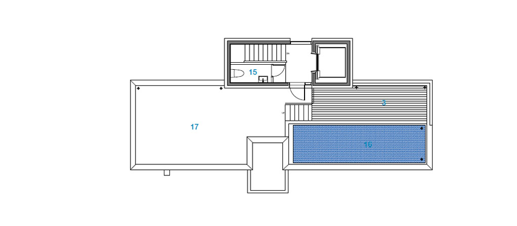
Villa Doori separates the parking area to the west of the site from the courtyard to the east with the building. Visitors pass through a piloti and traverse the courtyard to reach the entrance. On the first floor, there is a multipurpose room where the filmmaker owner can enjoy movies on a large screen, as well as a sauna and an outdoor hot tub. This space allows for enjoying private moments amidst the southern forest and the eastern seascape. Two bedrooms that open up to the southern forest and the eastern sea are located on the second floor. The sea view is visible through large windows in the bathroom, furnished with an hinoki cypress bathtub. The third floor's living and dining spaces are visually separated by a central balcony, even though it's one continuous space. The small rooftop pool features an outdoor dining area on one side, providing an opportunity to enjoy meals with a view of the sea. The building's elevation is configured with a focus on the sea view. The courtyard design replicates the front composition, creating an effect as if it's reflected in water. The courtyard and the front facade together become one landscape facing the sea.
The villa is a separate house built in a picturesque location, away from the hustle and bustle of daily life, where one occasionally stays to relax. In other words, it signifies a space for taking a break, stepping away from the routine, reflection, and calming one's emotions. The walls and floors created the space, while sunlight, wind, forests, and the sea shaped the architecture. Now, as per the owner's wishes, it is hoped that in this extraordinary place, they can contemplate their everyday life from a different perspective.

별장두리는 바닷가 근처의 두리마을, 7번 국도를 사이에 두고 300m 떨어진 동쪽 죽도해변을 바라보는 휴식처다. 양양의 죽도해변은 강원도 동해안의 서핑 명소다. 대지는 동쪽의 바다를 제외하고 삼면이 작은 숲인 계곡에 위치한다. 남쪽의 숲은 대지 경계의 밖이지만 풍경을 마당으로 가져와 공간의 경계가 모호해지는 구성을 할 수 있다. 남쪽의 숲과 동쪽의 바다가 이 집의 마당이 되고 풍경이 된다.
별장두리는 대지 서쪽의 주차장과 동쪽의 마당이 건물로 분리된다. 필로티로 건물을 통과하고 마당을 지나야 현관에 도달한다. 평면은 단일 레이어 구성이다. 1층에는 영화 제작자인 건축주가 큰 화면으로 영화를 즐길 수 있는 다목적실과 사우나, 야외욕조가 있다. 이곳은 남쪽숲과 동쪽의 무빙월로 사적인 공간을 즐길 수 있는 곳이다. 2층은 침실 2개가 있으며, 침실은 남쪽 숲과 동쪽 바다로 열려있다. 욕실의 편백나무 욕조는 넓은 창으로 바다를 끌어들인다. 3층의 거실과 다이닝 공간은 하나의 공간이나 중앙의 발코니가 있어 시각적으로 구분된다. 옥상의 작은 풀은 한쪽에 야외 다이닝 공간이 있어 식사와 함께 바다 풍경을 즐길 수 있는 곳이다. 단면은 바다 풍경을 위한 평면적 구성이다. 마당 디자인은 입면 구성을 그대로
복사하여 마치 물에 반사되는 효과를 만든다. 마당과 입면이 바다를 향해 하나의 풍경이 된다.
별장(Villa)은 삶과 일상에서 벗어나 경치 좋은 곳에 따로 지어 놓고 때때로 묵으면서 쉬는 집을 말한다. 즉 일상에서 벗어나 자신을 되돌아보거나 자신의 마음을 다스리는 쉼을 위한 공간이란 의미다. 벽과 바닥이 공간을 만들었고 햇빛과 바람, 숲과 바다가 건축을 만들었다. 이제 건축주의 바람대로 비일상의 공간에서 일상을 관조하길 기대한다.














건축가 유앤무건축사사무소
위치 강원도 양양군 현남면 두리
용도 단독주택
대지면적 424.00㎡
건축면적 84.76㎡
연면적 252.04㎡
규모 지상 4층
건폐율 19.99%
용적률 59.44%
설계기간 2021. 5 - 10
시공기간 2021. 11 - 2022. 6
준공 2022. 6
대표건축가 유우열
프로젝트건축가 권경태
디자인팀 배현석
구조엔지니어 에이비구조
기계엔지니어 MK청효
전기엔지니어 MK청효
시공 동우디엔씨
사진작가 염승훈
해당 프로젝트는 건축문화 2023년 4월호(Vol. 503)에 게재되었습니다.
The project was published in the April, 2023 recent projects of the magazine(Vol. 503).
April 2023 : vol. 503
Contents : Records 데이비드 치퍼필드, 2023년 프리츠커상 수상 테크놀로지와 디지털로 설계된 강소도시를 만나다 : NEWS / COMPETITION / BOOKS : SKETCH How to Capture the Moment of LIFE / Damon Kowarsky 삶의 순간을 포
anc.masilwide.com
'Architecture Project > Single Family' 카테고리의 다른 글
| CASA ROSA (0) | 2023.06.12 |
|---|---|
| Weekend Residence of Muirhead Fields (0) | 2023.06.12 |
| House in Chikusei (0) | 2023.06.09 |
| House in Shiki (0) | 2023.06.08 |
| House in Nobeyama (0) | 2023.06.01 |
마실와이드 | 등록번호 : 서울, 아03630 | 등록일자 : 2015년 03월 11일 | 마실와이드 | 발행ㆍ편집인 : 김명규 | 청소년보호책임자 : 최지희 | 발행소 : 서울시 마포구 월드컵로8길 45-8 1층 | 발행일자 : 매일



