
Cheongdam Watch is a select shop for luxury watchs.
The client is a YouTube creator who introduces luxury watches and needed an offline hub to work beyond the online platform. We wanted to create the prominent space among many luxury watch shops in the alley across from Apgujeong Galleria Department Store.
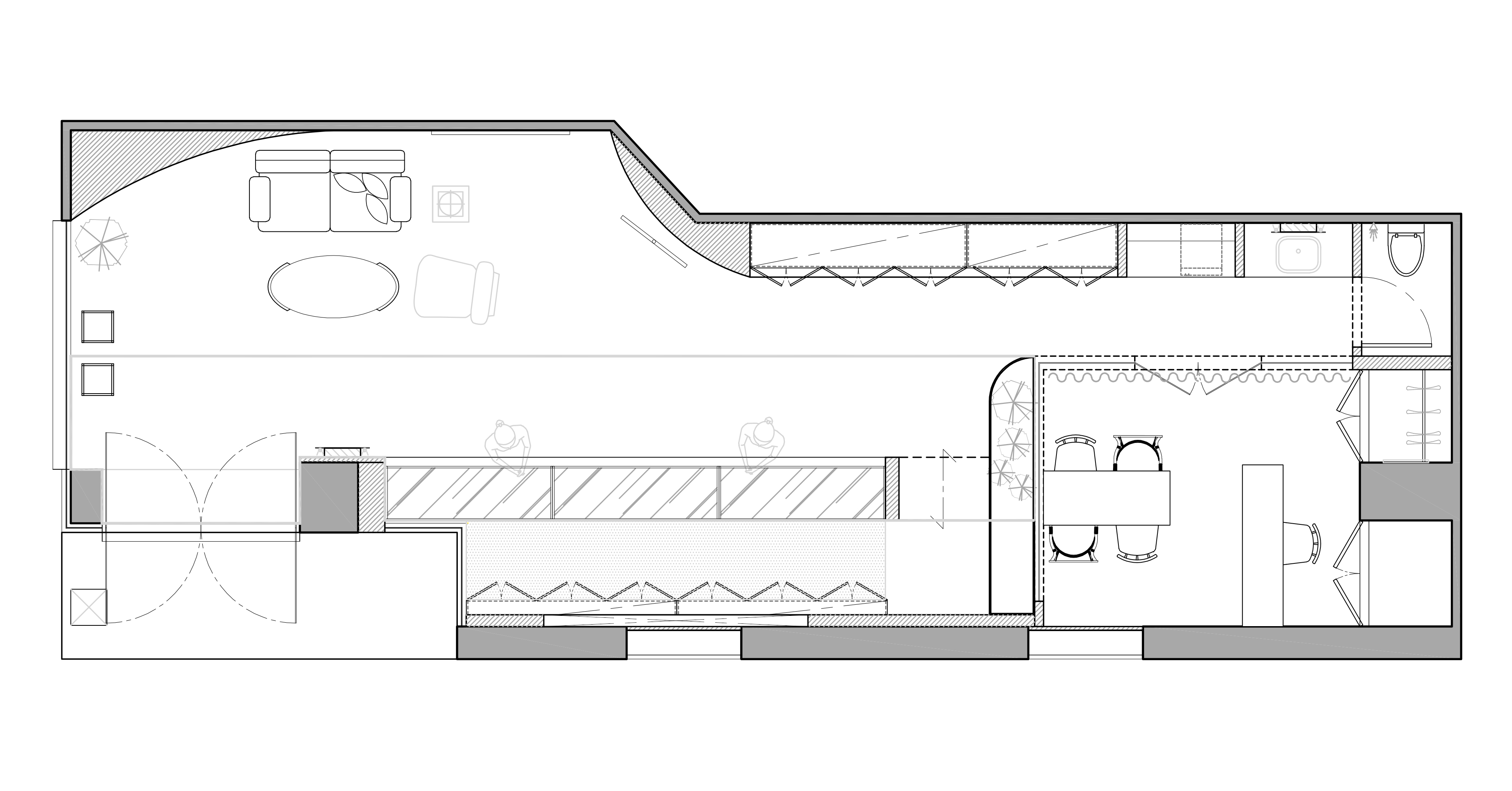
The place is located in a corner of the first floor of the building, the facade is expressed that the interior can be seen well using two sides. Straight lines and glass materials were used, excluding decorations to make the product more visible.
We wanted to make a place that reveals functional and luxurious minimalism. Our design was to have the least color, so people can concentrate on the materials and color of each product. Based on the neutral palette, various textures of finishing materials were used.
The lounge is characterized by asymmetric curved walls. Depending on the shape of the rectangular store, a horizontally long showcase was placed in the center of the space to give the comfortable movement of staff and customers. The windows were boldly blocked with walls to create an immersive purchasing experience. A narrow and long type of Barrisol lighting was constructed over the showcase to emphasize depth of the space.
Between the private room and the showroom, we put elements of nature so that people can enjoy the small scenery in both spaces. On one wall, storage and washbasin space are organized in a minimal form to utilize the space functionally. Two selfie spaces, allow customers to experience the space in multiple ways. We hope that the intended spatial experience will be conveyed to the customers.

청담워치는 세계적인 하이엔드 시계를 큐레이션하여 선보이는 시계 편집숍입니다.
클라이언트는 명품 시계를 소개하는 유튜브 크리에이터로 온라인 플랫폼을 넘어 새롭게 활동할 오프라인 거점을 필요로 했습니다. 우리는 압구정 갤러리아 백화점 맞은편 골목에 있는 많은 명품 시계 편집숍들 중 가장 팬시한 공간을 만들고자 했습니다.
건물의 1층 코너면에 위치한 사이트의 특성상 두 면을 이용하여 내부가 잘 보이도록 파사드를 표현하였습니다. 제품이 잘 드러날 수 있도록 장식은 배제하고 직선과 유리 소재를 사용했으며, 기존 간판을 철거 후 건물의 석재 면을 금속 작업을 통해 면적을 확보하여 파사드를 확장시켰습니다.
입구 앞 전실부터 내부까지 이어지는 바닥은 동일한 마감재로 단절된 공간의 연결성을 의도했습니다.
내부는 기능적이고 고급스러운 미니멀리즘이 드러나는 공간으로 표현하고자 했습니다. 각 제품이 지닌 소재와 컬러에 집중할 수 있도록 공간의 색은 최소한으로 사용했으며, 부드러운 빛의 연출을 통해 차분한 공기감을 형성하는 것에 집중하였습니다. 뉴트럴 팔레트를 기본으로 스페셜 도장, 메탈, 대리석의 다양한 질감의 마감재를 통해 변주를 주었습니다.
입구를 지나 마주하는 첫 공간인 라운지는 비대칭의 곡선을 사용한 벽체로 특색있게 그렸습니다. 직사각형인 매장의 형태에 따라 가로로 긴 쇼케이스를 공간의 중심에 두어 스탭과 고객의 편안한 동선을 유도했고 창은 과감하게 벽으로 막아 몰입감 있는 구매 경험이 이루어 지도록 했습니다. 작은 면적인 매장의 특성상 개방감을 위해 벽체를 통한 공간 구획은 지양했으며, 쇼케이스 위로 좁고 긴 형태의 광천정을 구성해 깊이감을 강조했습니다.
계약이 이루어지는 프라이빗 룸과 쇼룸 사이에는 자연의 요소를 두어 두 공간에서 작은 풍경을 향유하도록 했습니다. 한쪽 벽면에는 수납, 탕비, 파우더 공간을 미니멀한 무드를 해치지 않도록 매입하여 기능적으로 활용하였습니다. 라운지와 쇼케이스를 배경으로 하는 두 개의 포토존은 고객이 공간을 다각적으로 경험할 수 있도록 합니다. 이러한 계획을 통해 기능에 충실하되 기대감을 조성하는 파사드와 집중도 있는 구매 경험을 선사하는 공간을 만들고자 했습니다.













Design : DESIGN STUDIO MONO
Location : 1F, 22, Apgujeong-ro 54-gil, Gangnam-gu, Seoul, Republic of Korea
Site area : 73.47㎡
Completion : 2023
Photographer : Seeun Park
'Interior Project > Retail' 카테고리의 다른 글
| Fuzhou Vanke Golden Field of International Reception Center (0) | 2023.04.21 |
|---|---|
| Towpath Shop (0) | 2023.04.19 |
| Gajo Space (0) | 2023.04.07 |
| All That Jazz (0) | 2023.03.20 |
| All classic pilates (0) | 2023.03.17 |
마실와이드 | 등록번호 : 서울, 아03630 | 등록일자 : 2015년 03월 11일 | 마실와이드 | 발행ㆍ편집인 : 김명규 | 청소년보호책임자 : 최지희 | 발행소 : 서울시 마포구 월드컵로8길 45-8 1층 | 발행일자 : 매일



