
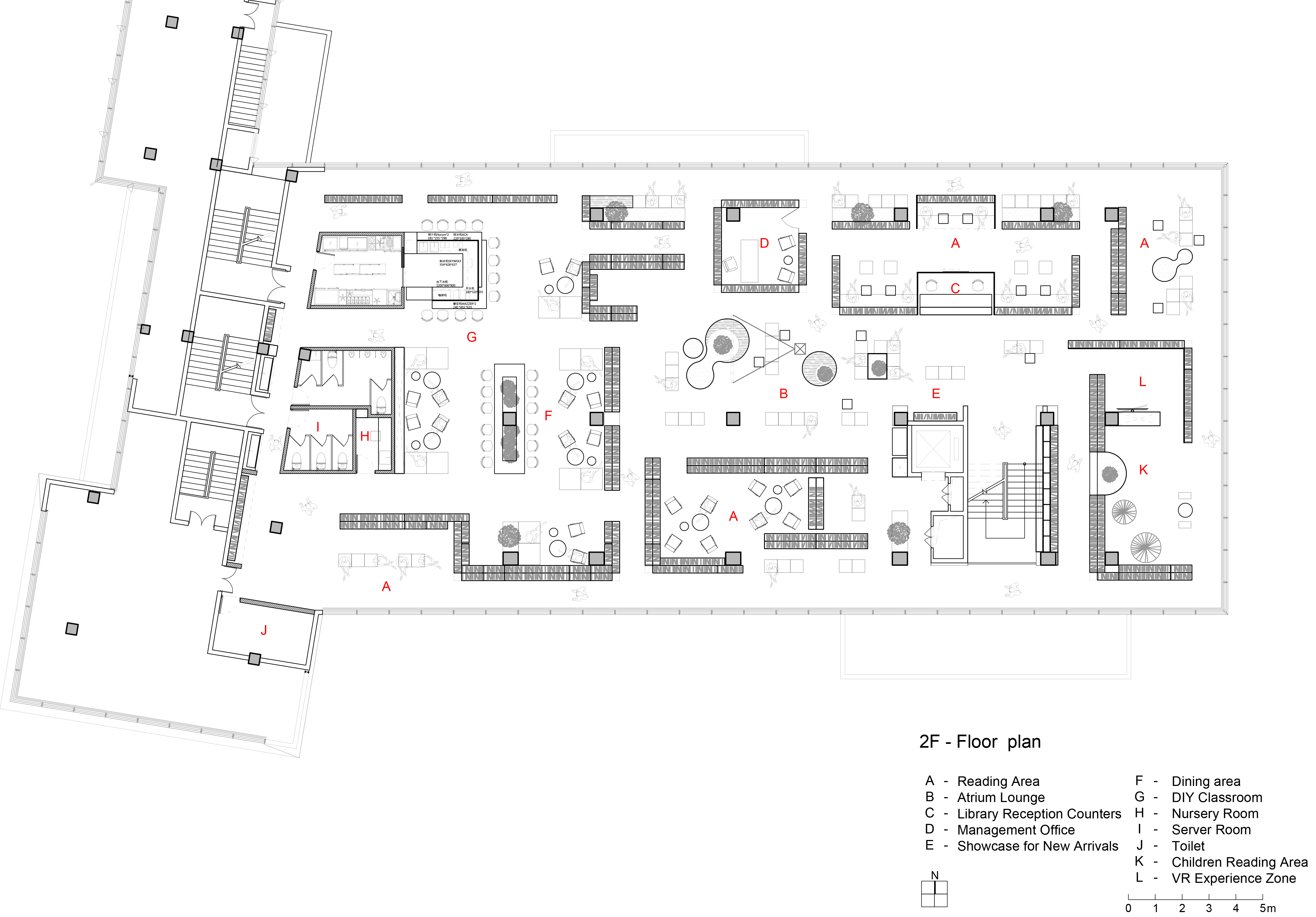
Waterfrom Design, responsible for the design of the Fuzhou Vanke Golden Field of the International Reception Center, considers "gathering" as the main concept and has created a social space where the emotional exchanges of modern society are able to take place. People can naturally gather, stay, and communicate here. Since Building No. 2 was intended to be used for cultural activities of the Fuzhou Public Library and community in the future, it needed to accommodate a large number of books. However, unlike other libraries that use bookshelves for display, this space has many bookshelves arranged in an organic form through design. This library becomes a space in the neighborhood with fences, roads, community courtyards, and squares for events. Accordingly, cultural activities are naturally carried out in the second-floor area.

국제리셉션센터의 푸저우 반케 골든 필드(Fuzhou Vanke Golden Field) 디자인을 담당하고 있는 워터프롬 디자인(WATERFROM DESIGN)은 “모임”을 주요 콘셉트로 여기며, 이곳에 현대 사회의 감정적 교류가 이루어지는 사회적 장을 구축했다. 이곳에서 사람들은 자연스럽게 머무르고, 모이고, 소통할 수 있다. No. 2 빌딩이 미래에 푸저우 공공도서관과 커뮤니티의 문화 활동을 위한 곳으로 사용될 예정이었기 때문에 이곳은 많은 책을 수용할 수 있어야 했다. 하지만 이곳은 책꽂이의 진열을 사용한 다른 도서관들과는 다르게 디자인을 통해 많은 수의 책꽂이들을 유기적인 형태로 배치했다. 동네에서 이 책꽂이는 울타리, 길, 커뮤니티의 안뜰, 행사를 위한 광장이 있는 공간이 된다. 이러한 계획에 따라 자연스럽게 문화적 활동은 2층 규모의 공간으로 표현됐다.






인테리어디자인 Waterfrom Design
인테리어스타일리스트 IF Design
위치 Fuzhou, China
용도 Sales center, reception center
면적 1,600㎡
설계기간 2019. 4. - 6.
시공기간 2019. 7. - 10 .
디자인팀 Nic Lee, Leao Liao, Elvin Ke, Richard Lin, Aster Chang
스타일리스트팀 Emma Zhang, Luis Lu, Ella Dong
발주자 China Vanke co., ltd.
사진작가 Kuomin Lee, Qilin Zhang
해당 프로젝트는 건축문화 2020년 4월호(Vol. 467)에 게재되었습니다.
The project was published in the April, 2020 recent projects of the magazine(Vol. 467).
April, 2020 : vol. 467
Contents : RECORDSTHE WINNER OF 2020 PRITZKER ARCHITECTURE PRIZE IS TWO IRISH WOMEN ‘GALLERIA DEPARTMENT STORE IN GWANGGYO’ DESIGNED BY OMA JINJU-SI HAS LAUNCH THE THREE ARCHITECTURE DESIGN COMPETITION FOR THE CULTURAL CITY : BOOK & NEWS : SKETCHTHE ST
anc.masilwide.com
'Interior Project > Retail' 카테고리의 다른 글
| Dishao Optical (0) | 2023.05.15 |
|---|---|
| Starfield Coex Mall Renewel (0) | 2023.05.11 |
| Towpath Shop (0) | 2023.04.19 |
| CHEONGDAM WATCH (0) | 2023.04.13 |
| Gajo Space (0) | 2023.04.07 |
마실와이드 | 등록번호 : 서울, 아03630 | 등록일자 : 2015년 03월 11일 | 마실와이드 | 발행ㆍ편집인 : 김명규 | 청소년보호책임자 : 최지희 | 발행소 : 서울시 마포구 월드컵로8길 45-8 1층 | 발행일자 : 매일



