
Located on Oslo’s waterfront, MUNCH is the new home to the world's largest collection of works by Norwegian artist Edvard Munch. The new MUNCH is not only a facility to safeguard and exhibit a fundamental heritage in the history of Norwegian culture. With its attractive day-to-day activities such as concerts, lectures or children workshops the new MUNCH has already become an attractive destination for tourists and citizens alike, anchoring the museum in the new neighborhood of Bjørvika. Since its opening in October 2021, the new MUNCH has been visited by more than 1,5 million visitors, representing an extraordinary success.
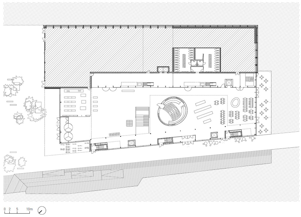
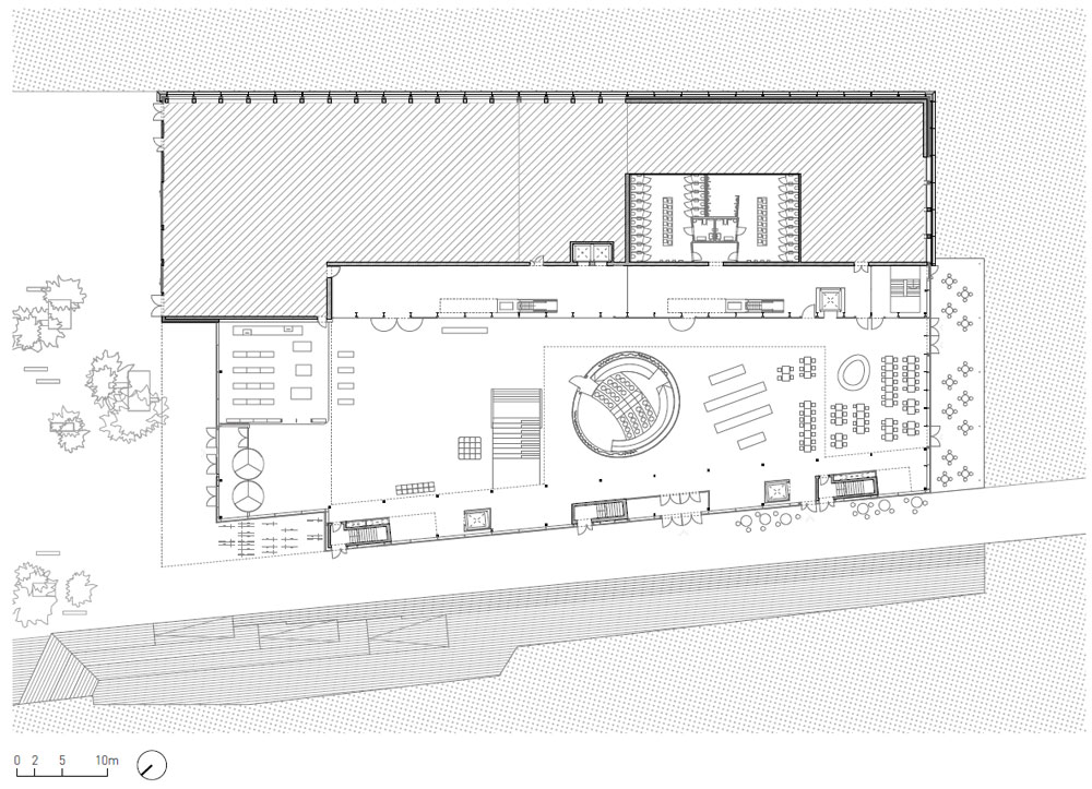
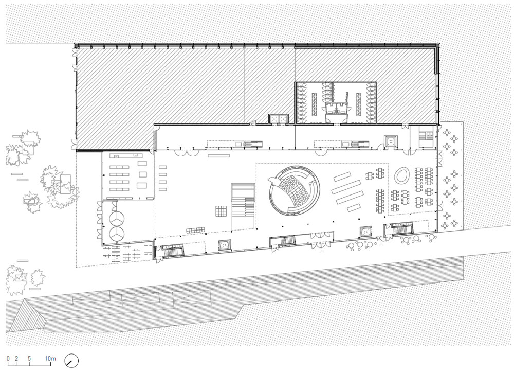
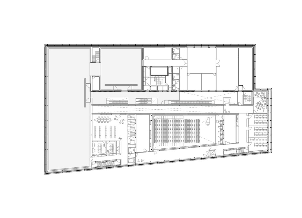
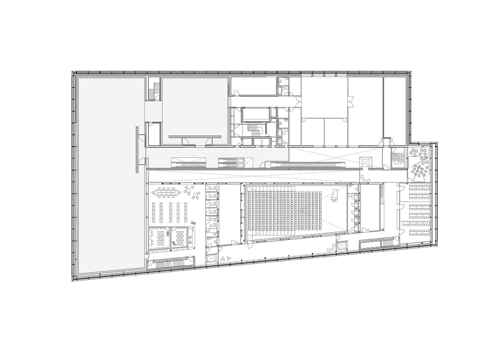
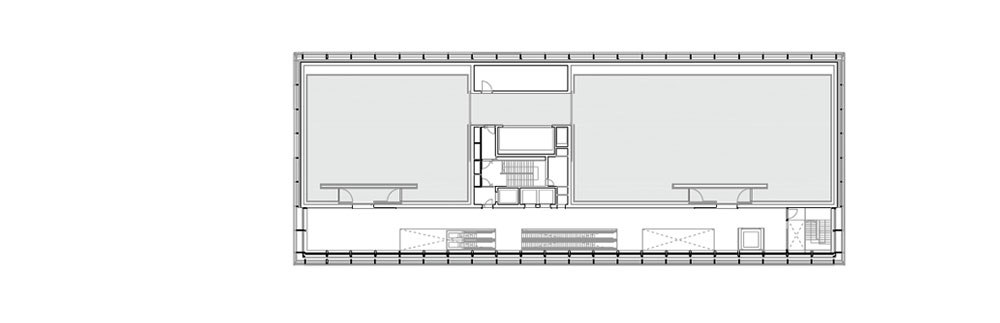
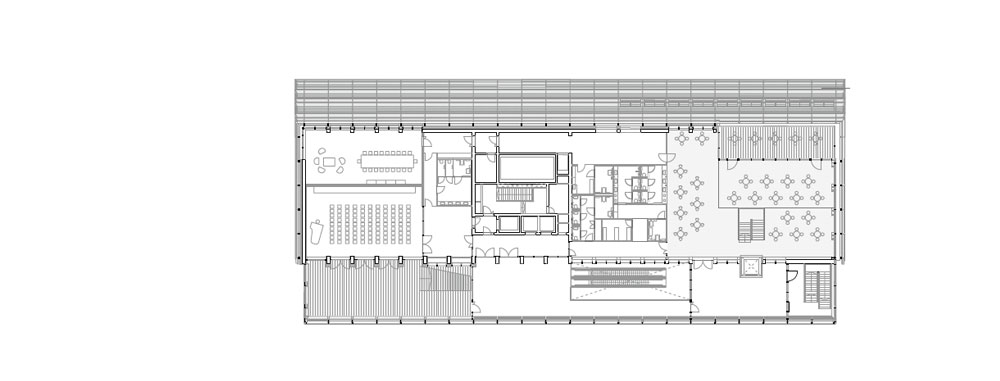
Its ascending itinerary connects the public foyer which houses recreational, commercial, cultural and gastronomic uses, with the rooftop terraces/observatory/club, which parallel to the discovery of Edvard Munch’s work offer views onto the different historical strata of the city of Oslo. This gesture of conceiving the vertical communications system as a public space/ascending vantage point is the essence of the heterodox character generated by developing a museum vertically. There is more, however: on this itinerary the visitors discover other types of facilities, namely restaurant and café, administrative offices, the research library, restauration, and education departments, which denote a programmatic complexity that goes beyond the conventional idea of the museum as a set of exhibition spaces to be visited and a series of invisible facilities from which the institution is managed. The new MUNCH contributes to the creation of a collective environmental awareness through architecture reinforcing its role as a device for communication and construction of a better future for everyone, confronting climate change as a global issue. Complying with requirements on passive house level with half the greenhouse gas emissions compared to a conventional building, the construction of the new MUNCH has been based on aspirations such as lightness, use of low-carbon concrete, recycled materials, and applications of natural ventilation and passive cooling techniques. The façades of the new MUNCH, finished in recycled perforated aluminum with different degrees of transparency give rise to an enigmatic, evanescent perception of the building, which reacts to the slight stimuli generated by Oslo’s extraordinary light conditions, thereby creating very different images depending on the time of day.

오슬로의 해안가에 위치한 뭉크 뮤지엄은 노르웨이 예술가 에드바르트 뭉크의 세계 최대 작품 컬렉션의 새로운 본거지이다. 뭉크 뮤지엄은 노르웨이 문화사에서 중요한 유산을 보호하고 전시하기 위한 시설일 뿐만이 아니라 콘서트와 강의, 어린이를 위한 워크샵과 같이 매력적인 활동을 하는 곳이다. 뭉크 뮤지엄은 관광객과 시민 모두에게 매력적인 장소가 되었으며 비요르카(Bjørvika)지역 박물관으로 자리잡았다. 2021년 10월 개장 이후 뭉크 뮤지엄은 150만 명이 넘는 방문객이 다녀가며 놀라운 성공을 거두었다.
건물을 오르면서 에드바르트 뭉크의 작품을 감상하고 오슬로시의 다양한 역사적 지층이 보이는 옥상 테라스, 전망대, 클럽활동과 레크리에이션, 상업, 문화, 미식 공간이 있는 공공 로비로 이어진다. 수직적 커뮤니케이션이라는 시스템을 공공 공간과 상승하는 관점으로 인식하여 박물관을 수직적으로 개발함으로써 기존과 다른 성격의 건물의 본질을 보여준다. 이러한 과정에서 방문객들은 레스토랑과 카페, 관리 사무소, 연구 도서관, 식당과 교육관, 전시 공간들과 보이지 않지만 기관을 관리하는 시설들 등을 발견하게 된다. 뭉크 뮤지엄은 소통의 기능적 역할을 강조한 건축물을 통해 지구적 이슈인 기후변화와 같은 환경 의식을 심어주어 모두를 위한 더 나은 미래를 만들어 준다. 뭉크 뮤지엄은 경량, 저탄소 콘크리트와 재활용 재료를 사용하고 자연환기 및 패시브 냉각 기술을 통해 온실 가스 배출량을 기존 건물의 절반으로 줄이는 등 패시브 하우스 수준의 기준으로 지었다. 투명도가 다른 재활용 천공 알루미늄으로 마감되어 불가사의한 모습의 뭉크 뮤지엄의 파사드와 오슬로 지역 특유의 빛에 반응하여 건물은 하루 동안에도 시시 각각 다른 모습으로 보여진다.




















건축가 Estudio Herreros
위치 노르웨이, 오슬로
용도 뮤지엄
준공 2022
설계 Juan Herreros, Jens Richter
프로젝트 디렉터 Gonzalo Rivas
로컬건축가 LPO Arkitekter
파사드 Bollinger + Grohmann, ARUP(concept design)
엔지니어링 Multiconsult, Hjellnes Consult, Brekke & Strand Akustikk
발주자 Oslo Kommune, Kultur- og idrettsbygg (KID)
사진작가 Einar Aslaksen
해당 프로젝트는 건축문화 2023년 3월호(Vol. 502)에 게재되었습니다.
The project was published in the March, 2023 recent projects of the magazine(Vol. 502).
March 2023 : vol. 502
Contents : NEWS / COMPETITION / BOOKS : SKETCH Maybe It's a Story from the Past / Jim Keen 어쩌면 과거의 이야기일지도 / 짐 킨 : RECENT PROJECT Remed Headquarters / TODOT Architects and Partners 산해_리메드 사옥 / 투닷건축사사무
anc.masilwide.com
'Architecture Project > Cultural' 카테고리의 다른 글
| Orange County Museum of Art(OCMA) (0) | 2023.05.15 |
|---|---|
| Sydney Modern Museum (0) | 2023.05.12 |
| E HAM CAMPUS (0) | 2023.05.05 |
| Floating Melodies - Liyang Museum (0) | 2023.05.03 |
| I AM CENTER (0) | 2023.04.21 |
마실와이드 | 등록번호 : 서울, 아03630 | 등록일자 : 2015년 03월 11일 | 마실와이드 | 발행ㆍ편집인 : 김명규 | 청소년보호책임자 : 최지희 | 발행소 : 서울시 마포구 월드컵로8길 45-8 1층 | 발행일자 : 매일



