
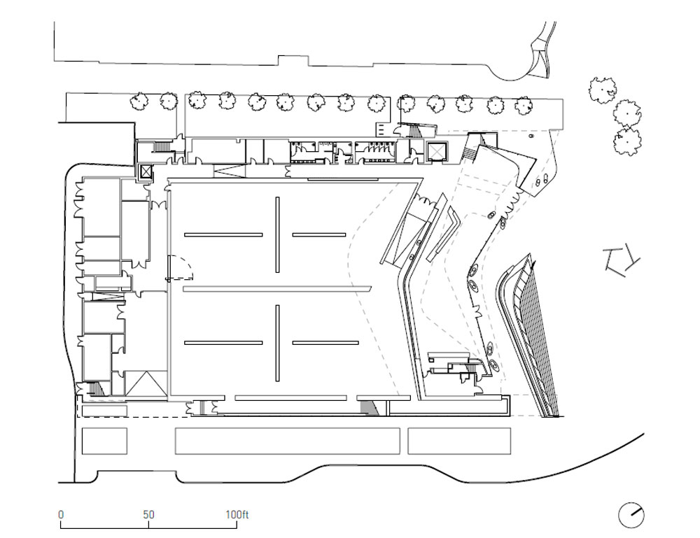
With flexible exhibition galleries, dedicated space for educational programming, and areas for public gathering, OCMA’s new building will provide expanded access to the museum’s permanent collection, which comprises important works of modern and contemporary art, and to its world-class special exhibition program. The overall design of the building addresses the need for museum space to be both flexible and functional as well as inviting and memorable. It choreographs a rich and diverse visitor experience, from approach and entry to procession through the galleries, and finally, an invitation to linger on the steps, in the café, or in the museum shop. By creating a gradient of architectural intensity, from complex forms at the museum’s entry to rectilinear and flexible forms within the galleries, the building is a memorable and striking environment for formal and informal experiences with art. Its strong relationship between indoor and outdoor space encourages visitors to immerse themselves in the celebrated climate of Southern California, where light, air, and space have influenced generations of artists. A high-performance façade of white terracotta tiles creates a sweeping form that wraps from exterior to interior and playing off the forms and palette of neighboring works of architecture.

OCMA의 새 건물은 유연한 전시 갤러리, 교육 프로그램 전용 공간, 대중을 위한 공간을 갖추고 있으면서 현대 미술의 중요한 작품들로 구성된 박물관의 영구 컬렉션과 세계적 수준의 특별 전시 프로그램을 제공해주는 곳이 될 것이다. 건물의 전반적인 디자인은 박물관의 기능적 역할을 하는 것과 동시에 매력적이고 기억에 남을 수 있어야 한다는 요구를 반영하고 있다. 건물로의 접근과 입장, 갤러리사이의 통로, 계단, 카페, 기념품 관등에 머물면서 풍부하고 다양한 경험을 하게 된다. 복잡한 형태의 박물관 입구와 갤러리 내의 직선적이고 유연한 형태에 이르기까지 다양한 변화는 방문자들에게 예술에 대한 공식적, 비공식적 경험과 기억에 남을 만한 인상적인 환경을 제공해준다. 실외와 실내 공간 사이의 빛, 공기, 공간은 방문객들에게 여러 세대의 예술가가 받았던 남부 캘리포니아의 특별한 기후를 체감하도록 해준다. 흰색 테라코타 타일로 외부에서 내부로 감싼 파사드는 건물의 전반적인 형태를 만들어 내며 주변 건축물들의 형태와 팔레트와는 다른 모습을 보여준다.



















건축가 Morphosis
위치 미국, 캘리포니아
용도 뮤지엄
준공 2022
설계 Design Director_Thom Mayne, Partner-in-Charge_Brandon Welling
조경건축가 OJB Landscape Architecture
구조엔지니어 John A. Martin & Associates
기계엔지니어 Buro Happold
조명디자이너 Horton Lees Brogden Lighting Design & TM Light
시공 Richard Crookes Constructions
발주자 OCMA
사진작가 Mike Kelly, Jasmine Park
해당 프로젝트는 건축문화 2023년 3월호(Vol. 502)에 게재되었습니다.
The project was published in the March, 2023 recent projects of the magazine(Vol. 502).
March 2023 : vol. 502
Contents : NEWS / COMPETITION / BOOKS : SKETCH Maybe It's a Story from the Past / Jim Keen 어쩌면 과거의 이야기일지도 / 짐 킨 : RECENT PROJECT Remed Headquarters / TODOT Architects and Partners 산해_리메드 사옥 / 투닷건축사사무
anc.masilwide.com
'Architecture Project > Cultural' 카테고리의 다른 글
| The Burrell Collection (0) | 2023.05.17 |
|---|---|
| H.C. Andersen Hus (0) | 2023.05.16 |
| Sydney Modern Museum (0) | 2023.05.12 |
| MUNCH Museum (0) | 2023.05.11 |
| E HAM CAMPUS (0) | 2023.05.05 |
마실와이드 | 등록번호 : 서울, 아03630 | 등록일자 : 2015년 03월 11일 | 마실와이드 | 발행ㆍ편집인 : 김명규 | 청소년보호책임자 : 최지희 | 발행소 : 서울시 마포구 월드컵로8길 45-8 1층 | 발행일자 : 매일



