
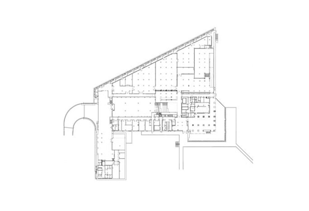
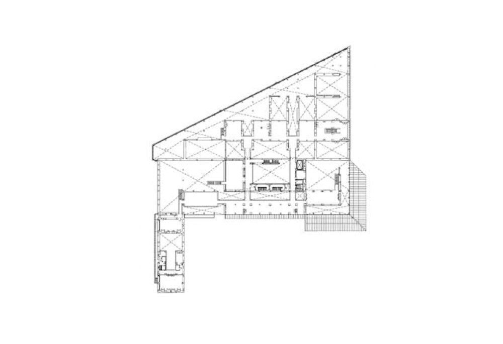
The Burrell Collection is one of Europe’s finest museums housed in one of the very few Category-A listed post-war Scottish buildings. Made of red Dumfriesshire sandstone, polished concrete, stainless steel and timber and glass, the seminal 20th century building occupies a sylvan setting in Pollok Country Park four miles from central Glasgow. In 2016, Glasgow Life, the charity that delivers cultural, sporting and learning activities on behalf of Glasgow City Council, appointed John McAslan + Partners as architect and landscape designer to lead the museum’s five-year renovation and enhancement.
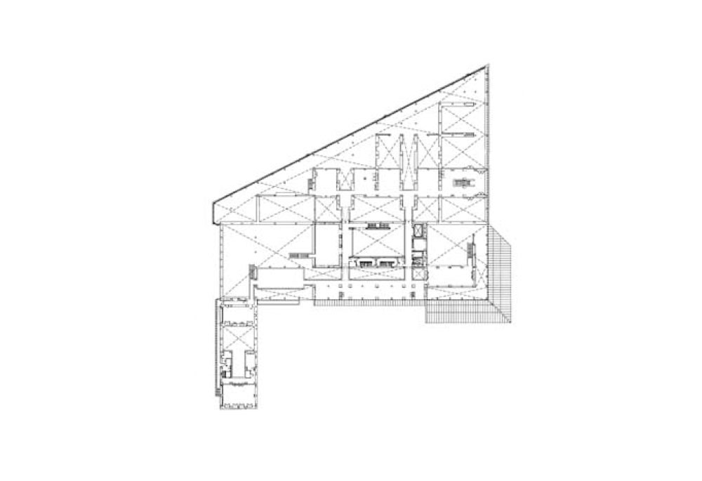
Working with a team of specialists, John McAslan + Partners focussed on three key project aims: to seamlessly repair the building and improve its environmental performance by a “fabric first” approach to its renovation; to strengthen the building’s parkland setting; and, after careful consideration to open up select areas of the interior to articulate the horizontal and vertical movement through the galleries, so that a greatly increased proportion of the collection can be enjoyed at any one time. Adjoining the entrance sequence, a new orientation volume connects the museum levels up to the mezzanine galleries and down by a stepped seating arrangement to the newly opened-up garden-level floor below. The latter now accommodates an exhibition and events gallery connected to a viewable art storage space, workshops, the rejuvenated café and parkland beyond.
Back in the galleries, visitors will encounter the collection that is now curated thematically and using immersive narrative as the guiding vision for the Collection’s museography. In total, an additional 35 per cent of the gallery space has now been added from the previous arrangement and with the great majority of the collection on site for accessible storage and to assist with its rotation. The project is a strong example of John McAslan + Partners’ interest in reuse and, especially, in working with significant 20th century buildings. The Burrell has been adapted and refurbished focusing on a ‘Fabric First’ approach, maximising the benefits of improving the building’s existing built fabric. Within this approach, for instance, the re-use of existing aluminium glazing frames has saved over 8.5 tonnes of new aluminium from being added to the building which in turn saved 100 tonnes of carbon emissions associated with new aluminium production.

버렐 컬렉션은 유럽에서 가장 우수한 박물관 중 하나로, 국가적 또는 국제적으로 중요성을 인정받는 건물을 나타내는 카테고리 A에 등재된 몇 안 되는 전후 스코틀랜드 건물 중 하나다. 20세기의 중요한 건물로, 붉은 덤프리샤 사암, 광택 있는 콘크리트, 스테인리스 스틸, 목재 및 유리로 구성되어 있으며 글래스고 시내에서 약 6.5km 떨어진 폴락 컨트리 공원 안에 위치한다. 2016년, 글래스고 시의회를 대신하여 문화, 스포츠 및 학습 활동을 제공하던 자선 단체인 글래스고 라이프는 존 맥아슬란 + 파트너스를 건축 및 조경 디자이너로 선정하여 박물관의 5개년 개보수 및 개선을 주도했다.
건축가는 세 가지 주요 프로젝트 목표 설정했다. 첫째, 건물을 완벽하게 수리하고, 개보수 작업에서 "기본 구조 우선" 접근 방식을 통해 환경 성능을 개선한다. 둘째, 건물의 공원 영역을 강화한다. 셋째, 갤러리를 통해 수평 및 수직 이동을 명확히 하고, 컬렉션의 매우 큰 부분을 한 번에 즐길 수 있도록 인테리어의 선택적인 영역을 개방한다. 입구 시퀀스에 인접하여 새로운 방향을 보여주는 볼륨은 미술관 층을 계단식 좌석 배치를 통해 중이층 갤러리에 연결하고, 아래에 새롭게 개방된 정원 층으로 연결된다. 뒤편은 전시 및 이벤트 갤러리로 사용되며, 볼 수 있는 수장고, 워크숍 공간, 활기를 되찾은 카페, 공원과 연결된다.
갤러리에서는 주제별로 선별된 컬렉션이 전시되며, 이를 지도로 하는 몰입형 서술이 컬렉션의 전시 지표가 된다. 전체적으로 이전 배치와 비교하여 갤러리 공간이 추가로 35% 더 확보됐으며, 대부분의 컬렉션이 접근 가능한 수장고에 보관되어 관람에 도움이 되고 있다. 이 프로젝트는 존 맥아슬란 + 파트너스의 재활용에 대한 관심과 특히, 20세기의 중요한 건물을 작업하는 데에 대한 관심을 잘 보여주는 사례다. 버렐 컬렉션은 '기본 구조 우선' 접근 방식에 중점을 둔 적응과 개보수가 이루어졌으며, 기존 건축물의 뼈대를 개선하여 이점을 극대화했다. 이러한 방식은 예를 들어, 기존 알루미늄 창틀의 재사용하여 건물에 새로운 알루미늄 8.5톤을 추가로 사용하지 않음으로써 새로운 알루미늄 제조와 관련된 탄소 배출량 100톤을 절약하는 데 기여했다.




















건축가 John McAslan + Partners
위치 스코틀랜드, 글래스고
용도 뮤지엄
준공 2022
조경건축가 John McAslan + Partners
구조엔지니어 David Narro Associates
파사드엔지니어 Arup
프로젝트매니저 Gardiner & Theobald
환경디자이너 Atelier Ten
전시디자이너 Event Communication
사이니지디자이너 Studio LR
발주자 Glasgow City Council & HLF
사진작가 Hufton+Crow
해당 프로젝트는 건축문화 2023년 3월호(Vol. 502)에 게재되었습니다.
The project was published in the March, 2023 recent projects of the magazine(Vol. 502).
March 2023 : vol. 502
Contents : NEWS / COMPETITION / BOOKS : SKETCH Maybe It's a Story from the Past / Jim Keen 어쩌면 과거의 이야기일지도 / 짐 킨 : RECENT PROJECT Remed Headquarters / TODOT Architects and Partners 산해_리메드 사옥 / 투닷건축사사무
anc.masilwide.com
'Architecture Project > Cultural' 카테고리의 다른 글
| Hong Kong Palace Museum (0) | 2023.05.19 |
|---|---|
| The Academy Museum of Motion Pictures (0) | 2023.05.18 |
| H.C. Andersen Hus (0) | 2023.05.16 |
| Orange County Museum of Art(OCMA) (0) | 2023.05.15 |
| Sydney Modern Museum (0) | 2023.05.12 |
마실와이드 | 등록번호 : 서울, 아03630 | 등록일자 : 2015년 03월 11일 | 마실와이드 | 발행ㆍ편집인 : 김명규 | 청소년보호책임자 : 최지희 | 발행소 : 서울시 마포구 월드컵로8길 45-8 1층 | 발행일자 : 매일



