
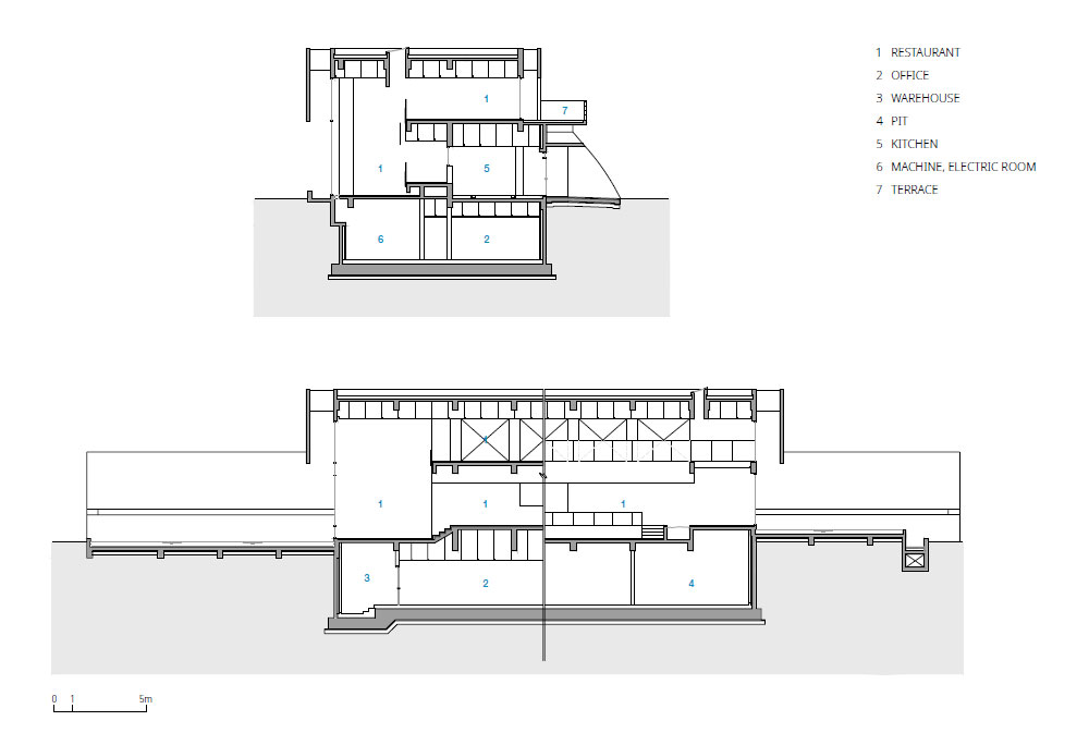
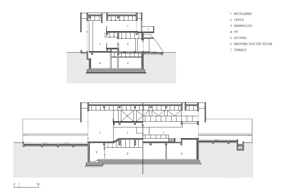
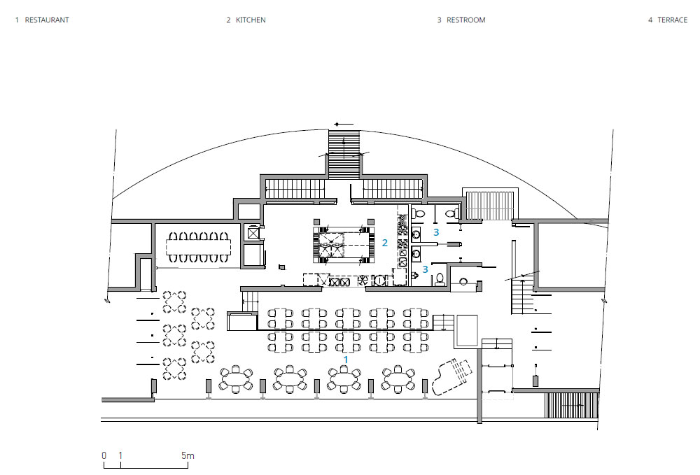
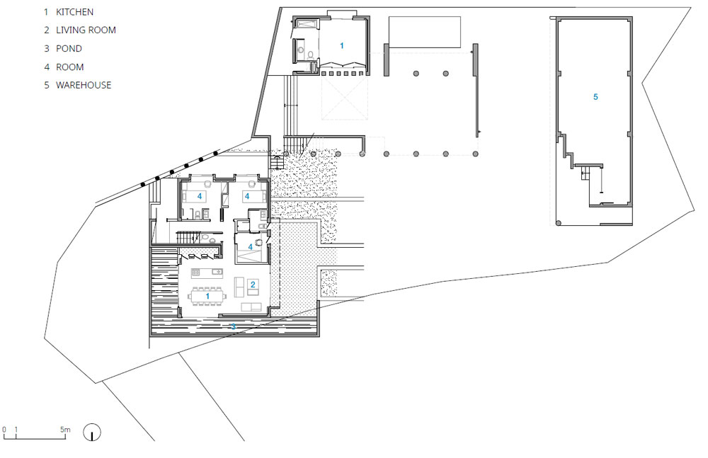
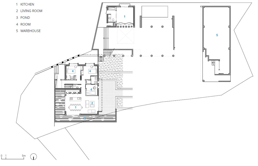
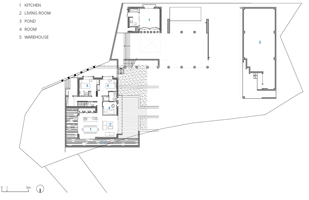
This project was carried out as a collaborative effort. One day, we received a proposal from Professor Kim, Gae-cheon, who was then the representative of Lee Do Architecture and is currently a professor at Kookmin University, to work together on a small private art museum project in Yangpyeong. Despite the rarity of such a project, we decided to collaborate and even moved our office to the site to work on it. Originally known as the “Yangpyeong 00 Gallery” project, it expanded to include an exhibition hall and restaurant, management residence and warehouse, and a hanok exhibition hall. As more land was acquired, five projects were carried out simultaneously, including the addition of a glass pavilion, gallery storage, and café.
The art museum has a clear character of space. To add a sense of leisure to the process of entering the gallery, E Ham Gallery arranged the walls and openings in various ways on horizontal and vertical paths. Through this, visitors can experience various sensations and leisurely moments during movement through the space depending on the degree of natural light. It creates a path that feels like a leisurely unpaved rural road, sometimes like a mountain trail where you can occasionally feel the sunlight through the bushes, and sometimes like an alley in a village where the light streaming from windows on both sides is projected onto the clouds like moonlight.

이 프로젝트는 공동 작업으로 진행되었다. 어느 날 당시 이도건축 대표였던 김개천 교수(현 국민대교수)로부터 양평에 자그마한 개인 미술관 프로젝트가 있는데 같이 해보자는 제안을 받았다. 흔치 않은 프로젝트라는 생각에 같이 하기로 결정하고 사무실까지 이전하여 작업을 하게 되었다. 원래 이 프로젝트는 가칭 ‘양평 00갤러리’라는 프로젝트 명으로 진행됐으며, 부지는 전체적으로 이어져 이쏙, 전시관 및 레스토랑, 관리 숙사 및 창고 동, 그리고 한옥 전시동이 추가됐다. 부지가 추가로 확보되면서 추후 유리 파빌리온과 수장고 및 카페가 추가되어 다섯 개의 프로젝트가 동시에 진행됐었다.
미술관은 공간의 성격이 명확한 편이다. 이함갤러리는 내부로 진입하는 과정에서의 여유로움을 더하기 위해 수평적, 수직적으로 연결되는 길(동선)에 벽과 개구부를 다양하게 배치했다. 이를 통해 방문자로 하여금 빛(자연 채광)의 정도에 따라 공간 이동 과정에서 다양한 경험과 여유로움을 느낄 수 있는 길을 구성했다. 여유로운 비포장 시골길로, 때로는 수풀 사이로 언뜻언뜻 태양빛을 느낄 수 있는 산속 산책로로, 때로는 손에 닿을 듯 양쪽에 펼쳐진 창문으로 새어 나오는 불빛이 구름에 달 가듯 비춰지는 달동네 골목길로 느낄 수 있다.





















건축가 주)에이앤유프러스건축사사무소
위치 경기도 양평군 강하면 전수리 529-8외
용도 전시시설 및 근린생활시설
대지면적 10,605.60m2
건축면적 1,559.54m2
연면적 3,062.39m2
규모 지하 1층, 지상 2층
건폐율 14.70%
용적률 16.61%
설계기간 1997. 1
시공기간 1998. 7. - 2020. 1.
준공 2020. 1.
대표건축가 강일원 + 김개천(국민대학교)
디자인팀 류공식, 김희정
시공 (주)삼일기업공사
발주자 오황택
사진작가 박초월
해당 프로젝트는 건축문화 2023년 3월호(Vol. 502)에 게재되었습니다.
The project was published in the March, 2023 recent projects of the magazine(Vol. 502).
March 2023 : vol. 502
Contents : NEWS / COMPETITION / BOOKS : SKETCH Maybe It's a Story from the Past / Jim Keen 어쩌면 과거의 이야기일지도 / 짐 킨 : RECENT PROJECT Remed Headquarters / TODOT Architects and Partners 산해_리메드 사옥 / 투닷건축사사무
anc.masilwide.com
'Architecture Project > Cultural' 카테고리의 다른 글
| Sydney Modern Museum (0) | 2023.05.12 |
|---|---|
| MUNCH Museum (0) | 2023.05.11 |
| Floating Melodies - Liyang Museum (0) | 2023.05.03 |
| I AM CENTER (0) | 2023.04.21 |
| Pavilion Z (0) | 2023.04.13 |
마실와이드 | 등록번호 : 서울, 아03630 | 등록일자 : 2015년 03월 11일 | 마실와이드 | 발행ㆍ편집인 : 김명규 | 청소년보호책임자 : 최지희 | 발행소 : 서울시 마포구 월드컵로8길 45-8 1층 | 발행일자 : 매일



