
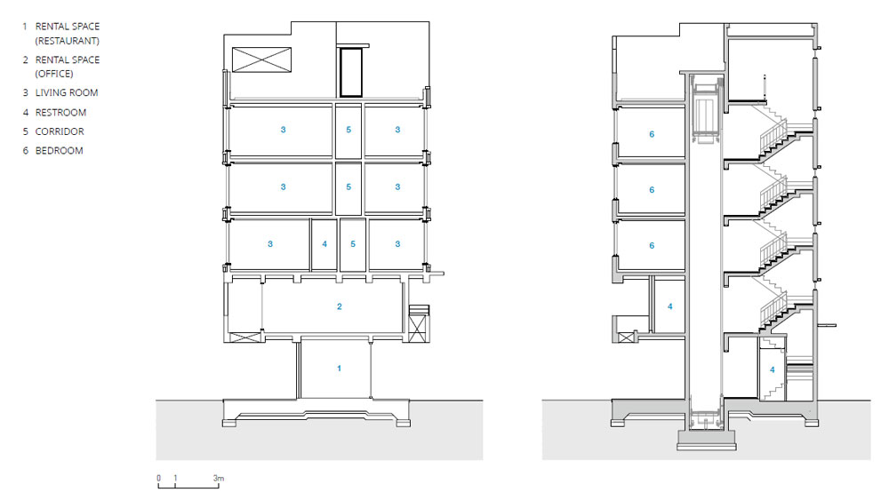
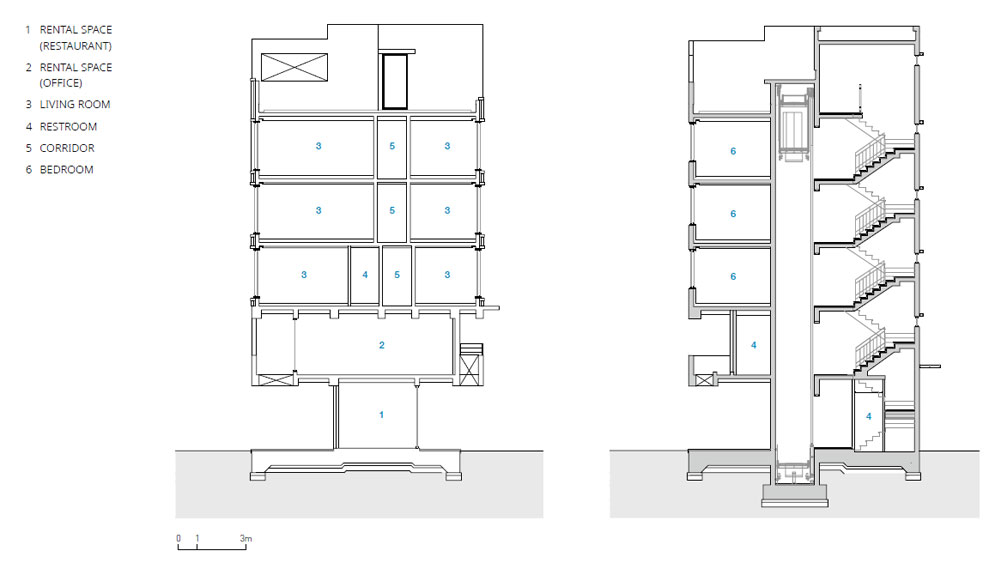
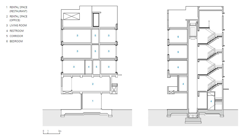
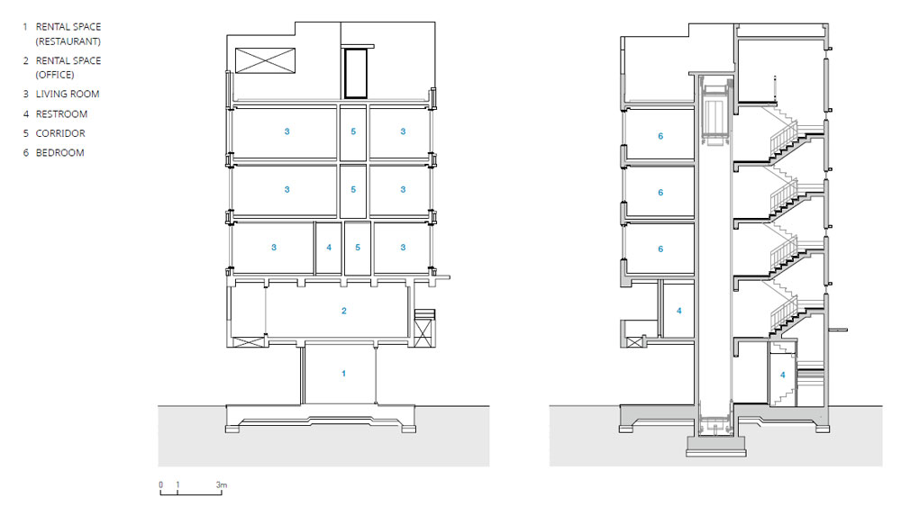
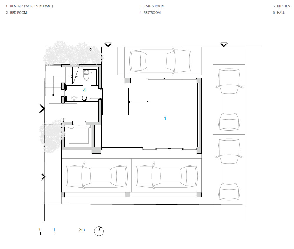
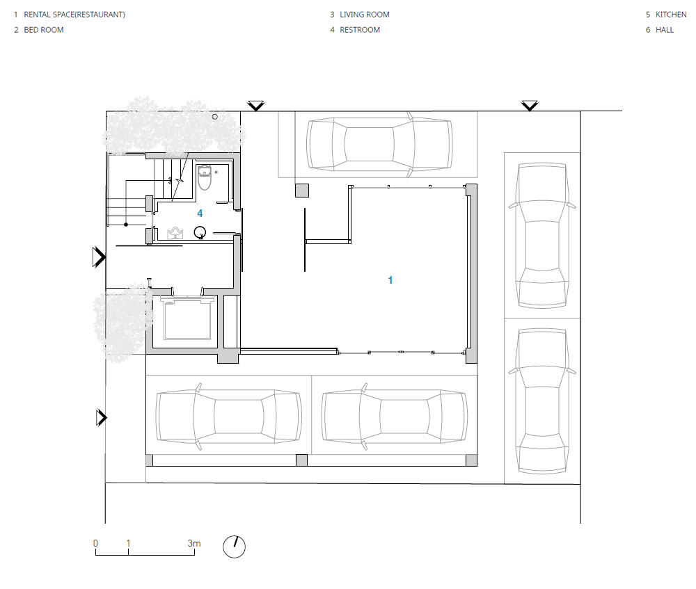
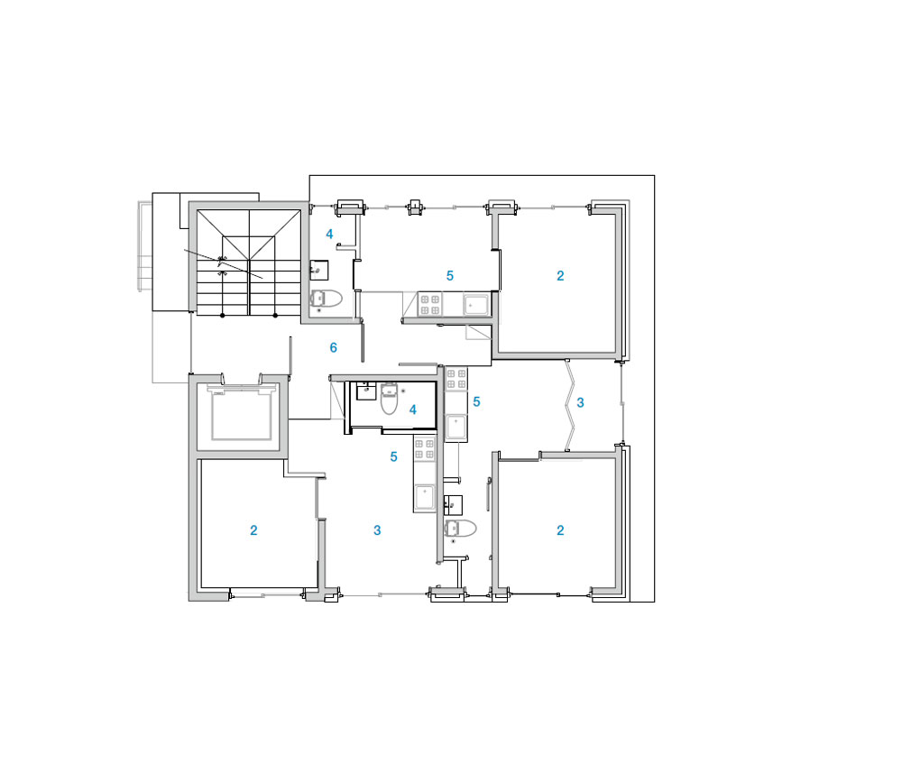
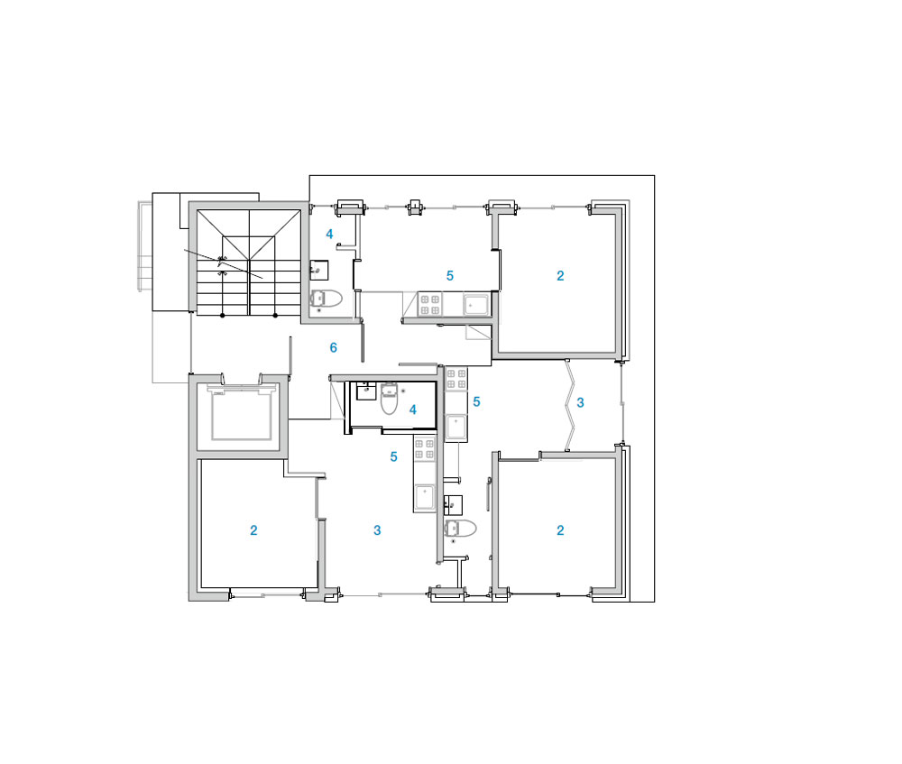
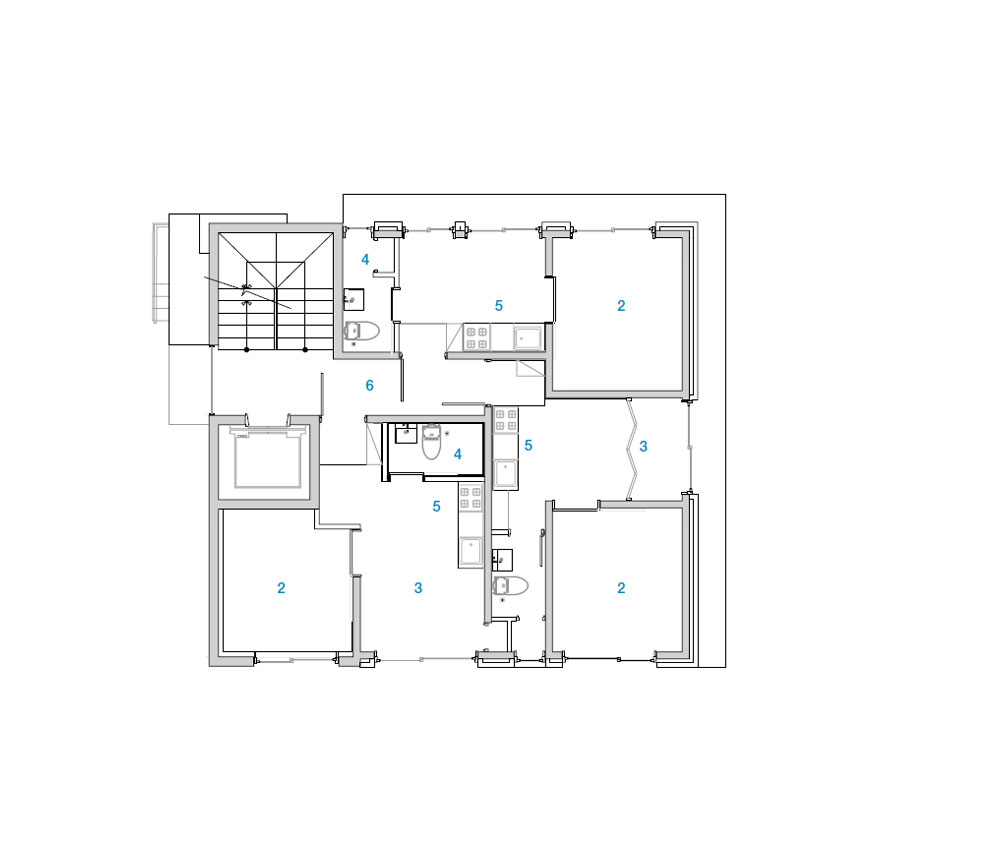
The land where RI-N 792-13 stands was a small 50-square-meter plot. There was an old and shabby single-family home, and a more run-down restaurant of about 4 square meters next to it. At the time, I had an office near the site and frequently visited the restaurant to have meals. While I was there, I heard from the restaurant owner about the poor conditions of the house and restaurant where they lived and worked. The owner expressed the desire to build a new building on the land. As per the owner's request, a small restaurant space was created on the first floor, and there are residential rental units to generate income.

리인 792-13이 들어선 땅은 50평의 자그마한 땅이었다. 아주 오래되고 허름한 단독주택이 있었고, 옆에 더 허름한 약 4평 남짓한 식당이 있었다. 당시의 나는 부지 인근에 사무실이 있었고, 편하게 아무 시간에나 가서 식사할 수 있는 그 식당을 자주 이용했다. 그러던 중 식당 아주머니로부터 당시 거주하고 있는 주택과 식당의 열악한 상황을 듣게 되었다. 아주머니는 그 땅에 새로운 건물을 짓고자하는 의지를 전했다. 건축주 요구사항에 따라, 1층에 작은 식당 공간을 마련했으며, 임대로 수입을 얻기 위한 임대용 주거 공간이 들어서 있다.








건축가 주)에이앤유프러스건축사사무소
위치 서울특별시 강남구 역삼동 792-13
용도 다가구주택 및 근린생활시설
대지면적 160.90㎡
건축면적 92.43㎡
연면적 321.76㎡
규모 지상 5층
건폐율 57.45%
용적률 199.98%
설계기간 2012. 10. - 2013. 8.
시공기간 2013. 10. - 2014. 5.
준공 2014. 5.
대표건축가 강일원
프로젝트건축가 정병호
기계엔지니어 맥엔지니어링
전기엔지니어 원이앤씨
시공 무원건설㈜
발주자 전창곤
사진작가 박초월
해당 프로젝트는 건축문화 2023년 3월호(Vol. 502)에 게재되었습니다.
The project was published in the March, 2023 recent projects of the magazine(Vol. 502).
March 2023 : vol. 502
Contents : NEWS / COMPETITION / BOOKS : SKETCH Maybe It's a Story from the Past / Jim Keen 어쩌면 과거의 이야기일지도 / 짐 킨 : RECENT PROJECT Remed Headquarters / TODOT Architects and Partners 산해_리메드 사옥 / 투닷건축사사무
anc.masilwide.com
'Architecture Project > Multifamily' 카테고리의 다른 글
| Arpartment 55 (0) | 2023.05.11 |
|---|---|
| RI-N 130-24 (0) | 2023.05.10 |
| NHÀ MỘC (0) | 2023.04.25 |
| Aperto(Ongoing) (0) | 2023.04.07 |
| Lomellina (0) | 2023.04.04 |
마실와이드 | 등록번호 : 서울, 아03630 | 등록일자 : 2015년 03월 11일 | 마실와이드 | 발행ㆍ편집인 : 김명규 | 청소년보호책임자 : 최지희 | 발행소 : 서울시 마포구 월드컵로8길 45-8 1층 | 발행일자 : 매일



