
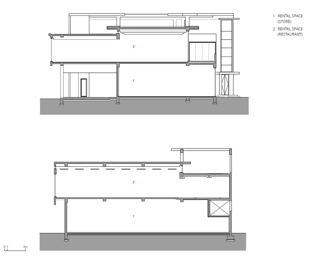
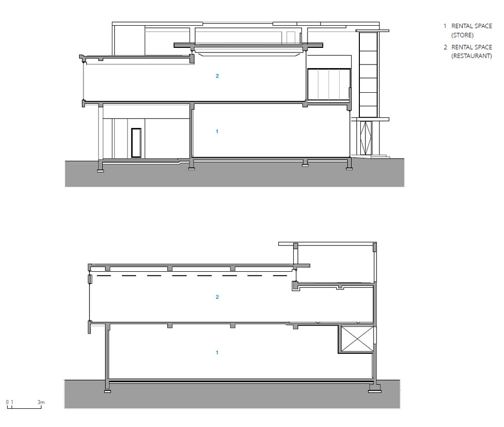
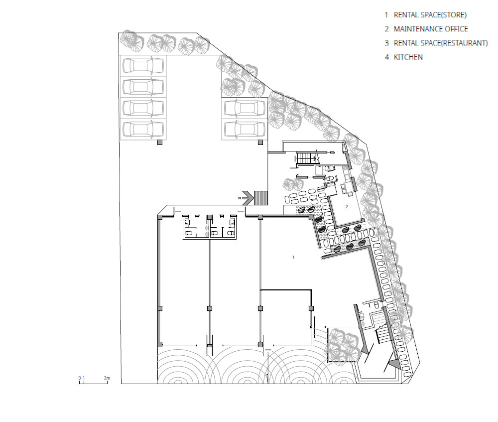
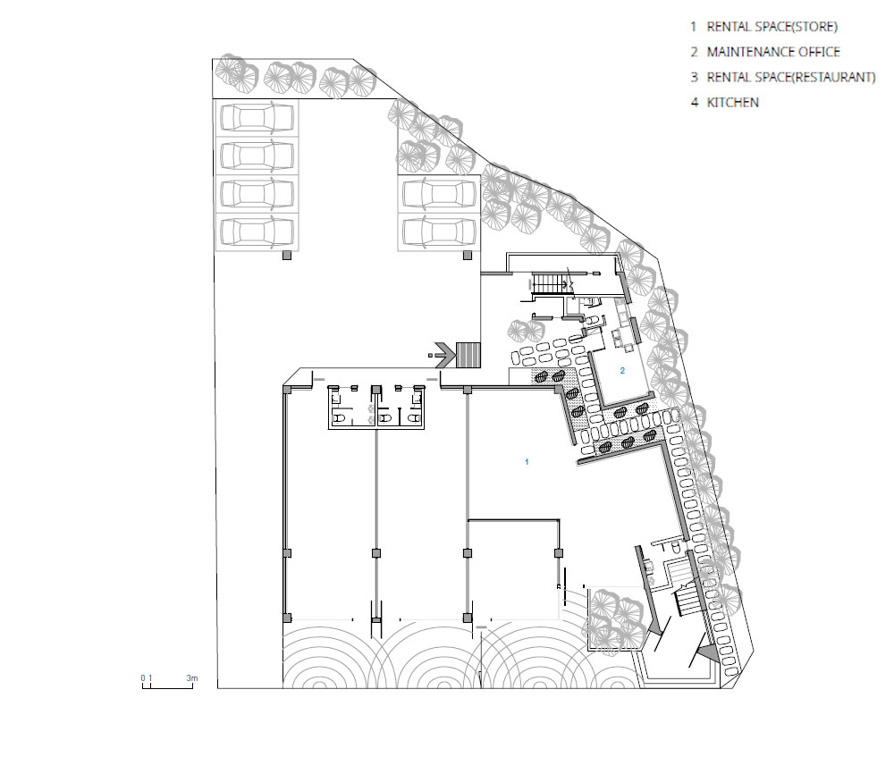
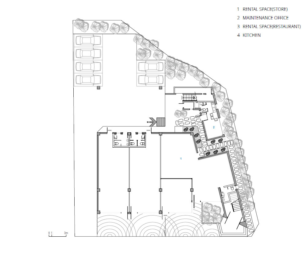
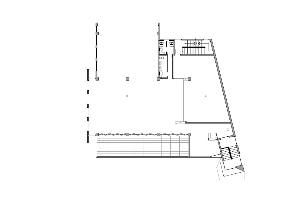
The design of RI-N 130-24 in Asan Professor Village began with the introduction of the client's intention to construct a building for the purpose of attracting a branch of a foreign fusion restaurant to Asan. As a result, the architect visited the site frequently and spent a lot of time there. The main architectural elements of this building are accessibility, spatial quality, and material selection and reinterpretation that considers the characteristics of the users of the fusion restaurant. The architect avoided the excessive use of industrial products for the exterior finish and chose to use exposed concrete to create a natural change in the exterior material. However, during the construction process, the plan to open the Asan branch of the restaurant fell through, causing the overall design concept to become somewhat unclear and leaving many regrets regarding the exterior and interior spaces, making it a work that leaves much to be desired.

리인 130-24는 아산교수마을의 설계 작업 중 건축주의 소개로 시작되었다. 설계 당시 의뢰인은 국내에 들어온 해외 퓨전 레스토랑의 아산점을 유치하기 위한 용도로 건축물을 짓는다고 하였다. 그래서 아산교수마을을 방문할 때마다, 그리고 별도의 시간을 할애하여 본 부지를 방문했고 많은 시간을 이곳에서 머물곤 하였다. 본 건축물의 주된 건축 요소는 접근성과 실내의 공간감, 그리고 퓨젼 레스토랑을 이용하는 이용자의 특성을 고려한 재료의 선정과 재해석이다. 나는 외장재에 공업 제품의 사용을 극도로 자제한다. 그래서 노출콘크리트로 마감하여 외장재의 자연스러운 변화를 선택하였다. 건축이 진행되던 중 결국 레스토랑의 아산점의 입점이 불발되어 전체적인 디자인의 개념이 다소 흐려지게 되었으며, 외부 및 내부 공간 인테리어 등 많은 아쉬움을 남긴 작품이다.






건축가 주)에이앤유프러스건축사사무소
위치 충청남도 아산시 온천동 130-24
용도 근린생활시설
대지면적 980.00㎡
건축면적 553.53㎡
연면적 979.63㎡
규모 지하 층, 지상 2층
건폐율 56.48%
용적률 99.96%
설계기간 2011. 12 - 2012. 7
시공기간 2012. 10. - 2013. 8.
준공 2013. 8.
대표건축가 강일원
기계엔지니어 맥엔지니어링
전기엔지니어 원이앤씨
시공 (주)덕일
발주자 김시열
사진작가 박초월
해당 프로젝트는 건축문화 2023년 3월호(Vol. 502)에 게재되었습니다.
The project was published in the March, 2023 recent projects of the magazine(Vol. 502).
March 2023 : vol. 502
Contents : NEWS / COMPETITION / BOOKS : SKETCH Maybe It's a Story from the Past / Jim Keen 어쩌면 과거의 이야기일지도 / 짐 킨 : RECENT PROJECT Remed Headquarters / TODOT Architects and Partners 산해_리메드 사옥 / 투닷건축사사무
anc.masilwide.com
'Architecture Project > Multifamily' 카테고리의 다른 글
| Daita Project (0) | 2023.05.31 |
|---|---|
| Arpartment 55 (0) | 2023.05.11 |
| RI-N 792-13 (0) | 2023.05.09 |
| NHÀ MỘC (0) | 2023.04.25 |
| Aperto(Ongoing) (0) | 2023.04.07 |
마실와이드 | 등록번호 : 서울, 아03630 | 등록일자 : 2015년 03월 11일 | 마실와이드 | 발행ㆍ편집인 : 김명규 | 청소년보호책임자 : 최지희 | 발행소 : 서울시 마포구 월드컵로8길 45-8 1층 | 발행일자 : 매일



