
Remed is a company that produces and supplies medical devices in the field of digital therapeutics with a focus on the treatment of rare brain diseases and non-invasive procedures. In short, it is a company that provides brain treatments, and it has gathered its subsidiaries scattered throughout various locations to build its headquarters in Wirye. The first thing that naturally came to mind was "brain."
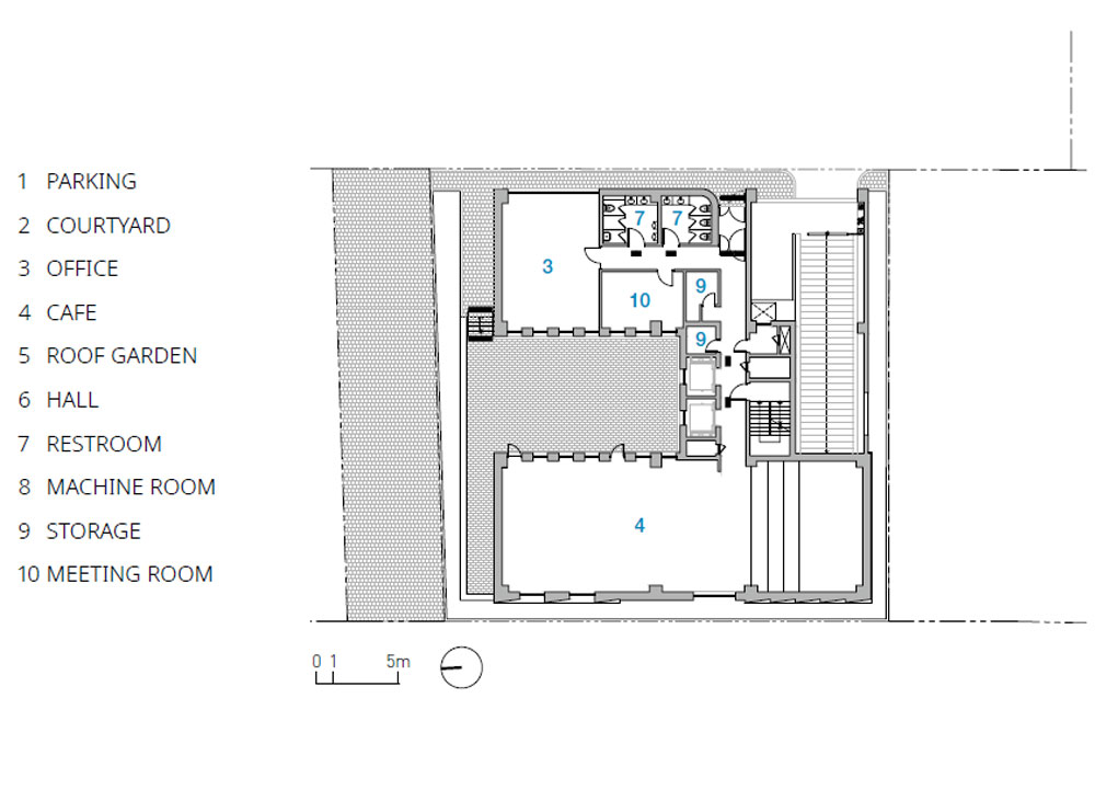
The target site is a District planning zone with a limit of 5 stories in height. The first requirement for the chairman of Remed was to create a spacious and impressive headquarters, but this became a difficult challenge because of the regulations. We decided to apply the allowed height of 4.5m per floor throughout the building. To fulfill the chairman's desire for a secretive and mysterious appearance, we installed only the minimum number of windows required for ventilation and lighting, with two rows per floor. Ten rows of windows were placed within the pattern on the external facade, which expresses the wrinkles of the brain and blurs the boundaries between floors. This, together with the high ceiling, gives the impression of a 10-story building rather than a 5-story one. We created regular and sharp wrinkles on the front and back of the building. These wrinkles, inspired by the wrinkles of the brain, inject life into a simple mass. Although the selection of finishing material using the stone-vent system was unconventional and adventurous, it turned out to be an excellent choice. The wrinkles facing the westward main road add rich expression through the movement of shadows and cool-toned light until late afternoon.
To create maximum volume, the headquarters has a courtyard at its center. The courtyard is open to the public, facing the pedestrian walkway, and provides a shaded yard for the neighborhood, counteracting the impression of exclusivity that the building might otherwise give. The exposed inner walls of the courtyard are made of textured brick, contrasting with the building's white exterior finish, emphasizing the courtyard's urban context. The relationship between the courtyard and the interior space on the first floor is somewhat passive, while the active relationship is expressed in the upper levels. The light from the skylight enters the building's interior, providing a comfortable work environment. The simple and massive mass captures the changes in weather and time, to become an architectural structure that speaks to the city with diverse expressions.

리메드는 ‘난치성 뇌 질환 치료’와 ‘비침습적 시술’을 주제로 하여 전자약 분야의 의료기기를 생산·공급하는 업체다. 한마디로 브레인 치료를 목표로 브레인들이 모인 회사다. 여기저기 흩어져 있던 리메드의 자회사들을 함께 모아 위례에 사옥을 구축하겠다는 요청을 받고서는 제일 먼저 떠 오른 것은 당연히, ‘브레인(뇌)’였다.
대상지는 지구단위계획구역으로 규모가 5층으로 제한되어 있다. 리메드 의장의 첫 번째 요구 조건인 커 보이는 사옥의 모습이란 이러한 규제로 인하여 어려운 난제가 되었다. 우리는 지구단위에서 허용한 4.5m의 층고를 전 층에 적용하기로 했다. 블랙박스 같은 비밀스러운 모습이었으면 좋겠다는 의장의 바람을 받아 필요한 환기와 채광을 위한 최소의 창만을 두기로 했고 그 창은 층 당 2열로 배치했다. 층의 구분을 모호하게 만들 목적과 뇌의 주름을 표현한 외부의 패턴 안에 10열의 창이 배열됐다. 여기에 높은 층고의 효과가 더해져 건물은 5층이 아닌 10층의 규모처럼 보이게 된다. 우리는 건물의 전·후면에 규칙적이고 날카로운 주름을 만들었다. 이 주름은 뇌 주름의 은유이며 단순한 매스에 생기를 불어 넣는 장치이다. 주름이기 위해선 면의 끊어짐 없이 이어져야 했고 그러한 이유로 마감재의 선택에 있어 스토벤텍 시스템은 낯설고 모험적이었지만 결과적으로 탁월한 선택이었다. 서향의 큰 도로에 면한 주름은 늦은 오후부터 해질 때까지 낮은 색온도의 빛과 그림자의 움직임이 더해져 풍부한 표정을 만든다.
최대한의 볼륨을 만들어내기 위해 사옥은 그 중심에 중정을 품는다. 이 중정은 보행자도로변으로 공공 장소로 열려있어 자칫 배타적으로 보일 수 있는 건물의 인상을 상쇄하며, 동네에 그늘 있는 마당을 제공한다. 중정이 파고들어 드러난 속살은 외부의 백색 마감과 달리 질감 있는 벽돌이다. 이 대비는 중정이 도시에 속한다는 것을 명확히 드러낸다. 중정과 1층 내부 공간과의 관계는 다소 소극적이다. 적극적 관계는 오히려 상부 층에서 드러난다. 천공광의 편안한 빛은 건물 내부로 들어와 편안한 업무 환경을 제공한다. 단순하고 거대한 매스가 날씨와 시간의 변화를 담아내며, 다채로운 표정으로 도시에 말을 거는 건축물이 되길 기대해 본다.
















건축가 투닷건축사사무소 주식회사
위치 경기도 성남시 수정구 위례서일로
용도 근린생활시설, 사무소
대지면적 780.30㎡
건축면적 462.96㎡
연면적 3,083.74㎡
규모 지하 2층, 지상 5층
건폐율 59.33%
용적률 279.50%
대표건축가 조병규, 모승민
프로젝트건축가 조병규
디자인팀 천철규, 소정호, 이재준, 심건규
구조엔지니어 델타구조
기계엔지니어 (주)한빛안전기술단
전기엔지니어 (주)천일엠이씨
시공 베델건설(주)
발주자 (주)리메드
사진작가 최진보
해당 프로젝트는 건축문화 2023년 3월호(Vol. 502)에 게재되었습니다.
The project was published in the March, 2023 recent projects of the magazine(Vol. 502).
March 2023 : vol. 502
Contents : NEWS / COMPETITION / BOOKS : SKETCH Maybe It's a Story from the Past / Jim Keen 어쩌면 과거의 이야기일지도 / 짐 킨 : RECENT PROJECT Remed Headquarters / TODOT Architects and Partners 산해_리메드 사옥 / 투닷건축사사무
anc.masilwide.com
'Architecture Project > Office' 카테고리의 다른 글
| Maruya Corporation Head Office Phase I&II (0) | 2023.05.19 |
|---|---|
| Sunwoo Building (0) | 2023.05.02 |
| AUSPICE AOYAMA (0) | 2023.05.01 |
| UNITE X HQ (0) | 2023.04.27 |
| Sky City TOD (0) | 2023.04.26 |
마실와이드 | 등록번호 : 서울, 아03630 | 등록일자 : 2015년 03월 11일 | 마실와이드 | 발행ㆍ편집인 : 김명규 | 청소년보호책임자 : 최지희 | 발행소 : 서울시 마포구 월드컵로8길 45-8 1층 | 발행일자 : 매일



