
Superimpose Architecture completes the mixed-use Sky City TOD hub with a unique and green arrival situation in Hangzhou, China. Transit Oriented Development (TOD) is an urban typology on the rise, especially in China. The most distinct characteristic of a TOD is that during the project-planning phase, one or more stations of high-end public transportation are integrated in mixed-use developments by the implementation of efficient pedestrian- or bicycle-friendly routes. The one-square-kilometer Uni-City - designed by SOM - is situated in Hangzhou’s very own ‘Silicon Valley’ which locates in close proximity to Chinese mega e-commerce companies such as Alibaba and Tencent.
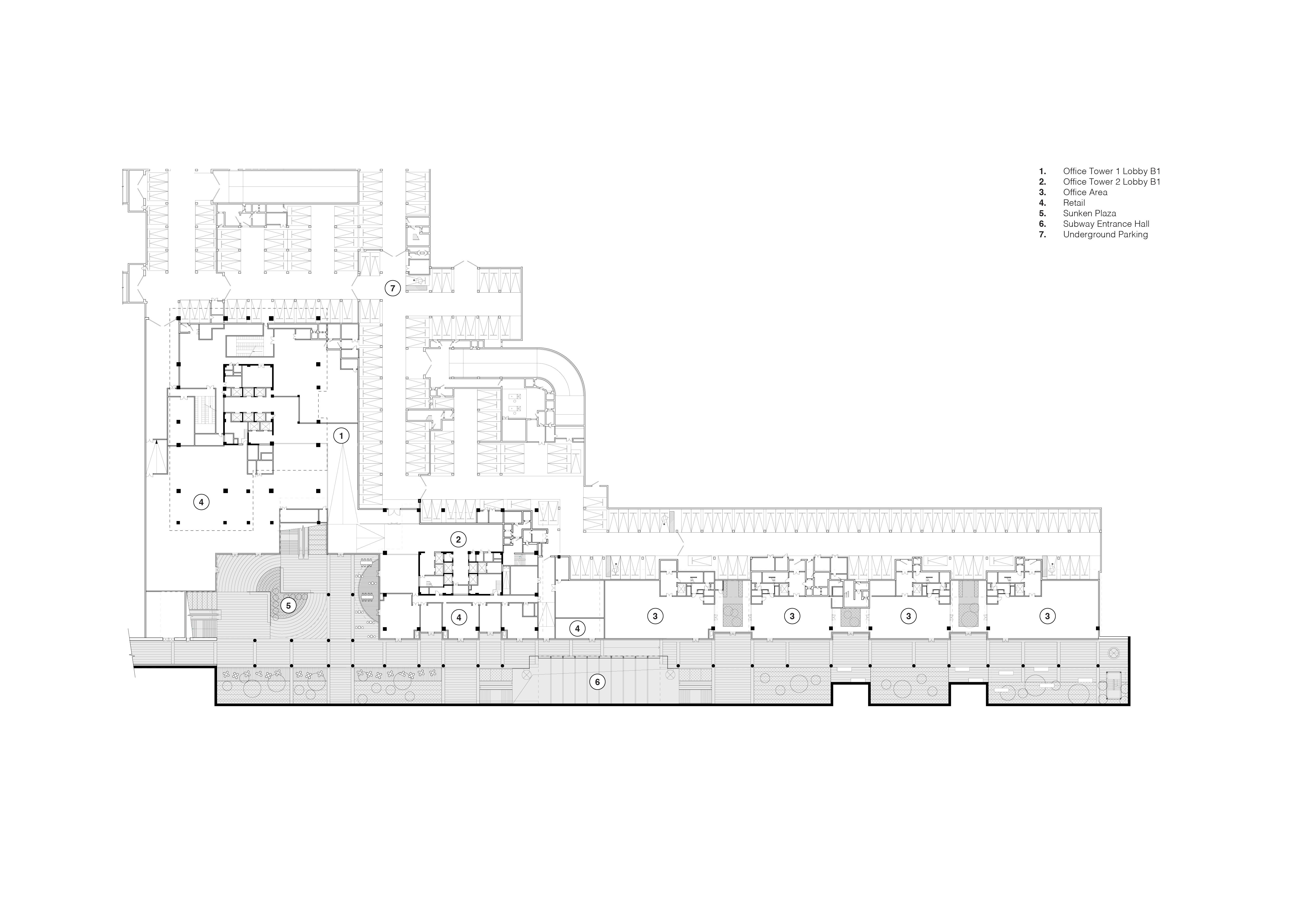
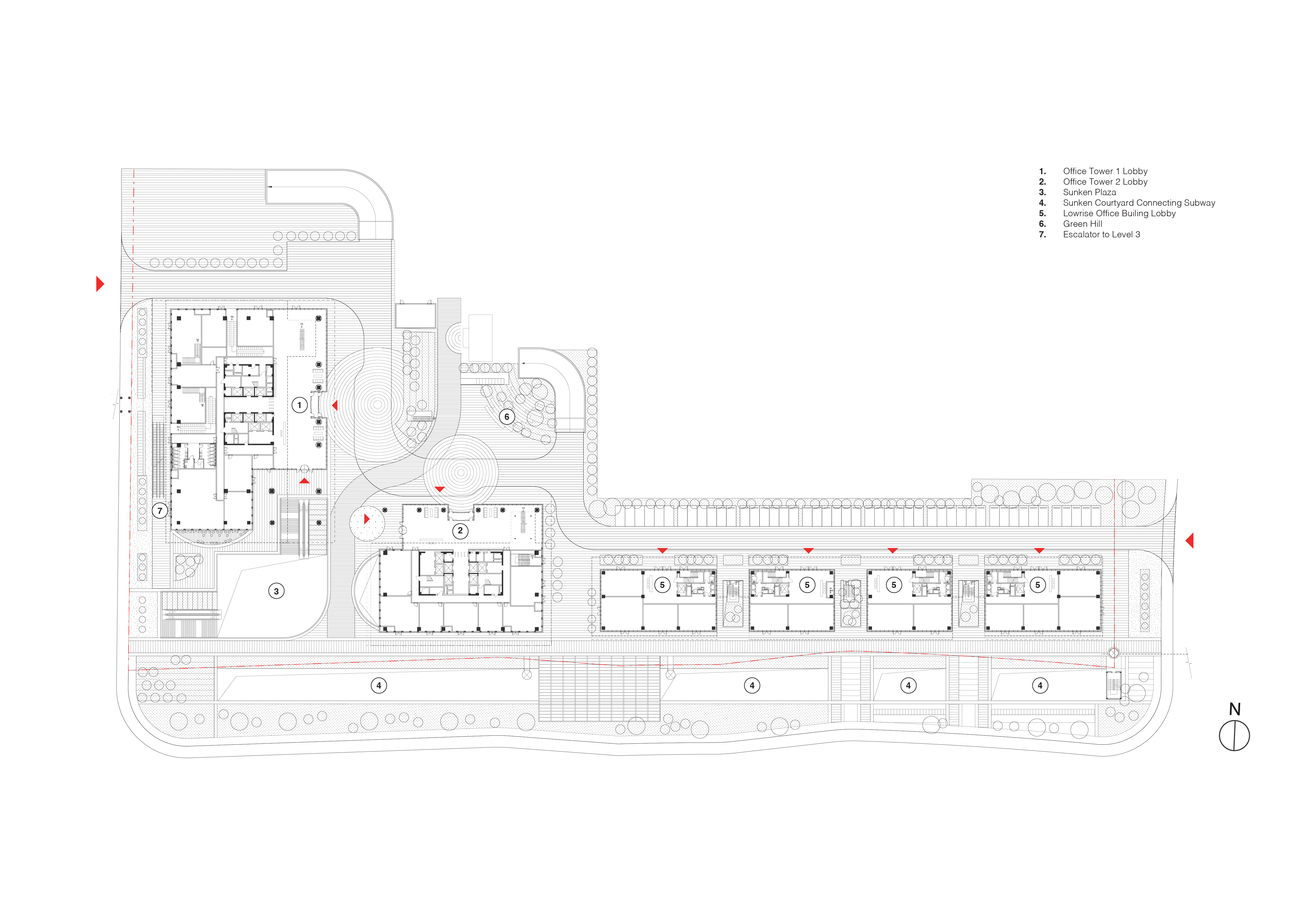
Within this master plan, Superimpose Architecture designed ‘Sky City’ for Vanke Hangzhou and the Hangzhou Subway Group. ‘Sky City’ is a project of 72,000 square meters with two office towers, 4 office villas and retail alongside a new subway station. The TOD will become the main connection and transportation hub of ‘Uni City’. Superimpose Architecture won the invited tender for this project by carefully integrating pedestrian routes and by creating a unique and green arrival situation for the subway. Superimpose Architecture integrated the green belt zone belonging to the government in the design and created voids in the landscape to get more daylight in the otherwise dark basement. By doing so, the design offers commuters a unique, pleasant, green and smooth transition from subway arrival to urban development.
The design is defined by the concept of ‘The Valley’ for the podium levels and ‘The Cloud’ for the upper levels. The ‘Valley’ is meant to relate to the human scale and naturally integrates green and water. The Valley is architecturally defined by shifting slabs that provide terraces or canopies for the lower levels. Strategically placed staircases and escalators connect the basement levels to the upper floors and ultimately to the pedestrian bridge on level 3, which is connecting to the adjacent cultural plot. For the upper ‘Cloud’ levels, Superimpose Architecture chose to have a calmer façade approach. The appearance is defined by a repetition of vertical elements. These aluminum ‘fins’ are perforated and allow for a hidden ventilation concept. The massing of the tower is split in two by a large glass box, to even further break down the massing and create two ‘special tenant’ levels for tenants who need a showroom, more open space, or want to do something different with the interior than the other standard office floors.
Now, Sky City TOD in line with the new urban life was officially completed. It uses diversified modules and elegant appearance to shape the coexistence of function and traffic, harmonizes some contradictions between traffic and land use in the process of urban development, and provides residents with a new way of life and more opportunities to interact with the city and nature.

슈퍼임포즈 아키텍쳐(Superimpose Architecture)은 중국 항저우에 색다른 느낌의 녹지 정거장을 갖춘 복합용도 스카이 시티 대중교통 중심 계발(TOD) 허브를 완성했다. TOD는 중국에서 떠오르는 도시 유형 중 하나이다. 프로젝트를 계획하는 과정에서 가장 구별되는 특징은 효율성 높인 보행로와 친환경적인 자전거 도로를 확보하여 고급 대중 교통 정거장을 하나의 복합용도 건물로 개발하는 것이다. SOM이 설계한 1km²의 유니시티는 항저우의 '실리콘 밸리'라 일컫는 곳에 있으며 알리바바와 텐센트와 같은 중국의 거대 전자상거래 기업들과 가까운 곳이다.
슈퍼임포즈 아키텍쳐(Superimpose Architecture)은 반케 항저우와 항저우 지하철을 위해 '스카이 시티'를 설계했다. '스카이 시티'는 새로운 지하철역과 두 개의 오피스 타워, 네 개의 오피스 빌라, 상점 등이 있는 72,000㎡ 규모의 대형 프로젝트이다. 대중교통 중심 계발(TOD)는 '유니시티'의 주요 교통 허브가 될 것이다. 슈퍼임포즈 아키텍쳐(Superimpose Architecture)은 보행자 노선에 초점에 두고 색다른 느낌의 녹지 정거장을 만들었다. 정부 방침에 따른 그린벨트 구역을 만들어 어두울 수 있는 공간에 빛을 더해주려고 하였다. 이를 통해, 승객들은 지하철역에 도착하면 녹지가 있어 쾌적한 환경을 맞게 될 것이다.
설계는 포디움 레벨을 위한 '더 밸리(The Valley)'와 다음 상위 레벨을 위한 '더 클라우드(The Cloud)'라는 컨셉을 갖고 있다. '더 밸리'는 인간의 범위와 자연적으로 녹색과 물을 통합하도록 하는 것이다. '더 밸리'의 낮은 층에는 테라스나 캐노피를 두는 시프팅 슬랩으로 구성했다. 계단과 에스컬레이터를 전략적으로 지하층과 상층을 연결하도록 배치하였으며 또한, 3층의 보행용 다리까지도 이어지도록 했다. 상층의 '더 클라우드' 레벨에는 보다 더 차분한 느낌의 파사드를 선택했다. 외관은 수직으로 반복되는 모습을 보여준다. 알루미늄 핀(fins)에는 구멍이 뚫려 있어 환기가 가능하도록 해준다. 건물은 거대 유리 상자에 의해 둘로 분할된 모습을 하고 있으며 쇼룸이나 보다 개방된 공간을 필요로 하는 입주자들을 위한 공간과 일반적이지 않게 개성 있는 인테리어를 갖추기 원하는 입주자를 위한 공간으로 나뉜다.
새로운 도시 생활이 가능한 스카이 시티 대중교통 중심 계발(TOD)가 공식적으로 완공되었다. 이 프로젝트는 다양한 모듈과 우아한 외관을 이루고 있으며 다양한 교통수단이 사용되는 도시의 발전 과정에서 교통과 토지 이용을 유용하게 해준다. 이 프로젝트를 통해 주민들은 새로운 삶의 방식을 제공해주고 도시와 자연의 조화를 만들어 낸다.








건축가 Superimpose Architecture
위치 Yuhang District, Hangzhou, China
용도 Office, Retail, Subway arrival
건축면적 72,000m²
설계기간 2018. 11. - 2022. 9.
디렉터 Carolyn Leung, Ben de Lange, Ruben Bergambagt
디자인팀 Carolyn Leung, Ben de Lange, Ruben Bergambagt, Yunqiao Du, Ana Raluca Timisescu, Arianna Bavuso, Valentin Račko, Xiaoyu Xu, Jay Peng, Inci Lize Ogun, Rafaela Sampaio Agapito Fernades, Shuyang Li
Collaborators / ZJIDI (Local Design Institute), ZOE lighting design Chengdu (Lighting Design), Yuqiang & Partners (Interior Design), Platform design (Landscape Design)
발주자 Vanke Hangzhou & Hangzhou Subway Group
사진작가 CreatAR images, WANBAN VISION
'Architecture Project > Office' 카테고리의 다른 글
| AUSPICE AOYAMA (0) | 2023.05.01 |
|---|---|
| UNITE X HQ (0) | 2023.04.27 |
| Casamirador (0) | 2023.04.20 |
| 9.639 - An Inserted Variable Office (0) | 2023.04.19 |
| KAIST DELTA CENTER Remodeling (0) | 2023.04.18 |
마실와이드 | 등록번호 : 서울, 아03630 | 등록일자 : 2015년 03월 11일 | 마실와이드 | 발행ㆍ편집인 : 김명규 | 청소년보호책임자 : 최지희 | 발행소 : 서울시 마포구 월드컵로8길 45-8 1층 | 발행일자 : 매일



