

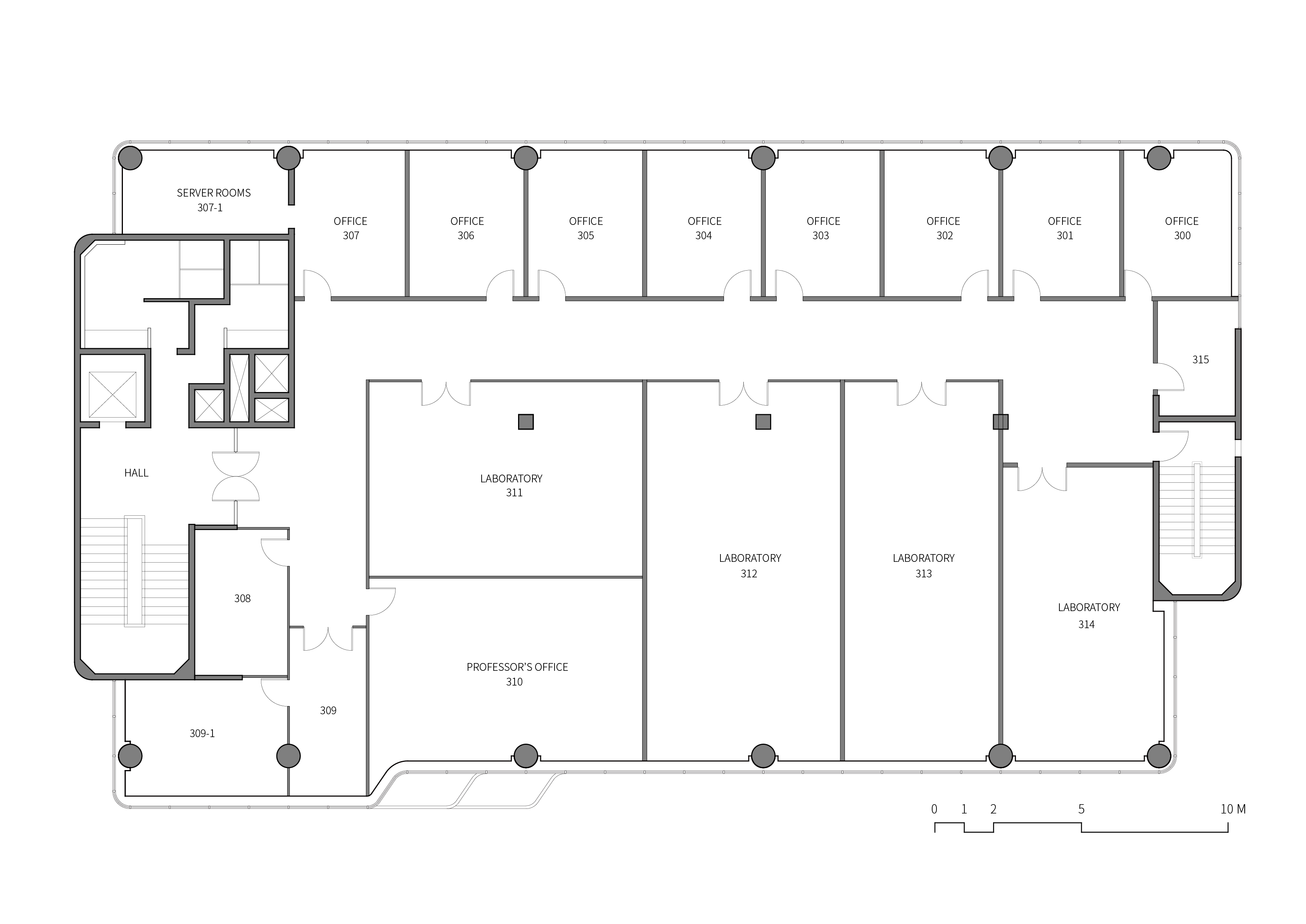
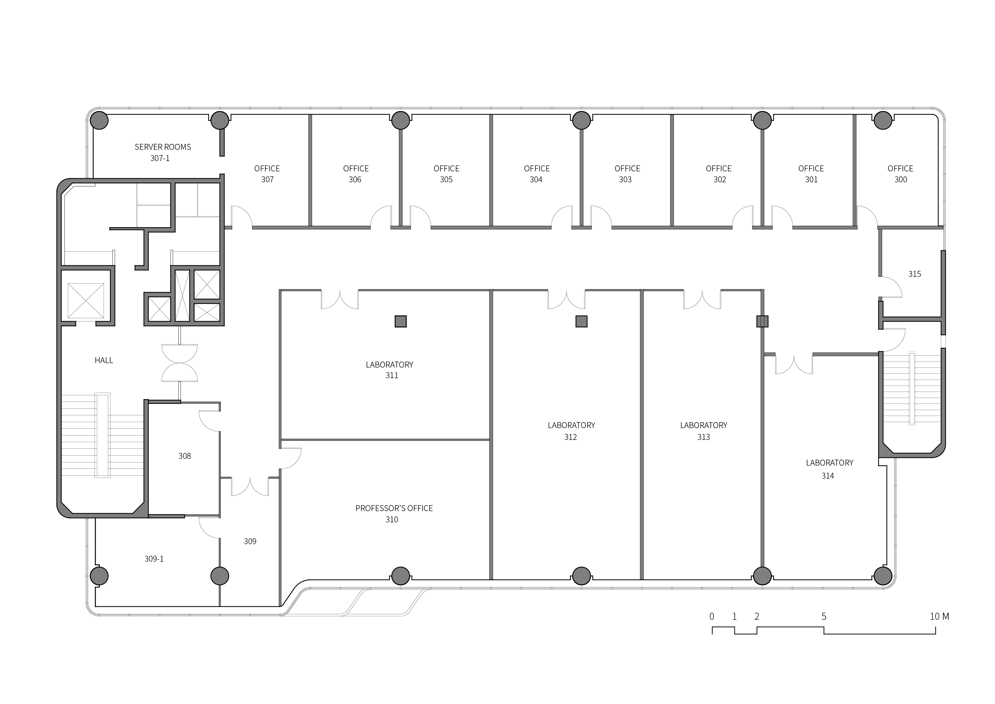
카이스트 델타센터는 오래된 대학 소유 건물의 일부를 블록체인과 AI관련기술을 연구하는 기업들이 공유하는 업무 및 연구 공간으로 바꾸는 리모델링 작업이다. 여느 인테리어 작업과 같이 카이스트의 델타센터도 6주라는 짧은 기간 내에 제한된 공사비로 디자인과 시공을 마쳐야 하는 한계가 분명한 프로젝트였다.
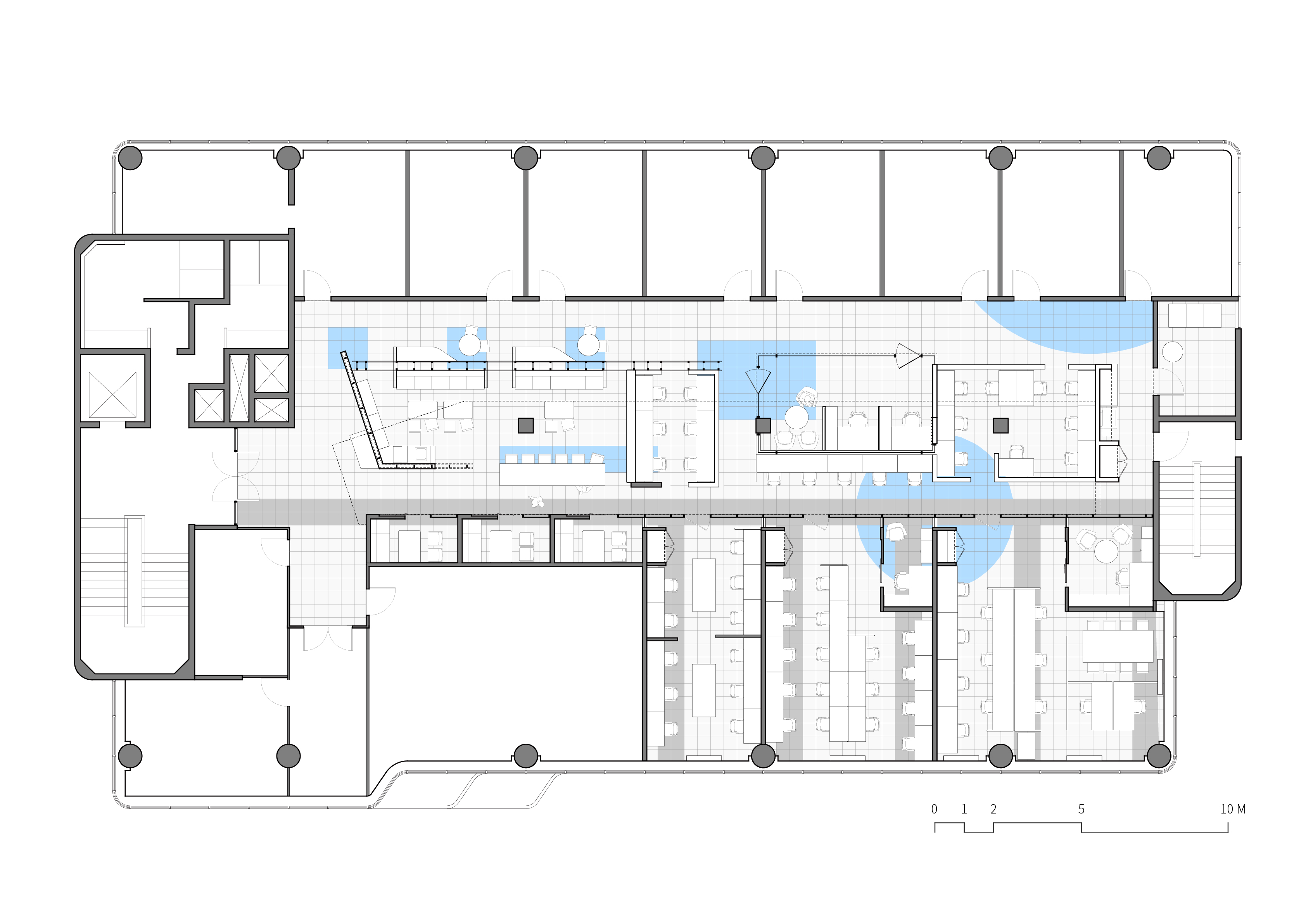
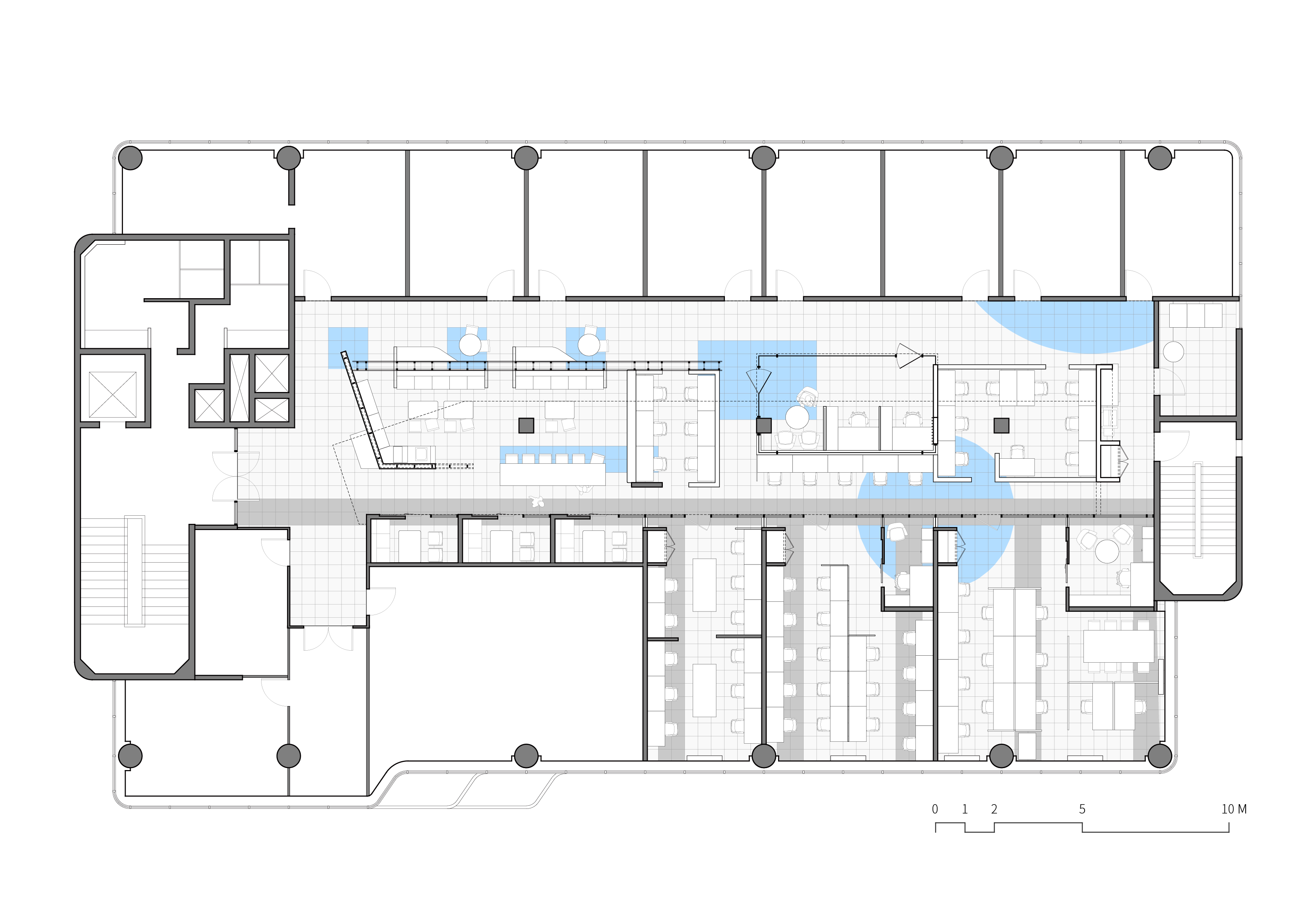
한 층의 일부만이 프로젝트 대상구역이여서 대대적으로 개조하기 보다는 원 건물의 모듈과 패널간격 등 기존질서를 최대한 존중하면서 새로운 기능, 업무, 일하는 문화를 만들어내는 데 집중하였다. 정확한 사용자 수나 입주하는 기업이 확정되지 않은 상황에서 입주하더라도 단 기간에 규모가 커지는 첨단기술기업의 성장행태를 반영하여 적당한 크기의 모듈화된 오피스를 건물의 가장자리에, 그 오피스들이 공유하는 회의실, 라운지, 휴게공간, 공용업무공간을 중앙에 두어 밀도 높은 업무공간 내에서 여러 분위기의 워크 스테이션을 선택해서 분위기를 달리하여 근무할 수 있도록 하였다.
이성적인 카이스트의 B.I. 대표색인 청색을 기준으로 하늘색과 연두, 회색으로 이루어진 컬러 팰러트를 만들고 첨단기술을 상징하는 사선과 속도감을 강조하는 모티브를 가지고 중앙의 공용공간을 구성하였다. 건물의 폭이 깊어서 중심부는 자연채광과 환기가 불리한 여건이었는데 이를 완화하기 위해 창 쪽의 오피스나 Lab은 최대한 유리 파티션을 사용하였고, 중심공용공간의 크기에 걸맞는 층고 확보를 위해 일부 천정을 노출로 만들어 적절한 공간의 볼륨을 형성하였다. 공간계획 시 방해물이 되는 기둥 3개는 거울로 마감하여 사라지게 만들었고, 거기에 펜던트 형식의 긴 조명을 랜덤하게 중심공간에 설치하고 파티션의 나무 디테일의 수평성을 강조하여 속도감이 느껴지는 공간을 만들었다.
공용공간은 입주연구소와 기업들이 자유로이 사용하면서 외부인 미팅이나 내부회의, 카페, 휴식, 혹은 세미나발표 등 다용도로 사용할 수 있게하여 우연히 일어날 수 있는 창의적인 만남과 의도하지 않은 융합을 염두에 두었다. 이를 위해 높은 고정 파티션은 최소화하고 이동할 수 있는 가구를 위주로 배치하여 가변적인 레이아웃을 계획하였다. 2m 이상의 부분은 모두 시각적으로 소통할 수 있게 하면서도 집중업무가 필요할 때는 자기만의 취향에 맞는 일하는 구석을 찾아 않을 수 있고, 실로 명확히 구분되지 않은 공간에서 연관분야의 연구자들은 자유롭게 의견교환이나 지식을 공유할 수 있다. 100여평의 작은 공간이지만 여기서 생활하는 60여 명의 근무자들은 소속과 직급을 넘어선 다른 층위의 커뮤니티를 형성하길 기대해 본다.









건축가 TAAL Architects(탈건축사사무소) + 조항만 (서울대학교 건축학과)
위치 25, Nonhyun-ro 28 gil, Gangnam-Gu, Seoul, Korea
연면적 409.92㎡
준공 2019. 10.
재료마감 Birch Plywood, Paint, Vinyl Tile
디자인팀 Zo Hangman (SNU), Seo Jiyoung, Kim Garim (TAAL Architects)
그래픽디자인 Ha Hyeongwon
시공 Lee Sewoo (Union Communications)
사진작가 Kim Jeonghyeon (Submarine)
'Architecture Project > Office' 카테고리의 다른 글
| Casamirador (0) | 2023.04.20 |
|---|---|
| 9.639 - An Inserted Variable Office (0) | 2023.04.19 |
| WOOHYUNJAE II (0) | 2023.04.17 |
| UNIKHAN DISTRIBUTION CENTER SEOUL (0) | 2023.04.12 |
| The Hello Kitchen Project (0) | 2023.04.07 |
마실와이드 | 등록번호 : 서울, 아03630 | 등록일자 : 2015년 03월 11일 | 마실와이드 | 발행ㆍ편집인 : 김명규 | 청소년보호책임자 : 최지희 | 발행소 : 서울시 마포구 월드컵로8길 45-8 1층 | 발행일자 : 매일



