
유니칸은 부산에 본사를 두고 ‘안전’과 관련된 용품(안전화, 마스크, 작업복 등)을 생산, 연구, 개발, 유통하는 업체이다. 원활한 전국적 유통망을 구축하고 산업의 확장을 위해, 협력 대리점이 다수 위치한 서울 광진구 동일로의 대지를 매입하고, ‘물류허브센터’로서 서울 사옥을 기획했다.
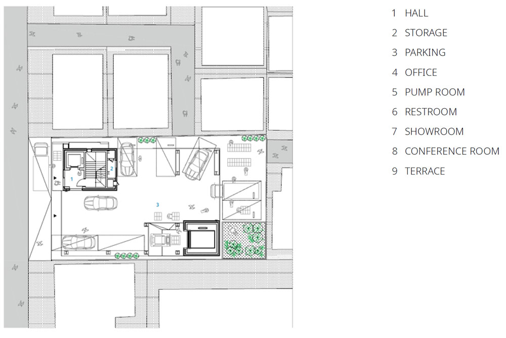
‘유니칸 물류허브센터 서울’은 기본적으로 핵심 기능인 ‘물류의 흐름과 제품의 보관’이 효과적으로 이뤄지도록 건물의 구조와 형태를 계획하여야 했다. 교통량이 많고 복잡한 ‘동일로’ 한가운데서 5톤 트럭이 정차하여 제품을 하차할 수 있는 적절한 너비와 높이의 진입공간이 필요했고, 상층부까지 물건을 오르내릴 수 있는 자연스러운 물류 동선과 충분한 적재 공간이 필요했다. 사업성 측면에서 도심지 물류창고는 이를 위한 땅을 넉넉하게 확보하기 쉽지 않다. 따라서 주어진 대지 조건에서 최대한의 법정 연면적과 층고 확보에 노력을 집중하게 되는데, 그러한 기능적이고 기계적인 계획뿐만 아니라 사람의 거주성 또한 배려되도록 다차원적으로 섬세하게 공간들을 조직했다.
지상의 트럭 하차 공간을 확보하면서, 상층부의 필요 면적을 확보하기 위해 올라갈수록 점진적으로 돌출되는 매스가 정면의 이미지를 독특하게 만들었다. 또한, 각 층의 기능에 따라 다르게 요구되는 조도, 조망 조건은 조리개와 같은 유리 커튼월 크기에 변화를 주어 정면의 표정을 다채롭게 했다. 물류 중심 건물이지만, 연구, 영업, 마케팅, 전시(쇼룸) 및 행사(회의, 세미나) 등 다양한 크기의 기능 공간 또한 필요했다. 이는 하나의 건축물 내 공간의 경계에 이형의 외부공간들이 함께하도록 조합했다.
대상지는 큰 도로에 면한 필지와 이면 필지가 합쳐진 땅인데, 필지 안쪽으로 들어갈수록 30년 이상된 다가구주택들로 둘러 싸여 속도, 소리, 스케일, 재료, 시간성 측면에서 큰 도로 쪽 공간과 대비되는 감각을 느끼도록 했다. 물류 중심 공간이지만, 건물 안에서 일하며 머무는 사람들이 건물 곳곳의 내외부 공간에서 그러한 다양한 감각적 경험과 함께 ‘도시 속 안식’을 느낄 수 있도록 재료, 시퀀스, 조경, 경관 등의 측면을 함께 고려했다.



















건축가 김병찬(한국예술종합학교) + 건축사사무소 리스모스
위치 서울특별시 광진구
용도 사무실, 소매
대지면적 494.60㎡
건축면적 291.04㎡
연면적 951.30㎡
규모 6F
건폐율 58.84%
용적률 192.34%
설계기간 2019. 10. - 2020. 11.
시공기간 2020. 12. - 2022. 6.
준공 2022
대표건축가 (Korea National University of Arts)Byungchan Kim, (Rhythmos Architects)Yoojin Kim
디자인팀 (Rhythmos Architects)Dahyun Kim, Soobin Lee, Gahyun Kim, Dakyung Lee, Seunghu Song, Yujin Jeong
구조엔지니어 Won
기계엔지니어 SL
전기엔지니어 Jangin
시공 N1 Construction
발주자 Unikhan
사진작가 texture on texture
해당 프로젝트는 건축문화 2023년 2월호(Vol. 501)에 게재되었습니다.
The project was published in the February, 2023 recent projects of the magazine(Vol. 501).
February 2023 : vol. 501
Contents : NEWS / COMPETITION / BOOKS : SKETCH Things that make a day in your daily life / Hossain mousavi 일상 속에서 하루를 만드는 것들 / 호사인 무사비 : RECENT PROJECT Building of Music / Aisaka Architects’ Atelier 음악 복합공
anc.masilwide.com
'Architecture Project > Office' 카테고리의 다른 글
| KAIST DELTA CENTER Remodeling (0) | 2023.04.18 |
|---|---|
| WOOHYUNJAE II (0) | 2023.04.17 |
| The Hello Kitchen Project (0) | 2023.04.07 |
| Rigaud City Hall (0) | 2023.04.06 |
| Ishigaki City Hall (0) | 2023.04.06 |
마실와이드 | 등록번호 : 서울, 아03630 | 등록일자 : 2015년 03월 11일 | 마실와이드 | 발행ㆍ편집인 : 김명규 | 청소년보호책임자 : 최지희 | 발행소 : 서울시 마포구 월드컵로8길 45-8 1층 | 발행일자 : 매일



