
동네와 연결되는 밝고 열린 사옥
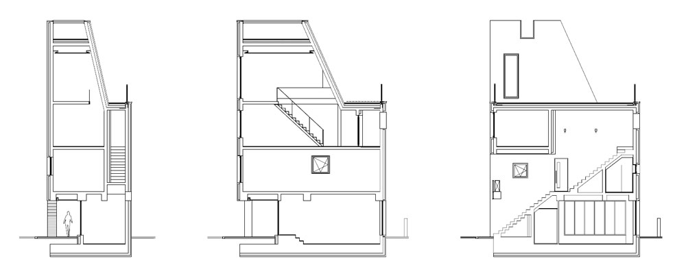
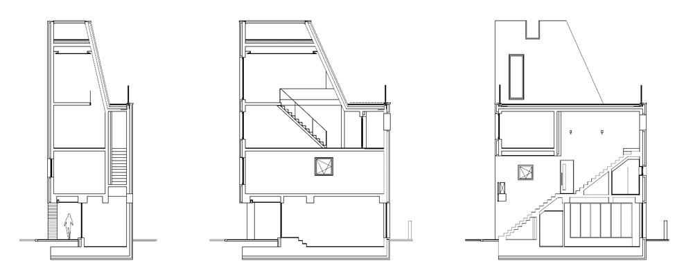
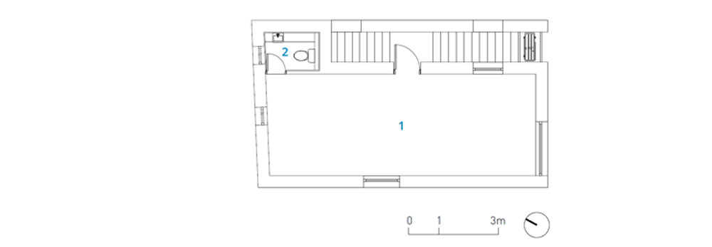
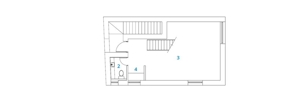
덕정역에서 덕정 서희스타힐스 아파트 단지 방향 코너에 자리 잡은 꼬마빌딩 ‘우현제宇絃第’는 업무시설이다. 주변에는 오래되고 낡은 단독주택들이 많아 옛스러운 흔적이 조용히 묻어나는 곳이다. 덕정동 도시재생 마을과 인접해 있으며 개발이 한창 진행 중이다. 이웃과 어울리는 건축물로서 내부는 크게 임대공간과 건축사사무소 사옥 공간으로 구분된다. 외관의 밝은 노출콘크리트와 큐블록 담장으로 주변과 어울리면서 알루미늄 창호와 어우러져 세련되고 도시적인 이미지를 만든다. 지상 1층 상가 좌측에 있는 외부 마당은 세 개의 장식 기둥을 두어 회랑과 같은 역할을 하고 전면 4m 도로와 배면 연립주택 단지의 마당을 연결해 주는 공공 보행로가 될 수 있도록 계획했다. 깊이감 있는 일자형 외부 계단은 마을과 사옥을 연결해 주는 매개체이며 반 공적장치로서 작용한다. 계단을 따라 올라가면서 보이는 가벽의 개구부들은 채광과 환기를 도와주고 산책로의 감성을 더해준다. 정면 각층에 계획된 알루미늄 시스템창호는 밝고 개방적인 사옥의 입면을 나타내고 있다. 전면도로에서 3층으로 올라가는 폭 1m 계단통로, 깊이 있는 통유리창, 일조권 사선제한에 의한 외부 테라스, 3층과 4층을 연결하는 내부 복층계단 등이 수직 수평적으로 다양한 방의 형태를 만들면서도 단순한 구성적 입면을 만들고 있다. 전면 진입 공간과 외부 계단을 통한 깊이감 있는 입면은 건물사용자와 도시가로 간의 소통을 유도하면서 긍정적이고 정리된 가로 풍경을 만드는 데 일조할 것이다. 마당과 계단은 길이 되고 방이 되어, 마을 주민과 건축물이 친숙하게 연결되기를 희망해 본다.















건축가 Woohyon Architects
위치 경기도 양주시 화합로
용도 근린생활시설
대지면적 86.0㎡
건축면적 46.0㎡
연면적 149.88㎡
규모 지상 4층
건폐율 53.49%
용적률 174.28%
설계기간 2021. 1. - 6.
시공기간 2022. 4. - 10.
준공 2022. 11
대표건축가 / 프로젝트건축가 김동현
디자인팀 김상영
기계엔지니어 / 전기엔지니어 (주)건화이엔씨
시공 (주)윤씨엔씨 종합건설
사진작가 김용수
해당 프로젝트는 건축문화 2023년 2월호(Vol. 501)에 게재되었습니다.
The project was published in the February, 2023 recent projects of the magazine(Vol. 501).
February 2023 : vol. 501
Contents : NEWS / COMPETITION / BOOKS : SKETCH Things that make a day in your daily life / Hossain mousavi 일상 속에서 하루를 만드는 것들 / 호사인 무사비 : RECENT PROJECT Building of Music / Aisaka Architects’ Atelier 음악 복합공
anc.masilwide.com
'Architecture Project > Office' 카테고리의 다른 글
| 9.639 - An Inserted Variable Office (0) | 2023.04.19 |
|---|---|
| KAIST DELTA CENTER Remodeling (0) | 2023.04.18 |
| UNIKHAN DISTRIBUTION CENTER SEOUL (0) | 2023.04.12 |
| The Hello Kitchen Project (0) | 2023.04.07 |
| Rigaud City Hall (0) | 2023.04.06 |
마실와이드 | 등록번호 : 서울, 아03630 | 등록일자 : 2015년 03월 11일 | 마실와이드 | 발행ㆍ편집인 : 김명규 | 청소년보호책임자 : 최지희 | 발행소 : 서울시 마포구 월드컵로8길 45-8 1층 | 발행일자 : 매일



