
THE CONTEXT
This building is one of the main wings of the former Saint-Etienne arms factory. This industrial estate was built in 1864. It covers an area of twelve hectares to the north of the city centre. Designed in the spirit of the rationalist architecture of the 18th century, such as Claude Nicolas Ledoux's saltworks or the Grand-Hornu near Mons, the factory is an industrial and military "palace" composed of white stone and red brick. It embodies the aesthetic ideal of an era intoxicated by the fortunes generated by the industrial revolution. It is also an emblematic site in the history of the city, whose conversion into a creative district hosts prestigious programmes such as the Cité du Design and university branches as well as the Centre des Savoirs pour l'Innovation (CSI).
Here, the meeting of the industrial architectural heritage with the world of culture and knowledge of today has undeniably generated a "genius loci ». "Les Forges" is the building that forms the eastern facade of the former industrial city. The neoclassical building was a 135 m long workshop that was 22 m high. The decline of the factory led to its final closure in 1989. The entire site was abandoned to the wonderful fate of wasteland before being listed as a historical monument in 2006. The forge is one of the elements that will have waited the longest for its reconversion. It endured almost 30 years of abandonment and even burned down in part. All that remained of it were four deteriorated facades, the main one of which was gutted out.
THE CHALLENGE
The CSI was set as close as possible to the remains of the Forges workshop. Because the program was larger than the existing building, a third of the requested areas exceeded its capable volumes; a third was to submerge above its bourgeois cornices.
THE CONCEPT
The architecture has sought a fragile and exciting balance between a heritage listed as a historical monument and a contemporary style. The attic has been designed on the borders of minimalism, where this major artistic trend pushes the picturesque referent to the limit of abstraction. This referent is drawn from the industrial functionalism of the 19th century.
It was a time when natural light was a must and the facades of the workshops vied with each other to capture it. It was a time when Romanticism was slowly moving towards modernity. With this in mind, the extension building volume was designed as a glass abstraction with a timeless pre-weathered metal. The object is materialised by a systematic repetition of vertical bands alternating glass and metal. These graphic lines follow one another in an inflexible rhythm and run across the four façades of the project. Seen from the front, the rusty steel strips hide from view and give a transparent massiveness. Seen in profile, the steel blades quickly hide the thin openings and give the impression of opaque massiveness. Thus, those who walk along this façade will see it become more opaque the further they look. The six bays of arcades, formerly destroyed in the central part after the building was abandoned, have been reconstituted in this spirit of atemporal abstraction. Here, the steel blades are densified on the traces of the stone arches to evoke their disappeared contours.
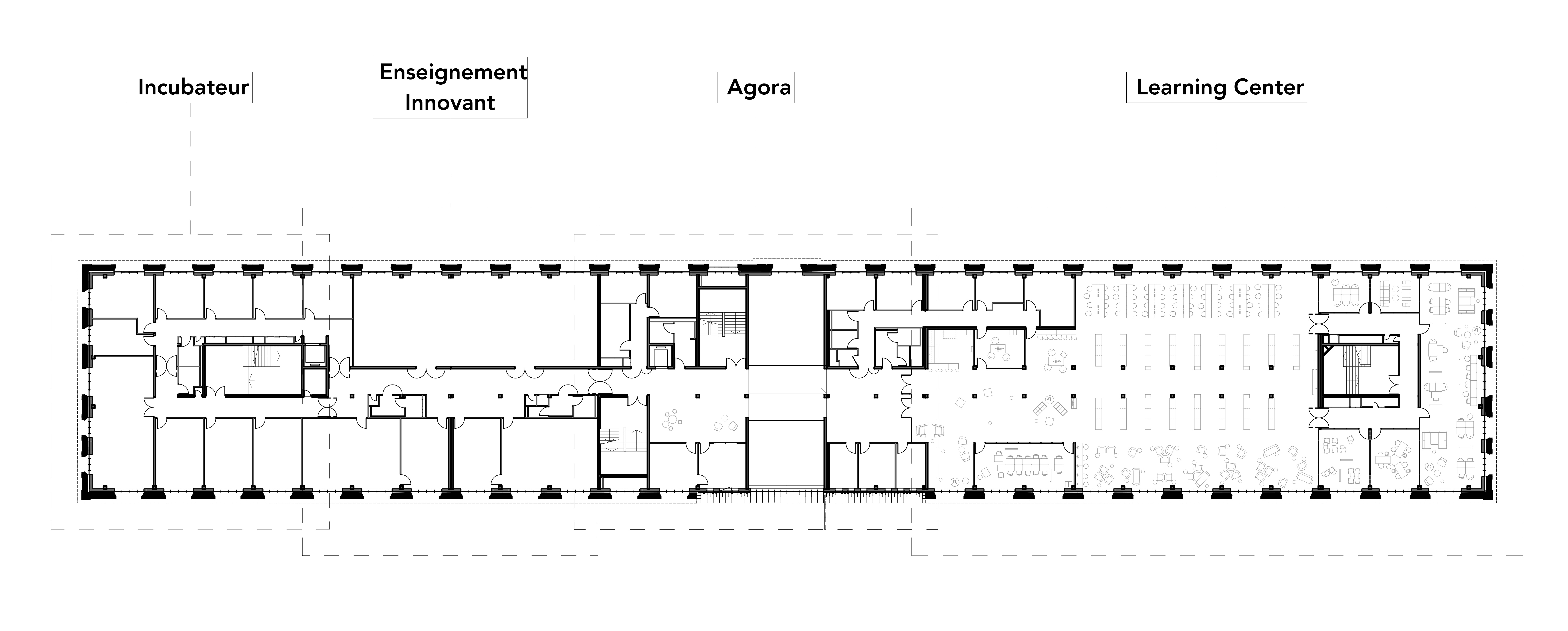
Three levels have been developed in the envelope of the former workshop. The ground floor is dedicated to the Innovation Centre, which consists of new workshops that house high-tech machines for applied research. The first floor is divided between a Learning Center (resource centre), a business incubator and innovative teaching. Finally, the top floor is entirely occupied by a teaching centre. The interior architecture is sober and bright. The muffled ambiences combine whites and matt minerals with raw concrete. The agora sets the scene for this theme on a triple height. The roof is covered with zinc and oriented in an impluvium to make it disappear into the urban landscape and to reduce the depth of the skylights intended to naturally light the central axis of the floors. No unsightly machines such as air handling units were placed on this roof. All these elements have been integrated into the built volumes. Finally, the structural stone of the remains was restored and integrated into the overall static scheme. A singular complex, interposing a wood-frame wall and concrete porticos to the stone, was designed especially for this operation.
















건축가 K ARCHITECTURES SIGWALT HERMAN
용도 INNOVATION CENTRE, RESOURCES AND DOCUMENTARY SERVICES CENTRE, TEACHING CENTRE, APPLIED RESEARCH WORKSHOPS
프로젝트팀 K ARCHITECTURES (Aline Royer, project manager architect) with, AIA LIFE DESIGNERS (Technical, economic and environmental design office), ITAC (acoustician)
준공 2022.9.
발주자 UNIVERSITÉ JEAN MONNET ET EPASE
'Architecture Project > Office' 카테고리의 다른 글
| MAZZOLENI (0) | 2023.03.31 |
|---|---|
| Tekirdağ Metropolitan Municipality Complex (0) | 2023.03.29 |
| Damon Studio (0) | 2023.03.17 |
| Antwerp City Hall (0) | 2023.03.02 |
| Czech Radio Olomouc (0) | 2023.02.28 |
마실와이드 | 등록번호 : 서울, 아03630 | 등록일자 : 2015년 03월 11일 | 마실와이드 | 발행ㆍ편집인 : 김명규 | 청소년보호책임자 : 최지희 | 발행소 : 서울시 마포구 월드컵로8길 45-8 1층 | 발행일자 : 매일



