
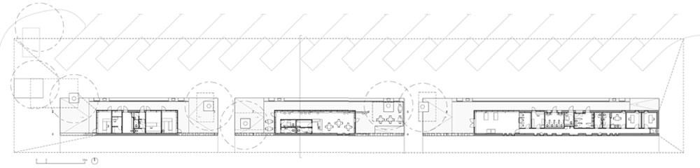
The existing bus station in Slavonski Brod is in a logical location in the city. It is situated along Petra Svačića Street (City Avenue) and the railway station with an overpass that connects the north and south sides of the city. Unfortunately, the existing building, a building in the manner of peaceful and decent architecture, only partially gives an indication of the former potential due to the intertwined property and legal relations. Due to the impossibility of renovation and reconstruction of the existing building as a whole, it became clear to search for new possibilities. The optimal alternative proved to be a linear building composition on the opposite side of the road in relation to the existing bus station, and right next to the city avenue. The concept was to create a straightforward design / STATION + RETAIL SPACES + PARK. Between the existing tall trees are three elongated volumes that carry a canopy. The eaves connect the new and built with the existing and its tall greenery.
The composition derives from thinking about the logic of arranging elements (platforms, pavilions, walls, benches, canopy, trees …) and their purpose. The idea is to use the same elements for different purposes while reducing the number of elements and surfaces in the space. The platform is both a bench and a terrace, the eaves are both a roof and a tree canopy as are the wall's partitions and structure. The three cubic pavilions are of similar volume and different purposes. Looking from east to west in the first pavilion there is a reception of passengers with ticket sales, information desk, waiting room, toilets, and administration. In the middle cube, there is a coffee bar, and in the west, there is a bakery, a multipurpose bar, a kiosk, and a technical space. The found trees in the crevices emphasize the approaches to the ramps, platforms, complete the ambiance of the terraces in front of the bar or waiting room, while intuitively creating a welcoming effect. The roof was treated as a funnel, covered with sheet metal, occasionally cut by penetrations intended for the canopy of existing and new trees, with a continuous indentation at the lowest elevation. The walls towards the Petra Svačića Street, i.e. the full surfaces of the pavilion towards the platforms, are a system with an external face made of COR-TEN steel. Glass façade dominates on the north side towards the platforms, while on the south they appear as occasional penetrations in the rhythmic alternation of walls.

슬라본스키브로드(Slavonski Brod)의 기존 버스 정류장은 페트라 스바치차 거리(Petra Svačića Street, 시내 도로)와 도시의 북쪽과 남쪽을 연결하는 고가도로 가에 있었다. 기존 건물은 이와 얽힌 재산적, 법적 문제로 인하여 기존의 역할을 제대로 수행하지 못하고 있었다. 기존 건물을 전체적으로 보수하거나 재건축하는 것은 불가능한 상황이었고, 결국 최적의 대안으로 기존 버스 정류장 도로 반대편인 시내 도로 바로 옆에 기다란 형태의 건물을 추가로 세우는 것이었다. 설계 개념은 직관적인 디자인의 터미널이면서, 상업 공간과 공원을 함께 수행할 수 있는 공간을 조성하는 것이었다. 이렇게 디자인된 터미널은 기존의 키가 큰 나무 사이에 캐노피를 받치고 있는 세 개의 길쭉한 매스가 있는 모습이다. 처마는 신축 건물과 기존 건물 및 키 큰 나무를 연결한다.
이 구성은 요소(플랫폼, 파빌리온, 벽, 벤치, 캐노피, 나무 등)를 배열하는 논리와 그 목적에 대한 고민에서 비롯되었으며, 이러한 발상은 공간의 요소와 표면의 수를 줄이면서 다양한 목적을 위해 동일한 요소를 사용하는 것이라 할 수 있다. 플랫폼은 벤치이면서 테라스이고, 처마 및 벽의 칸막이와 구조는 지붕이자 나무 캐노피다. 큐브 형태의 세 개의 파빌리온은 비슷한 부피와 다른 용도를 지니고 있다. 승객의 접수처인 첫 번째 파빌리온에는 동쪽에서 시작해 서쪽으로 매표소, 안내 데스크, 대기실, 화장실 및 관리실이 있다. 가운데의 정육면체에는 커피 바가 있고 서쪽의 건물에는 베이커리, 다목적 바, 키오스크 및 기술 공간이 있다. 틈새의 나무들은 경사로 및 플랫폼으로의 접근을 강조하고, 바 또는 대기실 앞 테라스의 분위기를 완성하며, 환영하는 효과를 직관적으로 자아낸다. 지붕은 판금으로 덮여있고 캐노피와 나무를 위한 개구부를 위해 곳곳이 뚫렸으며, 입면의 가장 낮은 부분에서 연속적으로 움푹 패어 있다. 시내 도로를 향한 벽, 즉 플랫폼을 향한 파빌리온의 전체 표면은 내후성 강판으로 구성된 외부 표면이 있는 시스템이다. 플랫폼을 향한 북쪽은 유리 파사드로 이루어진 반면, 남쪽은 리드미컬한 벽의 교대를 통해 간헐적인 관통이 나타난다.










건축가 SANGRAD+AVP architects
위치 크로아티아, 슬라본스키브로드
용도 Bus Terminal
대지면적 5,771㎡
연면적 377㎡
준공 2022
디자인팀 Vedran Pedišić, Ida Katić, Martina Petrač
구조엔지니어 RADIONICA STATIKE_Josip Galić
전기엔지니어 MBT inženjering_Marijan Marciuš
협업 (Heating and ventilation installation) OMEGA PROJEKT_Tomislav Ljubek / (Water and sewage installation) NORD-ING_Božica Magdalenić / (Energy Efficiency and Acoustic) AKFZ STUDIO_Mateo Biluš / (Fire protection and Health and Safety) INSPEKTING_Josip Radeljić / (Landscape planning)Ksenija Jurčić Diminić / (Visual identity) Zoran Đukić
시공 GIC GRADNJE HRVATSKA
발주자 Town Slavonski Brod
사진작가 Erick Velasco Farrera, Branko Drakulić
해당 프로젝트는 건축문화 2023년 2월호(Vol. 501)에 게재되었습니다.
The project was published in the February, 2023 recent projects of the magazine(Vol. 501).
February 2023 : vol. 501
Contents : NEWS / COMPETITION / BOOKS : SKETCH Things that make a day in your daily life / Hossain mousavi 일상 속에서 하루를 만드는 것들 / 호사인 무사비 : RECENT PROJECT Building of Music / Aisaka Architects’ Atelier 음악 복합공
anc.masilwide.com
'Architecture Project > Other' 카테고리의 다른 글
| Parking house in Dolni Brezany (0) | 2023.04.28 |
|---|---|
| Parkeergarage A1 (0) | 2023.04.27 |
| Glowing Bicycle Station in Bergamo (0) | 2023.04.25 |
| Bus Station Tilburg (0) | 2023.04.24 |
| Oostende station (0) | 2023.04.21 |
마실와이드 | 등록번호 : 서울, 아03630 | 등록일자 : 2015년 03월 11일 | 마실와이드 | 발행ㆍ편집인 : 김명규 | 청소년보호책임자 : 최지희 | 발행소 : 서울시 마포구 월드컵로8길 45-8 1층 | 발행일자 : 매일



