
Construction was completed on Rigaud City Hall, a new civic administration facility for a small Quebec community fifty kilometres west of Montreal. Located at the confluence of the Rigaud and Ottawa rivers, Rigaud is noted for its natural attractions and historic village center which dates back to New France. Designed by Affleck de la Riva Architects, the project gives new meaning to public administration and municipal activities in Rigaud through an urban redevelopment plan that proposes both the reorganisation of a section of the historic village center and the new city hall building. A pedestrian promenade connects existing public amenities with new facilities, redevelops several vacant lots and links the heart of the village to the Rigaud River.
White on White: Democracy and Transparency While Rigaud City Hall is a modest building respectful of the scale of its municipality, it projects a strong civic image. Accessible and close to the ground, in dialogue with both the citizen and its territory, the new city hall symbolizes community, pride and participation in collective life. The architecture of the new city hall alludes to the archetype of the classical temple whose form is associated with the birth of democracy. White on white, the building evokes clarity, honesty and freedom of expression - values essential to the proper functioning of civil society. Luminous and unadorned, the building blends into the northern landscape of the Ottawa Valley.
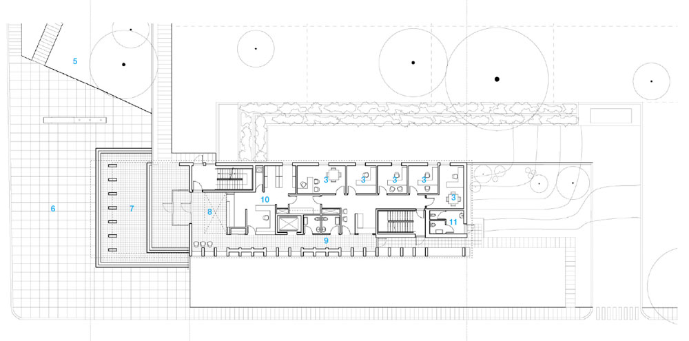
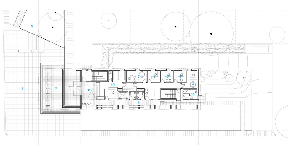
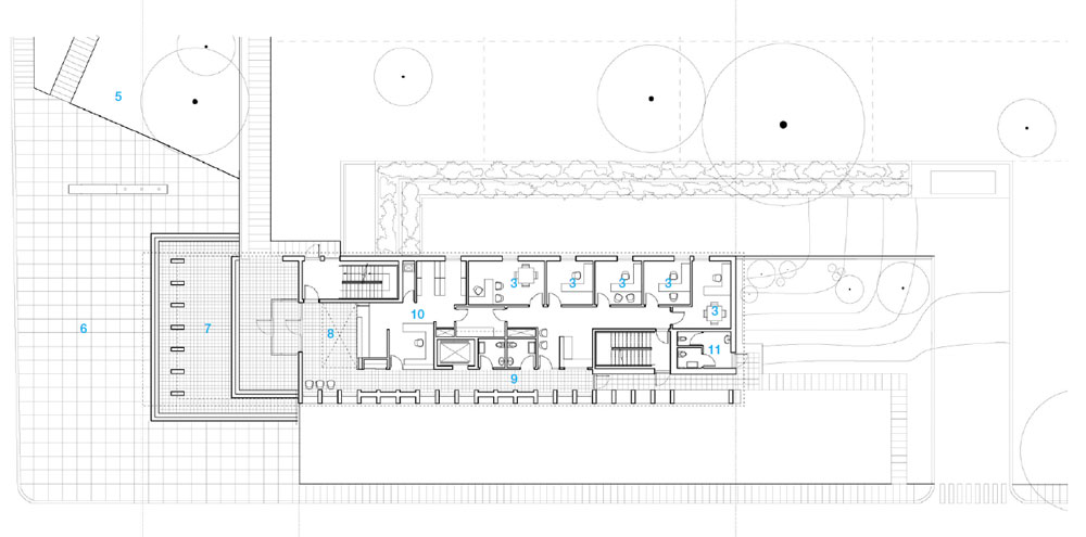
The council chamber is suspended above the plaza and main entrance to the city hall creating a signal highly visible from neighbouring streets. Fully glazed on three facades, the chamber presents the exercise of democracy as a transparent activity. Beneath this volume a generous outdoor area offers a protected space for meetings and gatherings. The east and north facades of the building are punctuated by a white aluminum colonnade. The columns give way to white masonry on the other facades. The integration of the logo of the City of Rigaud in the masonry of the north façade adds a touch of color and identifies the municipal function of the building. Passing through the colonnade, the main entry leads directly to a foyer illuminated by a skylight. Open on two floors, the foyer extends laterally towards a corridor along the colonnade. A nordic ‘stoa’ that offers continuous contact with the landscape, this is a privileged meeting place for citizens and administrators.
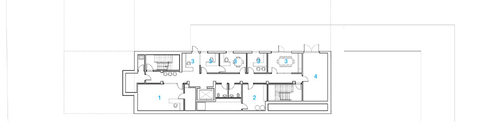
Bioclimatic Architecture While nordicity is an essential element of the image of the city hall, the building also responds to climatic realities and provides a high level of comfort to its users. The integration of the building into the site's topography creates three levels and buries the first level on the north side. Technical rooms are located in this buried area, while the offices on the south side are distributed over three floors with natural lighting and passive solar gains offered on each level.

몬트리올에서 서쪽으로 50km 떨어진 작은 퀘벡의 마을을 위한 새로운 행정시설인 리고 시청이 지어졌다. 리고 강과 오타와 강이 합쳐지는 지점이 있는 리고는 뉴프랑스로 거슬러 올라가는 역사적 마을 중심지로 유명하다. 이 프로젝트는 도시 재개발 계획을 통해 역사적인 마을 중심지의 일부와 새로운 시청 건물을 제안하는 것으로, 리고의 공공 행정과 지방 자치 활동에 새로운 의미를 부여한다. 보행자 산책로는 기존 공공시설과 새로운 시설을 연결하면서, 몇 개의 공터를 개발하고, 마을의 중심부와 리고 강을 연결한다.
화이트 온 화이트: 민주주의와 투명성 리고 시청은 지방 자치단체의 규모를 존중한 소박한 건물이지만, 강력한 시민 이미지를 보여준다. 거리에서 가깝게 접근할 수 있고, 시민과 지역 모두와 대화하는 새로운 시청은 공동체, 자부심, 집단생활의 참여를 보여준다. 새로운 시청의 건축은 민주주의의 탄생과 관련된 형태를 가진 고전적인 사원의 원형을 암시한다. 흰색 바탕에 흰색이 칠해진 리고 시청은 시민 사회의 적절한 기능에 필수 가치인 명확성, 정직성, 표현의 자유를 환기한다. 빛나고 꾸밈이 없는 이 건물은 오타와 계곡의 북쪽 풍경과 어우러진다.
시의회 회의실은 시청 정문과 광장 위에 두어 주변 거리에서 모두 잘 보일 수 있게 했다. 세 면이 유리로 된 회의실은 민주주의의 행사를 투명한 활동으로 보여준다. 이 공간 아래에 있는 넓은 야외 공간은 사람들이 모일 수 있는 보호된 공간을 제공한다. 시청의 동쪽과 북쪽 정면에는 흰 알루미늄의 기둥이 늘어선 주랑이 뚫려 있다. 기둥은 다른 면들의 하얀 벽돌에 자리를 내어준다. 북쪽 파사드의 벽돌 건물에는 리고 시의 로고가 더해져 색채를 더하고, 지방 자치 건물의 기능을 나타낸다. 주랑을 지나면 만나는 주 출입구는 천창으로 빛이 들어오는 로비로 이어진다. 2층 높이로 열린 로비는 복도 쪽으로 주랑을 따라 확장된다. 풍경과 지속해서 접촉하게 하는 북유럽의 '스토아'인 이곳은 시민과 공무원들의 만남의 장소이다.
생물과 기후의 건축 노르딕함은 시청 이미지에 필수적인 요소지만, 건물은 기후 현실에 대응하고, 사용자들에게 높은 수준의 편안함을 제공해야 했다. 통합된 시청은 대지의 지형에 맞춰 북쪽으로는 1층이 묻힌 3층 높이의 건물로 지어졌다. 기계실은 이 땅에 묻힌 위치에 있으며, 사무실은 남쪽으로 3층에 걸쳐 배치되었다. 모든 층에는 충분한 햇빛이 들어오며, 태양열을 흡수할 수 있게 했다.














Architect Affleck de la Riva
Location Rigaud, Quebec, Canada
Program City hall
Gross floor area 975㎡
Building scope 3F
Completion 2018
Project architect Gavin Affleck
Design team Gavin Affleck, Richard de la Riva, Daniel Guenter, Sébastien Genest, Karyne Archambault, Jan-Bathyste Goudreau, Muhidin Kadrić, Serge Gascon, Mylène Moliner-Roy
Structural engineer MLC et associés
MEP engineer MLC et associés
Construction Construction Cogela
Client City of Rigaud
Photographer Adrien Williams
해당 프로젝트는 건축문화 2023년 1월호(Vol. 500)에 게재되었습니다.
The project was published in the January, 2023 recent projects of the magazine(Vol. 500).
January 2023 : vol. 500
Contents : RECORDS Peek into the future of architecture and urban space through data from various fields 다양한 분야의 데이터로 건축·도시공간의 미래를 엿보다 Seoul's Urban and Architecture Field in Walking 걸어보며 느끼는 서
anc.masilwide.com
'Architecture Project > Office' 카테고리의 다른 글
| UNIKHAN DISTRIBUTION CENTER SEOUL (0) | 2023.04.12 |
|---|---|
| The Hello Kitchen Project (0) | 2023.04.07 |
| Ishigaki City Hall (0) | 2023.04.06 |
| Town Hall in Prague (0) | 2023.04.06 |
| The Garage Project (0) | 2023.04.06 |
마실와이드 | 등록번호 : 서울, 아03630 | 등록일자 : 2015년 03월 11일 | 마실와이드 | 발행ㆍ편집인 : 김명규 | 청소년보호책임자 : 최지희 | 발행소 : 서울시 마포구 월드컵로8길 45-8 1층 | 발행일자 : 매일


