
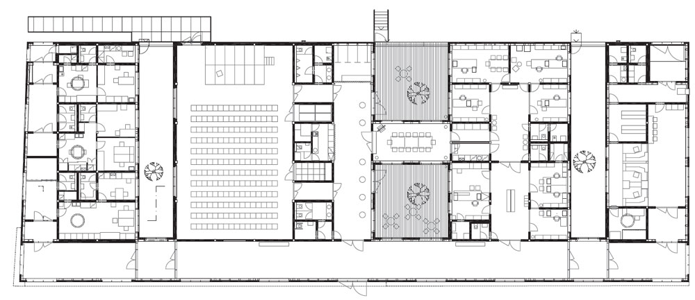
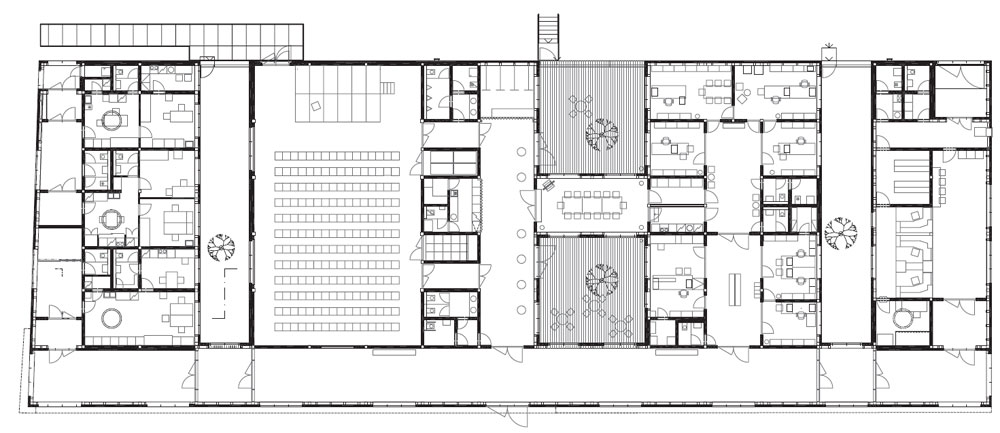
A simple, single-story, accessible house is not a monument but rather an instrument for it’s users of all ages / The essence of the design is maximum openness and transparency, light and air / no demonstration of the magnitude of the building but an emphasis on it’s public service instead / four separate sections (doctors' offices, multifunctional hall, municipality, post office) connected by the vestibule / vestibule as an arcade and a "relieving" area during balls, events and concerts and a occasional space for exhibitions / the inner atrium to illuminate internal spaces / mutual synergy, sections may vary according to the actual use / neutral materials for the civil character of the interior space and the light / front side of the patterned façade has a variable silver-white, reflective effect for greater identification of citizens with a "abstract box" Text by A.LT Architekti

단순한 단층의 모두가 접근할 수 있는 집은 기념비적인 건물이 아닌 모든 연령대가 사용할 수 있는 도구다. 설계의 주안점은 최대한의 개방성과 투명성, 빛과 공기였다. 또, 건물의 규모를 보여주는 것이 아닌 공공 서비스를 강조하고자 했다. 연결통로와 이어진 분리된 4개의 구역에는 의사 사무실, 다목적 홀, 자치단체, 우체국이 있다. 연결통로는 무도회, 행사와 콘서트 등의 다양한 프로그램을 진행할수 있게 하는 ‘보조’ 공간으로 가끔 전시가 열리기도 한다. 내부 아트리움은 내부 공간을 비춘다. 서로 시너지를 줄 수 있는 공간으로 실제 사용에 따라 다양한 역할을 할 수 있다. 실내 공간의 빛과 인테리어는 시민의 성격을 반영한 중립적인 재료를 사용했다. 반짝이는 은백색의 패턴이 들어간 입면은 반짝이며 시민들이 어 잘 알아볼 수 있도록 한다.









Architect A.LT Architekti
Location Ďáblice, Prague, Czech Republic
Program Civic, Post office, Doctor's office
Gross floor area 1,685㎡
Building scope 1F
Design period 2013 - 2015
Construction period 2017 - 2018
Completion 2018
Principal architect Peter Lacko, Filip Tittelbach
Client Municipal district Prague 8
Photographer Tomáš Balej
해당 프로젝트는 건축문화 2023년 1월호(Vol. 500)에 게재되었습니다.
The project was published in the January, 2023 recent projects of the magazine(Vol. 500).
January 2023 : vol. 500
Contents : RECORDS Peek into the future of architecture and urban space through data from various fields 다양한 분야의 데이터로 건축·도시공간의 미래를 엿보다 Seoul's Urban and Architecture Field in Walking 걸어보며 느끼는 서
anc.masilwide.com
'Architecture Project > Office' 카테고리의 다른 글
| Rigaud City Hall (0) | 2023.04.06 |
|---|---|
| Ishigaki City Hall (0) | 2023.04.06 |
| The Garage Project (0) | 2023.04.06 |
| Projet U (0) | 2023.04.05 |
| Etterbeek City Hall (0) | 2023.04.05 |
마실와이드 | 등록번호 : 서울, 아03630 | 등록일자 : 2015년 03월 11일 | 마실와이드 | 발행ㆍ편집인 : 김명규 | 청소년보호책임자 : 최지희 | 발행소 : 서울시 마포구 월드컵로8길 45-8 1층 | 발행일자 : 매일



