
Located in the residential site development district carved out of a mountain, the target site is sitting on a slope above the underground bedrock and lies on the border with Mt. Hamwol towards the south. It is a cornered site facing the main road with heavy traffics and the sub-road where the road expansion has not much progressed. It was a project proposed by the client, who was running a Chinese restaurant within the vicinity, by planning a new Chinese restaurant to prepare a new home.
Paradoxical Formation
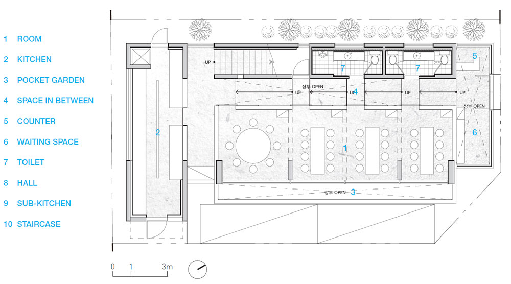
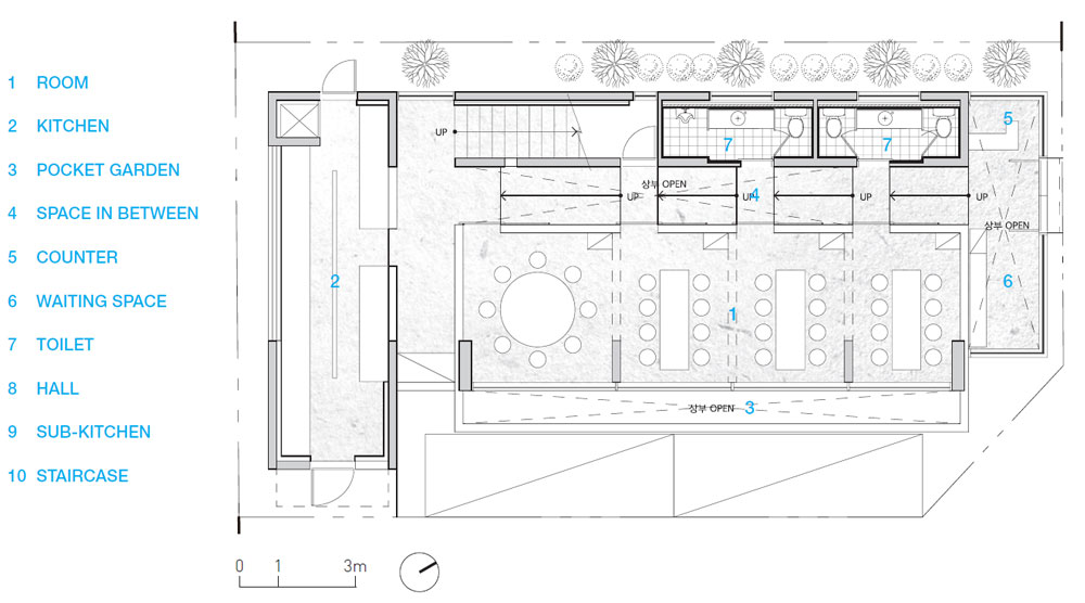
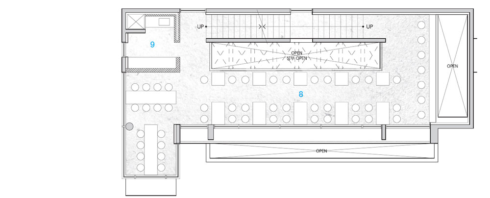
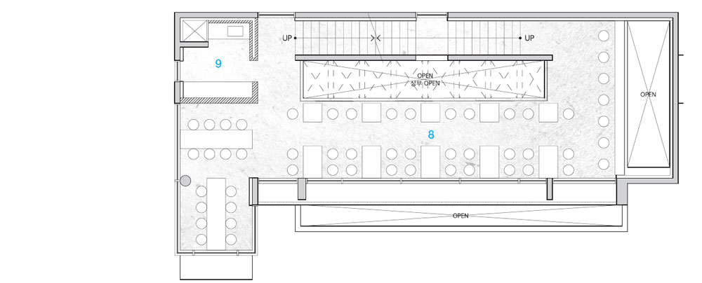
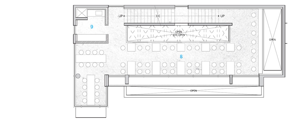
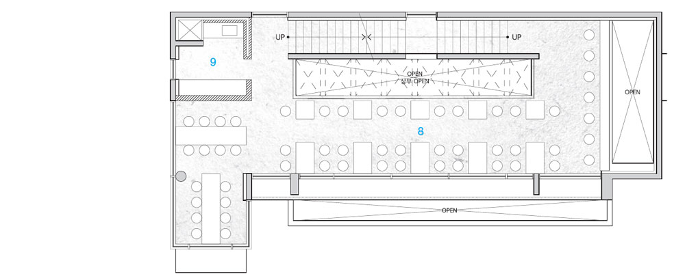
If the foundation is filled as much as the height of the sloping bedrock with the underground bedrock, the floor height of the first floor will increase by 1.2m. This is fatal for the accessibility of commercial architecture. However, there were many issues owing to the density of the surrounding residential facilities and the increase in the construction costs to proceed with the bedrock construction. Conventionally, restaurants have a large hall on the first floor, and private rooms are located on the second floor or in an invisible space. Rather, the formation of the program was paradoxically reformed by taking advantage of the poor conditions of the site. Private rooms were placed on the first floor, where there is heavy traffic, and an open hall was constructed on the second floor availing the view towards Mt. Hamwol and the sceneries. By utilizing the height difference of the terrain, the height of the first floor’s floor for each room was made to change according to the terrain.
Space Between Connected by Light
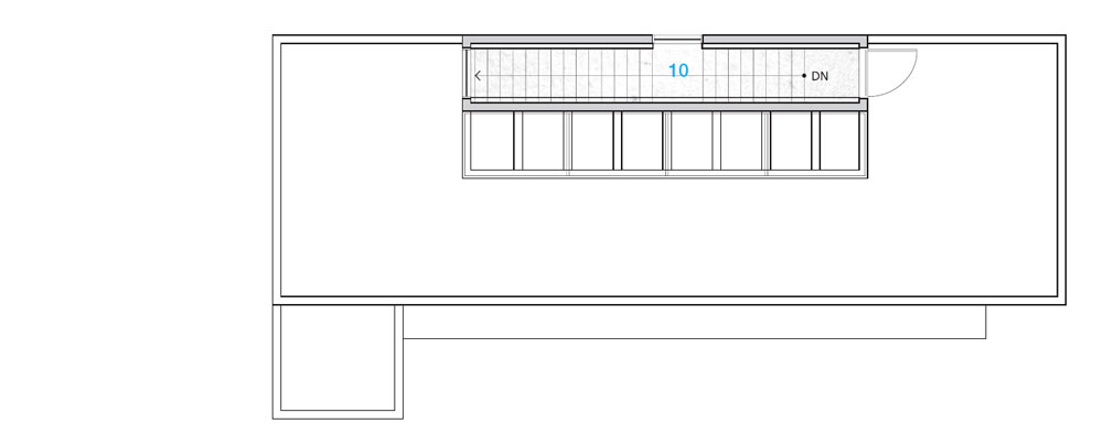
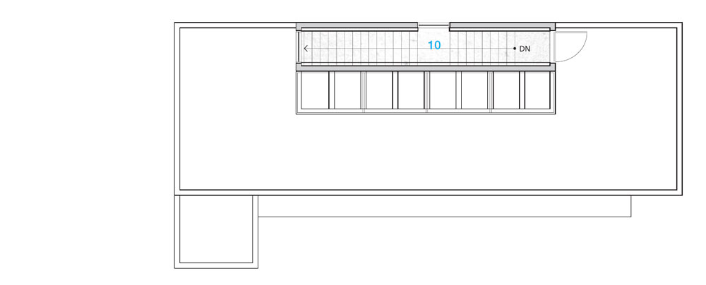
The closed space on the first floor and the open space on the second floor meet in the middle open space. This is a space filled with light falling from the ceiling. The stairs leading to the second floor are usually placed at or towards the entrance, whereas in Lóngmén, it was situated towards the inside to allow one to experience and bypass the light filled space between. The shadows created by the light falling from the skylight in the space between are cast on the walls of the straight staircase, thereby allowing one to experience the passage of time in the shape of the shadows that change according to the movement of light, which plays a role in creating a balance between the closed and open spaces.
Variability of Space
The four-layered indoor space utilizing the topographical height difference on the first floor was partitioned with variable walls. They may be used as a single space or as several divided spaces as necessary. If all the spaces are opened and made into a single space, a theater-like stage is naturally formed according to the height difference. The space consisted of rooms was designed to operate as a screen relating to the city by creating a pocket garden, which is a space between, to visually block the open road with heavy traffics.

산을 깎아 만든 택지 개발 지구에 놓여 있는 대상 부지는 지하 암반 위 경사지에 위치하고 있으며 남쪽으로 함월산과의 경계에 놓여 있다. 차량의 통행이 많은 주도로와 도로 확장이 진행되지 않은 부도로에 접한 코너 대지이다. 중식당을 주변에서 운영하고 있던 건축주가 새로운 보금자리를 마련하고자 하여 새로운 중화요리 전문점을 기획하여 제안한 프로젝트였다.
역설적 구성
지하 암반이 있는 경사지는 암반 높이만큼 기초를 성토하면 1층의 바닥 높이가 1.2m가량 높아진다. 이는 상업건축이 가지는 접근성에 치명적이다. 그렇다고 암반 공사를 진행하기에는 주변의 주거 시설이 밀집되어 있고 공사비의 증가로 많은 문제점을 가지고 있었다. 일반적으로 음식점은 1층에 넓은 홀을 두고 사적인 룸은 2층이나 보이지 않는 공간에 구성한다. 대지가 가진 악조건을 오히려 활용하여 프로그램의 구성을 역설적으로 재구성하였다. 차량의 통행이 많은 1층에 사적인 룸을 두고 함월산과 풍경이 있는 2층에 열린 홀을 구성하였다. 지형의 높이차를 활용하여 룸마다 1층 바닥의 높이를 지형에 따라서 다르게 변화되도록 만들었다.
빛으로 연결된 사이 공간
1층의 닫힌 공간과 2층의 열린 공간은 중간의 오픈된 사이 공간에서 만나게 된다. 이곳은 천장에서 떨어지는 빛으로 충만한 공간이다. 2층으로 이동하는 계단은 보통 진입부에 배치하는 반면 용문에서는 빛이 가득한 사이공간을 경험하고 우회하도록 안쪽에 배치하였다. 직선 계단의 벽에는 사이공간의 천창에서 내리는 빛이 만든 그림자가 드리워져, 빛의 움직임에 따라 변하는 그림자의 모습에 시간의 흐름을 경험하게 하며, 이는 닫힌 공간과 열린 공간의 균형을 만드는 역할을 한다.
공간의 가변성
1층의 지형 높이차를 활용한 4단의 실내 공간은 가변형 벽체로 구획하였다. 필요에 따라서 하나의 공간으로 또는 여러 개의 나뉜 공간으로 이용할 수 있다. 모든 공간의 구획을 열어서 하나의 공간으로 만들면 자연스럽게 높이차에 따라 생긴 극장 같은 무대가 형성된다. 룸으로 구성된 공간은 차량의 통행이 많은 열린 도로와의 시각적 차단을 위하여 사이 공간인 포켓 정원을 만들어 도시와 관계하는 하나의 스크린 역할을 하도록 하였다.










Architect ON Architects Inc.
Location Seongan-dong, Jung-gu, Ulsan, Republic of Korea
Use Neighborhood Living Facilities
Site area 223.9㎡
Built area 134.19㎡
Total Floor area 230.68㎡
Floor 2F
Structure Reinforced Concrete
Exterior finish Euroform Exposed Concrete
interior finish eco-friendly VP
Lead architect Woongsik Jung
Construction Eunhee Kim
Photographer Joonhwan Yoon
해당 프로젝트는 건축문화 2022년 12월호(Vol. 499)에 게재되었습니다.
The project was published in the December, 2022 recent projects of the magazine(Vol. 499).
December 2022 : vol. 499
Contents : RECORDS Communicate with the city, Encounter architecture, Discover a story: 'Open House Seoul 2022' 도시와 소통하다, 건축을 만나다, 이야기를 발견하다: ‘오픈하우스서울 2022’ To Demonstrate the Era of Carbon Neutra
anc.masilwide.com
'Architecture Project > Commercial' 카테고리의 다른 글
| Soseum (0) | 2023.04.06 |
|---|---|
| Daewang-Rock (0) | 2023.03.31 |
| Plain Color (0) | 2023.03.27 |
| MORE FUN (0) | 2023.03.09 |
| BEEERPARK, Huicheng (0) | 2023.03.08 |
마실와이드 | 등록번호 : 서울, 아03630 | 등록일자 : 2015년 03월 11일 | 마실와이드 | 발행ㆍ편집인 : 김명규 | 청소년보호책임자 : 최지희 | 발행소 : 서울시 마포구 월드컵로8길 45-8 1층 | 발행일자 : 매일



