
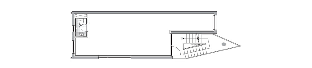
The site is located at about the mid of the narrow alley formed between Hapejeong station and Sangsu station. In the surroundings, low-rise residential buildings made of bricks form a street atmosphere. On the opposite of the site, Dangin-ri power plant, which has been staying at this place since 1930, has just completed the underground construction and its large outer space is ready to open to the public, however, a boundary retaining wall forms the opposite side of the narrow alley. It is 5.6m by 17m, narrow and long and borders 3m-wide lanes. The facade is rather narrow, while the rear is relatively wide. It remained vacant for long amongst old residential areas. There are 2-4 storied houses around and lately cafes, design offices have moved into. The facade looks to southeast and the rest buildings around. The rear and right sides of the site are affected by the sunlight oblique line of due north direction. The land is flat with northern low hills nearby.
Design Strategy_1
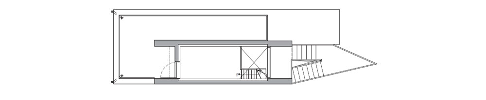
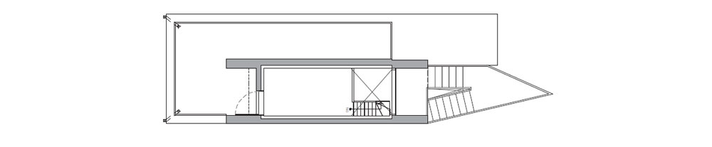
All buildings in residential areas are subject to the oblique line for the right of sunlight in the due north direction. The setback regulations of the right of sunlight stipulate the allowable outermost boundary as well as the maximum volume of the building. All sites, where the construction is available, are different in shapes, orientations, and areas, and thus those all entail the virtual volumes with different shapes that should not be invaded. Soseum is located in a residential area. We planned Soseum to be a characteristic volume by actively accommodating the legal restrictions applied to it. Both the side of setback regulations in due north direction and the elevation of the building stay with a parallel plane. It was designed to maintain the directionality to the point that such an extending slope and a vertical wall meet together, and to extend it further with no interruption to create the rising volume and peaked inner space.
Design Strategy_2
The wall of the Dangin-ri Power Plant is blocking one side of the alley of 3-meter-wide in the site, where Soseum is located, and the residential facilities such as the multiplex houses and multi-dwelling houses are standing in series around the other side of the alley. Most of the buildings standing around the street mainly showed outer walls with minimum windows planned, and it was difficult to find the public spaces for interaction with each other such as parks around them. We considered so that Soseum can be created as a space for flexible and vigorous interactions by giving a breathing room through retreating from the frontal road and expanding the stairs to the public domain and opening the elevation.
Design Strategy_3
We planned the Soseum as an open elevation toward the alley. It contributes to a creation of a bright street environment by designing the elevation facing the street to be a wide window. We also designed the eave so that the sunlight can be adjusted according to the season by expanding the elevation in order to reduce the sunlight load in the summer due to the high and wide front windows.

소슴당인은 합정역과 상수역 사이에 형성된 좁은 골목길 중간에 있다. 대지 주변은 벽돌을 주재료로 하는 저층 주거의 건물이 거리의 분위기를 형성하고 있다. 대지 건너편에는 1930년 이후로 이곳을 지켜온 당인리발전소가 지하화 공사를 마무리 짓고 넓은 외부 공간은 민간 개방을 앞두고 있지만 경계를 이루는 옹벽이 좁은 골목길 반대편 입면을 구성한다. 대지는 폭 5.6m, 깊이 17m의 좁고 긴 이형 부지로 3m 도로에 접해있다. 전면은 조금 좁고 뒤쪽은 조금 넓은 형상이다. 오래된 주거지역 사이에 위치하지만 과거부터 공터로 남아있었다. 주변은 2층에서 4층짜리의 주거 시설이 밀집해 있고 최근에는 카페, 디자인 사무실 등이 하나둘 입주하고 있다. 전면은 남동쪽을 향하고, 나머지 3면은 건물로 둘러싸여 있다. 배면과 부지 우측면은 정북방향 일조사선의 영향을 받는다. 사이트 편평하지만 북쪽으로 완만한 언덕이 있다. 전면에는 현재는 지하화가 완성된 당인리 발전소가 위치하고, 4층 높이로 올라서면 담 너머로 일부 노출된 지상 구조물과 한강이 보인다.
Design Strategy_1
주거지역의 모든 건축물은 정북방향 일조권 사선이 적용된다. 일조권 사선제한은 건축물의 최대 볼륨과 허용 가능한 최외곽선을 규정한다. 건축 가능한 모든 대지는 다른 모양, 방위, 면적을 갖고 있으며 따라서 모두 다른 형상을 침범해서는 안 되는 가상의 볼륨을 가진다. 소슴당인은 주거지역에 있다. 우리는 소슴당인에 적용되는 법적 제한을 적극적으로 수용하여 특징적인 볼륨이 되도록 계획했다. 정북방향 사선제한이 적용되는 면과 건물의 입면이 평행되며, 이렇게 뻗어나간 사면과 수직의 벽과 만나는 지점까지 방향성을 유지하고 끊김없이 연장하여 솟아있는 볼륨과 뾰족한 내부 공간이 만들어졌다.
Design Strategy_2
소슴당인이 자리 잡은 3m 폭의 골목길은 당인리발전소의 담이 가로막고 다른 한 면은 주거시설이 줄지어 있는 곳이었다. 가로에 늘어선 대부분 건물은 최소한의 크기로 계획된 창을 가진 외벽이 주를 이루고 주변에서는 공원과 같은 공공의 소통 공간을 찾아보기 어려웠다. 우리는 소슴당인이 전면 도로에서 후퇴하여 가로에 숨통을 틔워주고, 계단을 공적 영역으로 확장하고 입면을 열어 유연하고 활기찬 소통이 공간이 조성되도록 고려했다.
Design Strategy_3
소슴당인은 골목길을 향한 열린 입면으로 계획했다. 가로에 면한 입면을 넓은 창으로 계획하여 밝은 가로 환경 조성에 일조한다. 높고 넓은 전면창의 여름철 일사 부하를 감소시키기 위해 입면을 확장시켜 계절에 따라 일사 조절이 이루어지도록 처마를 계획했다.




















Architect SML
Location Tojeong-ro, Mapo-gu, Seoul, Republic of Korea
Programme Neighbourhood living facilities
Site area 104.43㎡
Building area 54.53㎡
Gross floor area 152.43㎡
Building scope 52.22%
Building to land ratio 145.96%
Design period 2019. 11 - 2020. 3
Construction period 2020. 7 - 2021. 7
Principal architect Seungmo Lim, Jongseok Kim
Design team Kim Jaeil, Joohyeon Lee, Jeong je yun
Construction at COOM PARTNERS
Photographer Kyungsub Shin, SML
해당 프로젝트는 건축문화 2023년 1월호(Vol. 500)에 게재되었습니다.
The project was published in the January, 2023 recent projects of the magazine(Vol. 500).
January 2023 : vol. 500
Contents : RECORDS Peek into the future of architecture and urban space through data from various fields 다양한 분야의 데이터로 건축·도시공간의 미래를 엿보다 Seoul's Urban and Architecture Field in Walking 걸어보며 느끼는 서
anc.masilwide.com
'Architecture Project > Commercial' 카테고리의 다른 글
| Temporary Site of Shengli Market – Creation of Spatial Order (0) | 2023.05.04 |
|---|---|
| JINS PARK Maebashi (0) | 2023.04.24 |
| Daewang-Rock (0) | 2023.03.31 |
| Yongmoon (0) | 2023.03.30 |
| Plain Color (0) | 2023.03.27 |
마실와이드 | 등록번호 : 서울, 아03630 | 등록일자 : 2015년 03월 11일 | 마실와이드 | 발행ㆍ편집인 : 김명규 | 청소년보호책임자 : 최지희 | 발행소 : 서울시 마포구 월드컵로8길 45-8 1층 | 발행일자 : 매일



