
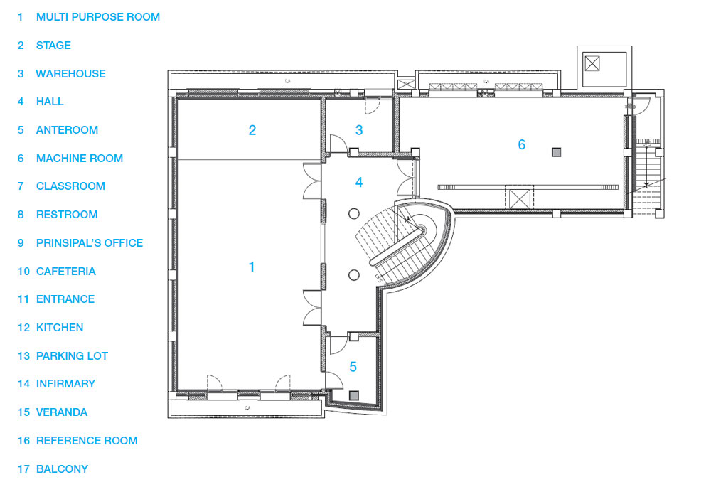
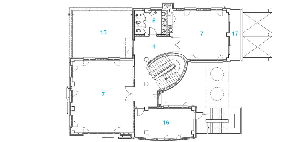
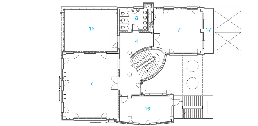
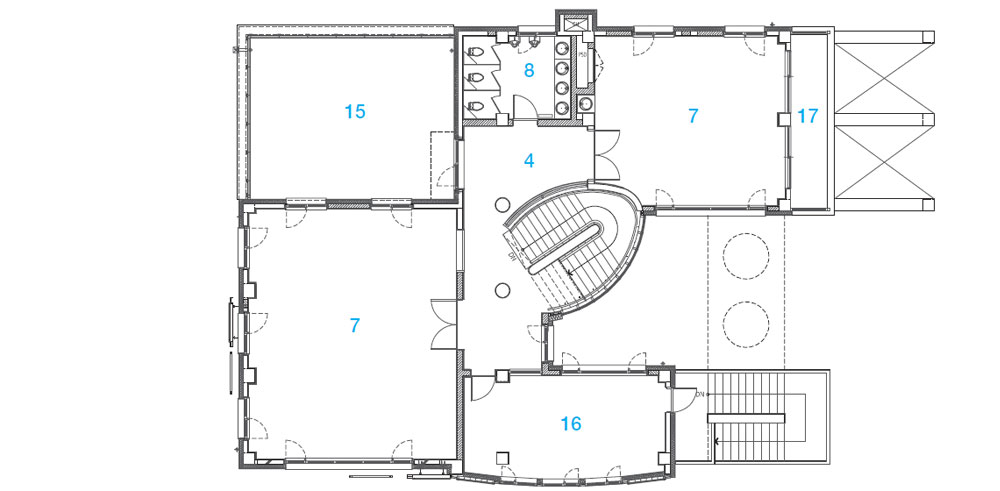
Built in 1998, Ansan Municipal Bugok Daycare Center is a building with one basement floor and three aboveground floors where about 100 children spend their time. The existing building was very vulnerable to insulation, and the floor of the multi-purpose room in the basement was not even equipped with insulation, so condensation and mold was spread. Exterior wall insulation and roof insulation were much thinner than the current legal standards, and even that material had reached the end of its lifespan and was not functioning properly. Except for the first floor, the basement floor and the second and third floors aboveground were still using aluminum windows installed 22 years ago, so they were not protected from the cold and heat. Large circular windows and glass block windows were the cause of wind leaking through, and they only took up space without providing proper natural light and ventilation. In addition, leakage frequently occurred in the basement around the windows of the boiler room and in the heating pipe area.
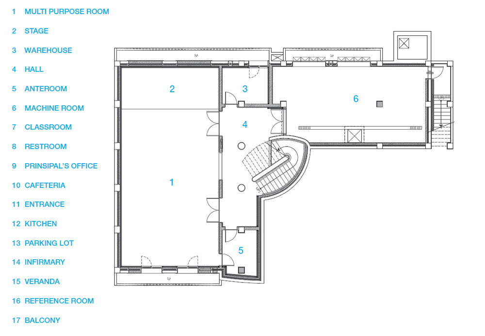
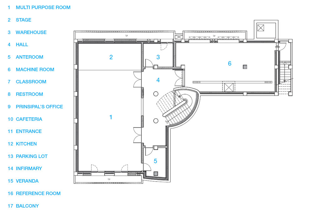
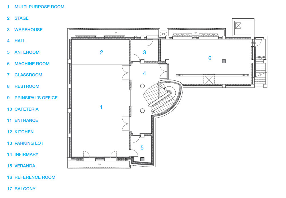
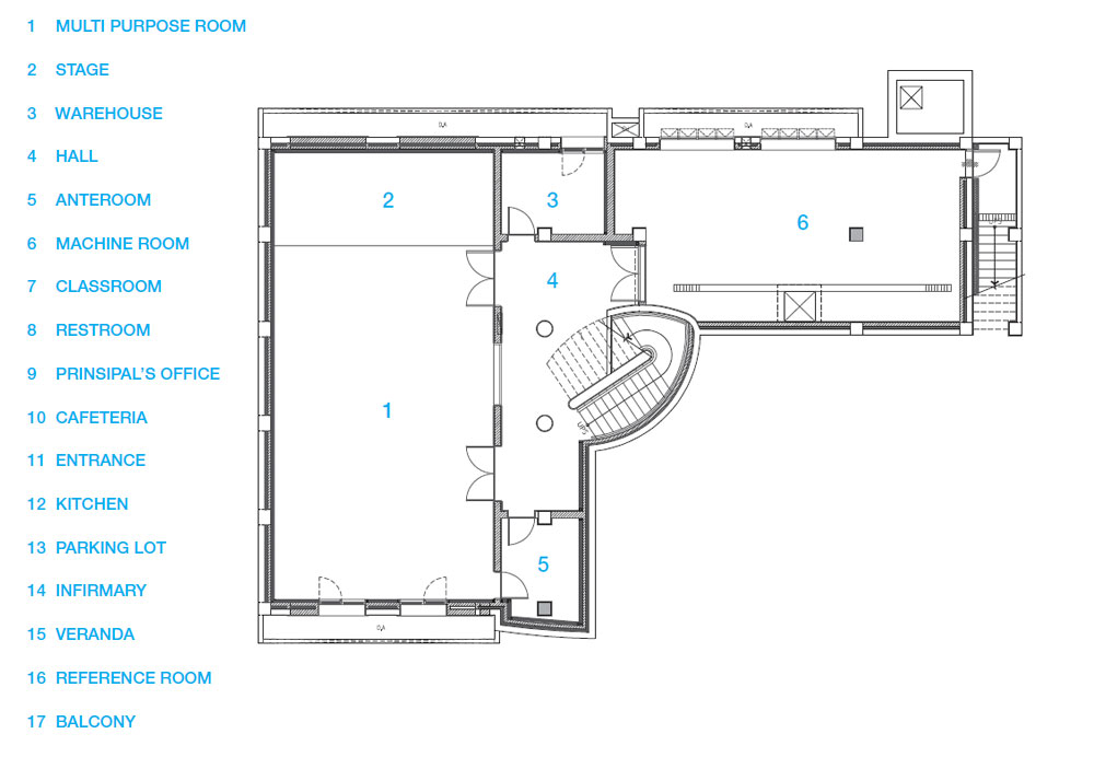
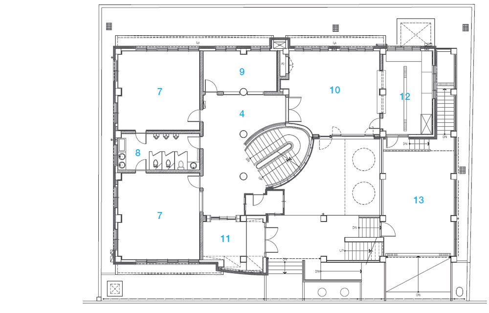
The most important part that we gave a lot of thought to from the initial stage of green remodeling was planning the floor and outer surface of the building in an energy-saving way. First, the large glass windows were removed considering the design of the elevation, and insulation was added to the exterior walls, roof, and the lowest floor to prevent conduction heat less from the exterior. As for the glass windows, triple glass system windows that can secure insulation and airtight performance were applied. Furthermore, water leakage in the multipurpose room on the basement floor, the third-floor hall, and the daycare and machine rooms, which had leakage when it rained, have been improved. Moreover, a heat recovery type ventilation system was installed in each room to secure indoor air quality.
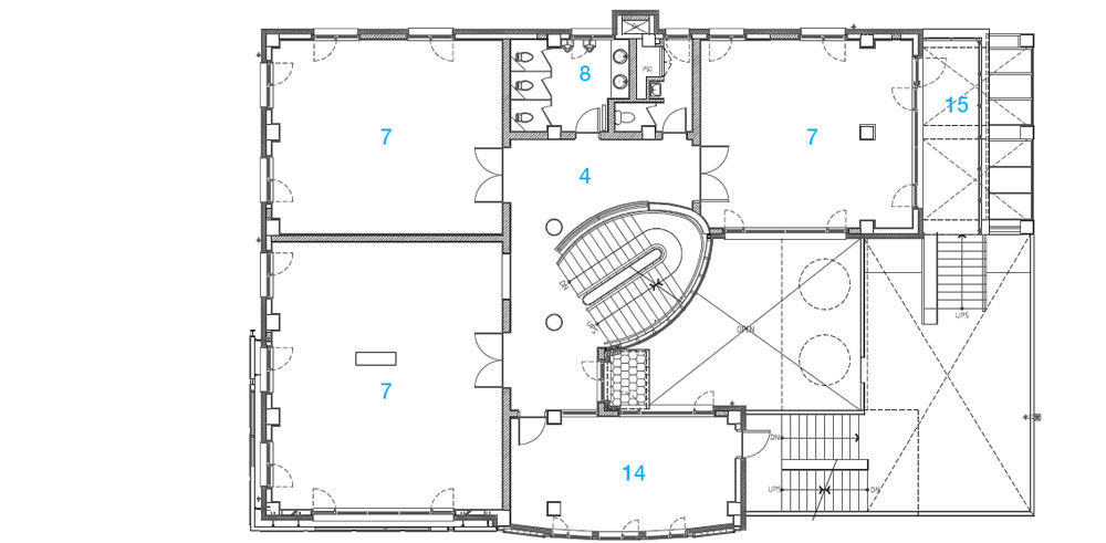
The elevation design revived the image of the circular window from the past, and a crescent-shaped design was reminiscent of the sun and moon was punctured so that it could be bright as the sun, be beautiful as the moon, and shine like the stars, just like the Bugok Daycare Center. The crescent moon was placed on the elevation and the right side of the building symmetrically around the corners, reminding one of the circular windows of the past and allowing one to imagine a crescent moon in the alleyway. The glass block wall was not demolished, but insulation was added to the interior, as it was determined that structural and leakage problems could occur in the future. In addition, the front of the glass block was covered with a punching metal exterior material to which the landscape color of Ansan City was applied. This elevation concept created a new landscape that allows the light of the moon and stars at night to be felt even at kindergarten.
After five months of construction, the daycare center became a public building with an energy efficiency grade of 1+, which has been upgraded by three levels. Green remodeling is a project that converts existing buildings through energy performance improvement and efficiency improvement. Improving a deteriorating daycare center through remodeling is not just a simple building regeneration project, but a project that also restores children’s health. We hope that more public buildings will become projects that protect the safety and health of the people through green remodeling.

1998년에 준공된 안산시 시립 부곡어린이집은 약 100명의 유아가 생활하는 지하 1층, 지상 3층 규모의 건물이다. 기존 건물은 단열에 매우 취약했다. 지하에 있는 다목적실의 바닥은 단열재조차 설치되지 않아 결로와 곰팡이가 번져있었다. 외벽 단열과 지붕 단열은 현재 법적 기준보다 매우 얇았고, 그마저도 단열재의 수명이 다해 제 기능을 못하는 상태였다. 1층 제외한 지하 1층과 지상 2, 3층은 22년 전에 설치한 알루미늄 창호를 그대로 사용하고 있어, 추위와 더위로부터 보호되지 않는 상황이었다. 특히, 대형 원형 창과 유리블록 창은 틈새 바람의 원인이었고, 자연채광과 환기가 되지 않고 면적만 차지할 뿐이었다. 그리고 지하공간과 보일러실의 유리창 주변과 난방배관 부위에서는 누수가 빈번히 일어나고 있었다.
그린리모델링의 초기 설계 단계에서부터 가장 중요하게 고민했던 부분은 건축물의 바닥과 외피를 에너지절약형으로 계획하는 것이었다. 먼저 입면 디자인을 고민하면서 대형유리창을 철거했고, 외피의 전도열 손실 방지를 위해 외벽과 지붕, 최하층 바닥에 단열재를 추가했다. 유리창은 단열과 기밀성능 확보가 가능한 삼중 유리 시스템 창호를 적용했다. 또한, 비가 오면 누수가 발생하는 지하 1층 다목적실과 지상 3층 홀, 보육실과 기계실의 누수 부위를 개선했다. 그리고 실마다 실내 공기 질을 책임질 열 회수형 환기장치를 설치했다.
입면 디자인은 과거 원형 창의 이미지를 되살리면서 시립 부곡어린이집 원훈과 같이 해처럼 밝고, 달처럼 아름다우며, 별처럼 빛날 수 있도록 해와 달을 연상시키는 초승달모양의 디자인 타공을 계획했다. 초승달을 건축물의 입면과 우측면에, 모서리를 중심으로 대칭되게 배치했고, 과거의 원형 창을 떠오르게 하면서 골목길에 뜬 초승달의 모습을 연상할 수 있도록 했다. 유리블럭 벽면은 앞으로 구조 및 누수의 문제가 발생할 수 있다고 판단해, 철거하지 않고 내부에 단열재를 추가했다. 또한, 유리블럭 앞면은 안산시의 경관색상을 적용한 펀칭메탈 외장재를 감쌌다. 이러한 입면구상은 야간에 달과 별의 빛을 유치원에서도 느낄 수 있는 새로운 풍경을 만들었다.
5개월 간의 공사가 끝나고 어린이집은 에너지효율 1+등급으로 기존보다 3등급이 올라간 공공건축물이 되었다. 그린리모델링은 에너지성능향상과 효율 개선을 통해 기존 건축물을 전환하는 사업이다. 리모델링을 통해 노후화된 어린이집을 개선하는 것은 단순한 건물재생이 아닌 아이들의 건강까지 회복시키는 프로젝트라고 할 수 있다. 더 많은 공공건축물이 그린리모델링을 통해 국민의 안전과 더 나아가 건강까지 지키는 사업이 되길 바란다.














Architect ZED Architects Co.,Ltd
Location Ansan-si, Gyeonggi-do, Republic of Korea
Program Daycare Center
Site area 551.30㎡
Building area 313.02㎡
Gross floor area 911.68㎡
Building scope B1, 3F
Building to land ratio 56.77%
Floor area ratio 121.83%
Completion 2021. 10
Principal architect Jungseok Cho, Myoungju Lee
Client KOREA LAND & HOUSING CORPORATION, ANSAN CITY HALL
Photographer Yongsoo Kim
해당 프로젝트는 건축문화 2022년 12월호(Vol. 499)에 게재되었습니다.
The project was published in the December, 2022 recent projects of the magazine(Vol. 499).
December 2022 : vol. 499
Contents : RECORDS Communicate with the city, Encounter architecture, Discover a story: 'Open House Seoul 2022' 도시와 소통하다, 건축을 만나다, 이야기를 발견하다: ‘오픈하우스서울 2022’ To Demonstrate the Era of Carbon Neutra
anc.masilwide.com
'Architecture Project > Education' 카테고리의 다른 글
| The Small , Green Library (0) | 2023.04.13 |
|---|---|
| The Lighting Bookshelves (0) | 2023.04.10 |
| Eumseong-gun Sustainable Agriculture Research and Education Center (0) | 2023.03.23 |
| Tamatsukuri Kindergarten (0) | 2023.03.13 |
| ROBERT-KOCH-HIGH-SCHOOL (0) | 2023.03.03 |
마실와이드 | 등록번호 : 서울, 아03630 | 등록일자 : 2015년 03월 11일 | 마실와이드 | 발행ㆍ편집인 : 김명규 | 청소년보호책임자 : 최지희 | 발행소 : 서울시 마포구 월드컵로8길 45-8 1층 | 발행일자 : 매일



