
The inception of Korean coffee accompanied our painful history and is a form of Western culture that took its place during a time when, due to the sweeping currents of modernization, our distinct cultural and aesthetic values were becoming lost. Despite this, we did not dismiss coffee, so deeply rooted in our establishment for the extended period of 140 years, as merely a Western cultural aspect, and decided it was the right time to contemplate the aesthetics of coffee in a location containing our spatial aesthetics. Thus, as we were pondering how to make two contrasting cultures co-exist in one venue without damaging one another, we met an aesthetic concept called “grafting.” The aesthetic concept of “grafting” signifies bringing two opposing entities together to coexist without being combined, and through it, we strived to weld the visualization that had been accumulated for a long time into the space while respecting the individual appearances of these two conflicting concepts, the splendor of the East and the West, without merging them.
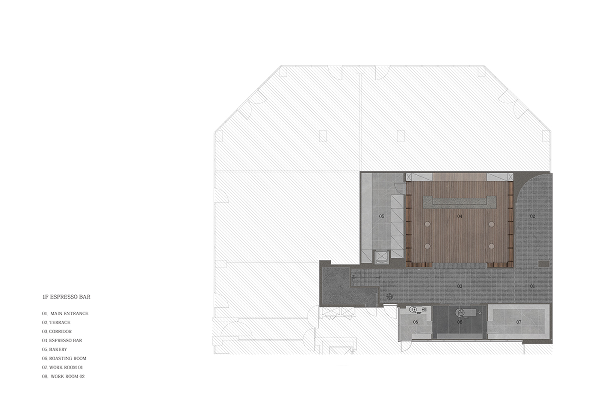
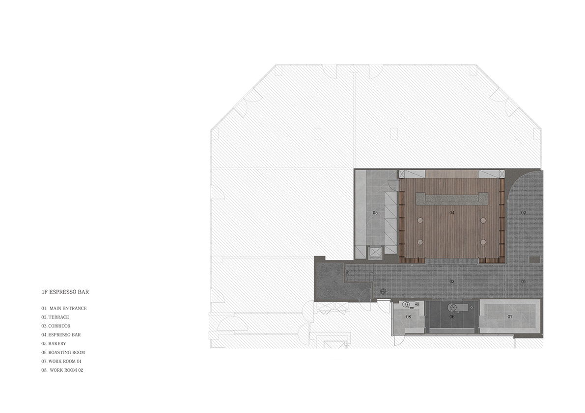
The form expressed through the restrained and crude proportions of the exterior provides depth following the flow of visual perspective, endowing the space with immersion, and we made the beauty of untechnical homeliness expressed as such be the medium leading the extended scene connected to the interior. By placing an espresso bar containing the client’s management philosophy of pursuing the originality of coffee and a roasting room in the space first encountered upon entrance, we manifested the emblem of sincerity toward coffee with heaviness and depth. The second space encountered following the heaviness and depth is produced with four scenes, designed to allow feeling a variety of emotions and contemplation through the harmony of openness and closedness, the dynamic and the static, and the space was endowed with refinement that can harness warmth even with shaded light by dressing it with naturalistic materials such as lacquered hanji and hemp cloth, etc.
We do not mean to speak of traditionality through this space. However, I merely wanted to know what was held in the curiosity about worn-down and old vestiges and the aesthetic visualization inherently nested deep within me. That something within me that speaks to me in a language I do not even understand, much like the trace of a faint trail.
What is enjoyed in this space is free to all, but I simply hope that it implants the senses of comfort and familiarity. I hope that in this mysterious tranquility, someone will follow my path and find what I could not.

한국 커피의 시작은 우리의 아픈 역사의 그것과 함께 했고, 근대화의 물결에 휩쓸려 고유한 문화적, 미적 가치들을 상실해가던 시기에 자리잡은 서구의 문화이다. 그럼에도 불구하고 140년이라는 긴 시간 동안 너무나도 깊이 자리매김한 커피를 더 이상 서구의 문화로 치부하지 않고, 우리의 공간 미학이 담긴 장소에서 커피 미학을 사유해야 할 시기라 생각되었다. 그래서 이 두 가지의 상반된 문화를 어떻게 하나의 장소에서 서로를 훼손하지 않으며 공존할 수 있을까를 고민하던 중 ‘접화 接和 grafting’라는 미학 개념을 마주하게 되었다. ‘접화 接和 grafting’라는 미학적 개념은 서로 대립적인 것이 만나 합쳐지지 않고 공존하는 것으로 우리의 멋과 서구의 맛, 이 상반되는 두 개념을 합치지 않고 나름의 생김을 존중하면서 오랫동안 축적된 심상을 공간에 녹여 내고자 했다.
외부의 절제되고 투박한 비례로 표현한 형태는 시선이 이끄는 방향의 흐름을 따라 깊이를 주어 몰입감을 갖게 하고, 이렇게 표현된 졸박미는 내부로 이어진 긴 장면을 이끄는 매개가 되도록 했다. 내부로 들어서 처음 마주하는 공간은 커피에 대한 오리지널리티를 추구하는 클라이언트의 경영철학을 담아 에스프레소 바와 로스팅실을 배치하여 커피에 대한 진정성의 표상을 짙고 깊음으로 발현되도록 했다. 짙고 깊음을 따라 마주하는 두 번째 공간은 4개의 장면으로 연출되어 열림과 닫힘, 동적인 것과 정적인 것의 조화를 통해 다양한 감정을 느끼며 관조 할 수 있도록 계획하고 옻칠한지와 삼베 등 자연적인 소재를 입혀 그늘진 빛으로도 온기를 품을 수 있는 아취를 부여했다.
이 공간으로 전통성을 이야기 하려고 하는 것은 아니다. 다만, 낡고 오래된 흔적들에 대한 호기심과 내 안에 깊숙이 내재된 미적 심상에 그저 무엇이 맺혀있는지 알고 싶었다. 내 안에서 알아듣지도 못하는 언어로 말을 건네는 그 무언가를, 아련한 자취의 흔적 같은.
이 공간에서 무엇을 향유할지는 모두의 자유지만, 나는 그저 편안함과 익숙함으로 착상되기를 바란다. 왜인지 모를 평안 속에서 내가 찾지 못한 무언가를 누군가는 이어서 찾아주길 바라는 마음으로.


















Design : 100A associates
Location : Gimhae, Korea
Area : 490.88㎡ (1F 140.26㎡ + 2F 350.62㎡)
Construction : Hanguk Vision
Photograph : Jaeyoon Kim
'Interior Project > Cafe&Restaurant' 카테고리의 다른 글
| INC COFFEE (0) | 2023.02.27 |
|---|---|
| Vonzrr (0) | 2023.02.17 |
| OUVRIR (0) | 2023.02.03 |
| onecafe, bukchon (0) | 2023.01.30 |
| CHUNG AND KIM (0) | 2023.01.27 |
마실와이드 | 등록번호 : 서울, 아03630 | 등록일자 : 2015년 03월 11일 | 마실와이드 | 발행ㆍ편집인 : 김명규 | 청소년보호책임자 : 최지희 | 발행소 : 서울시 마포구 월드컵로8길 45-8 1층 | 발행일자 : 매일



