
Ink Coffee is a brand that focuses on making a fascinating cup of coffee.
Every month, they visit Ethiopia, the production area of coffee, cooperate with the locals, airlift the best green beans, and blend the beans with Ink Coffee's own know-how. After that, this coffee, which is carefully brewed, becomes a valuable cup and conveys the effort and time of many people that this cup gives, which is the philosophy and core value of this brand. Based on these core values, the tagline "TAKE THE ORIGIN" set by LBTR graphics has become the most important center for spatial design.
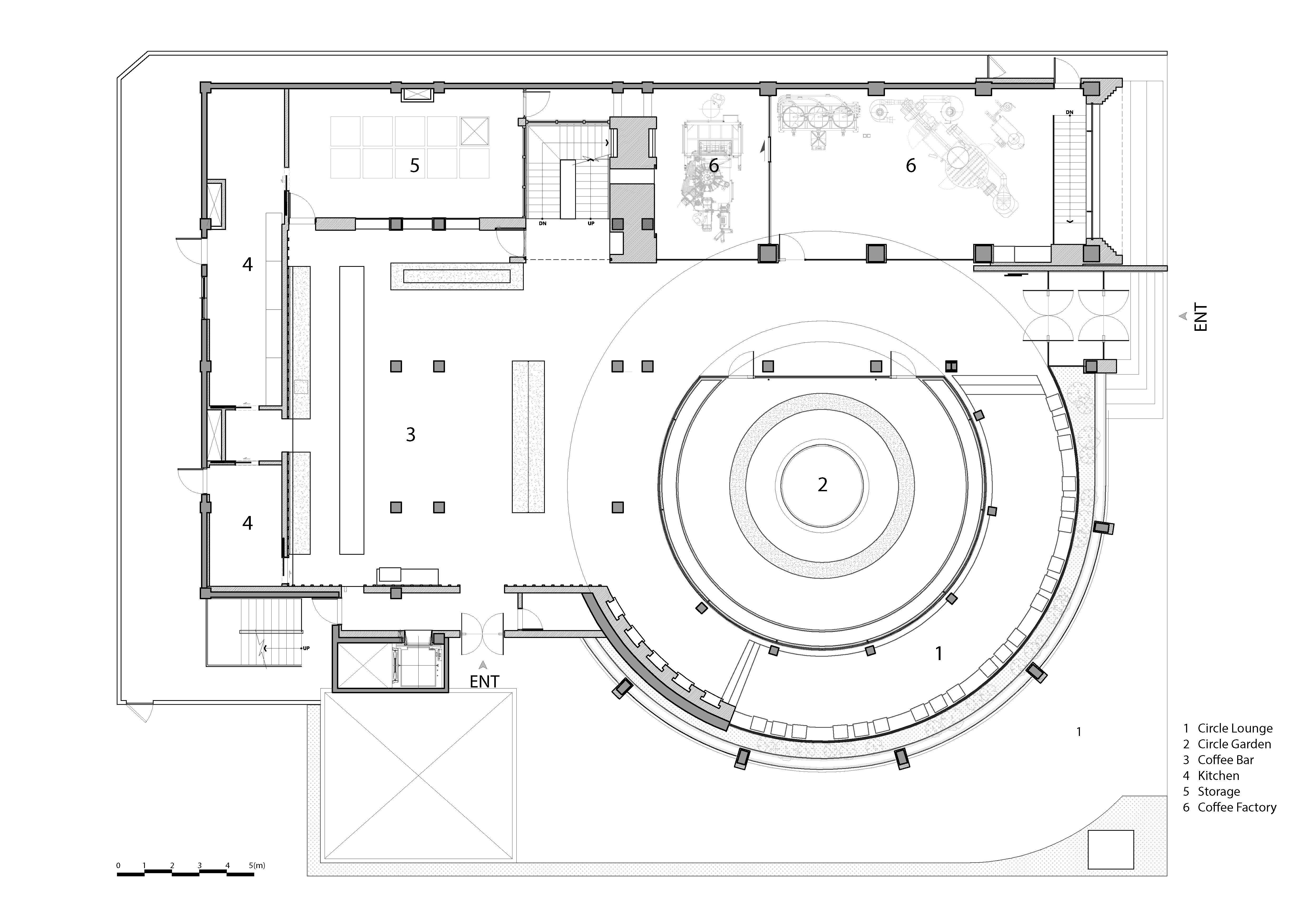
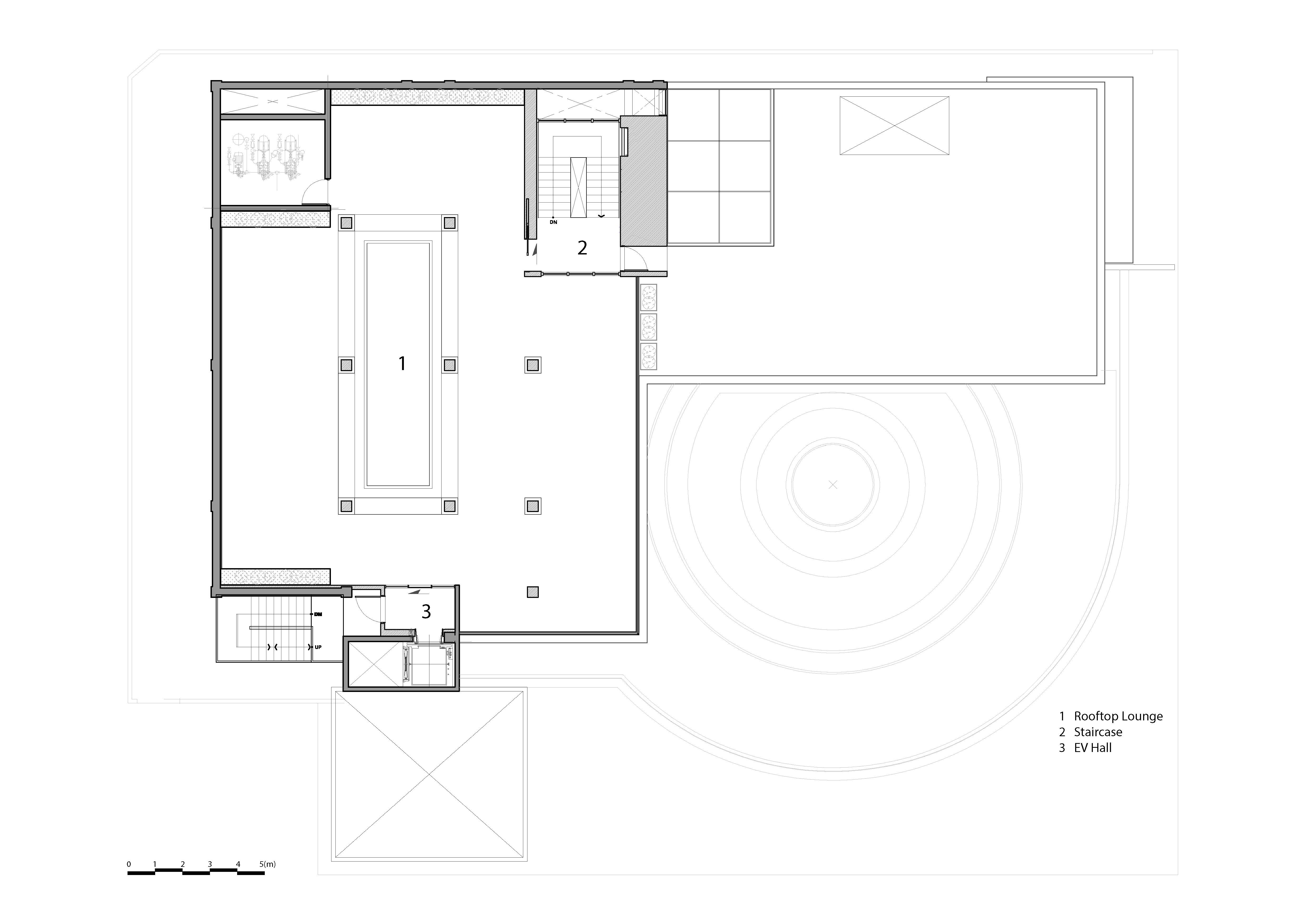
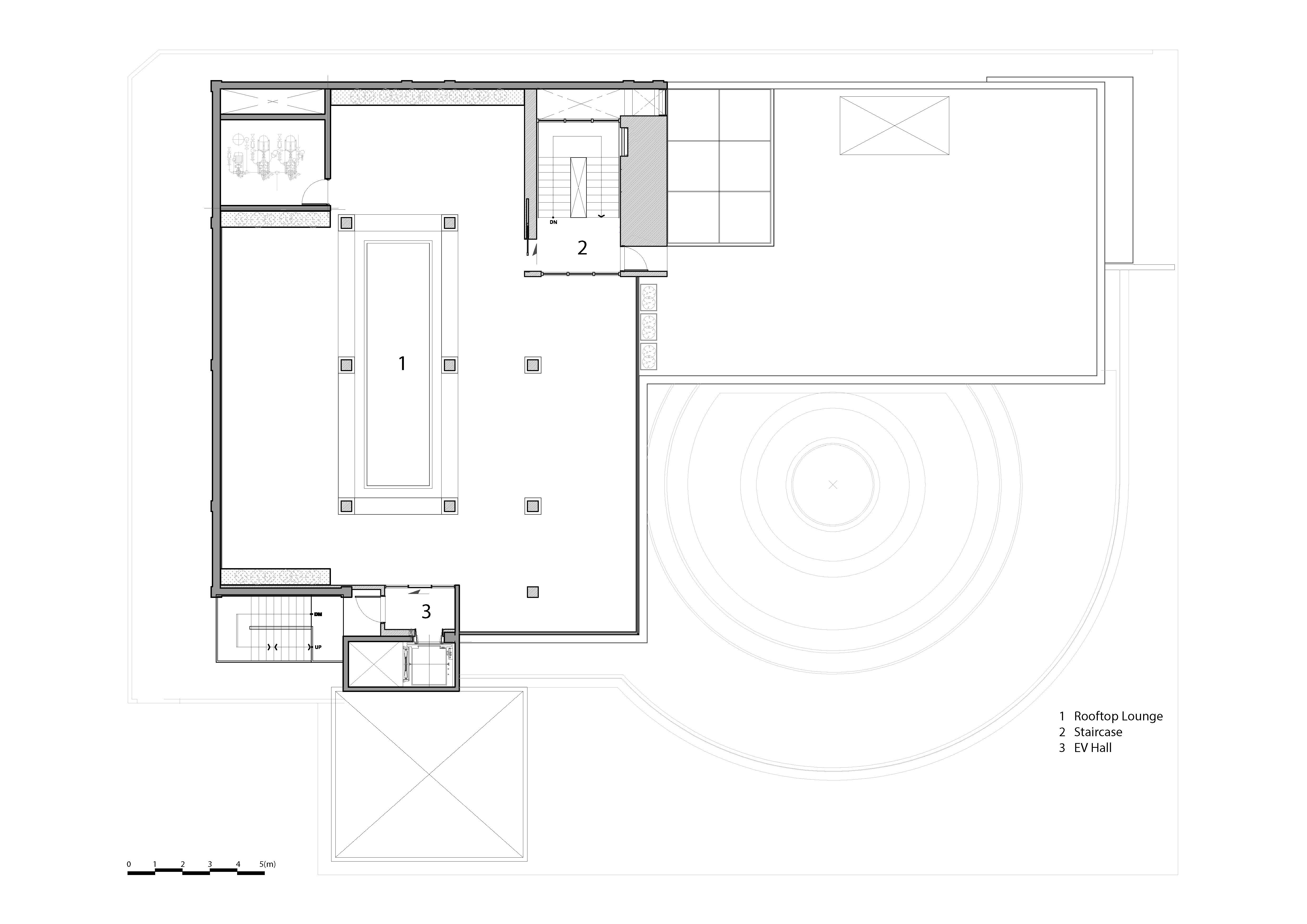
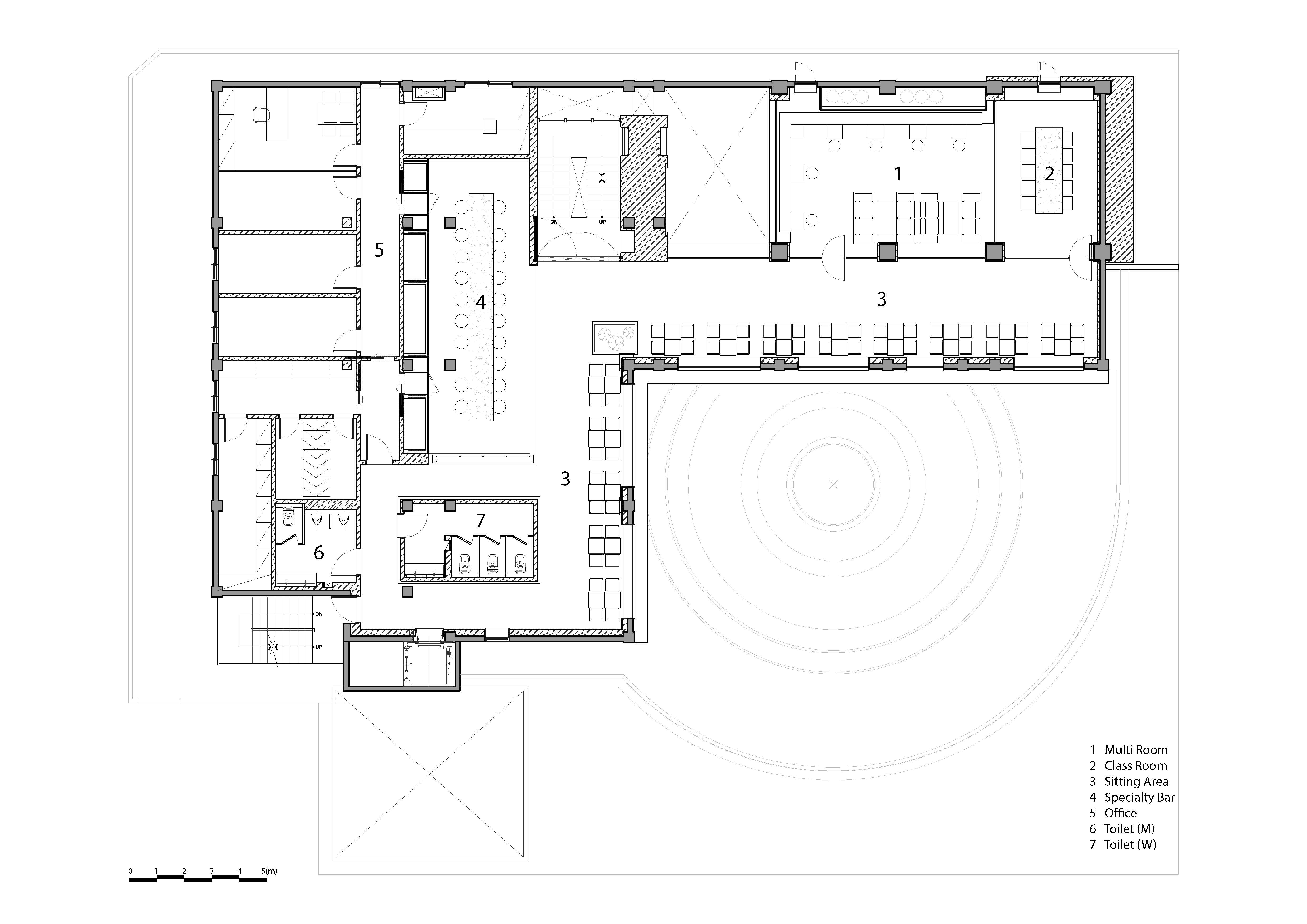
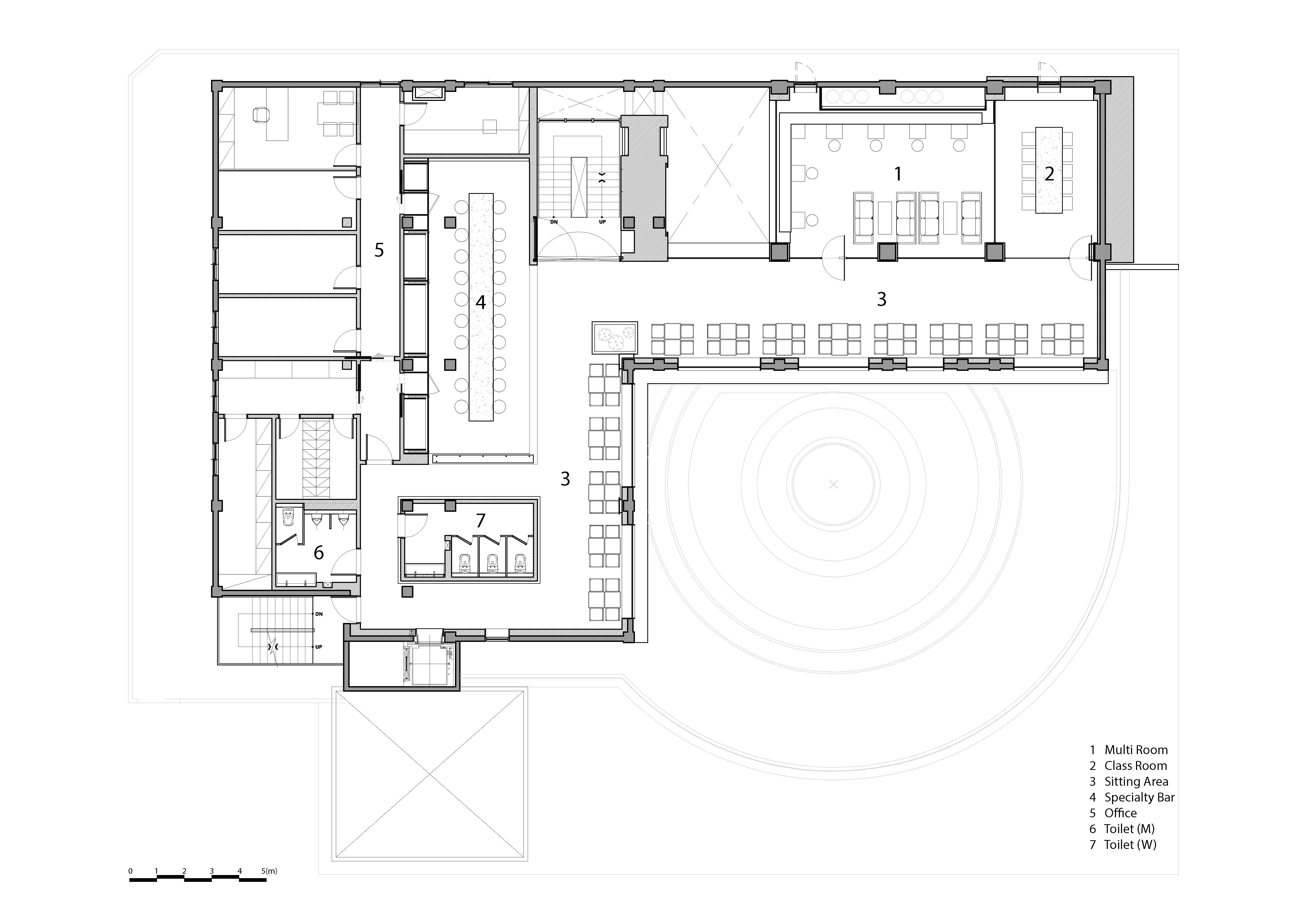
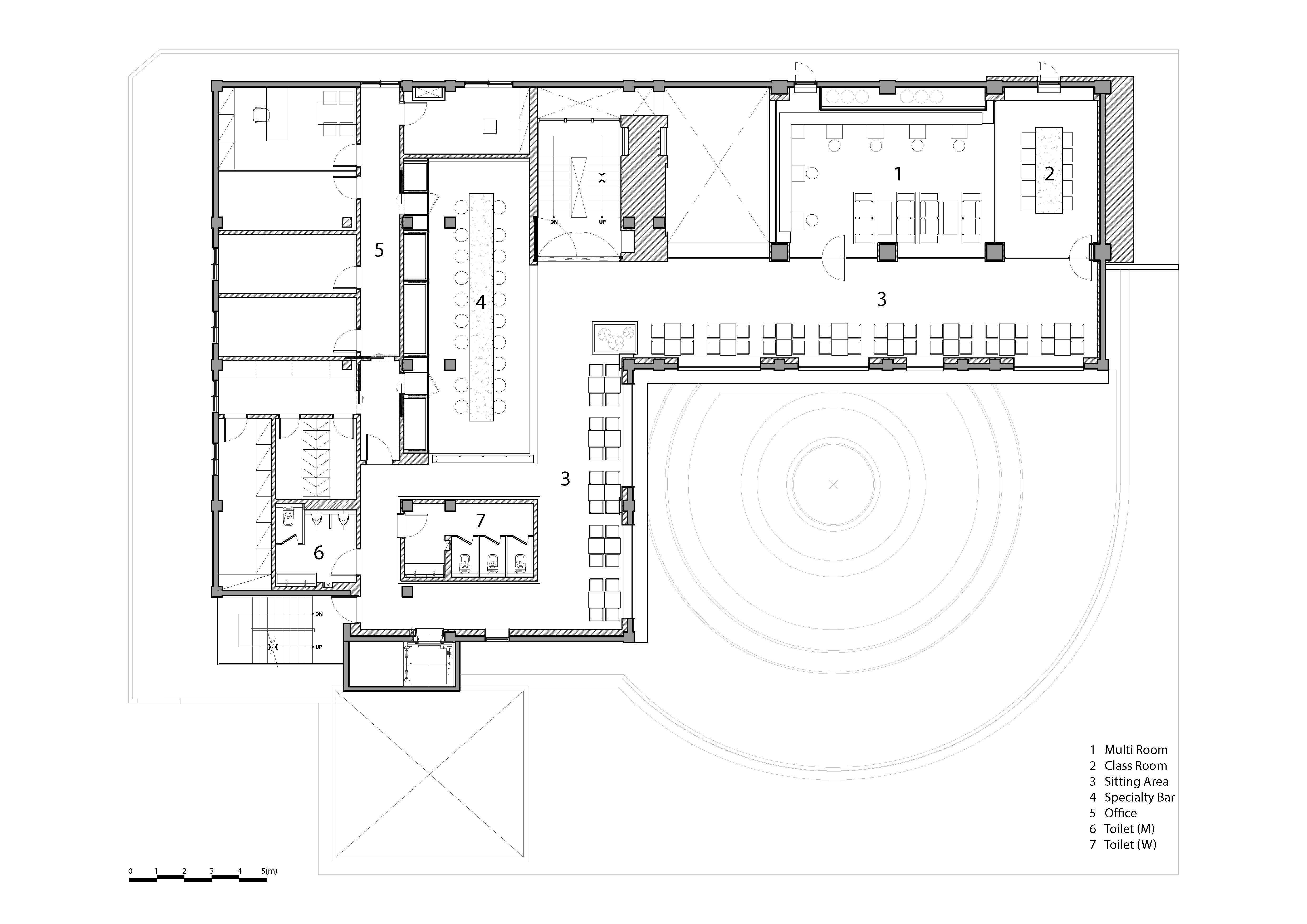
What would Labotori look like if there was a "coffee market" when the market, which is the starting point of culture, and the market that can convey the freshness and effort of coffee producing areas meet? I designed the space starting with this curiosity. The Inc Coffee Flagship Store, located in Gasan-dong, was the best place to express "take the origin" with traces of the space intact as it was built by renovating and expanding the old waste factory. In the field of this factory, you can see the largest roasting machine and automatic packaging machine in the country, blending coffee beans from Africa in front of consumers and connecting them to packaging.
On the other side is the circle lounge, which can be said to be the signature of this space, and the new extension was planned by adjusting the building area, and the white-colored round shape, which contrasts with the factory, was a factor that strongly expressed the identity of the space even though it was a low ceiling. It also became a new core between the existing building and the expanded space, and it was able to express the appearance of a square where people and people could interact and meet. The square delivers completely different energy and experiences within the space, depending on the weather and season. In addition, various functions for each seat were arranged on each floor so that they could be used according to their preferences, and in particular, on the third floor, a coffee wrap was formed to experience and drink premium tea, providing a place to enjoy tea calmly. This arrangement of space allows users to drink tea between the sequence of looking at the factory while drinking tea and the contrast of the sequence of the square, so that users face a different cultural experience. As such, Labotory tried to brand the space by specializing in the differentiation and natural values that can be delivered as a brand, from the visible externalities of Ink Coffee to the invisible internal attitude and the tone of the brand.

인크커피는 매혹적인 커피한잔을 만드는일에 집중하는 브랜드 입니다.
매달 커피의 산지인 에디오피아에 방문하여 현지인들과 협력하고, 가장 좋은 생두를 공수하여 그 원두를 인크커피만의 노하우로 블랜딩 합니다. 그 후 정성스레 내려주는 이 커피는 귀중한 한잔이 되어 이 한잔이 주는 많은 사람들의 노력과 시간을 느낄수있게 전달하는 것이 이 브랜드의 철학이자 코어밸류입니다. 이러한 코어밸류를 바탕으로 LBTR graphics에서 설정한 "TAKE THE ORIGIN" 이라는 태그라인은 공간디자인에 가장 중요한 중심이 되었습니다.
라보토리는 문화의 시작점인 시장과, 커피 산지의 신선함과 노력을 그대로 전달할 수 있는 시장이 만나 만약 "커피시장"이라는게 있다면 어떤 모습일까? 라는 궁굼증을 시작으로 공간을 디자인 했습니다. 가산동에 위치한 인크커피 플래그십 스토어는 오래된 폐공장을 대수선하고 증축하여 만들어지는 만큼 그 공간의 흔적이 고스란히 남아있어 "take the origin"을 표현할수 있는 가장 좋은 장소였습니다. 이 공장의 영역에서는 국내에서 가장 큰 로스팅 기계와 자동 포장기계를 통해 아프리카에서 넘어온 원두를 소비자들이 보는 눈앞에서 블랜딩 하고 포장까지 연결되는 광경을 바라보게 됩니다.
반대편은 이 공간의 시그니쳐라고 말할 수 있는 서클라운지 인데, 건축면적을 조정하여 새롭게 증축을 기획하게된 공간이었는데 공장과는 대비되는 화이트 색감의 라운드 쉐입은, 낮은 천장고 임에도 공간의 아이덴디티를 강하게 표현할 수 있는 요소가 되었습니다. 또한 기존 건물과 증축되는 공간 사이 새로운 코어가 되며 사람과 사람들이 교감할 수 있고 만날 수 있는 광장의 모습을 표현할 수 있었습니다. 이 광장은 날씨와 계절에 따라 내부에 전혀 다른 에너지와 경험을 공간내에 전달합니다. 또한 각 층별로 좌석별 기능을 다양하게 배치하여 기호에 맞게 활용할 수 있게 했으며 특히 3층에는 프리미엄 티를 체험하고 마실 수 있는 커피랩을 구성하여 차분하게 차를 즐길 수 있는 공간을 마련했습니다. 이러한 공간배치는 차를마시면서 공장을 바라보는 시퀀스와 광장의 시퀀스의 대비감 사이 차를 마실 수 있게 배치하여 이용자로 하여금 색다른 문화적 경험을 마주하게 됩니다. 이처럼 라보토리는 인크커피의 눈에 보이는 외적인 것부터 보이지 않는 내적인 태도와 브랜드의 말투 등 브랜드로서 전달될 수 있는 차별화 및 본연의 가치를 특화시켜 공간을 브랜딩화 하여 전개하고자 노력했습니다.

























Design : LABOTORY
Location : Gasan Digital 2-ro, Geumcheon-gu, Seoul 127-20
Site area : 2,100㎡ / 636py
Completion : 2021
Photographer : Yongjoon Chol
'Interior Project > Cafe&Restaurant' 카테고리의 다른 글
| Sutimoon (0) | 2023.03.15 |
|---|---|
| ULA Cafe (0) | 2023.03.08 |
| Vonzrr (0) | 2023.02.17 |
| QUAR.K (0) | 2023.02.10 |
| OUVRIR (0) | 2023.02.03 |
마실와이드 | 등록번호 : 서울, 아03630 | 등록일자 : 2015년 03월 11일 | 마실와이드 | 발행ㆍ편집인 : 김명규 | 청소년보호책임자 : 최지희 | 발행소 : 서울시 마포구 월드컵로8길 45-8 1층 | 발행일자 : 매일



