
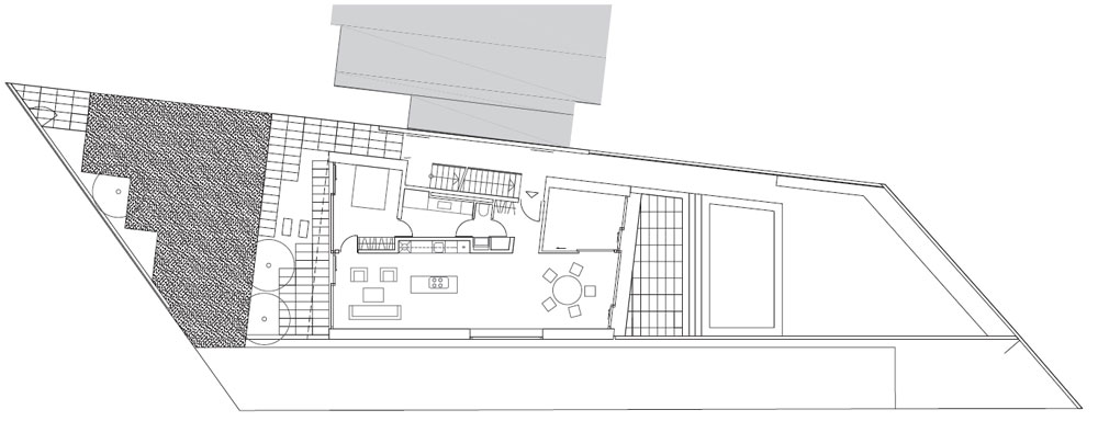
Imagining a villa, one pictures a sprawling complex of buildings and land, echoing dynastic opulence. For this villa commission in a quiet village outside of Vienna, Austria, I was challenged with maximizing the volume of a difficult and narrow plot of land in order to create a modern living space for a two-generation family. The first impression of the construction is of a container as a living space. However, the eye is soon drawn to the discrepancies between the use of ninety degree angles and a slightly deviating complementary angle. The friction between the two angles, used both in the wall structure and the floor plan, can be felt as movement throughout the entire structure. From the intimate entrance to the large open plan living space, this interaction between the perpendicular and the oblique defines a certain perception that pervades the experience of the structure. The outlines and the facade of the new house are reminiscent of the unique and traditional craftwork of Viennese houses. In the last decades, this craftsman work has largely been given over in favor of the standardized use of polystyrene and external plaster.

오스트리아 빈 외곽, 한적한 마을에 있는 이 소형주택은 2세대 가족을 위한 현대적인 생활 공간이다. 생활공간으로서의 컨테이너는 90도 각도의 매스와 약간 어긋나는 상보 각의 불일치 사이로 시선을 끌어당긴다. 벽 구조에서, 그리고 평면상에서 보이는 두 각도의 만남은 건축물 전체의 움직임을 느끼게 한다. 입구에서부터 열린 넓은 생활 공간과 수직과 사선 사이에서 이러한 상호 작용을 일으킨다. 새로운 주택의 형태는 빈에서는 독특한 형태로, 이곳의 전통적인 공예품을 연상시킨다.













Architect Jan Proksa - Architect
Location Perchtoldsdorf, Austria
Program Housing
Site area 528㎡
Building area 132㎡
Gross floor area 313㎡
Completion 2020
Project architect Jan Proksa
Collaborator Landscape planing_Korbinian Lechner / Architect - design stage_Ursula Knappl
/ Construction engineering_Neli Rachkova-Anastassova / Building physics_K2 Bauphysik
Photographer BoysPlayNice
해당 프로젝트는 건축문화 2022년 11월호(Vol. 498)에 게재되었습니다.
The project was published in the November, 2022 recent projects of the magazine(Vol. 498).
November 2022 : vol. 498
Contents : RECORDS Architecture Week held at Yongsan Park after tearing down the wall 벽을 허물고 돌아온 용산공원에서 열린 건축주간 : NEWS / COMPETITION / BOOKS : SKETCH A rural house painted with Passion Sangria / Sangwon Kim 열정적
anc.masilwide.com
'Architecture Project > Multifamily' 카테고리의 다른 글
| GiRiGiRi (0) | 2023.03.30 |
|---|---|
| ANCHANG-VILLAGE SOCIAL HAUSING (0) | 2023.03.28 |
| 85 SOCIAL DWELLINGS IN CORNELLÀ (0) | 2022.12.09 |
| WVW (0) | 2022.12.05 |
| CAN SANTACILIA (0) | 2022.11.29 |
마실와이드 | 등록번호 : 서울, 아03630 | 등록일자 : 2015년 03월 11일 | 마실와이드 | 발행ㆍ편집인 : 김명규 | 청소년보호책임자 : 최지희 | 발행소 : 서울시 마포구 월드컵로8길 45-8 1층 | 발행일자 : 매일



