
Real de los Reyes is a group of houses located in the Coyoacan borough, south Mexico City, where museums, craft markets and public spaces full of history stand out, preserving a colonial and bohemian style.
The area is full of recreational places for everyday life, from outdoor cafes, restaurants, art galleries, ice cream parlors to tree-lined and cobblestone streets. It gives you the feeling of traveling back in time in an environment of history, culture and tradition, without losing services such as shopping centers, schools, gyms and restaurants.
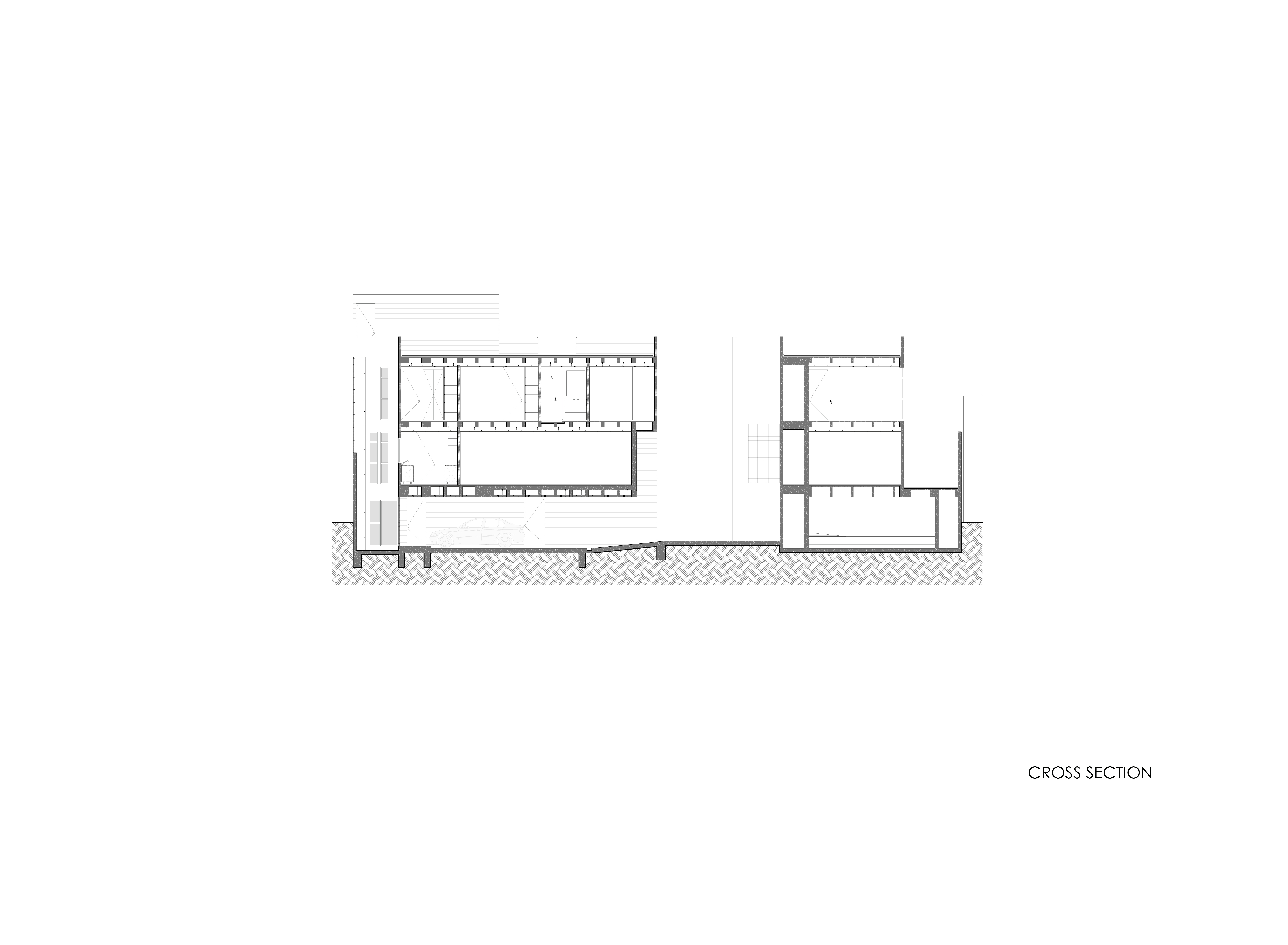
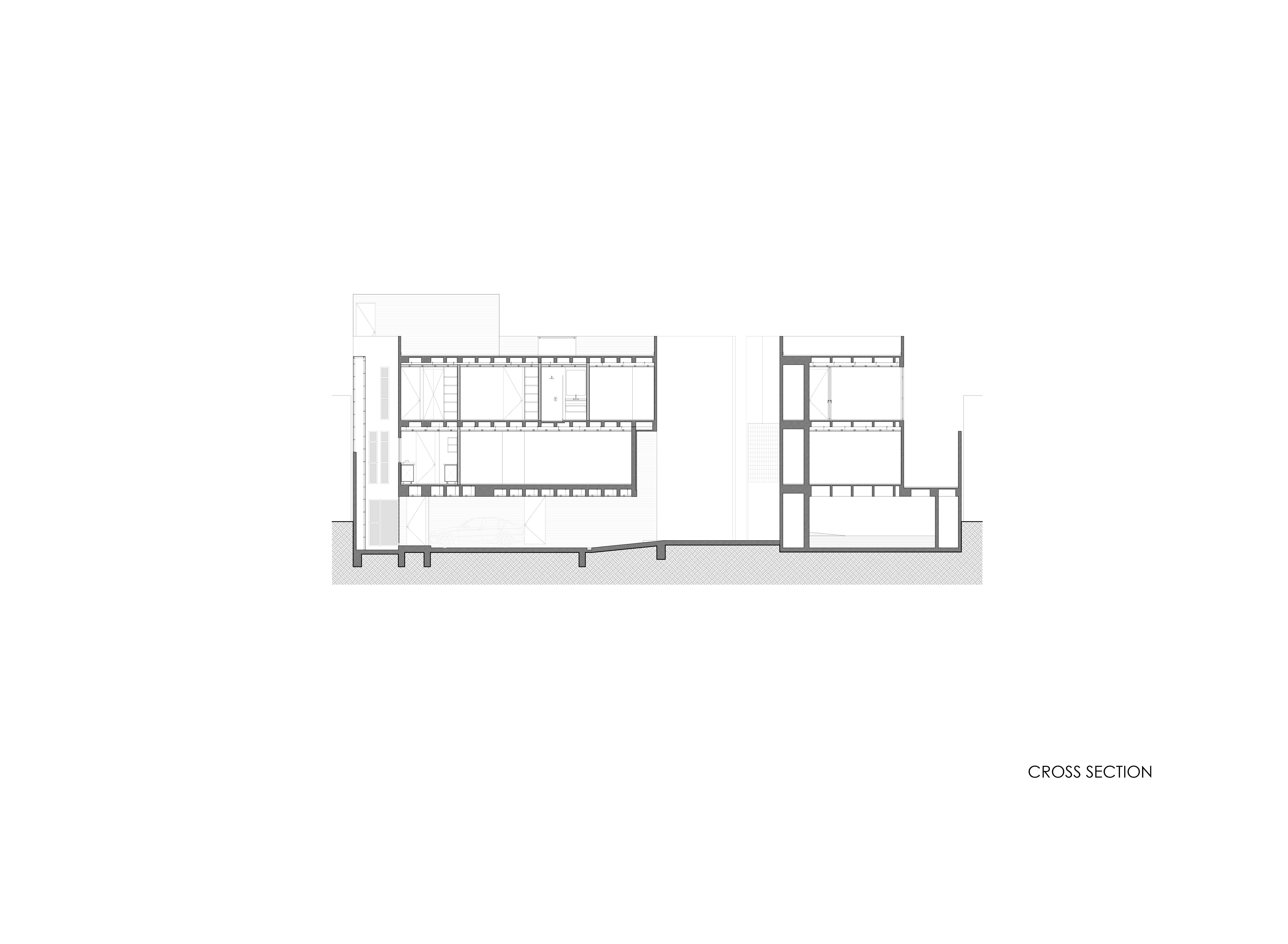
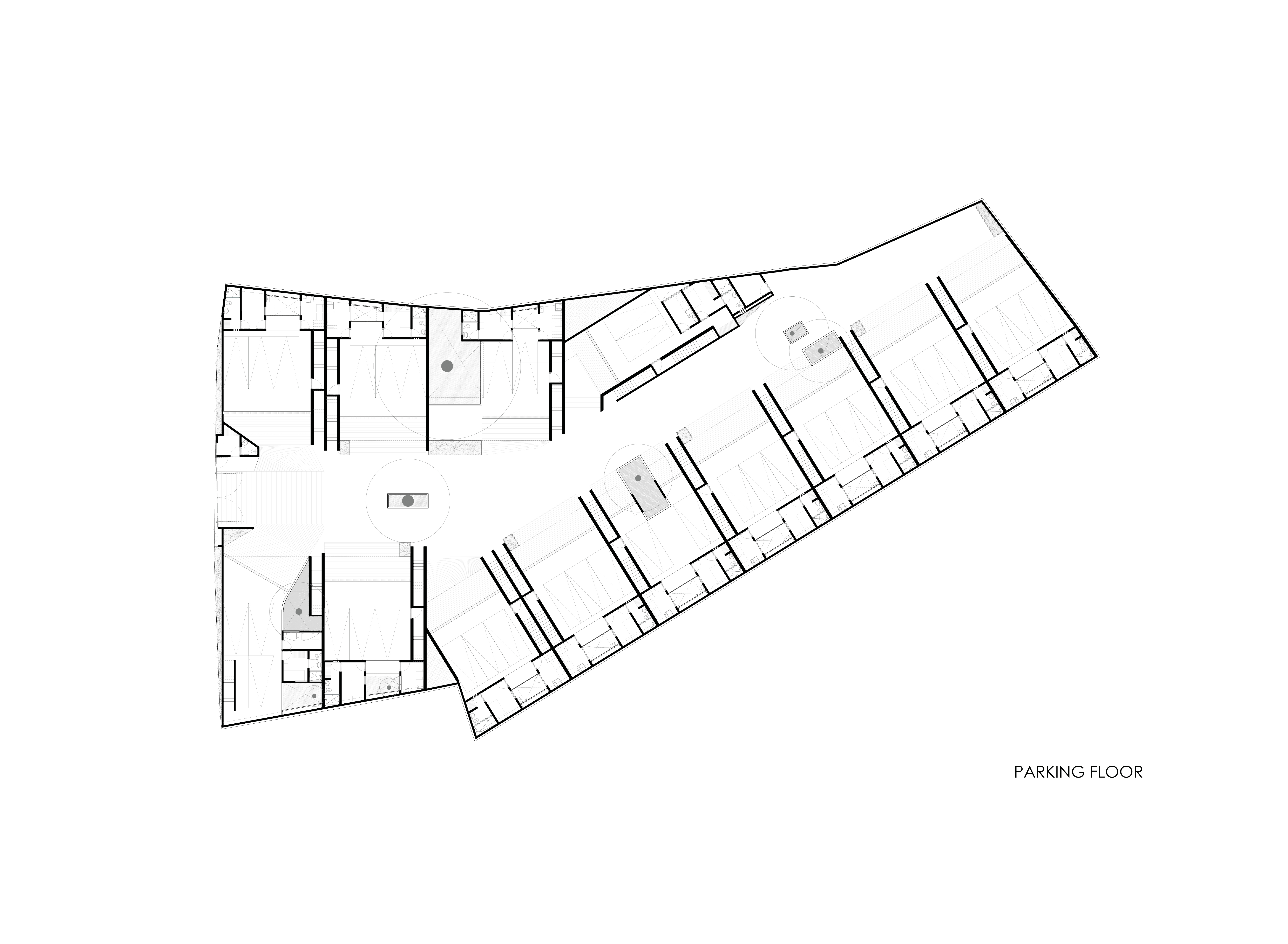
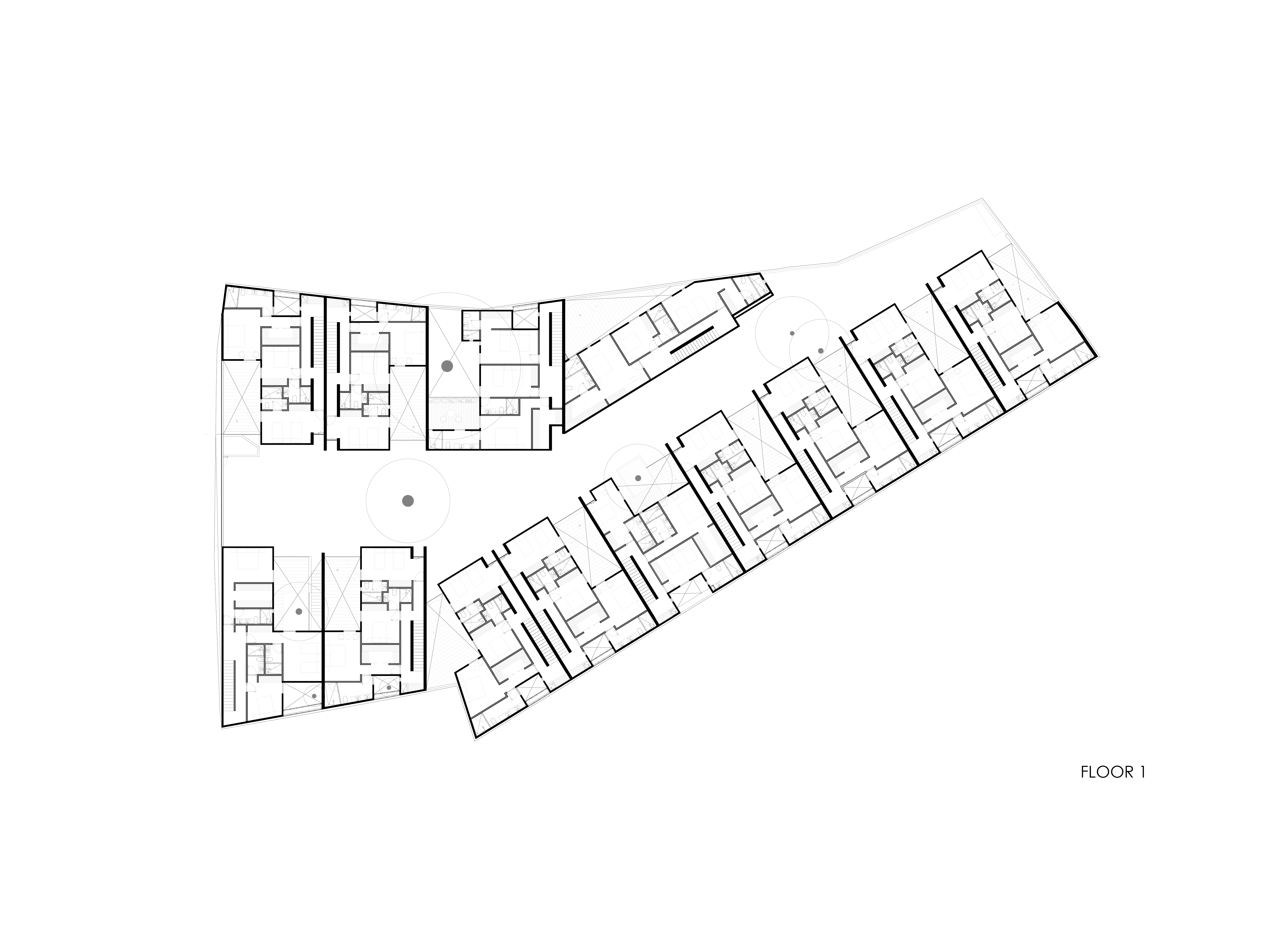
Real de los Reyes offers luxury and comfort for its inhabitants through its large areas, security system, architectural finishes and distribution of spaces. This allows it to get adapted to different lifestyles, whether living in family or individual. The spaces of the houses are designed to be versatile for daily life, meetings or rest, it offers the possibility of customizing the finishes according to the preferences and needs of its inhabitants. It has 13 houses, from 320㎡, distributed in 3 levels, each with ample parking, roof garden and patio.
The design of the facade of the complex seeks to be unique in the area, without compromising the environment and its essence. It is made of orange pigmented concrete, which gives the appearance of passing time in a subtle way and according to the space where it is located. Its lattice with circular perforations gives a feeling of lightness to the facade and allows a certain connection with the outside in a discreet way. The characteristic color of the construction makes it a focus of attention when passing through the area, being a hallmark of its identity and culture.

리얼 드 로스 레예스 주거단지
멕시코 남부 코요아칸 자치구는 역사가 가득한 박물관, 공예 시장, 공공 공간과 보헤미안 양식이 보존하고 있는 곳이다. 서비스 공간들과 함께 역사, 문화, 전통 환경들이 공존하고 있는 곳에 리얼 드 로스 레예스 주거단지가 들어섰다. 야외 카페, 레스토랑, 미술관, 아이스크림 가게, 나무 줄과 자갈 거리에 이르기까지 일상을 위한 오락 공간들이 가득 들어서 있다. 이 넓은 면적을 가진 주거단지는 보안 시스템을 갖추고, 고급스러운 건축 마감, 적절한 공간 배치들로 거주민들에게 편안함 제공한다. 가족단위든, 개인이든, 각자의 다른 생활 방식에 유연하게 적응 가능한 곳이다. 주거공간은 일상생활, 회의, 휴식 등 다양한 용도로 설계돼 거주자의 취향과 필요에 따라 마감재 제작이 가능하다. 총 3개 층에 320㎡부터 13채의 주택이 있으며, 각 층마다 충분한 주차장과 옥상 정원, 테라스가 있다.
단지 정면의 디자인은 환경과 그 본질에 영향을 주지 않으면서 그 지역에서 독특함을 추구한다. 주황색 색소 콘크리트로 만들어져 있는 공간에 따라 은은하게 시간이 흐르는 듯한 느낌을 준다. 원형 천공이 있는 격자는 정면에 가벼운 느낌을 주며, 외부와 조심스럽게 일정한 연결을 가능하게 한다. 건축물의 특징적인 색상은 그 지역을 지날 때 그것의 정체성과 문화의 특징인 주목의 대상이 되게 한다.






















Architect 엠티에이 아키텍츠 | MTA ARCHITECTS
Location Coyoacan, Mexico City, Mexico
Program Residential
Gross floor area 2,541㎡
Construction period 2018 - 2022
Completion 2022
Design team Rodrigo Marquez, Perla Chavez
Photographer Jaime Navarro
해당 프로젝트는 건축문화 2022년 8월호(Vol. 495)에 게재되었습니다.
The project was published in the August, 2022 recent projects of the magazine(Vol. 495).
August 2022 : vol. 495
Contents : RECORDS FIVE ARCHITECTS FROM THREE TEAMS SELECTED FOR ‘2022 KOREA YOUNG ARCHITECTS AWARD’ 2022 젊은 건축가상에 선정된 3개 팀, 5명의 건축가들 : NEWS / COMPETITION / BOOKS : SKETCH THE FLASHING ELEMENTS / CRISTINA CORREA FREI
anc.masilwide.com
'Architecture Project > Multifamily' 카테고리의 다른 글
| HIBISCUS BUILDING (0) | 2022.11.29 |
|---|---|
| ROSE & MUSTARD BUILDING (0) | 2022.11.22 |
| TREE-HOUSE (0) | 2022.10.25 |
| SAKURAGICHO RESIDENCE (0) | 2022.10.25 |
| 110 HOUSING UNITS IN TOULOUSE (0) | 2022.09.30 |
마실와이드 | 등록번호 : 서울, 아03630 | 등록일자 : 2015년 03월 11일 | 마실와이드 | 발행ㆍ편집인 : 김명규 | 청소년보호책임자 : 최지희 | 발행소 : 서울시 마포구 월드컵로8길 45-8 1층 | 발행일자 : 매일



