PARTENORD HABITAT HEADQUARTERS
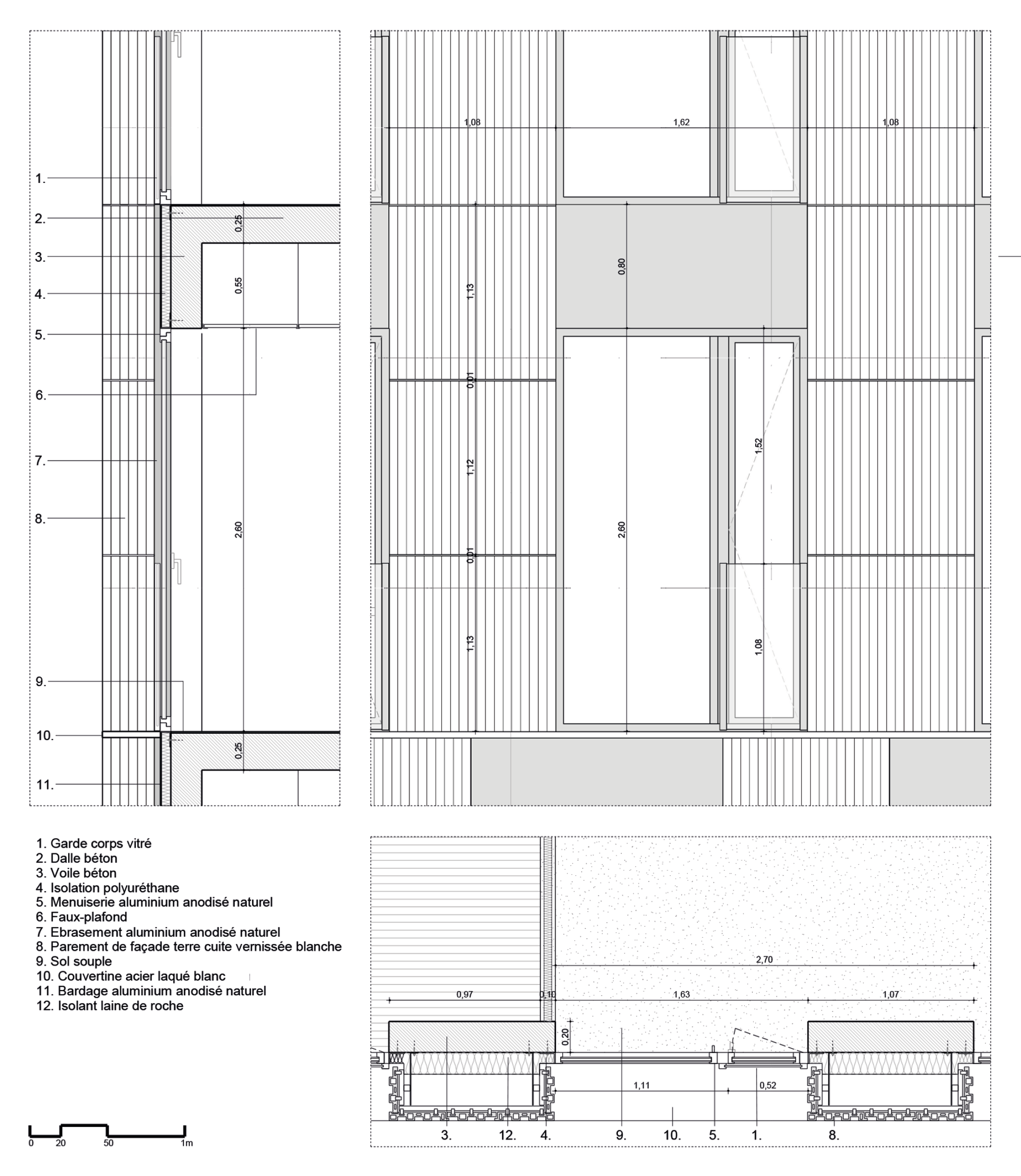
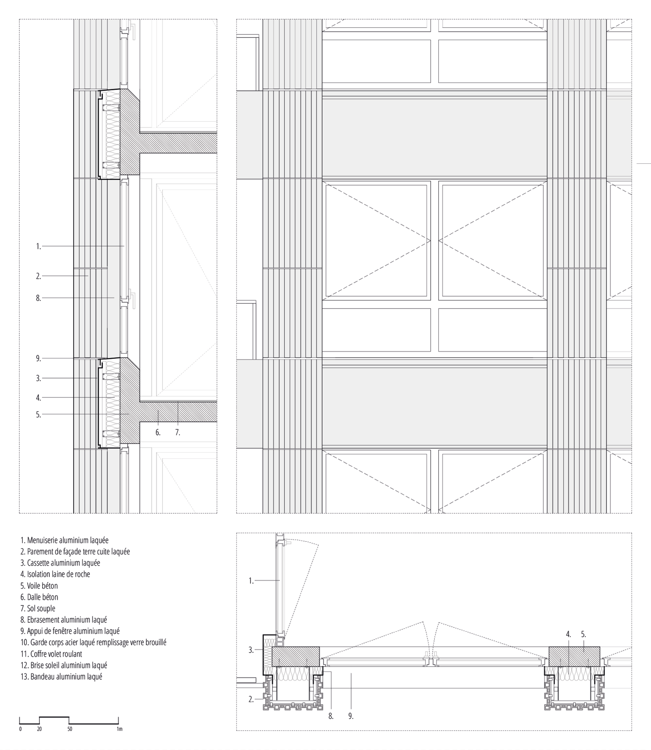
The project is situated on a plot in a strategic location at the entrance to the city of Lille, at the corner of Rue de Cambrai and Boulevard de Belfort. The building emerges from the ground along..
anc.masilwide.com





Architects Coldefy
Location Lille, France
Completion 2020. 09
Photographer Julien Lanoo
'Detail' 카테고리의 다른 글
| [Handrail, Wooden Walkway] CAN SANTACILIA (0) | 2022.11.29 |
|---|---|
| [Facade] SOCIAL HOUSING UNITS IN MASSIVE STONE (0) | 2022.09.28 |
| [Facade] VILLA M (0) | 2022.09.22 |
| [Facade] ARC (0) | 2022.09.21 |
| [Facade] BIODOME SCIENCE MUSEUM (0) | 2022.09.20 |
마실와이드 | 등록번호 : 서울, 아03630 | 등록일자 : 2015년 03월 11일 | 마실와이드 | 발행ㆍ편집인 : 김명규 | 청소년보호책임자 : 최지희 | 발행소 : 서울시 마포구 월드컵로8길 45-8 1층 | 발행일자 : 매일



