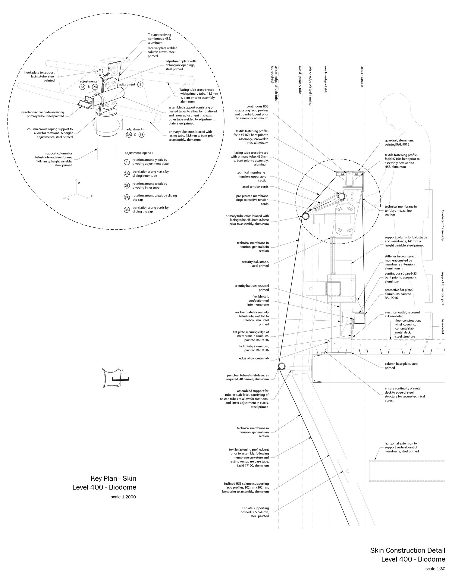
BIODOME SCIENCE MUSEUM
Housed in the former Velodrome, constructed for the Montréal 1976 Olympic Games, the Biodome opened in 1992 and is a jewel in the crown of a consortium of facilities that collectively account for..
anc.masilwide.com




Architects KANVA
Location Montreal, Canada
Completion 2020
Photographer James Brittain, Marc Cramer
반응형
'Detail' 카테고리의 다른 글
| [Facade] VILLA M (0) | 2022.09.22 |
|---|---|
| [Facade] ARC (0) | 2022.09.21 |
| [Section] PROGETTO ITALIA (0) | 2022.09.14 |
| [Facade, Canopy] WAVE ONE (0) | 2022.09.13 |
| [Facade] MUSEUM OF MODERN ALUMINUM THAILAND (0) | 2022.09.08 |
마실와이드 | 등록번호 : 서울, 아03630 | 등록일자 : 2015년 03월 11일 | 마실와이드 | 발행ㆍ편집인 : 김명규 | 청소년보호책임자 : 최지희 | 발행소 : 서울시 마포구 월드컵로8길 45-8 1층 | 발행일자 : 매일



