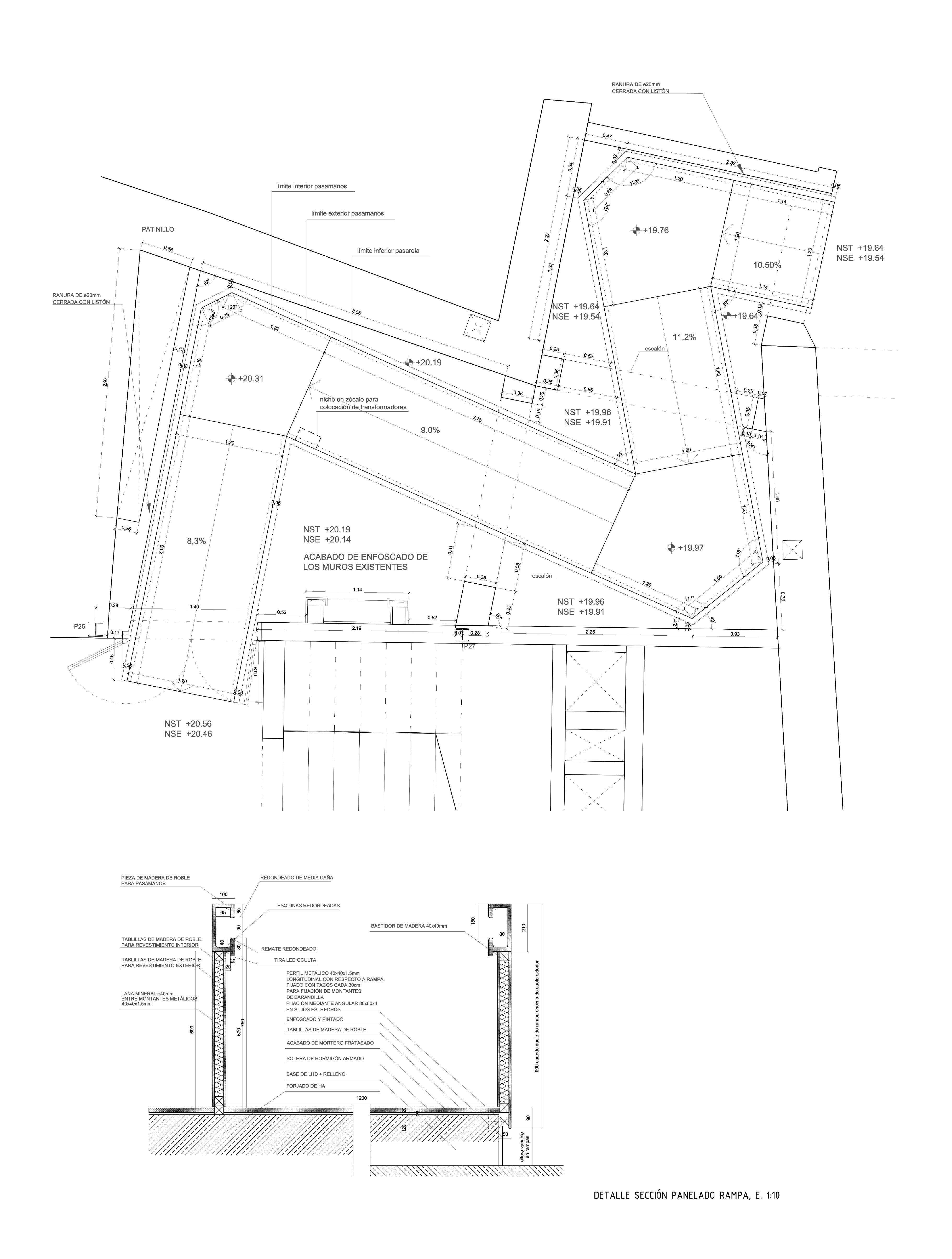
CAN SANTACILIA
Can Santacilia is a 3,300㎡ residential project with 15 dwellings and common areas. It is a careful renovation of two buildings located in the heart of Palma de Mallorca old town. The buildings dates back to the 12th or 13th century, although the building
anc.masilwide.com


Architect OHLAB
Completion 2022
Phtographer José Hevia
반응형
'Detail' 카테고리의 다른 글
| [facade] Paddington Square (0) | 2024.11.13 |
|---|---|
| [Structure Detail] Chapais Airport (0) | 2023.04.20 |
| [Facade] SOCIAL HOUSING UNITS IN MASSIVE STONE (0) | 2022.09.28 |
| [Exterior Wall] PARTENORD HABITAT HEADQUARTERS (0) | 2022.09.26 |
| [Facade] VILLA M (0) | 2022.09.22 |
마실와이드 | 등록번호 : 서울, 아03630 | 등록일자 : 2015년 03월 11일 | 마실와이드 | 발행ㆍ편집인 : 김명규 | 청소년보호책임자 : 최지희 | 발행소 : 서울시 마포구 월드컵로8길 45-8 1층 | 발행일자 : 매일



