
The Town Hall of Quedillac wanted to build a Cultural Center for the city. The main objective was to battle against capsularisation by providing a place where a diversity of publics could mix and gather around a common ground, thus fostering a social bond among the citizens. The new building would include a multimedia library, hall - coffee area, a youth space for teenagers and a childcare section for small children.
The site chosen by the municipality was next to the Town Hall, right in the middle of the town, where other public amenities are located (Town Hall, bakery, restaurant, etc...). The challenge was to create a place where multiple activities and publics could cohabitate and find synergy among the activities organized by the new cultural center.
The idea then was to create “another” kind of place, a hybrid space where the everyday and the exceptional, the common and the extraordinary, the normal and the exception can co-exist and interact so to produce something more than the sum of its parts.
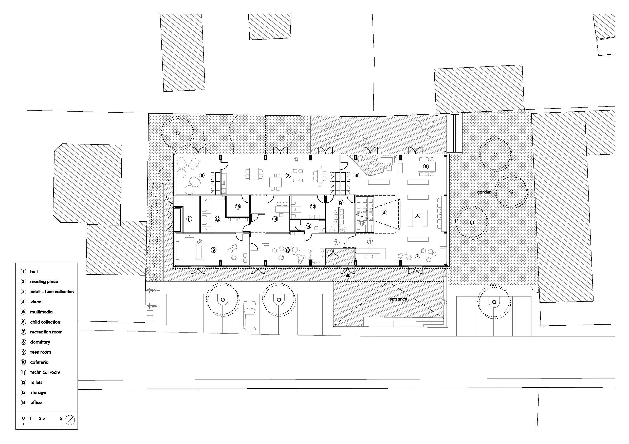
To showcase the internal activities to the passer-by, the program is organized towards the skin of the building, and the service areas at the inner core. In order to invite the public sphere into the building, the more public activities are placed facing the street life (hall-coffee, youth center, and multimedia library), and the more intimate programs facing the hidden garden-terrace at the back of the site (childcare section).
We decided to place the building in the middle of the site so to produce a diversity of exterior spaces, each one with its own character. The parking and square at the street level will promote curiosity and perform as an event spaces. The large pathway and independent entrance to the youth center will give an independent exterior area to the teenagers to appropriate at will. The garden up-north has a more contemplative character connected to the multimedia library as a landscape background to read. Finally, a colorful terrace space and garden is placed at the back of the building, where children can play safely and readers can get out and lounge at the afternoon sun light.
In order to create a building of “another” kind but at the same time being recognizable, we deployed a pinch roof typology, a sort of an iconic barn-house in a field. Furthermore, by manipulating the roof ridge so to enhance the spatiality of certain internal programs (youth center, multimedia library, child care section), and following the structural principle of the building, a new entity is produced. The roof is read as a mass detached from the ground with a transparent plinth, a “flying roof” sheltering the public sphere. The materialization of the roof in zinc shingles spins from its iconic form and the desire to differentiate the activities in the building through color. A map, from a picture taken from a site visit, was translated to create a pixel kind of pattern which was then applied to the roof tiling.

하늘을 나는 모두를 위한 ‘또 다른’ 공간, 문화센터 플라잉 루프
케딜락(Quedillac) 시청은 도시를 위한 문화센터를 짓고자 했다. 주된 목표는 다양한 사람들이 공공의 장소에 모여 섞일 수 있는 공간을 제공해 시민 사이의 사회적 유대를 조성하는 것이었다. 새로운 건물에는 멀티미디어 도서관, 홀, 커피를 마시는 공간, 청소년을 위한 공간과 어린이를 위한 보육 구역이 들어가야 했다.
지자체가 선택한 대지는 시청, 빵집, 레스토랑, 바, 교회 등이 있는 마을 한가운데, 시청 바로 옆이었다. 다양한 활동과 대중이 함께 할 수 있는 공간을 만들고, 새로운 문화센터에서 진행하는 활동들이 서로 시너지를 만들 수 있도록 돕는 것이 과제였다.
초기 아이디어는 일상과 특별한 날, 흔한 것과 특별한 것, 보통과 예외가 공존하고 상호작용해 그 이상의 것을 만들 수 있는 ‘또 다른’ 종류의 하이브리드 공간을 만드는 것이었다. 지나가는 사람들에게 내부를 보여주기 위해 바깥쪽과 내부 코어에 서비스 영역으로 프로그램을 구성했다. 공공공간을 건물의 안으로 끌어들이기 위해 공공성을 가진 다목적 홀, 청소년 공간, 멀티미디어 도서관을 도로와 가까이 배치했고, 사적 프로그램인 어린이 공간 등은 뒤쪽의 정원과 마주하도록 배치했다.
다양한 외부 공간을 만들기 위해 부지 중앙에 건물을 배치했고, 각 공간은 각자의 특성을 가지고 있다. 도로 옆에 있는 주차장과 광장은 호기심을 자극하는 이벤트 공간으로 활용되는 공간이다. 통로가 넓은 청소년 공간의 독립된 출입구는 청소년들이 마음대로 사용할 수 있는 외부 공간을 제공한다. 북쪽의 정원은 멀티미디어 공간과 도서관과 연결되어 독서를 할 수 있도록 구성했고, 좀 더 사색적인 성격이다. 마지막으로 건물 뒤편에 배치된 다채로운 테라스 공간과 정원은 아이들이 안전하게 놀고, 책을 읽는 사람들이 밖으로 나와 나른한 오후 햇살을 받으며 휴식을 취할 수 있도록 했다.
‘또 다른’ 종류의 건물을 만드는 동시에, 사람들이 알아볼 수 있게 하려고, 들판의 상직적인 헛간의 일종인 핀치 지붕을 사용했다. 또한, 지붕 선을 달리해 프로그램의 공간성을 높였고, 구조적 원리에 따라 새로운 독립체를 만들어냈다. 지붕은 투명한 주춧돌로 땅과 분리된 덩어리, ‘하늘을 나는 지붕(Flying Roof)’로 읽힌다. 징크 지붕널로 만들어낸 지붕은 상징적인 형태와 색으로 건물의 활동을 차별화하고자 하는 열망에서 출발했다. 현장에서 찍은 사진을 지도로 변환해 픽셀의 패턴을 만든 다음 지붕 타일에 적용했다.































Architects 오버코드 아키텍쳐 어바니즘 | OVERCODE architecture urbanisme
Location Quedillac, France
Program Multimedia Library, Youth Center, Childcare, Community Center
Gross floor area 515㎡
Building scope 1F
Completion 2021
Principal architect Claire GARCIA BARRIET, Alejandro GARCIA MARTA
Landscape architect LOCUSCAPE
Engineering ANA BET
Client Town of Quedillac
Photographer DAVID FOESSEL
해당 프로젝트는 건축문화 2022년 6월호(Vol. 493)에 게재되었습니다.
The project was published in the June, 2022 recent projects of the magazine(Vol. 493).
June 2022 : vol. 493
Contents : RECORDS A NEW SPACE PROPOSAL THAT REFLECTS PERSONAL PREFERENCES OUTSIDE THE CITY CENTER 도심 밖, 개인의 취향을 반영한 새로운 공간 제안 CALL FOR ENTRIES: ‘SEOUL AR..
anc.masilwide.com
'Architecture Project > Cultural' 카테고리의 다른 글
| AXONOMETRYTHE WEDGE (0) | 2022.09.26 |
|---|---|
| BIODOME SCIENCE MUSEUM (0) | 2022.09.20 |
| MUSEUM OF MODERN ALUMINUM THAILAND (0) | 2022.09.08 |
| Camerino Academy of Music (0) | 2022.09.02 |
| RAINBOW PAVILION (0) | 2022.08.16 |
마실와이드 | 등록번호 : 서울, 아03630 | 등록일자 : 2015년 03월 11일 | 마실와이드 | 발행ㆍ편집인 : 김명규 | 청소년보호책임자 : 최지희 | 발행소 : 서울시 마포구 월드컵로8길 45-8 1층 | 발행일자 : 매일



