AGENCY GIBOIRE MORBIHAN OFFICES
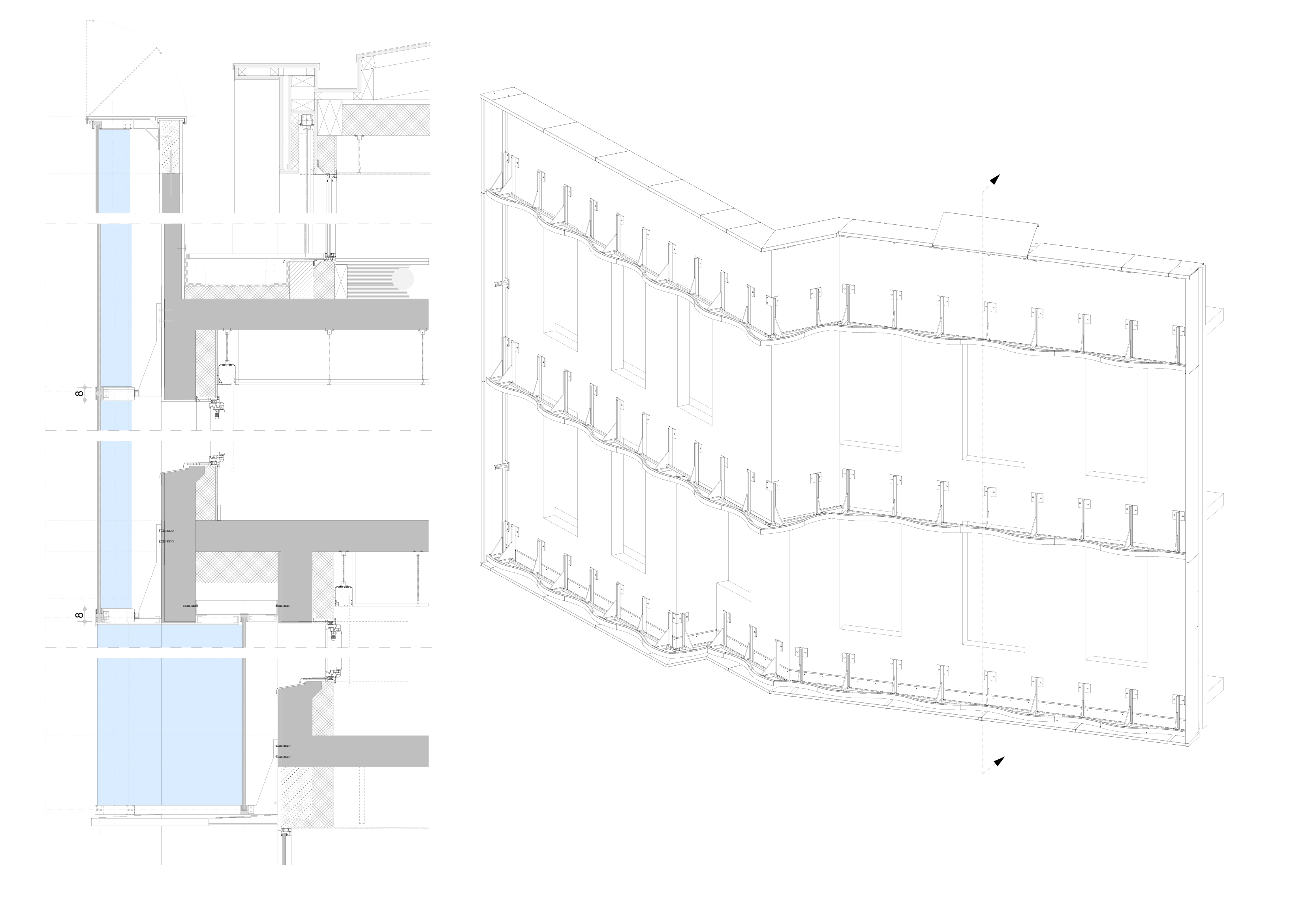
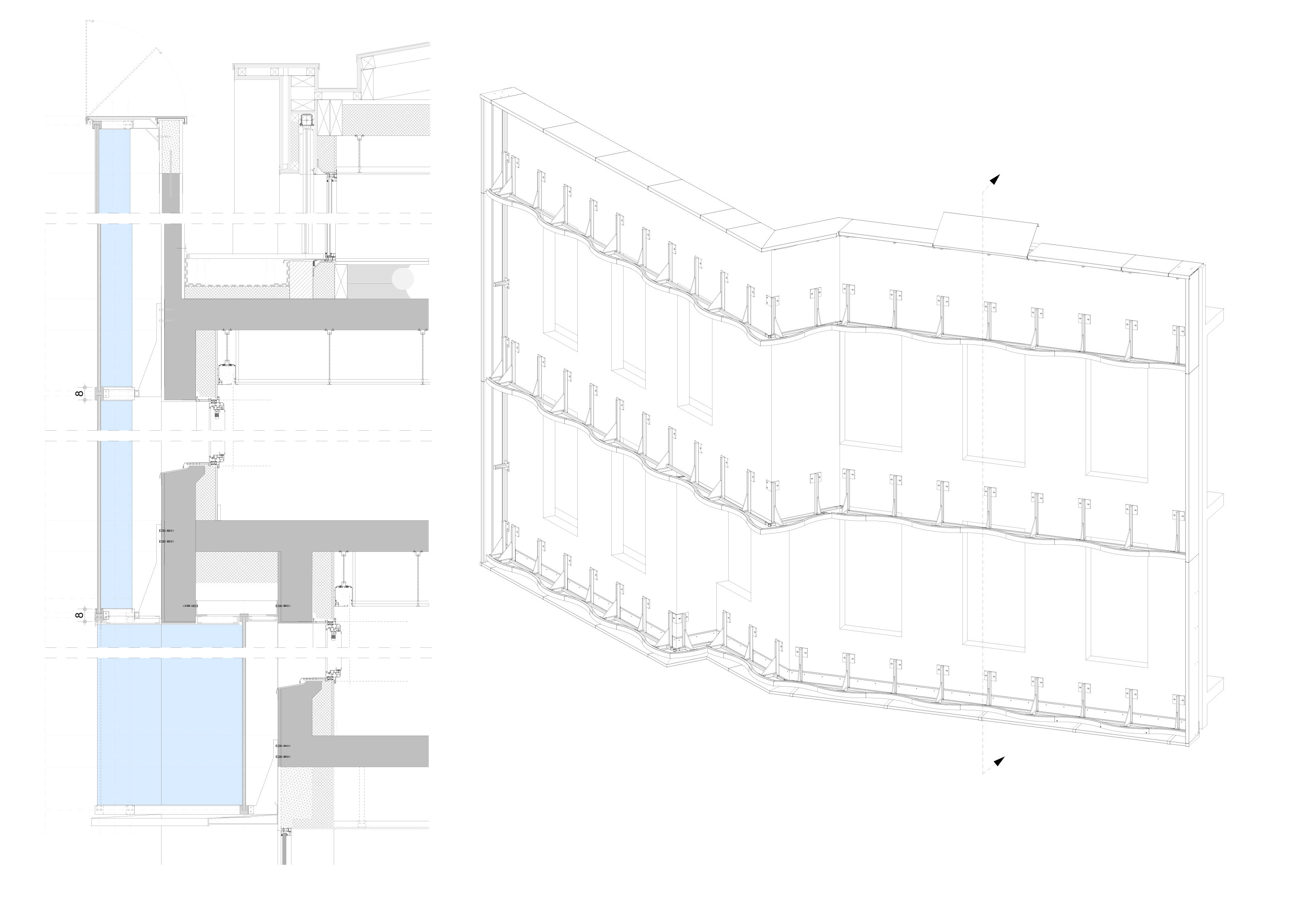
This project involves the heavy restructuring of a corner building located at the junction of rue Thiers and rue Carnot, in the heart of the historic center of the city of Vannes. The existing buil..
anc.masilwide.com


Architects a/LTA le trionnaire - le chapelain
Location Vannes, France
Completion 2021
Photographer Stephane Chalmeau
반응형
'Detail' 카테고리의 다른 글
| [Facade, Canopy] WAVE ONE (0) | 2022.09.13 |
|---|---|
| [Facade] MUSEUM OF MODERN ALUMINUM THAILAND (0) | 2022.09.08 |
| [Exterior Wall] IBIZA GRAN HOTEL EXTENSION (0) | 2022.09.06 |
| [Section] WELL LIVING LAB (0) | 2022.09.05 |
| [Exterior Wall, Floor] CANAL HOUSE HUMBEEK (0) | 2022.09.02 |
마실와이드 | 등록번호 : 서울, 아03630 | 등록일자 : 2015년 03월 11일 | 마실와이드 | 발행ㆍ편집인 : 김명규 | 청소년보호책임자 : 최지희 | 발행소 : 서울시 마포구 월드컵로8길 45-8 1층 | 발행일자 : 매일



