IBIZA GRAN HOTEL EXTENSION
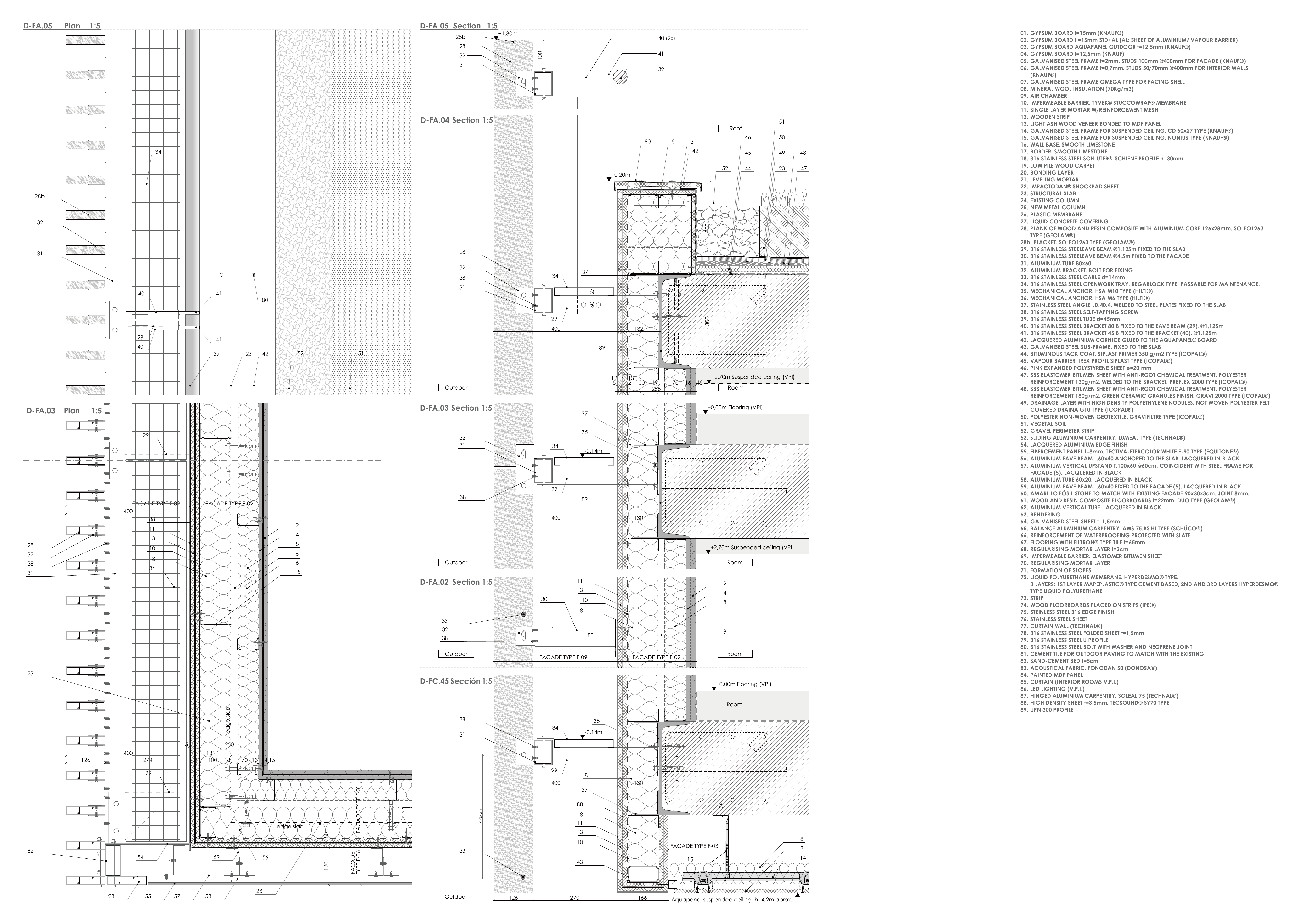
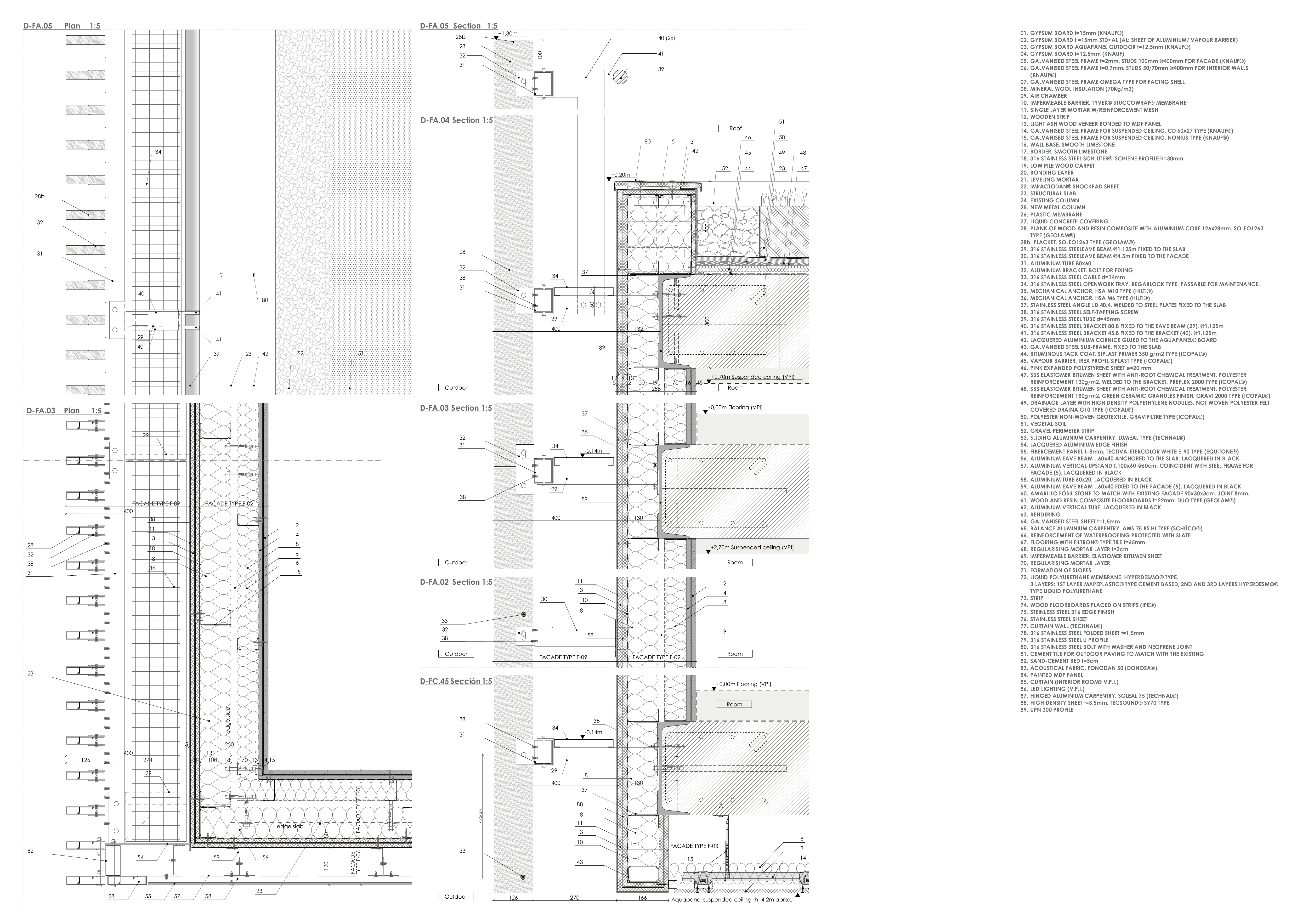
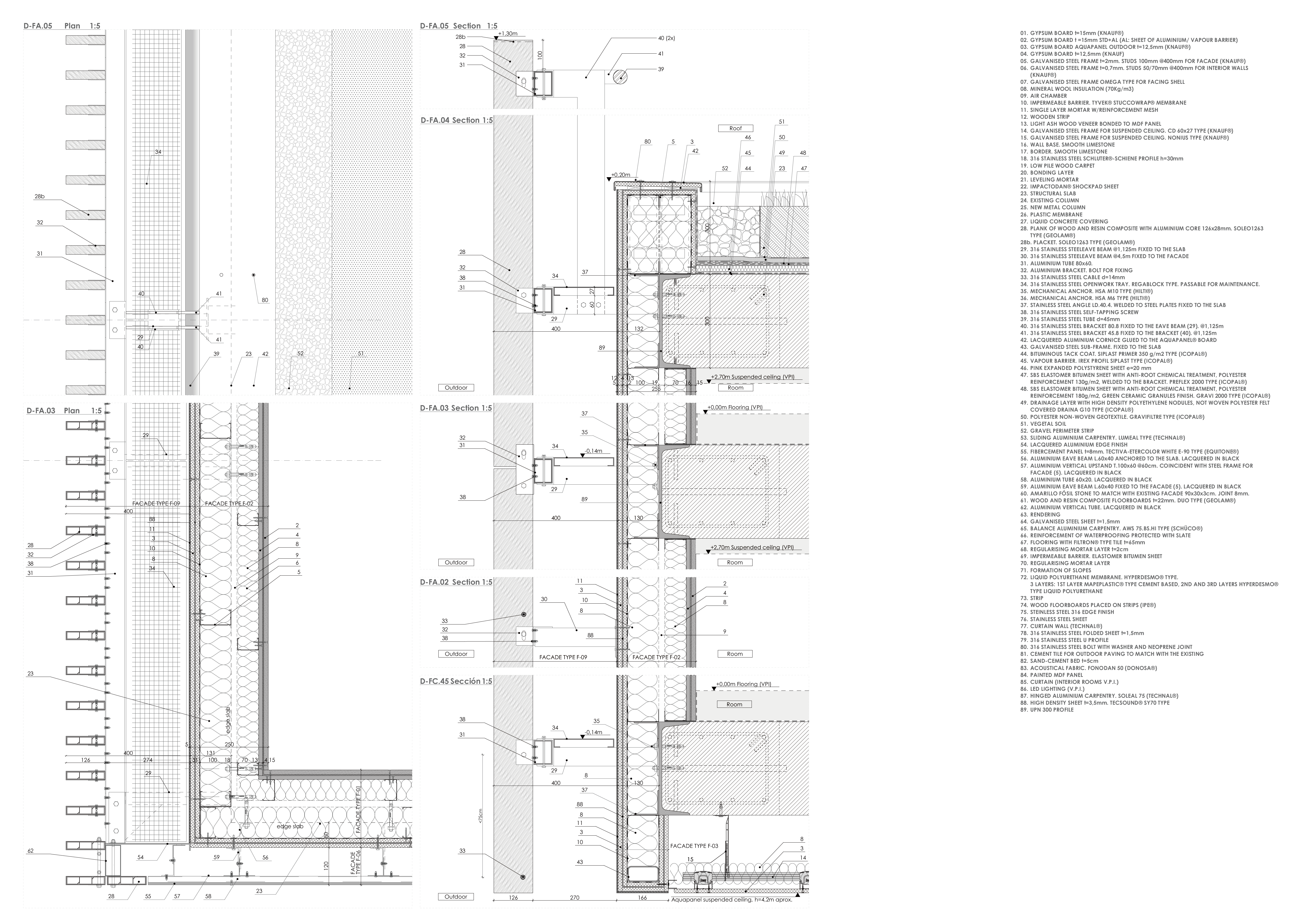
The project undertakes a complete renovation of the rear image of the building, with the construction of 30 new rooms and the remodeling of the facades. The new volumes are placed taking advantage..
anc.masilwide.com


Architects Colmenares Vilata Arquitectos
Location Ibiza, Spain.
Completion 2018
Photographer Imagen Subliminal(Miguel de Guzmán + Rocío Romero)
반응형
'Detail' 카테고리의 다른 글
| [Facade] MUSEUM OF MODERN ALUMINUM THAILAND (0) | 2022.09.08 |
|---|---|
| [Facade] AGENCY GIBOIRE MORBIHAN OFFICES (0) | 2022.09.07 |
| [Section] WELL LIVING LAB (0) | 2022.09.05 |
| [Exterior Wall, Floor] CANAL HOUSE HUMBEEK (0) | 2022.09.02 |
| [WALL, MINARET] MOSQUE OF REFLECTION (0) | 2022.09.01 |
마실와이드 | 등록번호 : 서울, 아03630 | 등록일자 : 2015년 03월 11일 | 마실와이드 | 발행ㆍ편집인 : 김명규 | 청소년보호책임자 : 최지희 | 발행소 : 서울시 마포구 월드컵로8길 45-8 1층 | 발행일자 : 매일



