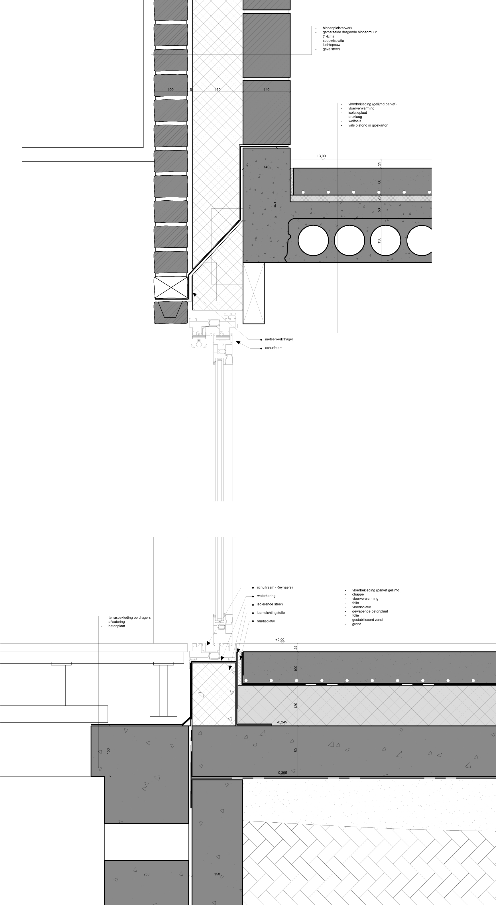
CANAL HOUSE HUMBEEK
A small residence is inserted with originality among the houses overlooking the Brussel-Scheldt Maritime canal that splits the small town of Humbeek, part of the municipality of Grimbergen, in the..
anc.masilwide.com





Architects Studio Farris Architects
Location Humbeek, Grimbergen, Belgium
Completion 2022. 11
Photographer Koen Van Damme, Martino Pietropoli
반응형
'Detail' 카테고리의 다른 글
| [Exterior Wall] IBIZA GRAN HOTEL EXTENSION (0) | 2022.09.06 |
|---|---|
| [Section] WELL LIVING LAB (0) | 2022.09.05 |
| [WALL, MINARET] MOSQUE OF REFLECTION (0) | 2022.09.01 |
| [Facede, Balcony, Window] MORE WITH LESS (0) | 2022.07.22 |
| [Exterior Wall] MIZU MORI JAPANESE RESTAURANT (0) | 2022.07.21 |
마실와이드 | 등록번호 : 서울, 아03630 | 등록일자 : 2015년 03월 11일 | 마실와이드 | 발행ㆍ편집인 : 김명규 | 청소년보호책임자 : 최지희 | 발행소 : 서울시 마포구 월드컵로8길 45-8 1층 | 발행일자 : 매일



