
The design began when I met the architect who decided to build a shopping district house that could solve the two factors: the residence and rental income of the main household (parents and the couple) on a detached house with a garden where I lived with my mother since childhood.
Although it was inconvenient to live in due to the aging of the house I lived in, I decided to sell land with long memories and build it with the desire to live in the current place where I can maintain relationships with people rather than settle down elsewhere. It was the building owner’s requirement to make room for one-room households according to the current trend so that the vacant rooms of the rental facilities can be minimized and variable rental space can be constructed in the shopping district.
In the case of shopping district houses, there were many parts that needed to be considered in combination, such as recognition and accessibility, compared to a single purpose. In consideration of the privacy of home users, a space independent of the shopping district users should be formed, and in the case of shopping districts, it should be constructed to be conspicuous and easy for visitors to access. Basically, the building design was developed by avoiding interference between users through floor separation and height, and by separating access lines using the back road, the movement of shopping district users and home users does not overlap.
The board makes the most of the characteristics of the land that meets the three-sided roads, separating residential and shopping routes. A residential route was built on the back road near convenience facilities such as marts and bus stops, and a road near facilities such as a face office, police box, and post office was designed to suit each person’s role. Although it is a shopping district house, the terrace and courtyard connecting the outer space are provided in the living space to provide a sense of openness and comfort while blocking the eyes of many and unspecified people by using the semi-open area loading.
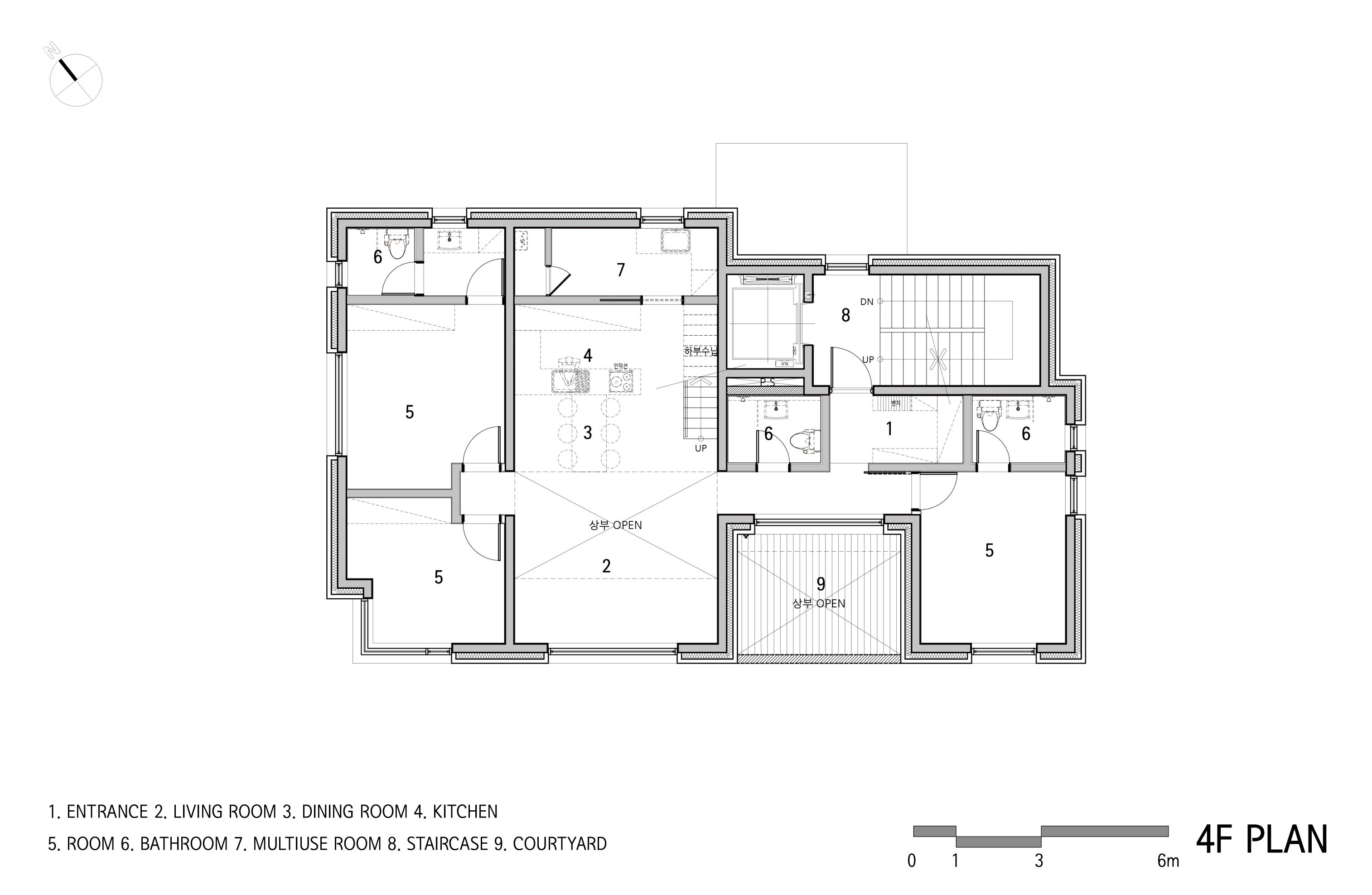
Because of the nature of Anseong area, the rental shopping district is designed to accommodate the needs of various tenants by taking into account the access flow lines and toilets of each floor and connecting the second floor to the first floor or renting in the case of the second floor. In the case of rental housing, the concern between 1.5 rooms and 1 room was finally selected as a one-room structure with a terrace through a design meeting, and each household was provided with an external terrace to ensure comfort. In the case of the owner’s household, the house is separated by considering the privacy of the parents, and the existing detached garden is raised in the courtyard on the fourth floor to form a space for intergenerational privacy and family gatherings.

어렸을 적부터 살던 마당이 있는 단독주택 땅에 부모님과 건축주 부부가 함께 살며, 임대수익을 얻을 수 있는 상가주택을 짓기 원하는 건축주를 만나 본 설계가 시작되었다. 살고 있던 주택은 노후화되어 생활이 불편했으나, 건축주는 다른 곳으로 이사를 하는 것보다 오랜 추억이 있는 이곳에서 이웃들과 계속해서 관계를 맺으며 함께 살고 싶다는 마음을 가지고 있었다. 건축주의 요구사항이 몇 가지 있었는데, 첫 번째는 상가주택이지만 단독주택처럼 느낄 수 있어야 했고, 두 번째는 임대시설의 공실을 최소화할 수 있길 바랐다. 또한, 상가는 가변적인 임대공간 구성이 가능해야 했으며, 원룸 세대는 현재 트렌드에 맞춰 실을 구성해야 했다.
상가주택은 두 종류의 용도가 복합되기 때문에 단일 용도보다 인지성, 접근성 등 복합적으로 고민이 필요한 부분이 많았다. 거주자의 프라이버시를 고려하여 상가 이용자와 분리된 독립 공간을 형성해야 했고, 상가는 돋보이면서 방문객들의 접근이 쉬운 구성이 필요했다.
구성에 대한 고민은 기본적으로 층의 분리, 높이를 통해 사용자들 간의 간섭을 피하는 것으로 해결했다. 이면도로를 이용해 접근동선의 분리했고, 상가 사용자와 주택 사용자의 동선이 겹치지 않도록 구성했다. 또한, 색상을 통한 분리에 대한 고민을 반복했고 건축물의 이름도 분리를 뜻하는 ‘반’으로 설정하면서 설계를 발전시키게 되었다.
‘반’은 3면 도로에 접한 대지의 특성을 최대한 활용해 주거 동선과 상가 동선을 분리했다. 마트와 정류소 등 생활편의시설이 가까운 곳에 주거 동선을 만들고, 면사무소, 파출소, 우체국 등 근생시설이 가까운 도로에는 상가 진입 동선을 두어 각자의 역할에 맞도록 평면설계를 진행하였다. 상가주택이지만 단독주택의 느낌이 들 수 있도록 주거공간에 외부공간을 연결할 수 있는 테라스와 중정을 두었다. 개방감과 쾌적함을 느낄 수 있게 하면서 반개구쌓기를 이용해 불특정다수의 시선은 차단했다.
임대상가는 안성 지역의 특성상 소규모 임차인이 많아 1층을 통으로 임대하거나 2~3분할도 가능하도록 각각의 진입동선과 화장실 등도 고려되어 있다. 2층은 직통계단을 통해 1층과 연계하거나 2분할 임대가 가능하도록 해 다양한 임차인들의 수요에 맞게 변화할 수 있도록 구성했다.
임대주택은 1.5룸과 원룸사이에서 고민을 했다. 설계 미팅을 통해 테라스가 있는 원룸형 구성으로 선정했고, 세대별로 외부테라스를 두어 쾌적성을 확보했다.
주인세대의 경우 부모님과 함께 사는 주택이지만, 각자의 프라이버시를 고려하여 공간을 분리했다. 기존의 단독주택 마당 역할을 하는 4층의 중정은 세대 간의 프라이버시를 위한 공간이면서 가족들이 모이는 공간으로도 활용할 수 있도록 했다.




















Architects Raum Architecture | 라움건축사사무소
Location Anseong-si, Gyeonggi-do, Republic of Korea
Program Commercial house
Site area 325.00㎡
Building area 168.29㎡
Gross floor area 576.79㎡
Building scope 4F
Building to land ratio 51.67%
Floor area ratio 177.47%
Design period 2019. 12 - 2020. 9
Construction period 2020. 10 - 2021. 8
Completion 2021
Principal architect Jae-woong Bang
Project architect Hyuk cheol Kwon
Construction miraehyeon construction
Photographer Hanul Lee
May 2022 : vol. 492
Contents : RECORDS THE STORY OF THE CITY THAT PUBLISHERS DREAMED OF, RELEASED 꿈꾸던 도시가 들려주는 이야기, <위대한 계약: 파주, 책, 도시> 개봉 : NEWS / COMPETITION / BOOKS : SK..
anc.masilwide.com
'Architecture Project > Multifamily' 카테고리의 다른 글
| YEOKSAM MULTI-FAMILY RESIDENCE (0) | 2022.09.15 |
|---|---|
| Viale Giulini Affordable Housing (0) | 2022.09.05 |
| O6A LOT HOUSING (0) | 2022.07.18 |
| JADE BUILDING (0) | 2022.07.04 |
| RESIDENCE STACK TOGETHER (0) | 2022.07.01 |
마실와이드 | 등록번호 : 서울, 아03630 | 등록일자 : 2015년 03월 11일 | 마실와이드 | 발행ㆍ편집인 : 김명규 | 청소년보호책임자 : 최지희 | 발행소 : 서울시 마포구 월드컵로8길 45-8 1층 | 발행일자 : 매일



