
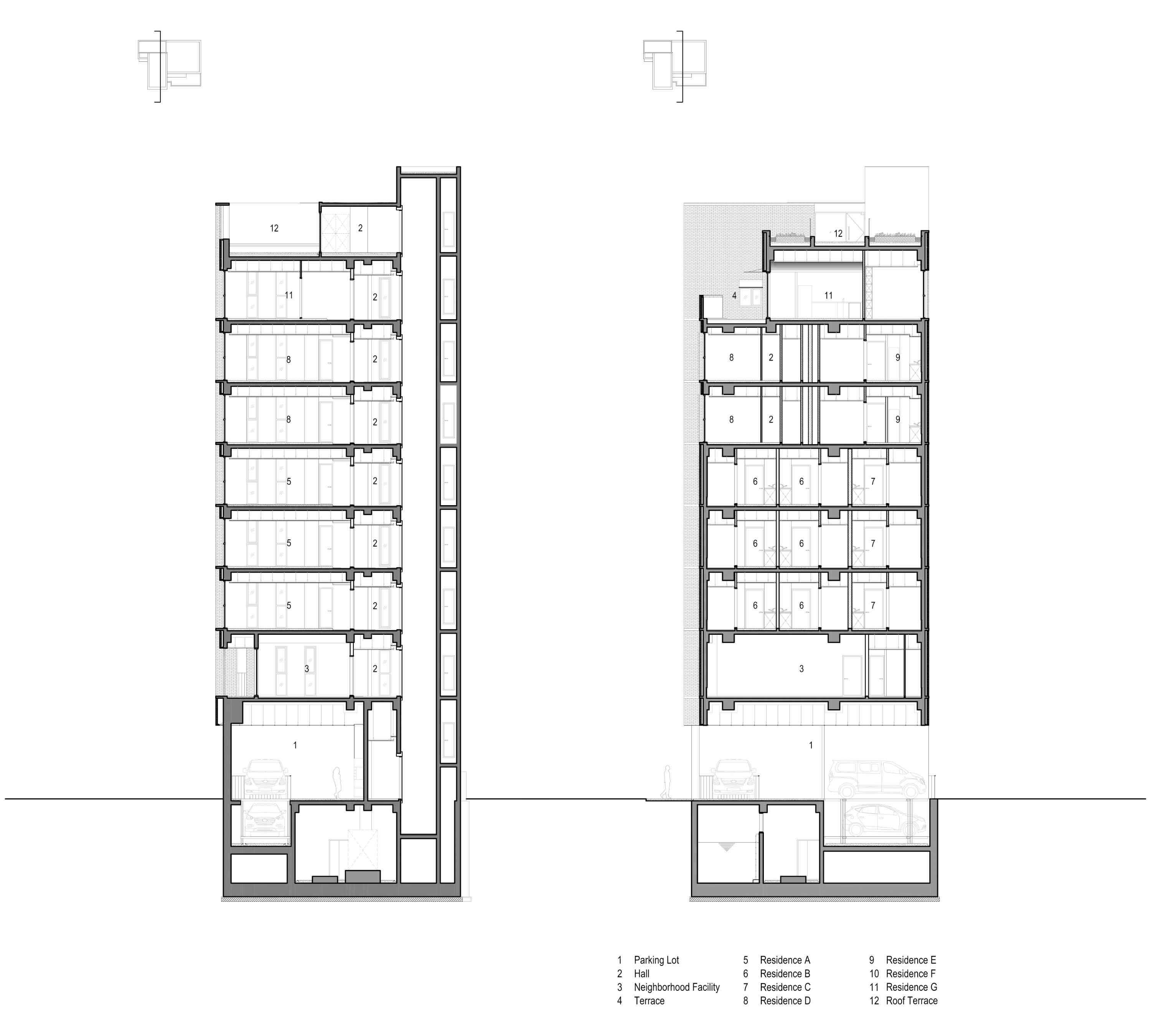
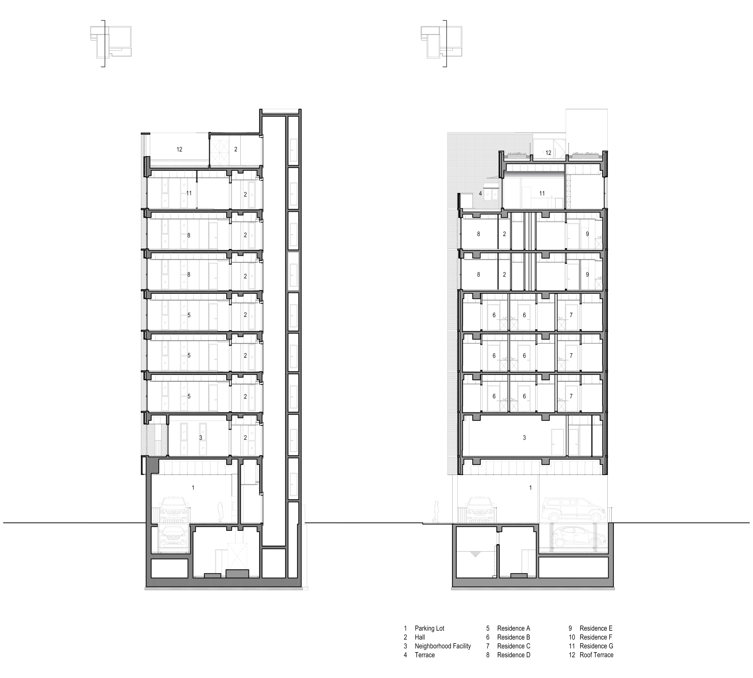
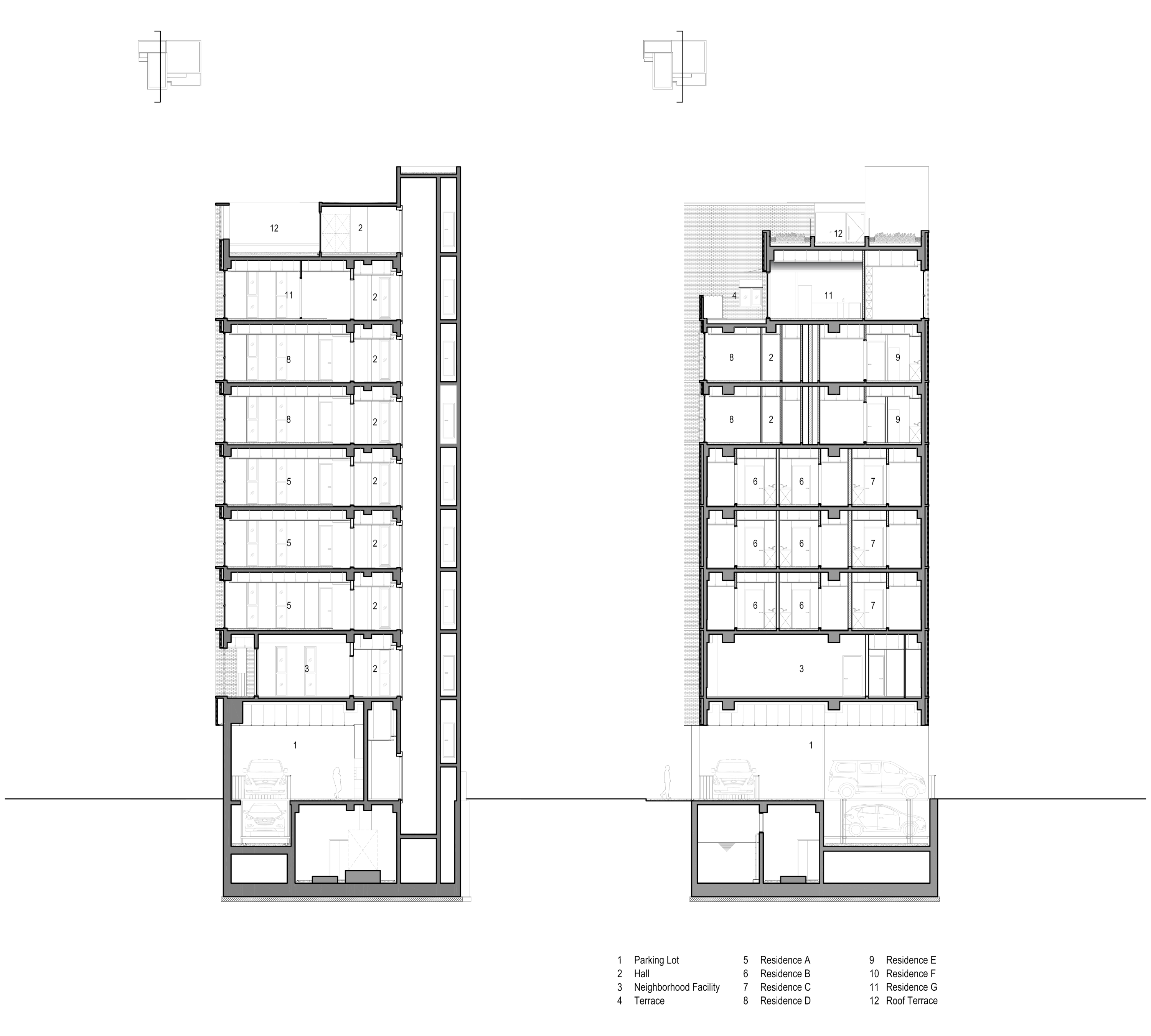
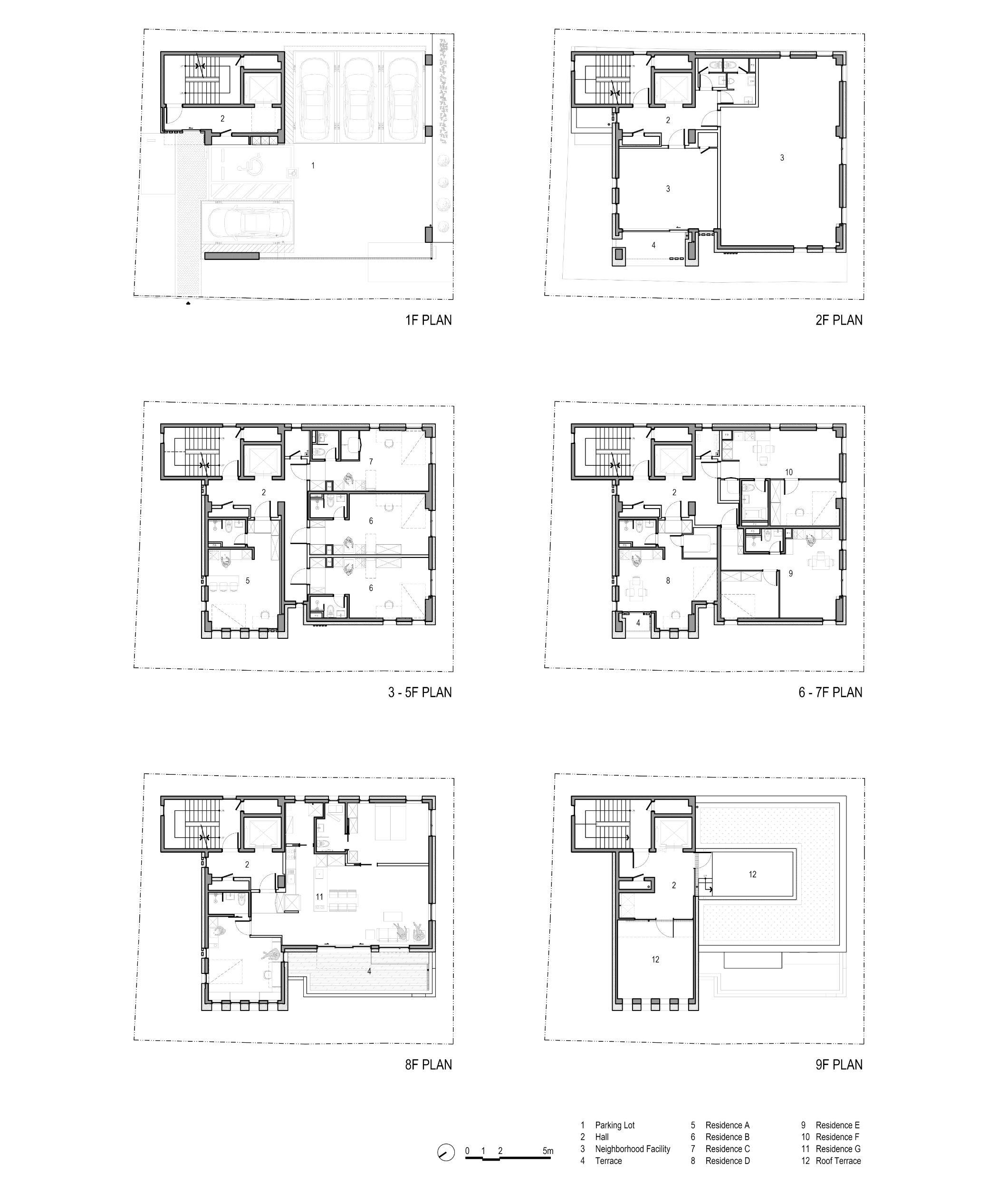
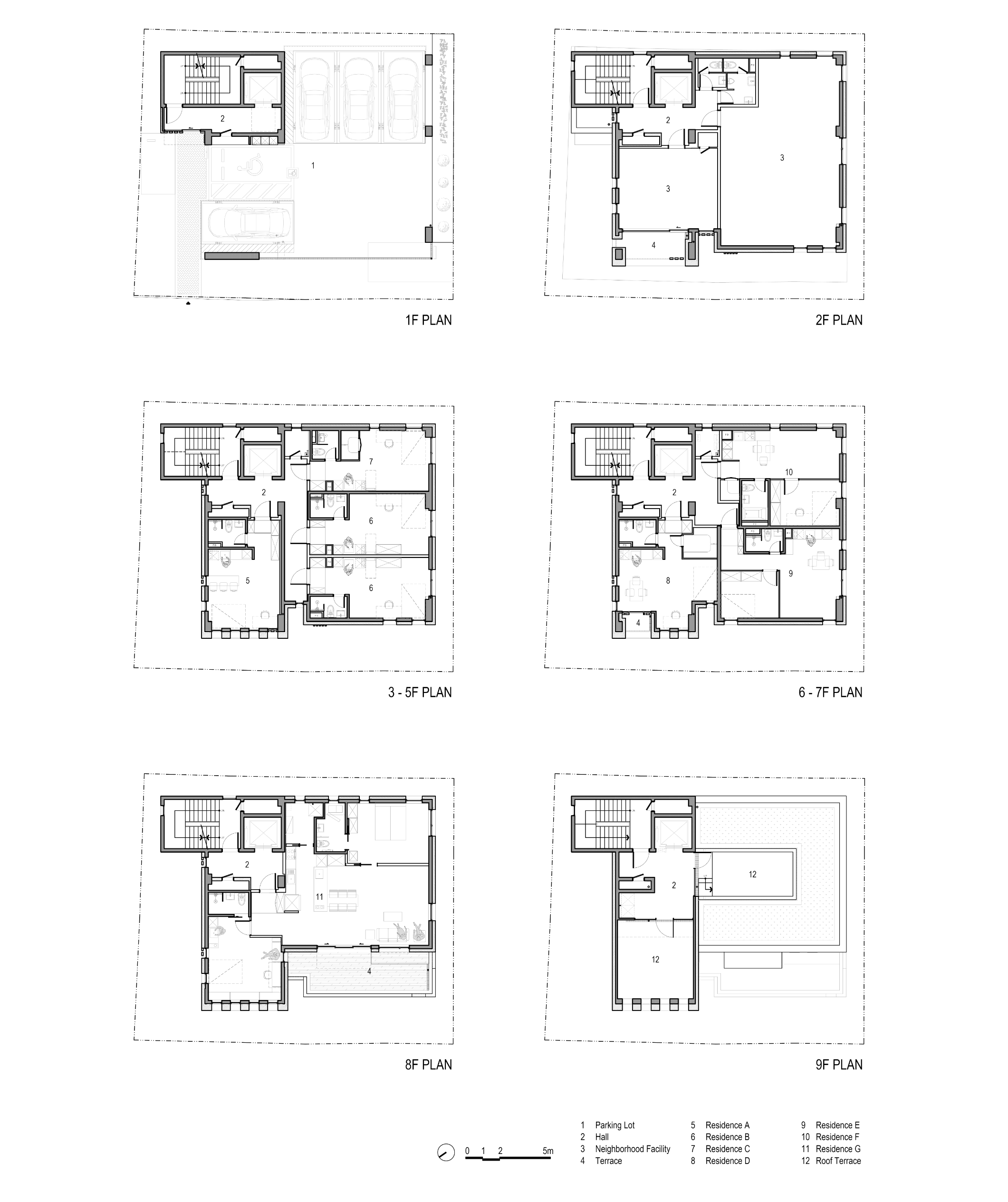
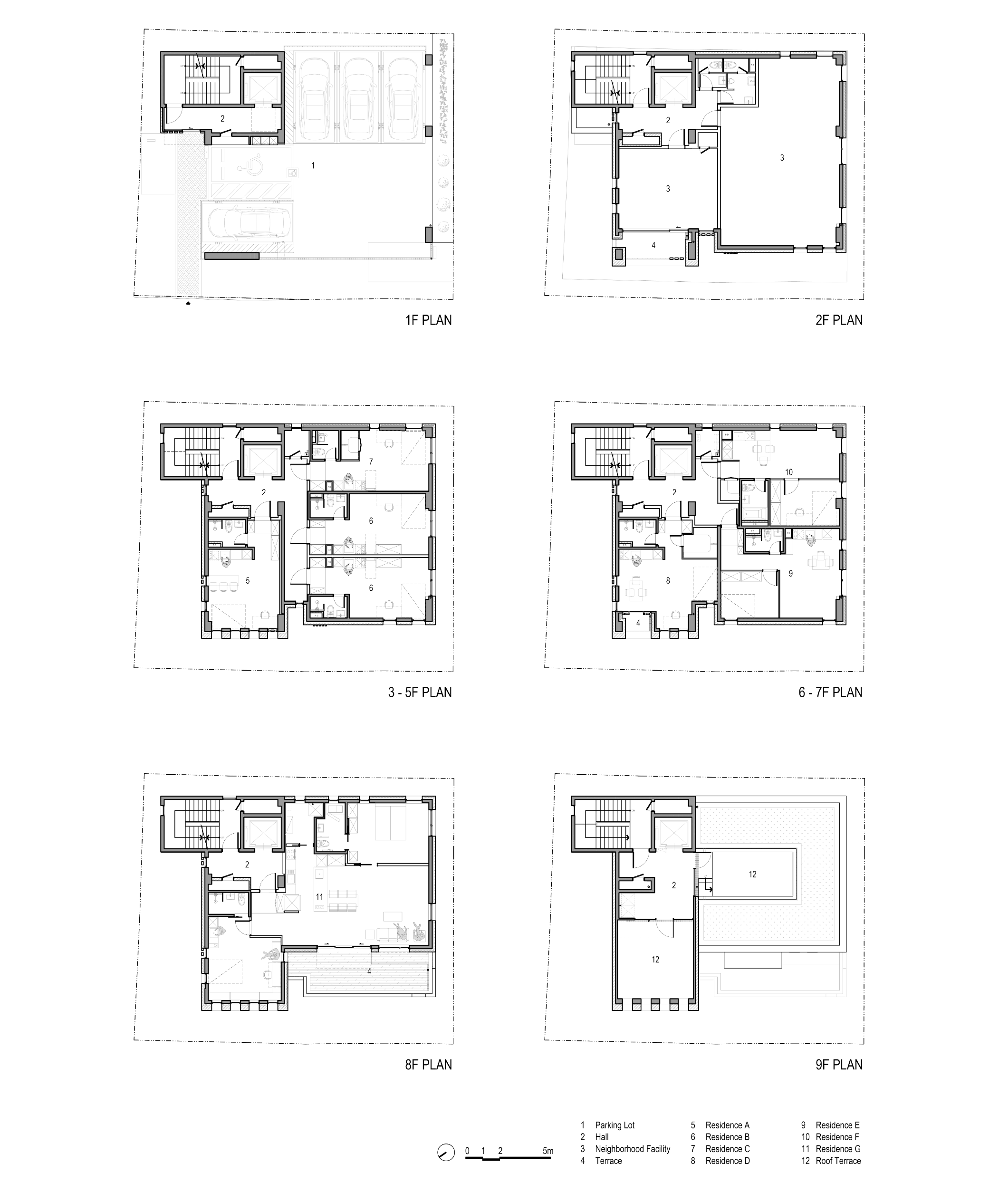
The conditions of the site allowed about 12 single-person residential spaces, 6 small residential spaces for more than two people, and some neighborhood facilities and family homes. A single residential space consisting of a single space and a small house with separate bedrooms were collected into four units and three units, respectively, and stacked them together as middle floors. Neighborhood facilities were deployed closest to the ground floor to increase rental efficiency, and the family's home was located on the top floor. The composition of this space is no different from that of any small apartment house, but the architect suggests two differentiated principles in the process. The first is to avoid identical replication and overlapping configurations, and the second is to increase all architectural levels of space jointly used by users.
For the first principle, residential units are filled with different elements. Tenants' choices were considered as units with terraces, units with various incised elevations, units with free interior storage spaces, units with alpha rooms, and units with exposed concrete walls. These various conditions also served as a basis for pricing various perspectives in the rental housing market, enabling small but uneven spatial composition.
Furthermore, for the second principle, we attempted a delicate architectural response, from the smallest to the most important parts that are commonly used spaces. Each floor not only takes up space when it is incorporated into the room, such as boiler rooms and outdoor equipment rooms, but also takes out space that causes noise and management demand to the public department to promote the utility and comfort of each household. In addition, the rooftop, which could be thrown away, was indoorized, publicized, and gardened, and the elevator was operated to the rooftop garden, shared laundry space, and public terrace on the top floor for usability. Above all, in order to solve the problem of parking shortage, which has always been pointed out as a problem in small urban residential buildings, lift-type mechanical parking that can be conveniently managed and used on the ground was planned to meet both the securing and utilization of parking lots. In addition, various plans were implemented to respond architecturally and spatially to various factors that affect real life, such as delivery storage, management and use of mailboxes, and discharge of garbage.
In order to unravel the concept of spatial planning of "resident-friendly" with its design identity, the most familiar and simple design and materials were selected. Houses of various compositions are placed in the optimal environment for each unit, and they are simply stacked. In the process, a volume divided into three large bundles was opened and closed to suit their respective surroundings. A small but interesting design that can reinforce the concept of such a look has been applied evenly to the front, giving it a simple but not boring face. As a suitable material for this architecture, it combines the most familiar materials in the house, red brick and exposed concrete, which are naturally 'stacked' bricks, and are supported by thin bands of concrete on each floor.

모아쌓은집은 1인 주거공간 약 12세대, 2인 이상이 거주할 수 있는 소형주거공간 6세대, 그리고 근린생활시설 일부와 가족의 보금자리를 가진 다세대주택이다. 단일공간으로 구성된 1인 주거공간과 침실이 분리되어 제공되는 소형주택을 각각 4개 유닛, 3개 유닛으로 모아 중층에 쌓아올렸다. 지상층과 가장 가까운 곳에 근린생활시설을 배치해 임대 효율을 높이고, 가족의 보금자리는 최상층에 자리하게 했다. 이러한 공간의 구성까지는 여느 소규모 공동주택과 다르지 않으나, 건축가는 그 과정에서 두 가지 차별화된 원칙을 제시했다. 첫 번째 소형 주택이라하여 동일하게 복제, 병치되는 구성은 피할 것, 두 번째 사용자와 구성원 모두가 공동으로 사용하는 공간의 모든 건축적 수준을 높일 것.
첫 번째 원칙을 위해 중층의 임대용 주거 유닛들은 제각기 다른 요소들로 채워져 있다. 테라스가 있는 유닛, 다양하게 절개된 입면을 가진 유닛, 여유 있는 내부 수납공간을 가진 유닛, 알파룸이 제공되는 유닛, 노출콘크리트 벽면이 연출되는 유닛 등으로 임차인의 선택 폭을 고려했다. 또한, 이러한 다양한 조건들은 임대시장에서 다양한 관점의 가격 책정 근거로 작용함으로써 작지만 획일화되지 않은 공간구성이 가능하게 했다.
두 번째 원칙을 위해 공용으로 사용되는 아주 사소한 부분부터 중요한 부분까지 섬세한 건축적 대응을 시도했다. 층별로 보일러실과 실외기실 등 가구 내부로 편입될 시 공간을 차지할 뿐 아니라 소음과 관리 수요의 원인이 되는 공간을 공용부로 빼내어 각 가구의 효용과 쾌적을 도모했다. 또한, 자칫 버려질 수 있는 옥상부를 실내화, 공용화, 정원화 했는데, 사용성을 위해 승강기가 최상층에 마련된 옥상정원과 공동 세탁공간, 공용 테라스까지 운행되도록 하여 공용공간의 활성화를 꾀했다. 무엇보다 도심형 소규모 공동주거 건축물에서 늘 문제점으로 지적됐던 주차 부족 문제의 실질적 해결을 위해, 지상에서 편리하게 관리, 사용할 수 있는 리프트식 기계식 주차를 도입해 주차면의 확보와 활용성 모두를 충족시키도록 계획했다. 이 밖에도 화물의 보관, 우편함의 관리 및 사용, 쓰레기의 배출 등 실생활에 영향을 미치는 다양한 요소들에 대한 건축적, 공간적 대응을 위해 다양한 계획을 실천했다.
이러한 ‘거주민-프랜들리’의 공간계획 개념을 외관의 정체성으로 풀어내기 위해, 가장 친숙하고 담백한 디자인과 재료를 선정했다. 다양한 구성으로 모아진 주택들은 각 유닛의 최적의 환경을 위한 자리에 배치되고, 이를 단순하게 쌓아 올렸다. 그 과정에서 크게 3개의 다발로 나누어진 볼륨을 그들이 각자 향하고 있는 주변환경에 알맞게 열고 닫았다. 그렇게 만들어진 외관의 콘셉트를 보강할 수 있는 소소하지만 재미있는 디자인이 입면에 골고루 적용되어 단순하지만 지루하지 않은 얼굴을 갖게 되었다. 이러한 건축의 모습에 어울릴 만한 재료로서, 주택에 가장 친숙한 재료인 적벽돌과 콘크리트 노출을 조합했는데, 태생적으로 ‘쌓아’ 구축하는 벽돌의 성질을 받아들이고 이를 자연스럽게 구현하기 위해 층별로 얇은 콘크리트 띠를 내밀어 벽돌을 받쳐 쌓았다.

















Architects Architects H2L
Location Sindang-dong, Jung-gu, Seoul, Republic of Korea
Site area 290.04㎡
Building area 159.88㎡
Gross floor area 1,109.74㎡
Building scope B1, 9F
Building to land ratio 55.12%
Floor area ratio 331.93%
Construction period 2019. 04 - 2021. 04
Completion 2021. 04
Principal architect Junghyun Hwang, Changyong Hyun
Project architect Junghyun Hwang, Changyong Hyun
Design team Yongjae Kim, Soyoen Jung
Structural engineer General Structural Engineering
Mechanical engineer URI E&C
Electrical engineer URI E&C
Construction C&O Construction
Photographer Seongcheol Kim
해당 프로젝트는 리빙즈, 디테일 04호에 게재되었습니다.
The project was published in LIVINGS, Detail 04
[BOOK] LIVINGS, Detail 리빙즈, 디테일 03호, 04호
<LIVINGS, Detail 리빙즈, 디테일 03호, 04호> 72개의 형태와 라이프스타일을 담은 주거공간, 국내외 “디테일한 주택 프로젝트”의 엮음 매월 국내외 다양한 건축물들을 소개해 온 <월간 건축문화>가 <
www.masilwide.com
'Architecture Project > Multifamily' 카테고리의 다른 글
| O6A LOT HOUSING (0) | 2022.07.18 |
|---|---|
| JADE BUILDING (0) | 2022.07.04 |
| SCH | HOUSING AN DEN SCHICHTGRÜNDEN (0) | 2022.06.30 |
| GRANVILLE 1500 (0) | 2022.06.29 |
| EO SYMPATHY (0) | 2022.06.28 |
마실와이드 | 등록번호 : 서울, 아03630 | 등록일자 : 2015년 03월 11일 | 마실와이드 | 발행ㆍ편집인 : 김명규 | 청소년보호책임자 : 최지희 | 발행소 : 서울시 마포구 월드컵로8길 45-8 1층 | 발행일자 : 매일



