
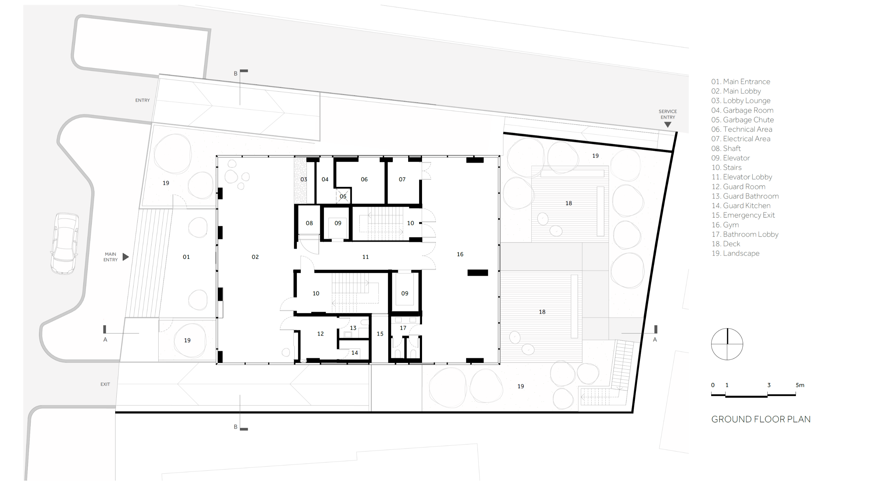
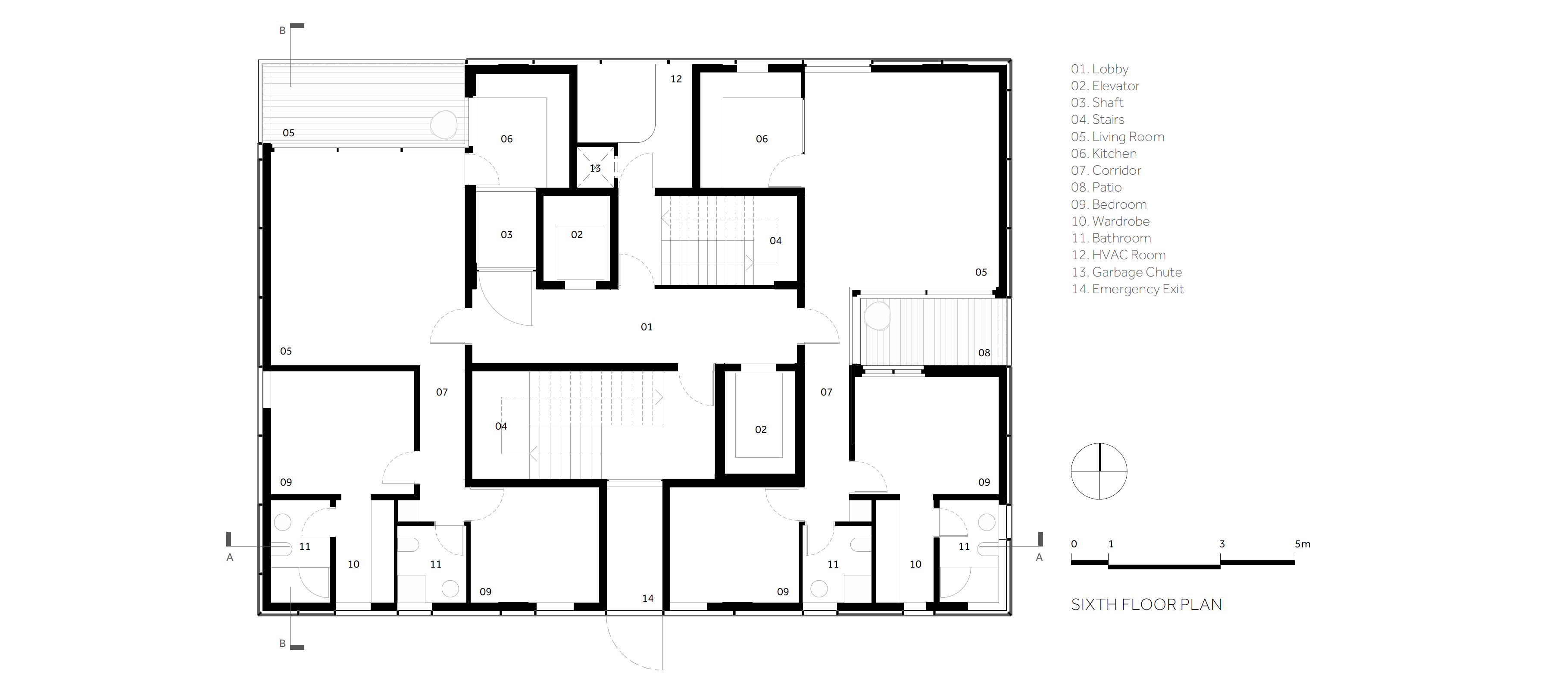
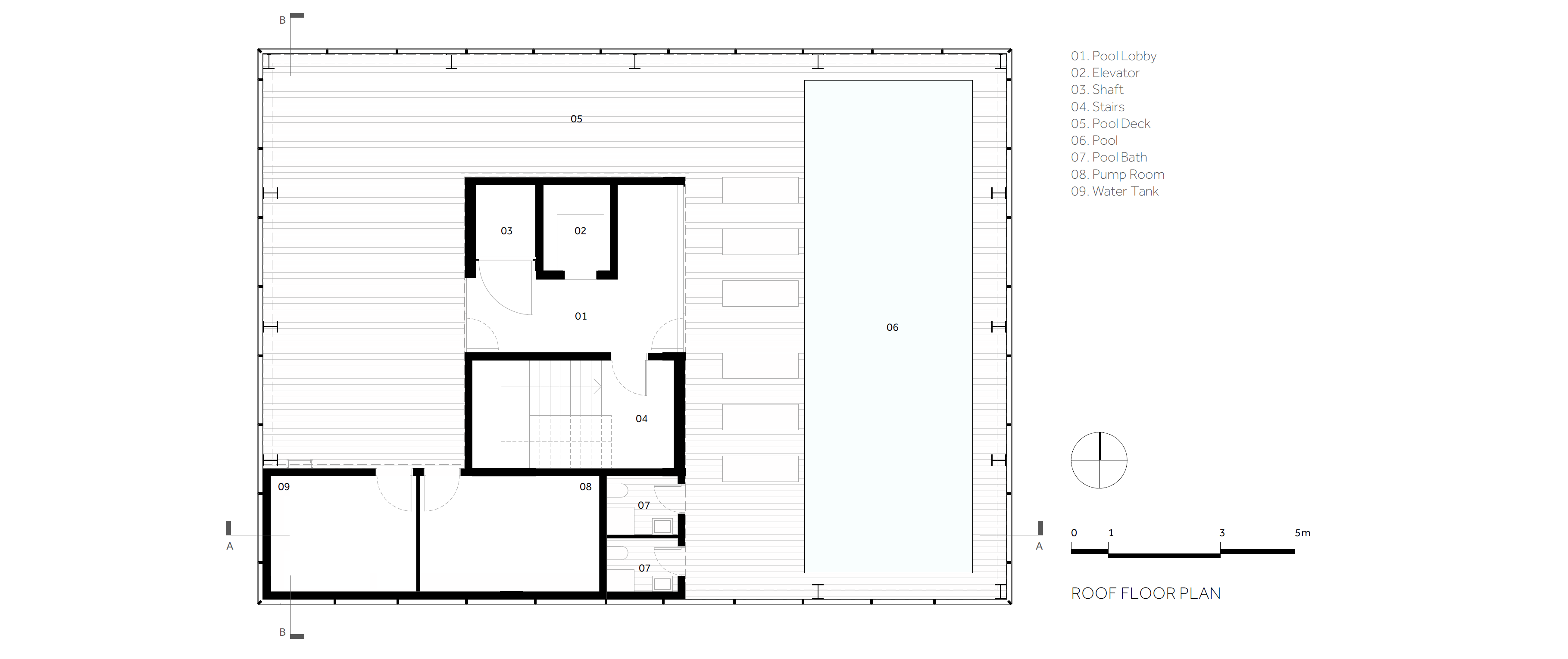
Jade is a midrise multi-unit residential building in Salmiya, Kuwait, that houses 20 independent residential units spread over 10 floors, a double-basement parking, an open plan ground floor with a gym and kids play area, a rooftop social space with a pool and barbeque area. The exterior envelope is a composite skin of light concrete, perforated aluminum panels and high-performance glass panels. The design of the building aims to facilitate an urban and sustainable way of living for young families. The building occupies a compact urban lot in a high - density area with close proximity to neighboring buildings. The placement of the building is determined by the existing plot constraints. Pedestrian access and lobby face the broad avenue, while services are accessed through the side street. North and west facades are privileged for their open views and urban relation defining the building's image. The living units are organized around the access core with interior gardens connecting different living spaces. Social spaces face the main avenue and the sea, while private areas turn to the southeast side. Through the variation of patio and balcony positions, different floorplans are achieved. The individuality expressed in the floorplans translates into the facades creating a staggered composition that brings lightness to the tower. A careful analysis of the sun movements with the height of surrounding buildings helped develop the facade by employing strategic subtractive operations. The perforated metal cladding provides adequate thermal protection along with the insulated concrete panels, to withstand the harsh desert climate. Jade is designed to be a housing project that goes against the grain amongst the chaotic urban density. It successfully solves the crucial issues in Kuwait's current multi-unit housing typology - lack of identity, natural lighting, accessible green and communal spaces, without compromising the original qualities combating extreme weather typical in Kuwait.

제이드 빌딩은 쿠웨이트 살미야에 있는 중층 다중 유닛 주거용 건물로, 10층에 걸쳐 20개의 독립 주거 유닛, 지하 2층 주차장, 체육관과 어린이 놀이 공간이 있는 개방형 1층, 옥상에는 수영장과 바비큐장을 포함한 공용공간이 있다. 건물 외피는 가벼운 콘크리트와 천공 알루미늄 패널, 고성능 유리 패널의 합성 스킨으로 이루어졌다. 건물의 디자인은 젊은 가족을 위한 도시적이고 지속 가능한 생활을 할 수 있게 하는 것을 목표로 했다. 건물은 인접 건물과 매우 근접한 고밀도 지역의 부지를 차지하고 있다. 건물의 배치는 기존의 토지 제한에 따라 결정됐다. 보행자 접근 및 로비는 넓은 도로를 향하고 있으며, 서비스는 옆길을 통해 접근할 수 있다. 북쪽과 서쪽 파사드는 건물의 이미지를 정의하는 열린 전망과 도시 관계로 인해 특별하게 디자인 됐다. 주거 유닛은 다른 생활 공간을 연결하는 내부 정원과 함께 액세스 코어를 중심으로 구성되었다. 사회적 공간은 주 도로와 바다를 향하고, 사적 공간은 남동쪽을 향한다. 테라스와 발코니 위치의 변화를 통해 다양한 평면도를 형성했다. 평면도에 표현된 개성은 파사드로 변환되어 타워에 가벼운 느낌을 제공하는 엇갈린 구성을 만든다. 파사드는 태양의 움직임과 주변 건물의 높이에 대한 주의 깊은 분석을 통해 디자인 됐다. 천공된 금속 클래딩은 단열 콘크리트 패널과 함께 가혹한 사막 기후를 견딜 수 있도록 적절한 열 보호 기능을 제공한다. 혼란스러운 도시 밀도 가운데 도시의 패턴에 반대되는 주택 프로젝트로 설계됐으며, 쿠웨이트의 전형적인 극한 날씨에 맞서는 본래의 특성을 손상시키지 않으면서, 정체성, 자연 채광, 접근 가능한 녹지와 공용 공간이 부족한 쿠웨이트의 현재 다세대 주택 유형의 중요한 문제를 성공적으로 해결한다.
















Architects Studio Toggle
Location Salmiya, Kuwait
Completion 2021
Design Team Hend Almatrouk, Gijo Paul George, Rui Goncalves, Pedro Varela, Fabio Verissimos, Somshekhar Rai, Mani Kuruvila, Ashlon Frank
Photographer Gijo Paul George
해당 프로젝트는 리빙즈, 디테일 04호에 게재되었습니다.
The project was published in LIVINGS, Detail 04
[BOOK] LIVINGS, Detail 리빙즈, 디테일 03호, 04호
<LIVINGS, Detail 리빙즈, 디테일 03호, 04호> 72개의 형태와 라이프스타일을 담은 주거공간, 국내외 “디테일한 주택 프로젝트”의 엮음 매월 국내외 다양한 건축물들을 소개해 온 <월간 건축문화>가 <
www.masilwide.com
'Architecture Project > Multifamily' 카테고리의 다른 글
| ANSEONG COMMERCIAL HOUSE "班" (0) | 2022.07.22 |
|---|---|
| O6A LOT HOUSING (0) | 2022.07.18 |
| RESIDENCE STACK TOGETHER (0) | 2022.07.01 |
| SCH | HOUSING AN DEN SCHICHTGRÜNDEN (0) | 2022.06.30 |
| GRANVILLE 1500 (0) | 2022.06.29 |
마실와이드 | 등록번호 : 서울, 아03630 | 등록일자 : 2015년 03월 11일 | 마실와이드 | 발행ㆍ편집인 : 김명규 | 청소년보호책임자 : 최지희 | 발행소 : 서울시 마포구 월드컵로8길 45-8 1층 | 발행일자 : 매일



