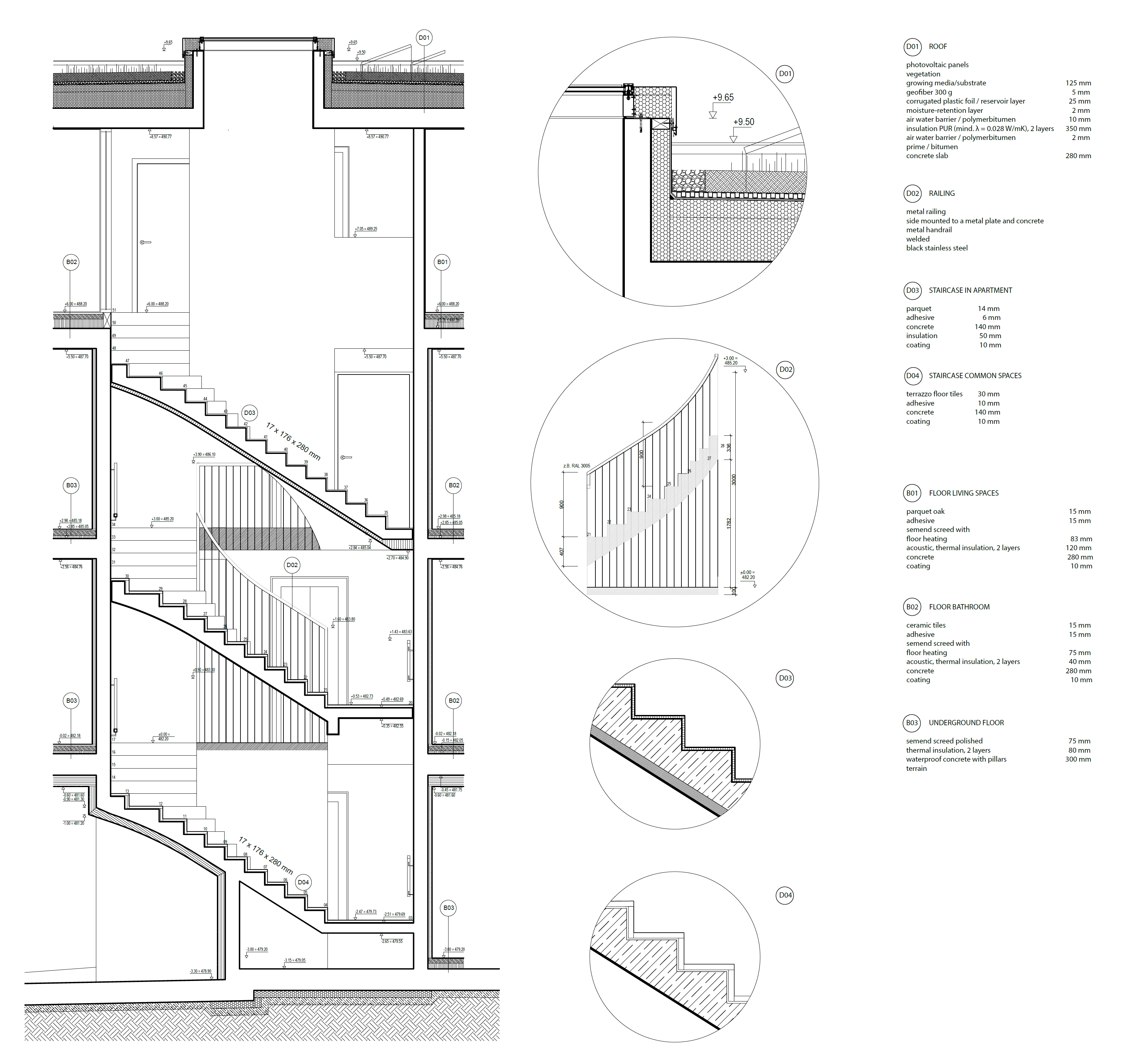
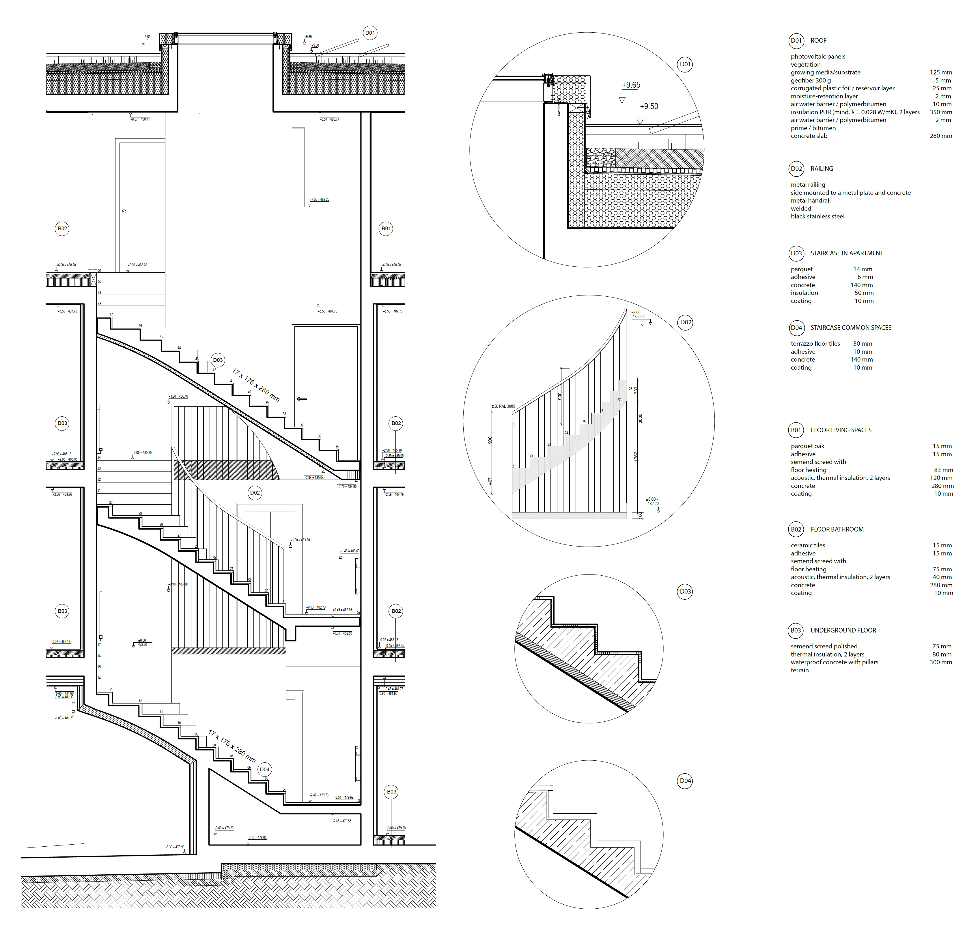
RESIDENCE EISENERZ
The rental apartment house is located in Sargans in Switzerland, at the intersection of three wide valleys, where they create a fertile lowland between the otherwise steep peaks of the surrounding..
anc.masilwide.com




Architects Apropos Architects
Location Sargans, Switzerland
Completion 2020
Photographer Alex Shoots Buildings
반응형
'Detail' 카테고리의 다른 글
| [Exterior Wall] BANSEOK HOUSE (0) | 2022.06.21 |
|---|---|
| [Exterior Wall] HADOHILLJO TOWNHOUSE (0) | 2022.06.20 |
| [Entrance] BYULNAE HOUSING (0) | 2022.06.16 |
| [Staircase] CURTAIN CALL (0) | 2022.06.15 |
| [Exterior Wall] ROTTMANNSBODEN DUPLEX (0) | 2022.06.14 |
마실와이드 | 등록번호 : 서울, 아03630 | 등록일자 : 2015년 03월 11일 | 마실와이드 | 발행ㆍ편집인 : 김명규 | 청소년보호책임자 : 최지희 | 발행소 : 서울시 마포구 월드컵로8길 45-8 1층 | 발행일자 : 매일



