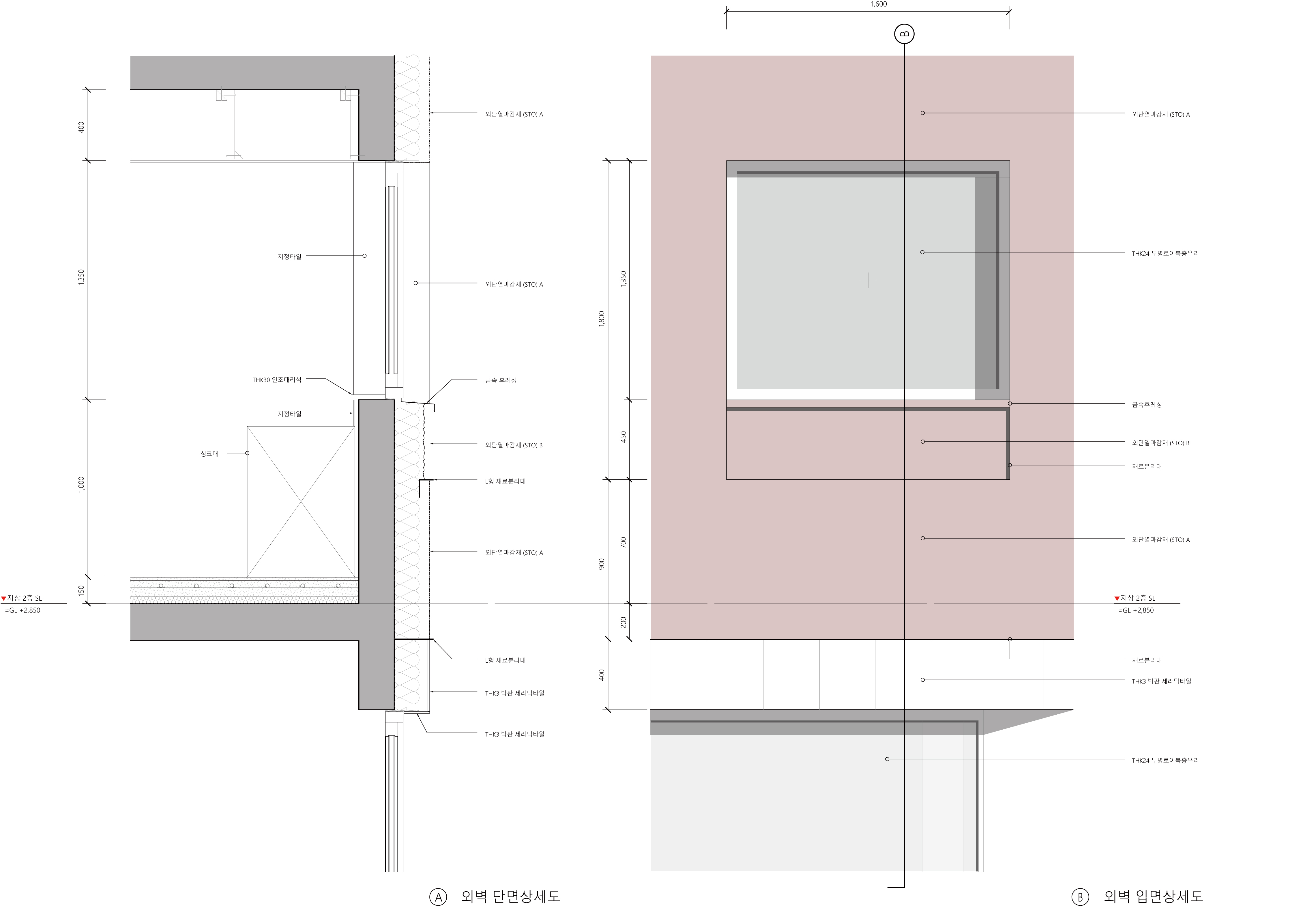
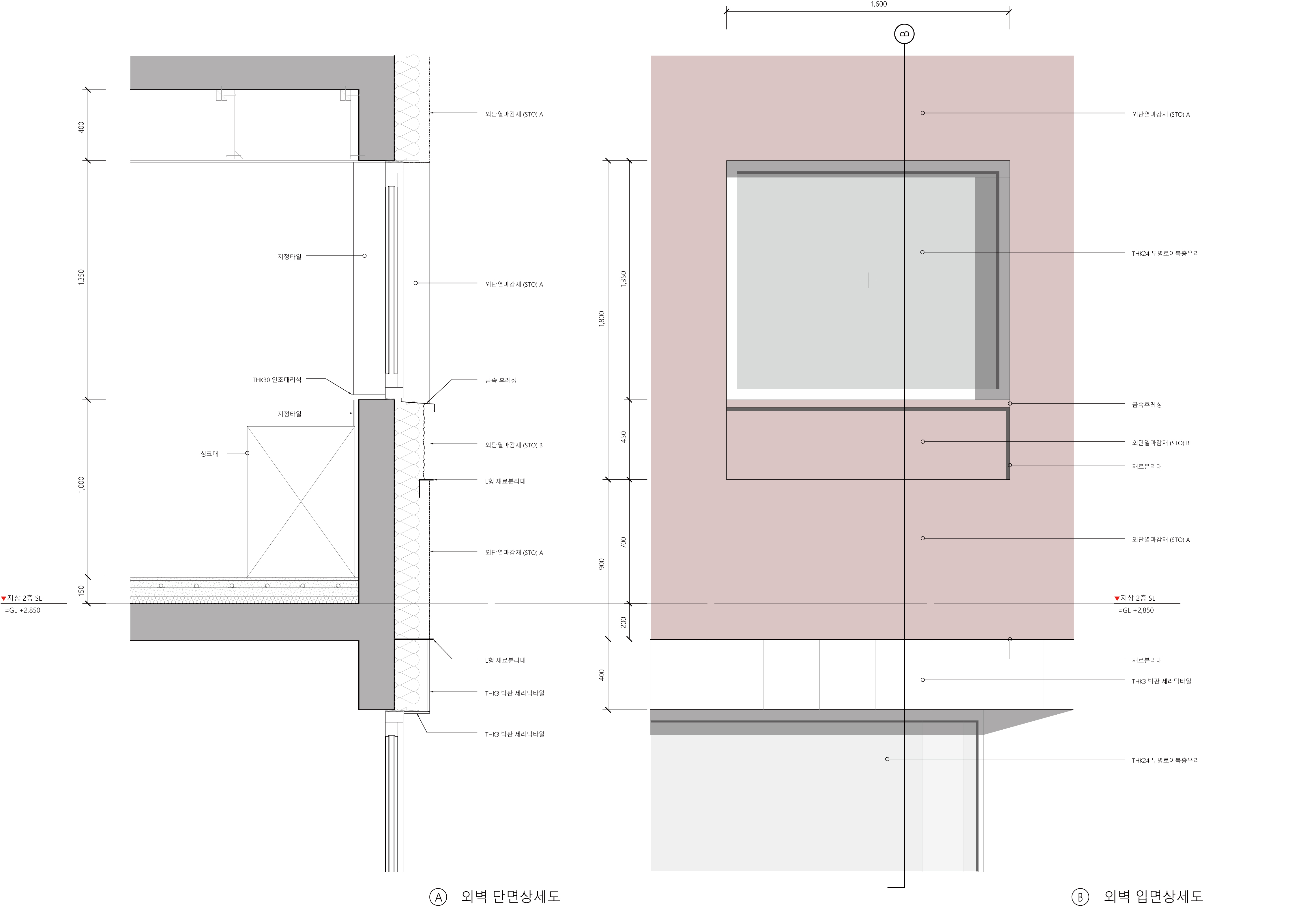
BANSEOK HOUSE
Banseokjip is located on the north side of Gileum Station, in a low-rise residential alley that remains among the large-scale Gileum New Town apartment complexes. The alle..
anc.masilwide.com


Architects SOBO architects
Location Gireum-dong,Seongbuk-gu, Seoul, Republic of Korea
Completion 2021. 04
Photographer Choonggun Lee
반응형
'Detail' 카테고리의 다른 글
| [Exterior Wall] IAN HOUSE (0) | 2022.06.23 |
|---|---|
| [Exterior Wall] TH PALACE (0) | 2022.06.22 |
| [Exterior Wall] HADOHILLJO TOWNHOUSE (0) | 2022.06.20 |
| [Staircase] RESIDENCE EISENERZ (0) | 2022.06.17 |
| [Entrance] BYULNAE HOUSING (0) | 2022.06.16 |
마실와이드 | 등록번호 : 서울, 아03630 | 등록일자 : 2015년 03월 11일 | 마실와이드 | 발행ㆍ편집인 : 김명규 | 청소년보호책임자 : 최지희 | 발행소 : 서울시 마포구 월드컵로8길 45-8 1층 | 발행일자 : 매일



