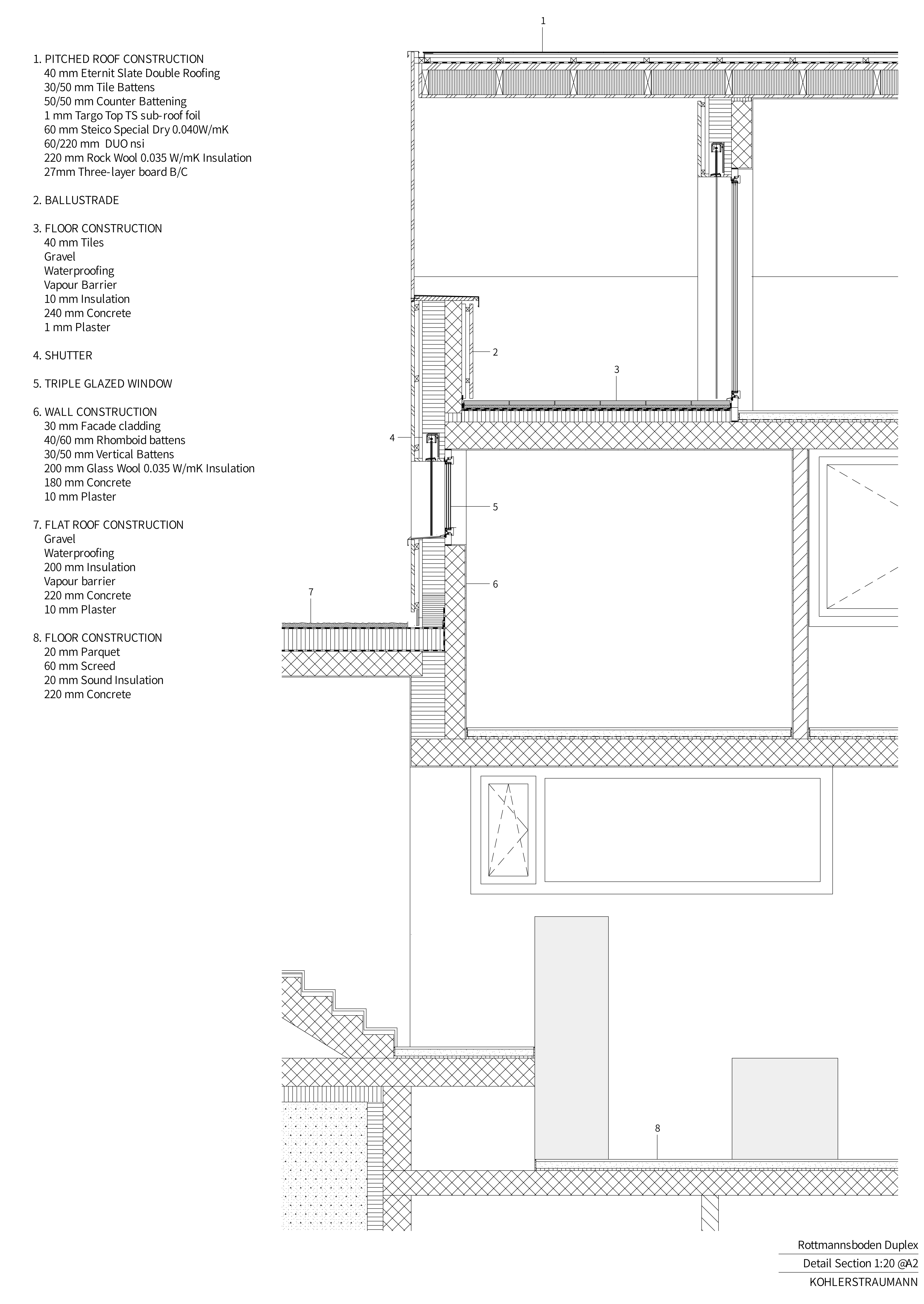
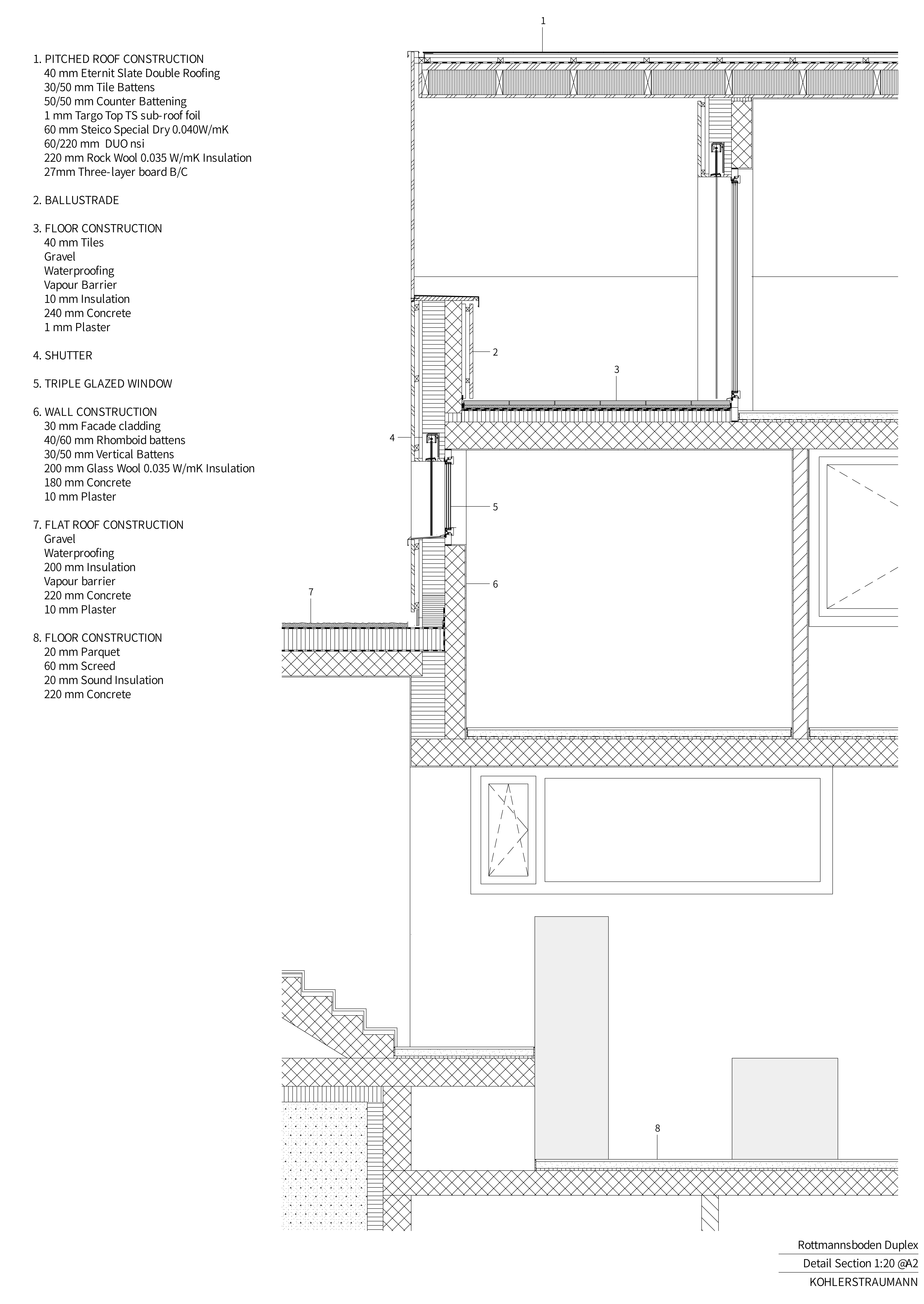
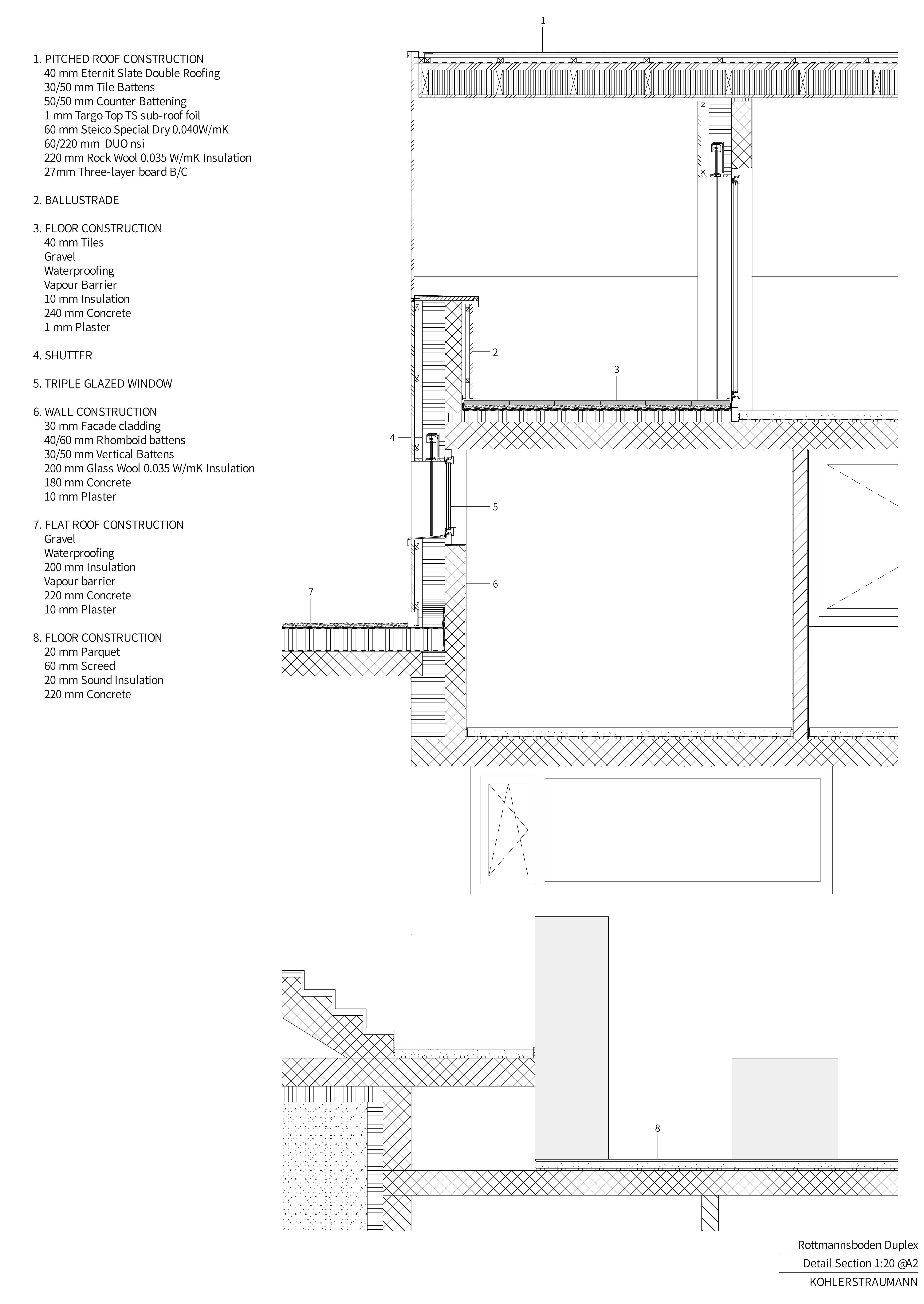
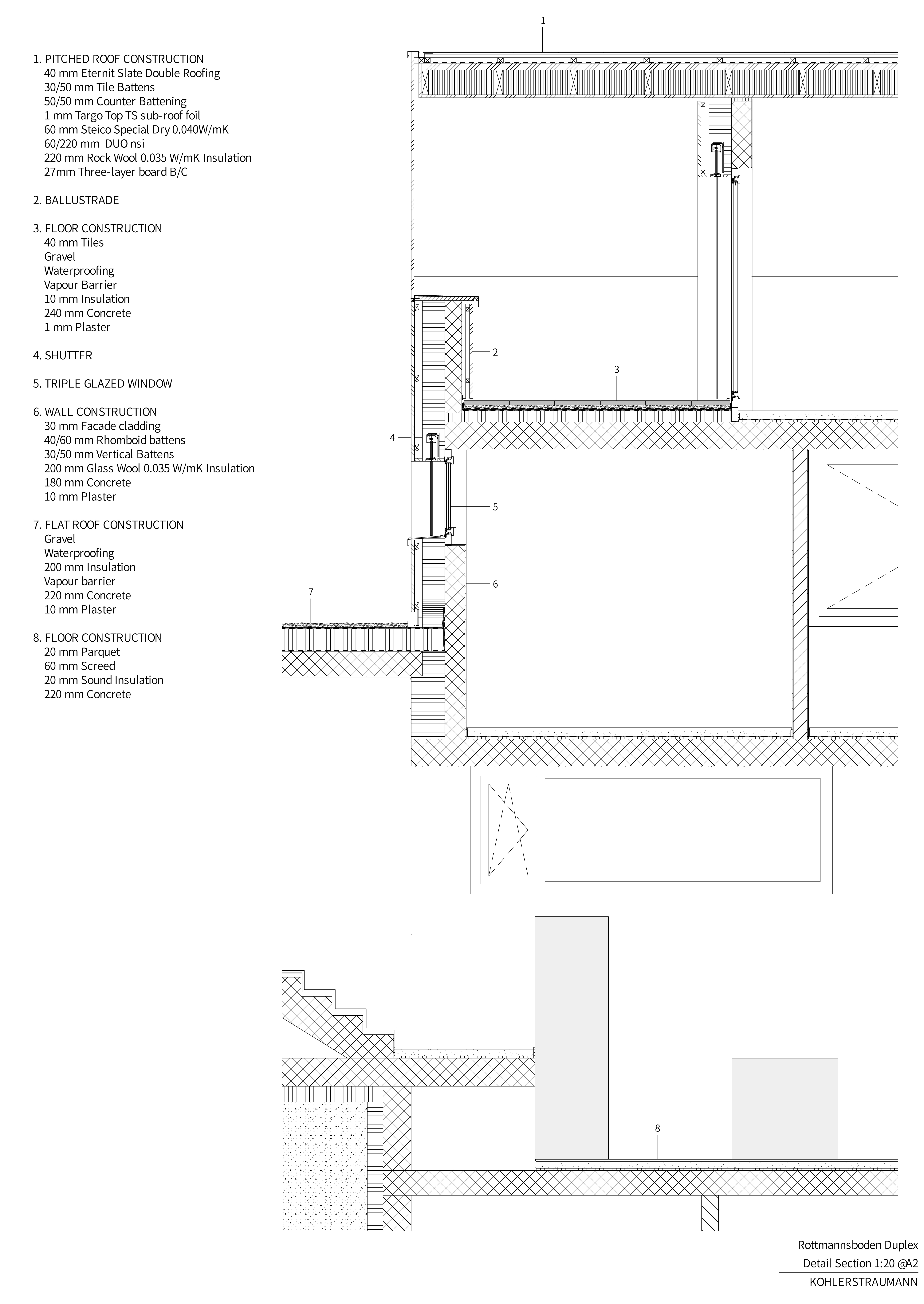
ROTTMANNSBODEN DUPLEX
Situated in a moderately busy street of a calm neighborhood in Binningen - Switzerland, an exquisite semi-detached house is well integrated into an environment of single and multi-family houses. Th..
anc.masilwide.com



Architects KOHLERSTRAUMANN
Location Binningen, Switzerland
Completion 2021
Photographer Maris Mezulis
반응형
'Detail' 카테고리의 다른 글
| [Entrance] BYULNAE HOUSING (0) | 2022.06.16 |
|---|---|
| [Staircase] CURTAIN CALL (0) | 2022.06.15 |
| [Exterior Wall] SAME & DIFFERENT (0) | 2022.06.13 |
| [Roof, Floor] JINGWAN-DONG HOUSE (0) | 2022.06.10 |
| [Exterior Wall, Roof] LIVING ON THE ROOF (0) | 2022.06.09 |
마실와이드 | 등록번호 : 서울, 아03630 | 등록일자 : 2015년 03월 11일 | 마실와이드 | 발행ㆍ편집인 : 김명규 | 청소년보호책임자 : 최지희 | 발행소 : 서울시 마포구 월드컵로8길 45-8 1층 | 발행일자 : 매일



