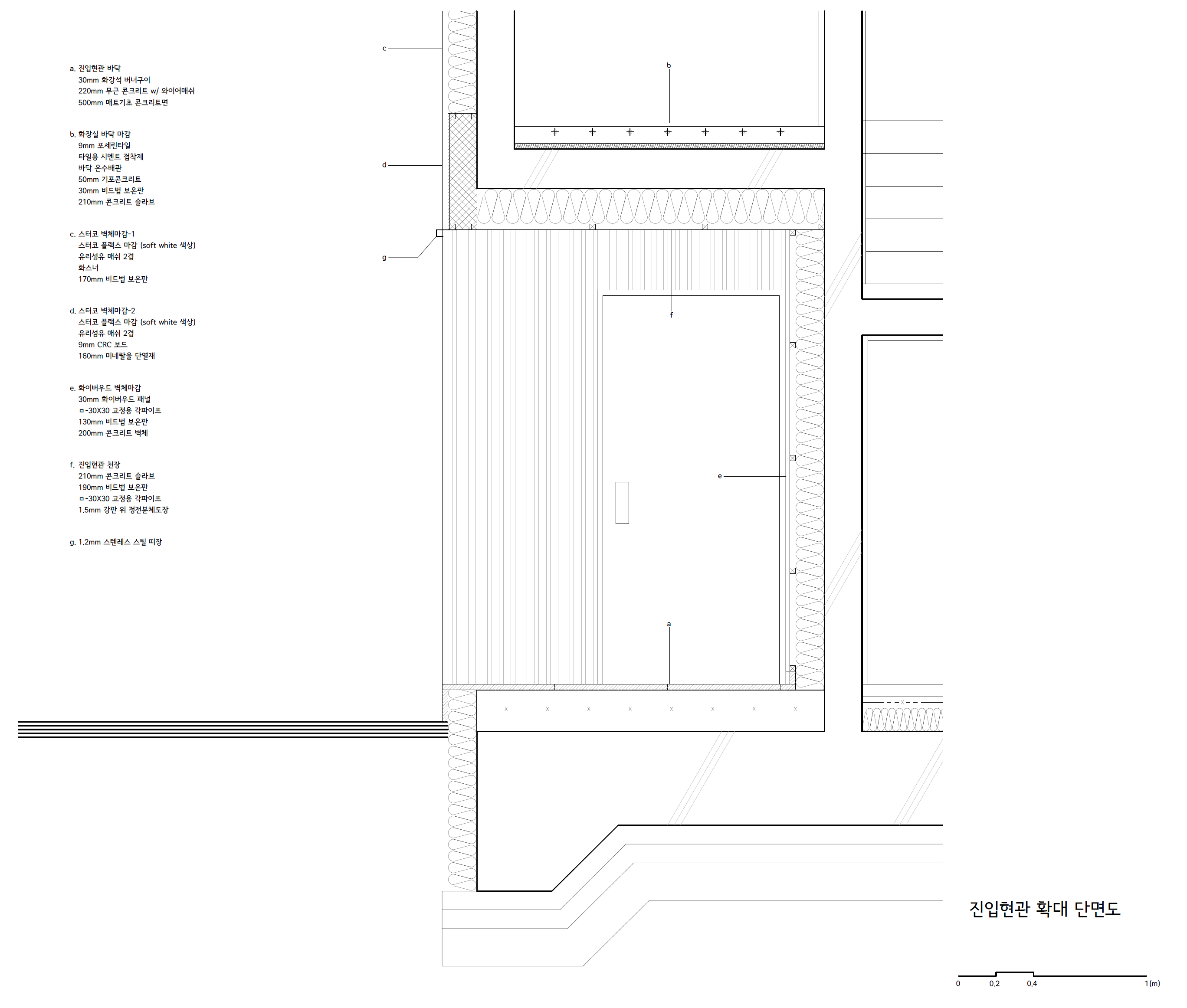
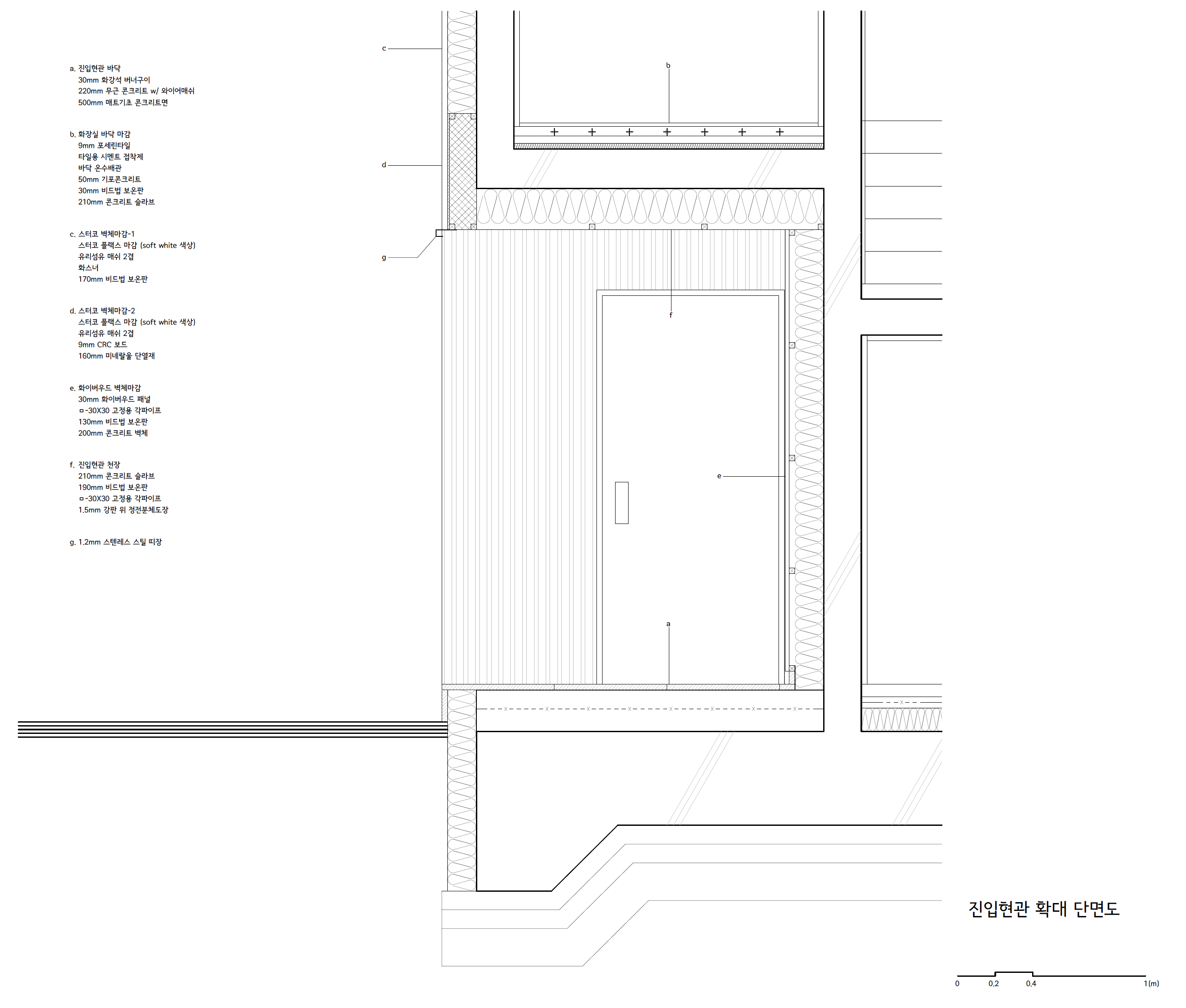
SAME & DIFFERENT
With most duplex houses, a cost savings effect is expected by making the shape of the houses the same. As the shape is similar to the size and shape of the lot for sale, this method has advantages..
anc.masilwide.com


Architects TEN-X A&D
Location Gimpo-si, Gyeonggi-do, Republic of Korea
Completion 2021. 04
Photographer Sooyoung Choi
'Detail' 카테고리의 다른 글
| [Staircase] CURTAIN CALL (0) | 2022.06.15 |
|---|---|
| [Exterior Wall] ROTTMANNSBODEN DUPLEX (0) | 2022.06.14 |
| [Roof, Floor] JINGWAN-DONG HOUSE (0) | 2022.06.10 |
| [Exterior Wall, Roof] LIVING ON THE ROOF (0) | 2022.06.09 |
| [Exterior Wall] CONCRETE HOUSE (0) | 2022.06.08 |
마실와이드 | 등록번호 : 서울, 아03630 | 등록일자 : 2015년 03월 11일 | 마실와이드 | 발행ㆍ편집인 : 김명규 | 청소년보호책임자 : 최지희 | 발행소 : 서울시 마포구 월드컵로8길 45-8 1층 | 발행일자 : 매일



