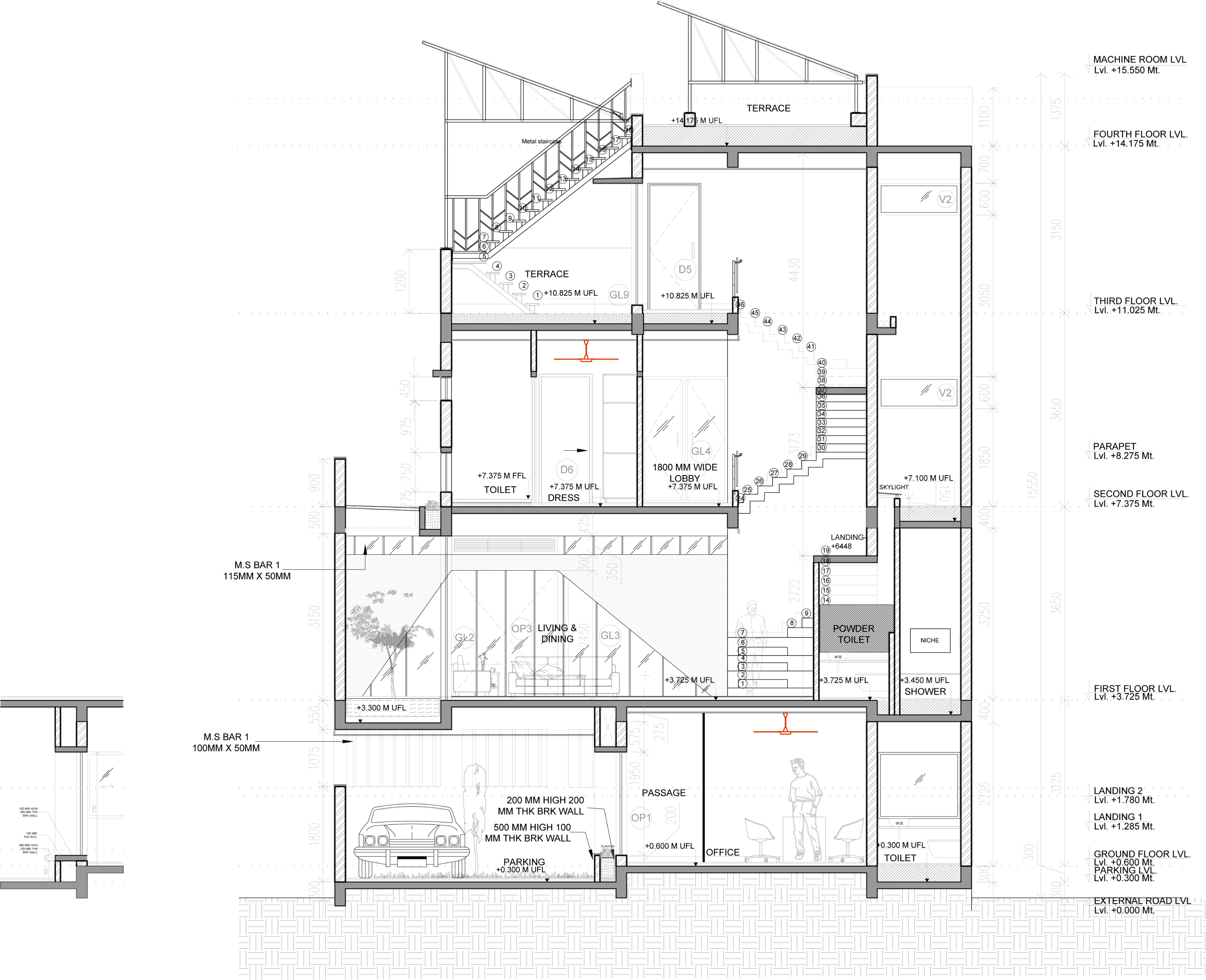
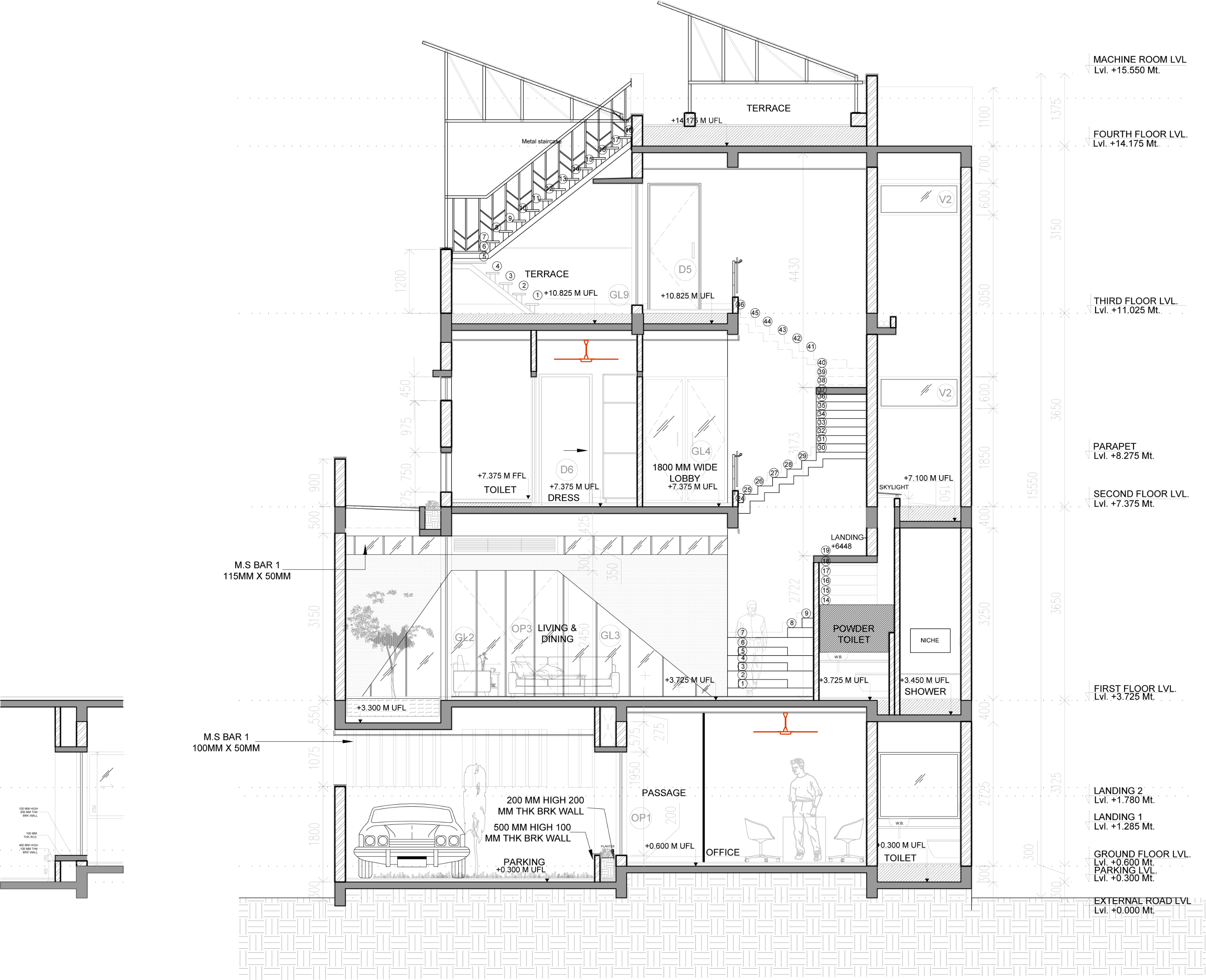
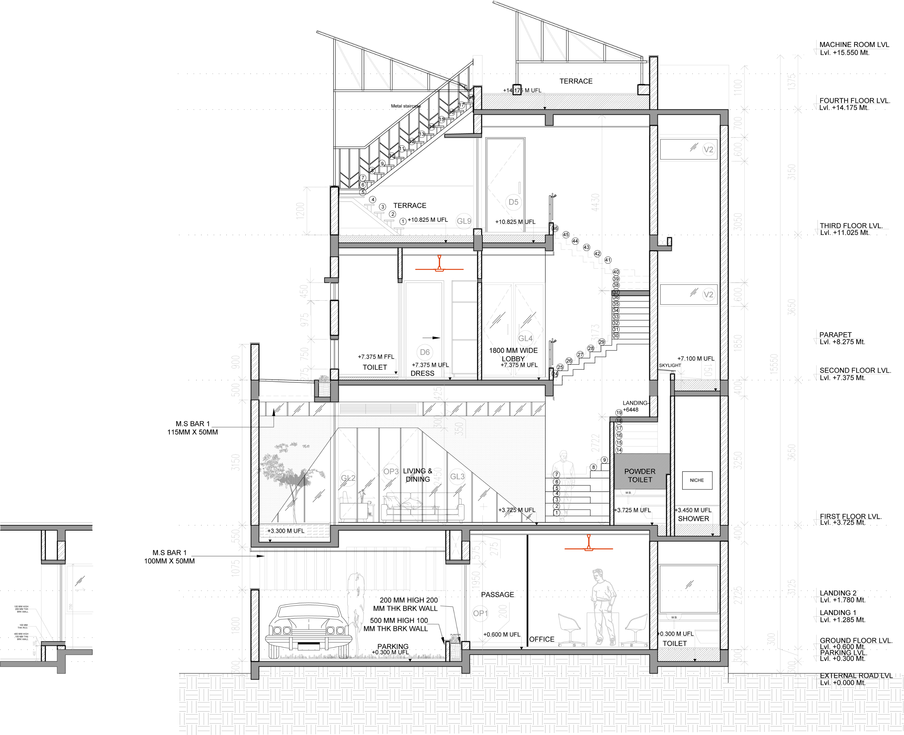
CONCRETE HOUSE
The design brief was to build a setting, grounded with texture and colour imbibing a calm and minimalistic environment. At first glance the four vertically stacked triangular planes of concrete whi..
anc.masilwide.com


Architects Span Architects
Location Indore, India
Completion 2020
Photographer Ruuhchitra, Viplove Jain
반응형
'Detail' 카테고리의 다른 글
| [Roof, Floor] JINGWAN-DONG HOUSE (0) | 2022.06.10 |
|---|---|
| [Exterior Wall, Roof] LIVING ON THE ROOF (0) | 2022.06.09 |
| [Roof, Handrail] IBIS SENDAGAYA (0) | 2022.06.07 |
| [Exterior Wall] BONGCHEONYEONGA (0) | 2022.06.03 |
| [Section] BEGINNING YOON (0) | 2022.06.02 |
마실와이드 | 등록번호 : 서울, 아03630 | 등록일자 : 2015년 03월 11일 | 마실와이드 | 발행ㆍ편집인 : 김명규 | 청소년보호책임자 : 최지희 | 발행소 : 서울시 마포구 월드컵로8길 45-8 1층 | 발행일자 : 매일



