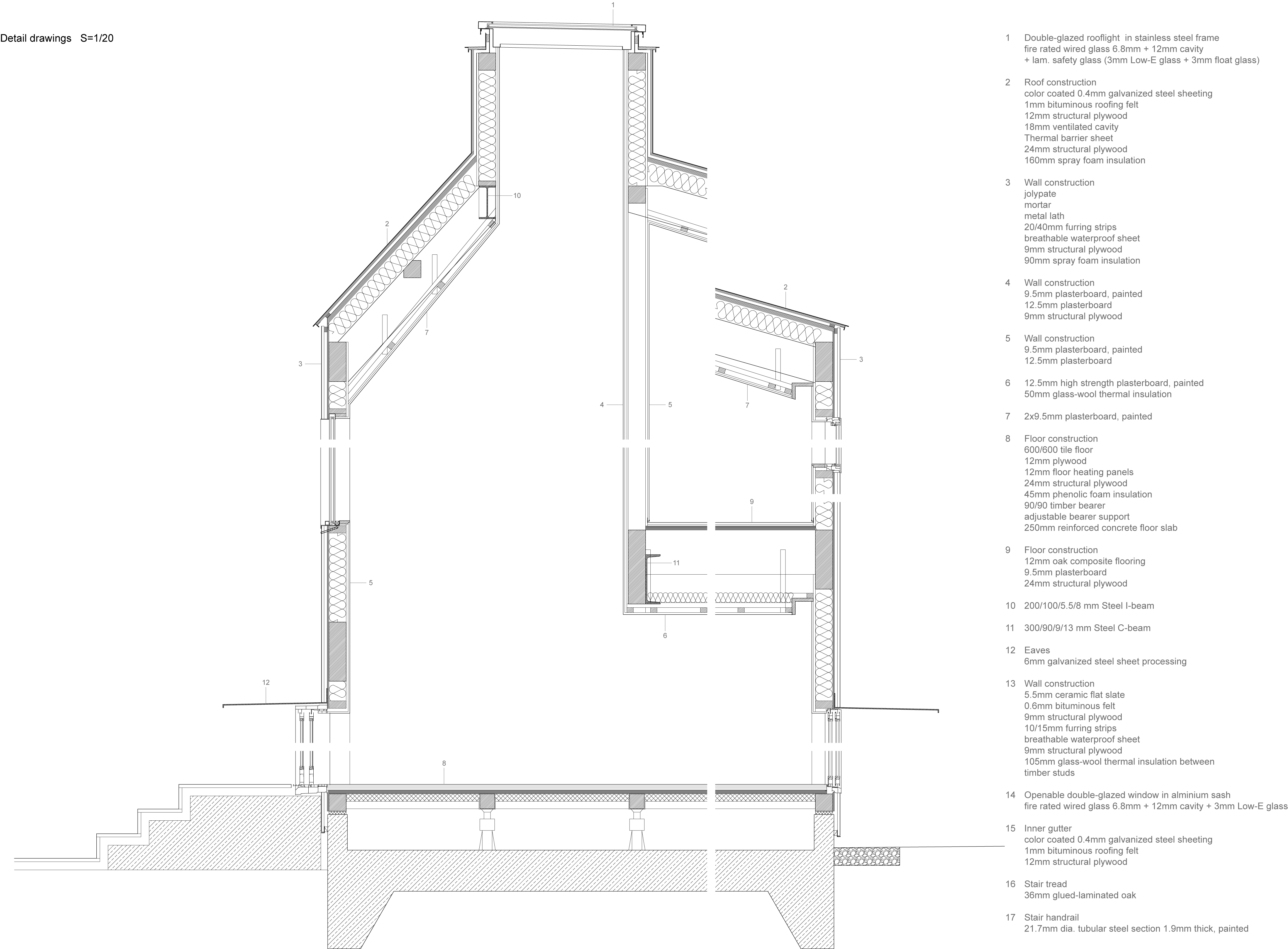
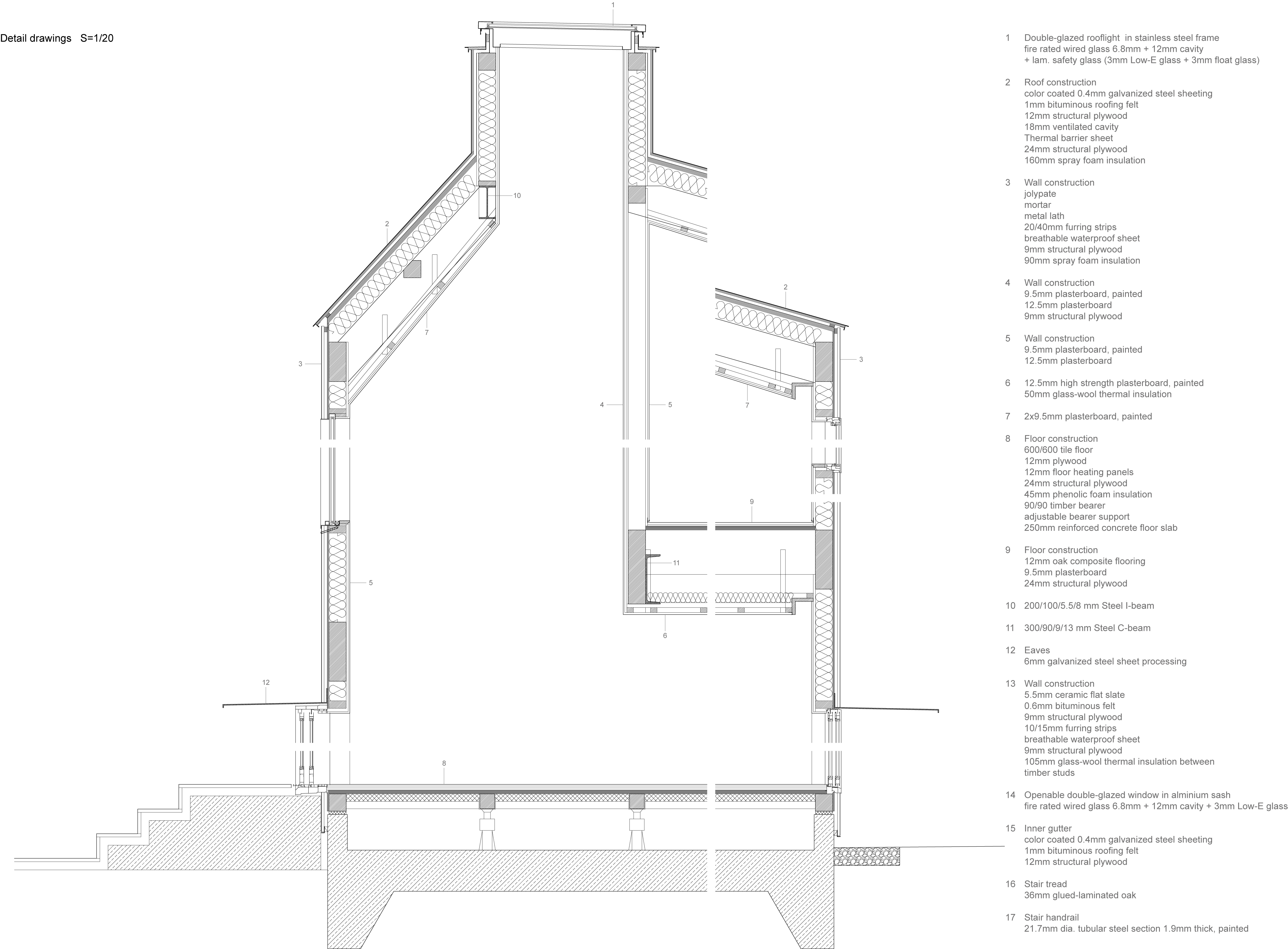
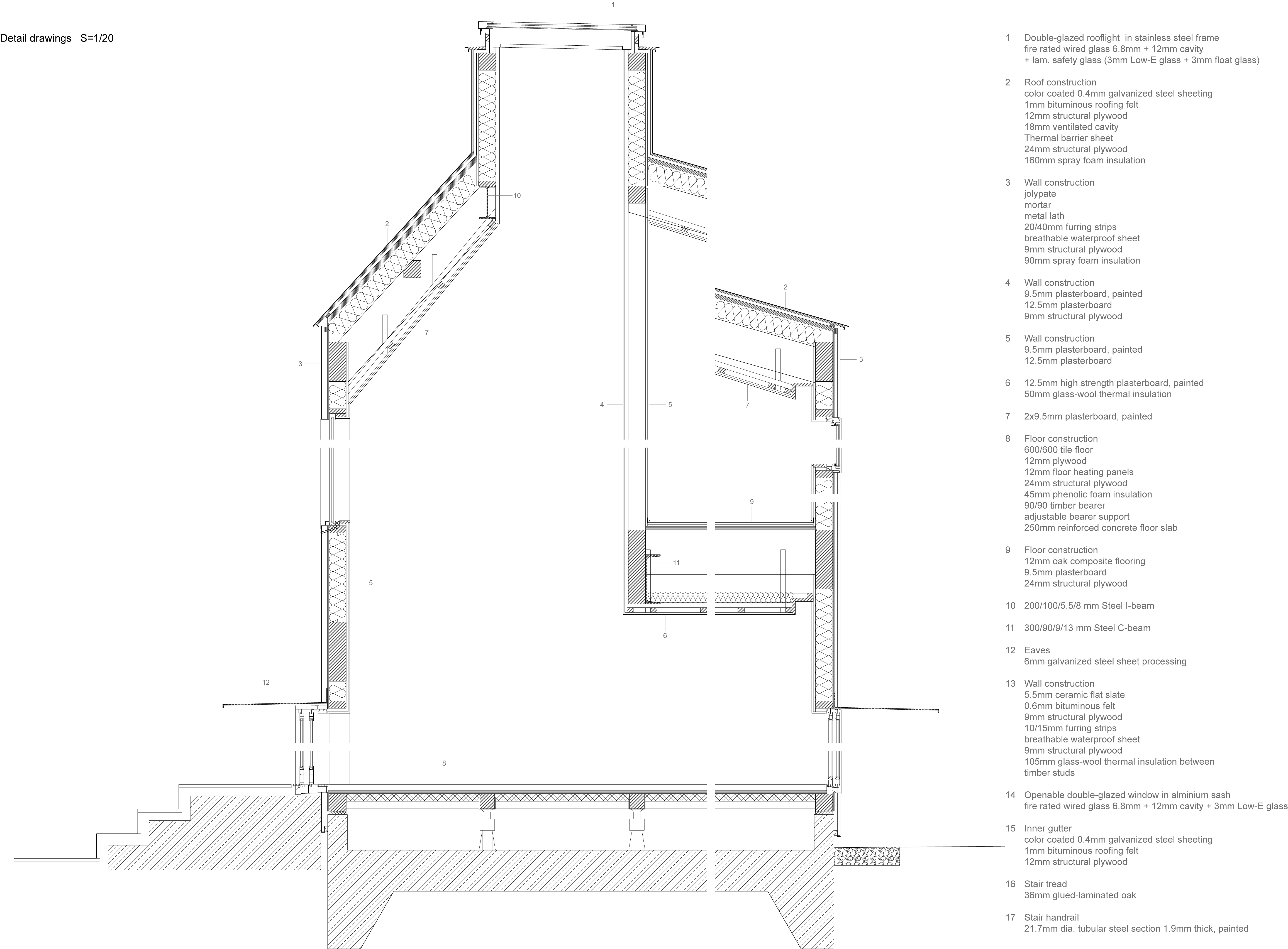
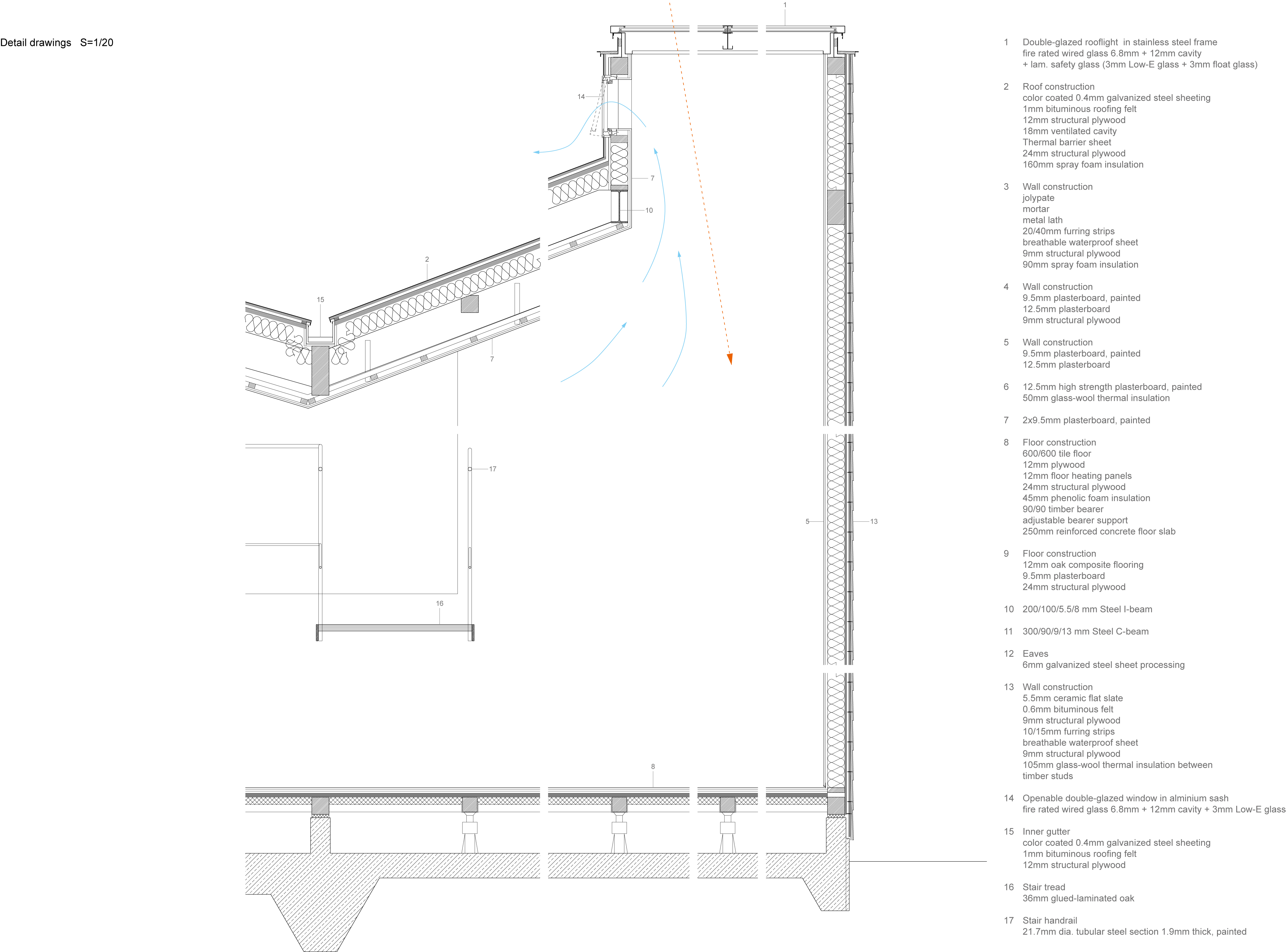
HOUSE IN CHIKUSA
House in Chikusa is a new-build home, located in Nagoya, Japan. The site sits within a dense urban context and is surrounded by residential buildings, making this a challenging plot to consider a d..
anc.masilwide.com




Architects Suzuki Takama Architects
Location Nagoya-shi, Aichi, Japan
Completion 2021
Photographer ToLoLo studio
반응형
'Detail' 카테고리의 다른 글
| [Roof] FENDALTON HOUSE (0) | 2022.05.23 |
|---|---|
| [Terrace] TTARO TTO GACHI HOUSE (0) | 2022.05.20 |
| [Exterior Wall] HOUSE JIPYEONG (0) | 2022.05.17 |
| [Exterior Wall] NAEMAM-IDANG (0) | 2022.05.16 |
| [Exterior Wall, Roof] ONGI HOUSE (0) | 2022.05.13 |
마실와이드 | 등록번호 : 서울, 아03630 | 등록일자 : 2015년 03월 11일 | 마실와이드 | 발행ㆍ편집인 : 김명규 | 청소년보호책임자 : 최지희 | 발행소 : 서울시 마포구 월드컵로8길 45-8 1층 | 발행일자 : 매일



