ONGI HOUSE
Ongi House is single-family house for a client's family with minimal living requested a cozy and tidy space. At the end of the uphill road, it was surrounded by trees and grasses without a gap and..
anc.masilwide.com





Architects Bare GROUND ARCHITECTS
Location Suji-gu, Yongin-si, Gyeonggi-do, Republic of Korea
Completion 2017. 06
Photographer Jeonghyun Kim
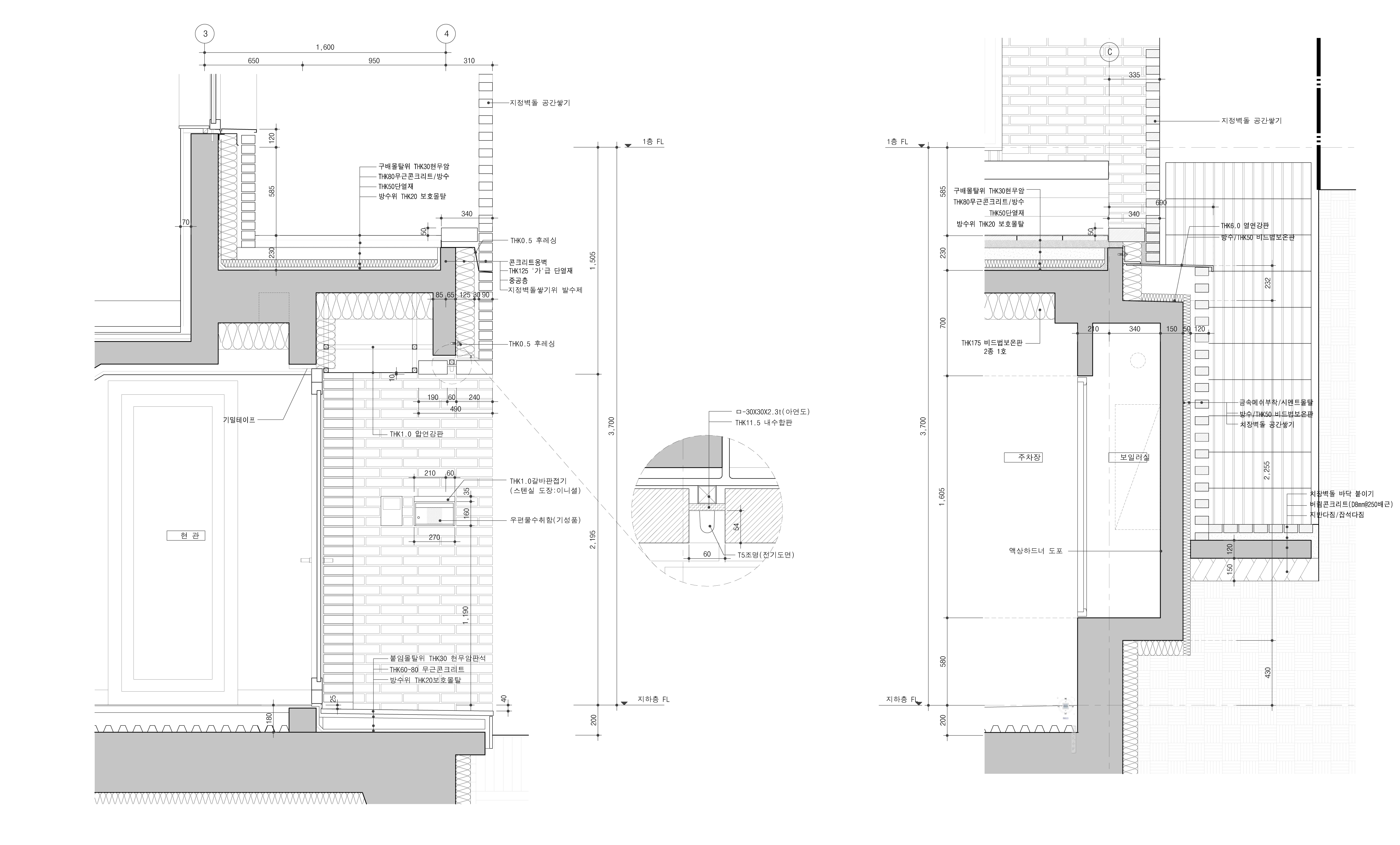
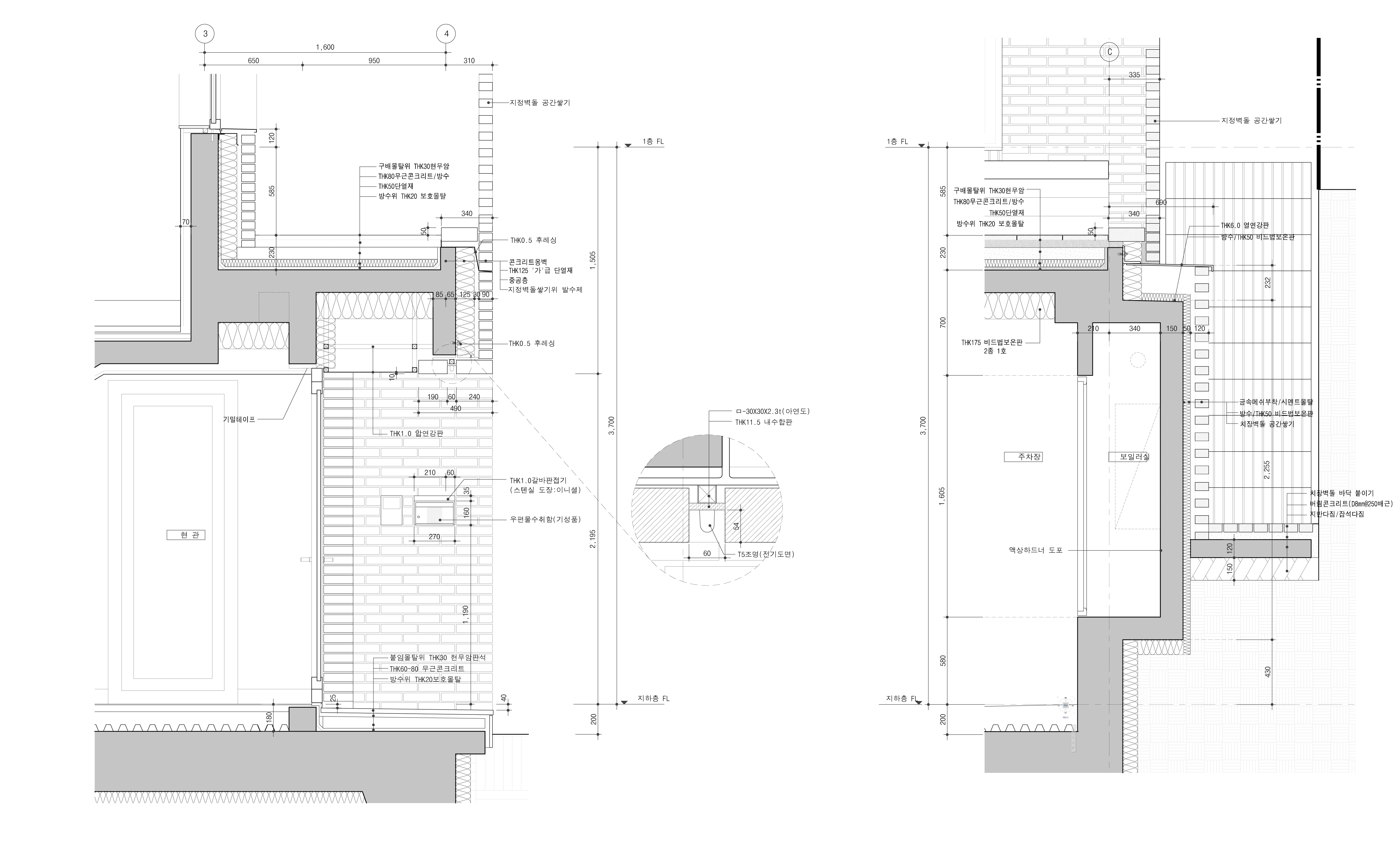
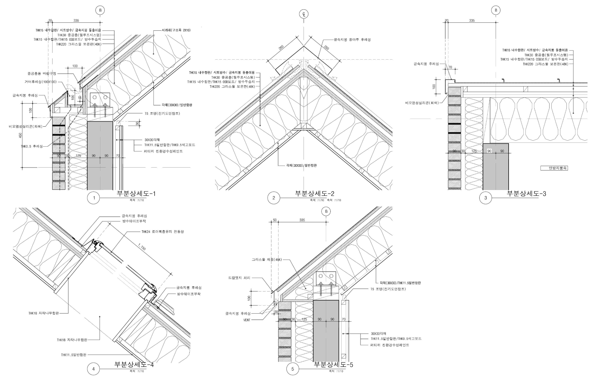
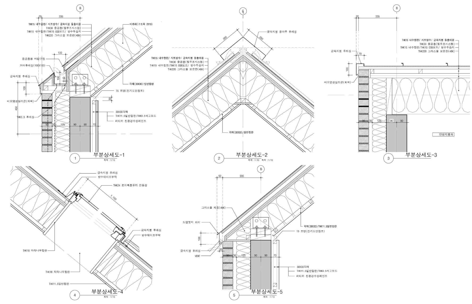
'Detail' 카테고리의 다른 글
| [Exterior Wall] HOUSE JIPYEONG (0) | 2022.05.17 |
|---|---|
| [Exterior Wall] NAEMAM-IDANG (0) | 2022.05.16 |
| [Section] ONE HOUSE (0) | 2022.05.12 |
| [Exterior Wall] MONTAUK HOUSE (0) | 2022.05.11 |
| [Roof, Canopy] SISEONJAE (0) | 2022.05.10 |
마실와이드 | 등록번호 : 서울, 아03630 | 등록일자 : 2015년 03월 11일 | 마실와이드 | 발행ㆍ편집인 : 김명규 | 청소년보호책임자 : 최지희 | 발행소 : 서울시 마포구 월드컵로8길 45-8 1층 | 발행일자 : 매일



