ONE HOUSE
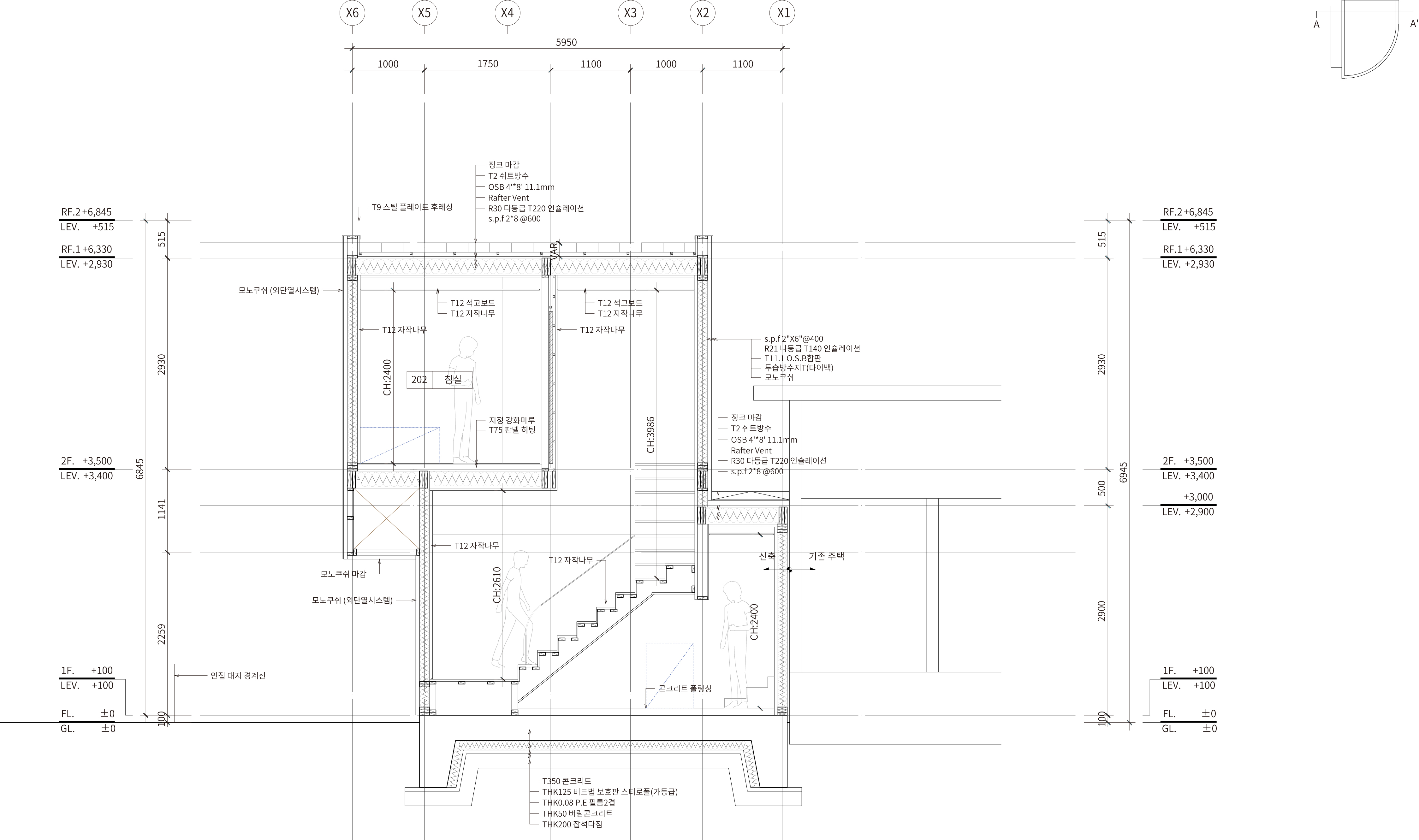
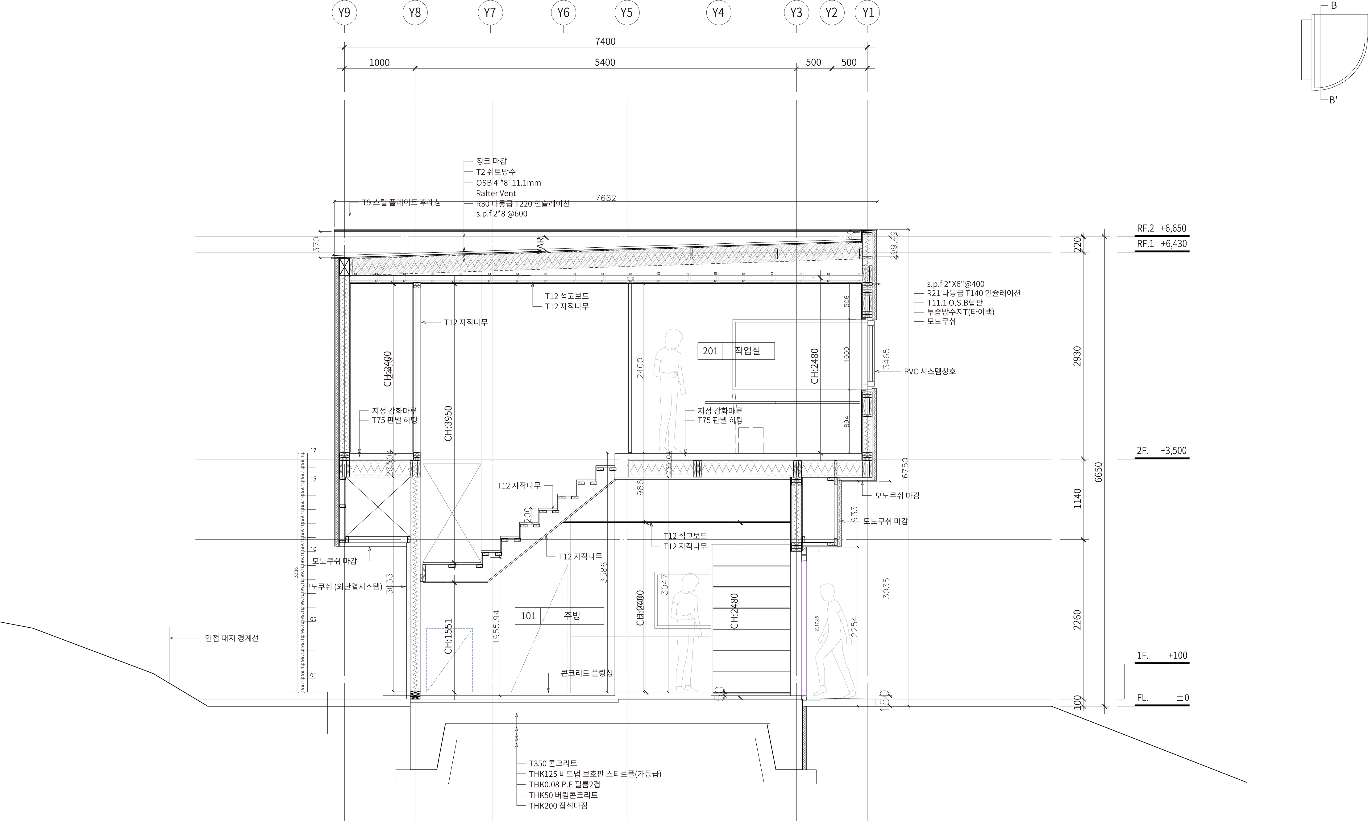
A Solo Forest Dwelling A farmhouse, on a site of an area of 670m2, sits atop a steep slope at a height of 60m from the access road. The client wanted a house in which to live with his parents so..
anc.masilwide.com




Architects DRAWING WORKS
Location Sangchon-myeon, Yeongdong-gun, Chungcheongbuk-do, Republic of Korea
Photographer Jaekyeong Kim
반응형
'Detail' 카테고리의 다른 글
| [Exterior Wall] NAEMAM-IDANG (0) | 2022.05.16 |
|---|---|
| [Exterior Wall, Roof] ONGI HOUSE (0) | 2022.05.13 |
| [Exterior Wall] MONTAUK HOUSE (0) | 2022.05.11 |
| [Roof, Canopy] SISEONJAE (0) | 2022.05.10 |
| [Exterior Wall, Roof] DONGCHUN GREENHOUSE (0) | 2022.05.09 |
마실와이드 | 등록번호 : 서울, 아03630 | 등록일자 : 2015년 03월 11일 | 마실와이드 | 발행ㆍ편집인 : 김명규 | 청소년보호책임자 : 최지희 | 발행소 : 서울시 마포구 월드컵로8길 45-8 1층 | 발행일자 : 매일



