
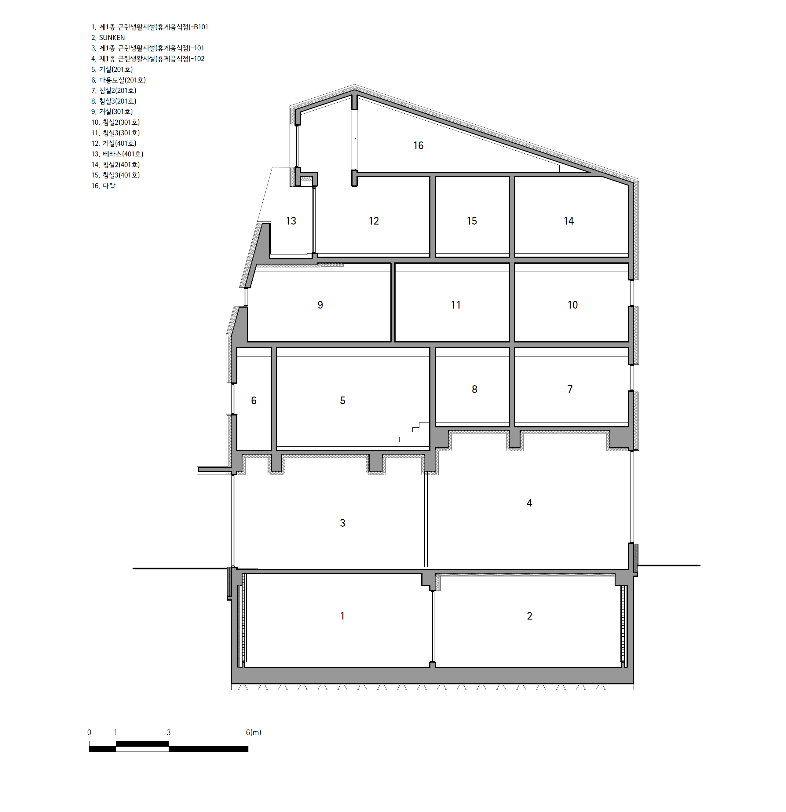
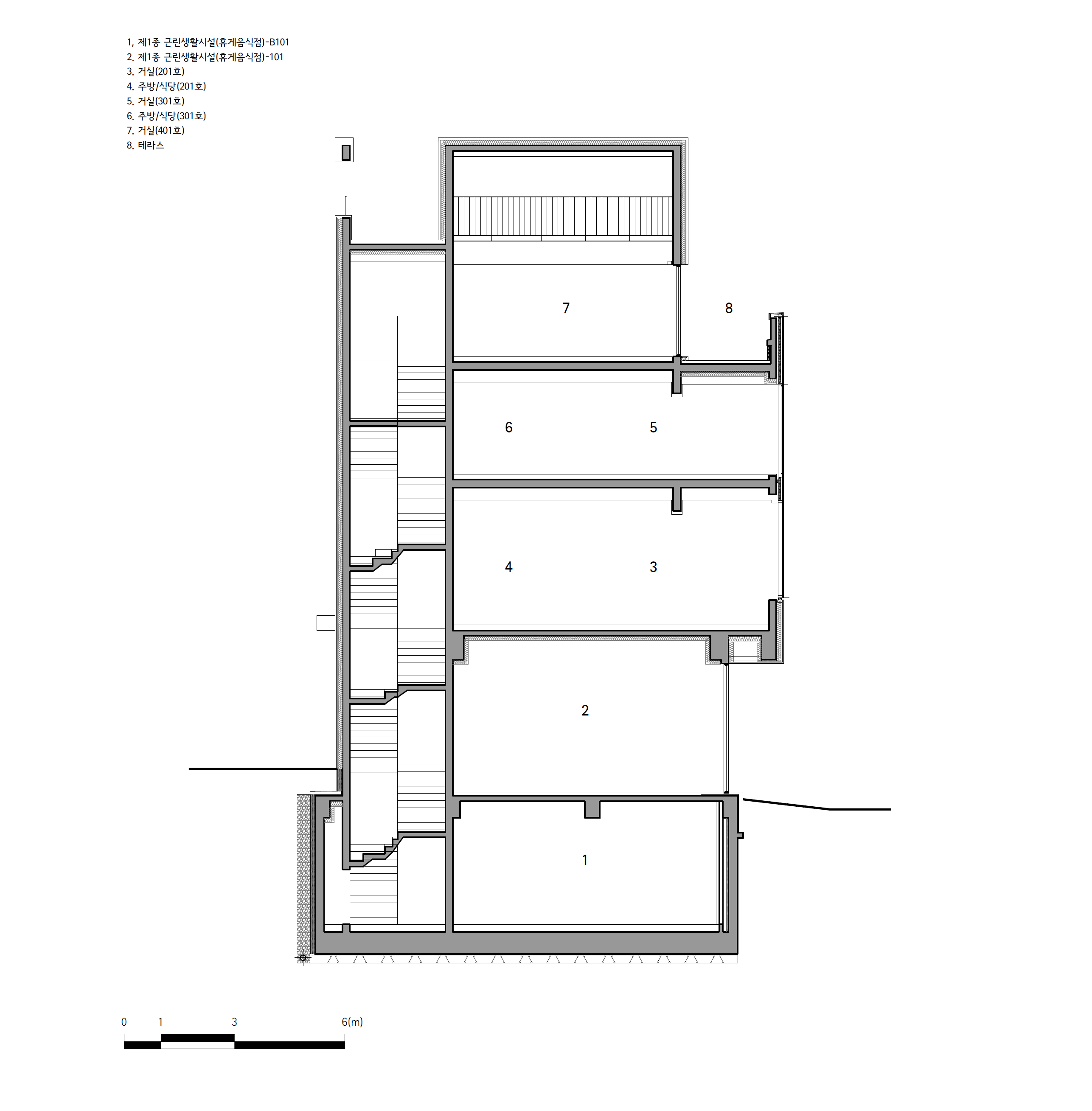
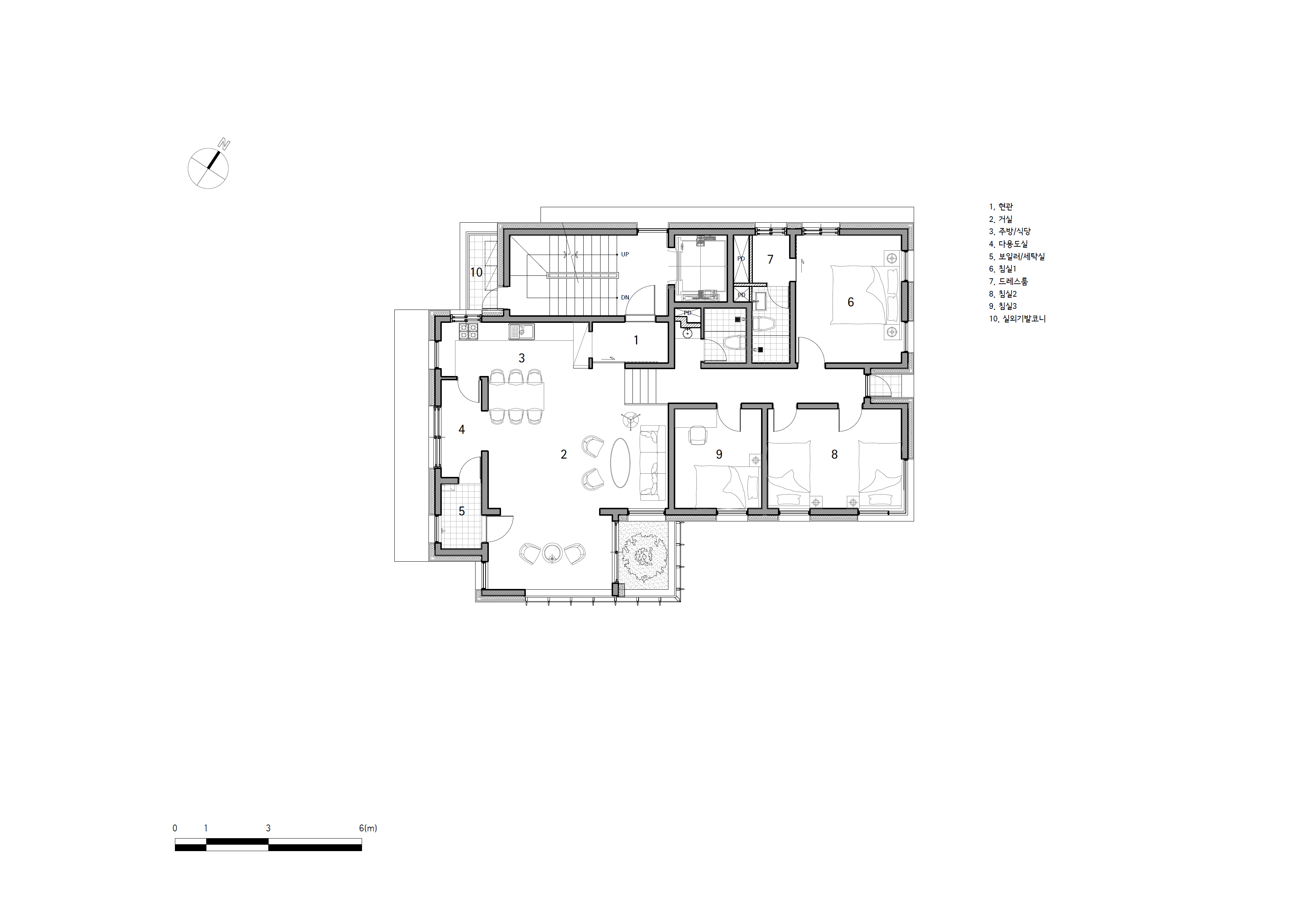
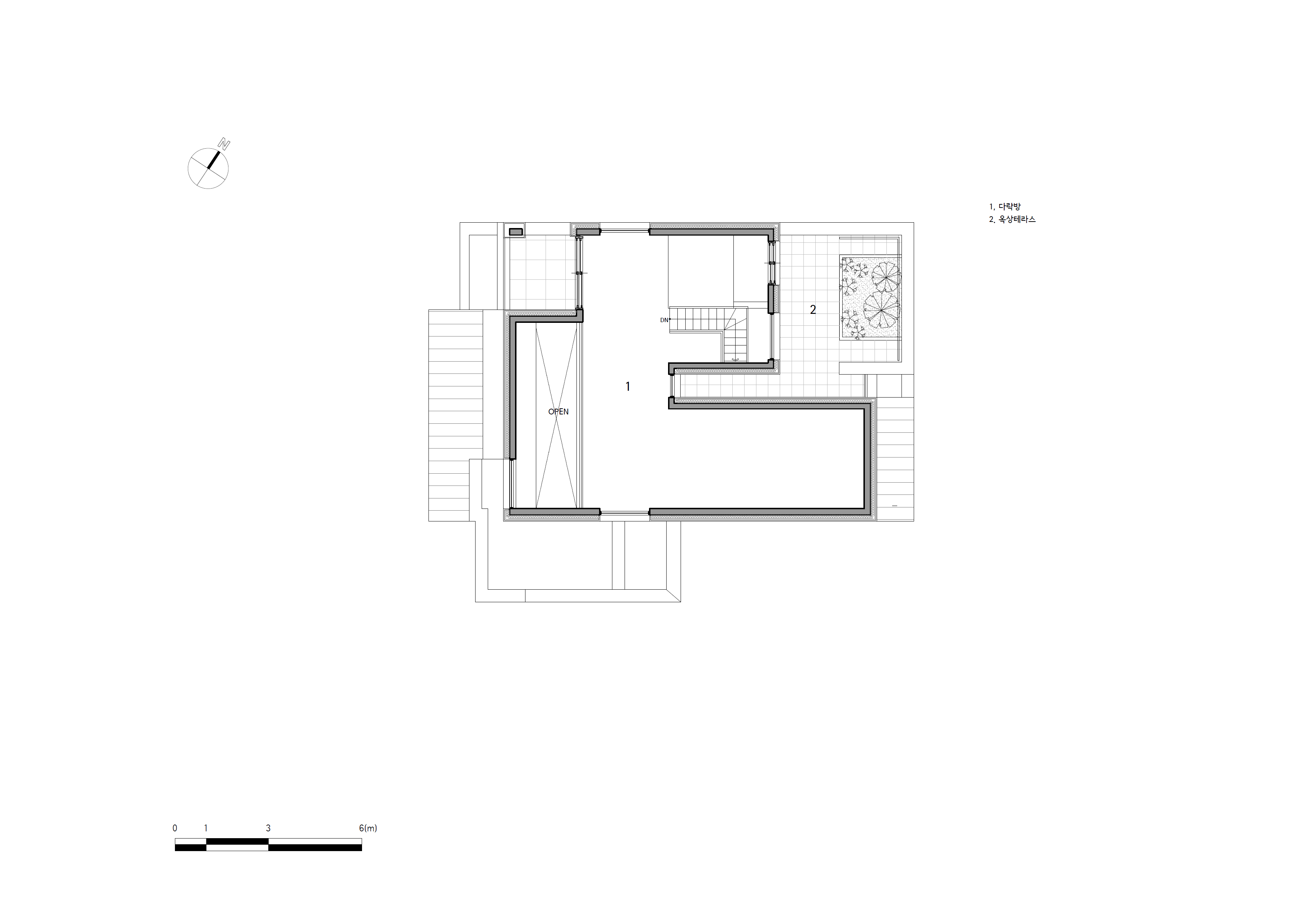
Cheongyeonjae is a commercial multi-family housing in which a total of three households can live. The site is a plot for a store residence in Godeung district, a housing site development area in Seongnam. Cheongyeonjae has competitiveness with a variety of unique compositions that deviate from the monotonous basic type of ordinary commercial housings.The total of three households were organized with one household on each floor, allowing the quality of the residences and as much leasable area as possible to be ensured. The area of the reduced parking lot was absorbed into the shopping area on the first floor, and a shopping area with a larger space compared to the same sites in the surrounding was secured. In addition, the shopping area, where the level difference of the site acted as a disadvantage, was attempted to be overcome with floor height. Since one of the two roads that adjoin the site at the corner buries about 60cm of the site, the floor height of one side was raised that much, separating the residential space on the second floor with a vertical(stairway) circulation plan, and an open public space with a high floor height was arranged on one side while a cozy and private space was provided on the other side by forming it into a bedroom. This skip-floor type plan composition allows various senses of space to be experienced that cannot be found in general commercial housings. By applying a sunken garden that was formed into an exterior space resembling an interior space to the underground space, in which an environmentally unfavorable closed spatial composition is inevitable, it is more advantageous in terms of lighting and ventilation, and it is not only used as a connecting space to the underground shopping area but also acts as a breathing space. As one goes up to the first floor from the basement through the stairs, the entire concrete wall is filled with a large window at the stair landing area, and green bamboos are planted behind the window.

청연재는 총 3세대가 거주 가능한 상가형 다세대주택으로, 대지는 성남의 택지개발지구인 고등지구의 점포주택 용지다. 청연재는 일반 상가주택의 천편일률적인 기본 타입에서 벗어나 차별성 있는 다양한 구성으로 경쟁력을 갖추었는데, 각 층마다 1가구씩 총 3가구로 구성되어 주거의 질을 높이며, 가능한 많은 거주공간 면적이 확보됐다. 줄어든 주차면적을 1층 상가로 흡수되어 주변 동일부지 대비 큰 평수의 상가 공간도 마련되어 있다. 또한, 대지 레벨차이가 있어 단점으로 작용한 상가를 층고로 극복하고자 했다. 코너에 접해 있는 사이트의 두 개의 도로 중 하나가 60cm 정도 대지에 묻힌 높이 만큼 한쪽 층고를 올림으로써 2층 주거공간을 수직적인(계단) 동선계획으로 분리하여 한쪽은 높은 층고의 개방감 있는 공공공간을 다른 한쪽은 침실로 구성하여 안락하고 사적인 공간을 제공했다. 이러한 스킵플로어 형식의 평면 구성 방식은 일반 상가주택에서 볼 수 없는 다양한 공간감을 경험할 수 있게 한다. 환경적으로 불리한 폐쇄된 공간 구성을 가질 수밖에 없는 지하 공간은 선큰이 마련되어 채광과 통풍에 더 유리한 지하 공간으로 활용될 뿐만 아니라 작은 숨통 역할을 한다. 지하에서 지상 1층으로 계단실을 통해 올라오다 보면 계단참 부분에 콘크리트 벽 전체가 큰 통창으로 가득 차 있고 그 너머에는 푸르른 대나무가 심어져 있다.

















Architects YOHAA
Location Seongnam-si, Gyeonggi-do, Republic of Korea
Site area 257.90㎡
Building area 153.59㎡
Gross floor area 560.16㎡
Building scope B1, 4F
Building to land ratio 59.55%
Floor area ratio 159.95%
Construction period 2019. 09 - 2020. 07
Completion 2020. 07
Principal architect Youngjun Lim
Project architect Youngjun Lim
Design team Inha Son
Structural engineer MOA&Consulting Engineers, Ltd.
Mechanical engineer WOOJUNG E&C
Electrical engineer WOOJUNG E&C
Construction EVER CONST.
Photographer Allen Song
해당 프로젝트는 리빙즈, 디테일 02호에 게재되었습니다.
The project was published in LIVINGS, Detail 02
[BOOK] LIVINGS, Detail 리빙즈, 디테일 01호, 02호
단행본 발행 67개의 형태와 라이프스타일을 담은 주거공간, 국내외 "디테일한 주택 프로젝트"의 엮음
www.masilwide.com
'Architecture Project > Multifamily' 카테고리의 다른 글
| CASA d’POÇO (0) | 2022.04.15 |
|---|---|
| TAESHIN'S HOUSE (0) | 2022.04.14 |
| COTTON HOUSE (0) | 2022.04.12 |
| MOJO HOUSE (0) | 2022.04.11 |
| ELEVEN (0) | 2022.04.08 |
마실와이드 | 등록번호 : 서울, 아03630 | 등록일자 : 2015년 03월 11일 | 마실와이드 | 발행ㆍ편집인 : 김명규 | 청소년보호책임자 : 최지희 | 발행소 : 서울시 마포구 월드컵로8길 45-8 1층 | 발행일자 : 매일



