
Cotton House is a multi-family housing built in a residential area in Myeonmok-dong, Seoul, where single-story houses and two-story houses are mixed and neatly arranged along the north and south roads. In Myeonmok-dong’s residential area, the old houses were one by one passing over their batons to multi-family/multi-household housings with three or four stories, and consequently, the landscape of the neighborhood and the atmosphere of the street were also gradually changing. In the changing city, Myeonmok-dong Cotton House forms a new relationship with the existing street while satisfying the legal floor space index permitted in a small site and maximizing the volume and density of the building.
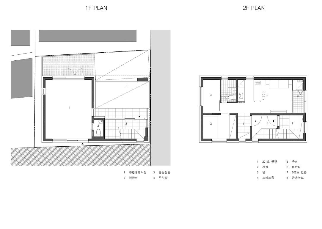
The first floor of Cotton House has a neighborhood living facility and parking lot, and the second floor has a rental residential space with two rooms. The third and fourth floors, which are found through the front entrance on the second floor, are the client’s residential space, and there is a rooftop terrace in addition to the residential spaces. The area of each floor in the narrow site is about 50m². However, not only do the openness and lighting feel maximized from the interior space, but also the fact that the connection between the spaces were considered to be reasonable yet meticulous can be seen. The main interior spaces are open towards the road on the east side, and the bedroom was open towards the dead-end road on the south side to secure lighting. When the living room and dining room on the second and third floors are reached, an open staircase and the kitchen with an urban landscape are met. The most important point of the architect’s design was to border the common spaces, where they face one another, and the independent private spaces within the life of the client’s residential space in a loose space form. In this way, the interior staircase of the living room emphasizes the openness as much as possible and naturally connects the sight and circulation. Most of the doors have a pocket door format. Furthermore, all parts including the walls and the roof of Cotton House were designed with thorough exterior insulation. In particular, an exterior insulation waterproof method was applied to the flat roof in order to resolve its troublesome waterproof defect and thermal bridge, and a careful construction process was carried out. ‘Cotton House’, which has newly settled down in Myeonmok-dong’s residential area, is overlapped and stacked with suitably connected small spaces. It is a residential space that faithfully captures the daily life that is warm and cozy like a blooming cotton flower.

목화집은 남북의 가로를 따라 정연하게 놓여있는 오래된 단층 주택과 2층 주택이 혼재된 서울 면목동 주택가에 새워진 다가구주택이다. 면목동 주택가는 오래된 주택들이 하나둘 3, 4층의 다가구/다세대 건물들로 바통을 넘기고 있었고, 동네의 풍경과 가로의 분위기도 이에 따라 조금씩 변화하고 있었다. 면목동 목화집은 도시 변화의 양상 속에서 규모가 작은 대지에서 허용되는 법적 용적률을 만족시키면서 건물의 용적과 밀도를 최대한 높여 기존 가로와 새로운 관계를 맺는다.
목화집 1층은 근린생활시설, 주차장이 있으며, 2층에는 투룸의 임대용 주거 공간이 있다. 2층 현관을 통해서 3층과 4층은 건축주의 주거 공간이 나오고, 주거공간들과 옥상 테라스도 있다. 협소한 대지 안에서 각층의 면적은 약 50m2 정도지만, 내부 공간에서 느껴지는 개방감과 채광을 극대화할 뿐만 아니라 공간들의 연결 관계가 합리적이면서도 세심하도록 배려되어 있는 것을 곳곳에서 확인할 수 있다. 주요 내부 공간은 동측의 도로를 향해 열려 있고, 침실은 남측의 막다른 도로를 향해 채광이 확보되어 있다. 2층과 3층의 거실과 식당에 도달하면 열린 구조의 계단, 도시의 풍경과 함께 주방을 맞이한다. 건축가의 설계의 가장 중요한 포인트는 건축주 주거 공간의 삶 속에서 함께 마주보며 생활하는 공동의 공간과 독립적인 개인 공간을 느슨한 공간 형식으로 경계 짓는 일이었다. 이렇게 거실의 실내 계단은 최대한 개방감을 살려 시선과 동선을 자연스럽게 연결한다. 대부분의 방문들은 포켓도어 형식을 가지고 있다. 또한, 목화집은 벽체와 지붕을 포함한 모든 부분이 철저한 외단열공법으로 설계됐는데, 특히 옥상 평지붕의 고질적인 방수 하자와 열교를 해결하기 위해 평지붕 외단열 방수 공법이 적용됐고, 세심한 시공 과정을 거쳤다. 면목동 주택가에 새롭게 뿌리내린 ‘목화집’은 적절하게 연결된 작은 공간들이 중첩되고 적층되어 있다. 목화솜이 피어나듯 따뜻하고, 포근한 삶의 일상을 충실히 담아내는 주거 공간이다.
















Architects SamGanIlMok Architects
Location Jungnang-gu, Seoul, Republic of Korea
Site area 92.20㎡
Building area 54.15㎡
Gross floor area 180.87㎡
Building to land ratio 59.75%
Floor area ratio 179.01%
Construction period 2020. 03 - 11
Completion 2020. 12
Principal architect Hyunhyo Kwon
Project architect Hyunhyo Kwon, Jungmi Lee
Structural engineer GWANGRIM STRUCTURAL ENGINEERING
Electrical engineer SAMHEUNG ENGINEERING
Construction SOLHEIM
Photographer SamGanIlMok
해당 프로젝트는 리빙즈, 디테일 02호에 게재되었습니다.
The project was published in LIVINGS, Detail 02
[BOOK] LIVINGS, Detail 리빙즈, 디테일 01호, 02호
단행본 발행 67개의 형태와 라이프스타일을 담은 주거공간, 국내외 "디테일한 주택 프로젝트"의 엮음
www.masilwide.com
'Architecture Project > Multifamily' 카테고리의 다른 글
| TAESHIN'S HOUSE (0) | 2022.04.14 |
|---|---|
| CHEONGYEONJAE (0) | 2022.04.13 |
| MOJO HOUSE (0) | 2022.04.11 |
| ELEVEN (0) | 2022.04.08 |
| 1+4 HOUSE (0) | 2022.04.07 |
마실와이드 | 등록번호 : 서울, 아03630 | 등록일자 : 2015년 03월 11일 | 마실와이드 | 발행ㆍ편집인 : 김명규 | 청소년보호책임자 : 최지희 | 발행소 : 서울시 마포구 월드컵로8길 45-8 1층 | 발행일자 : 매일



